购买
下载掌阅APP,畅读海量书库
立即打开
畅读海量书库
扫码下载掌阅APP

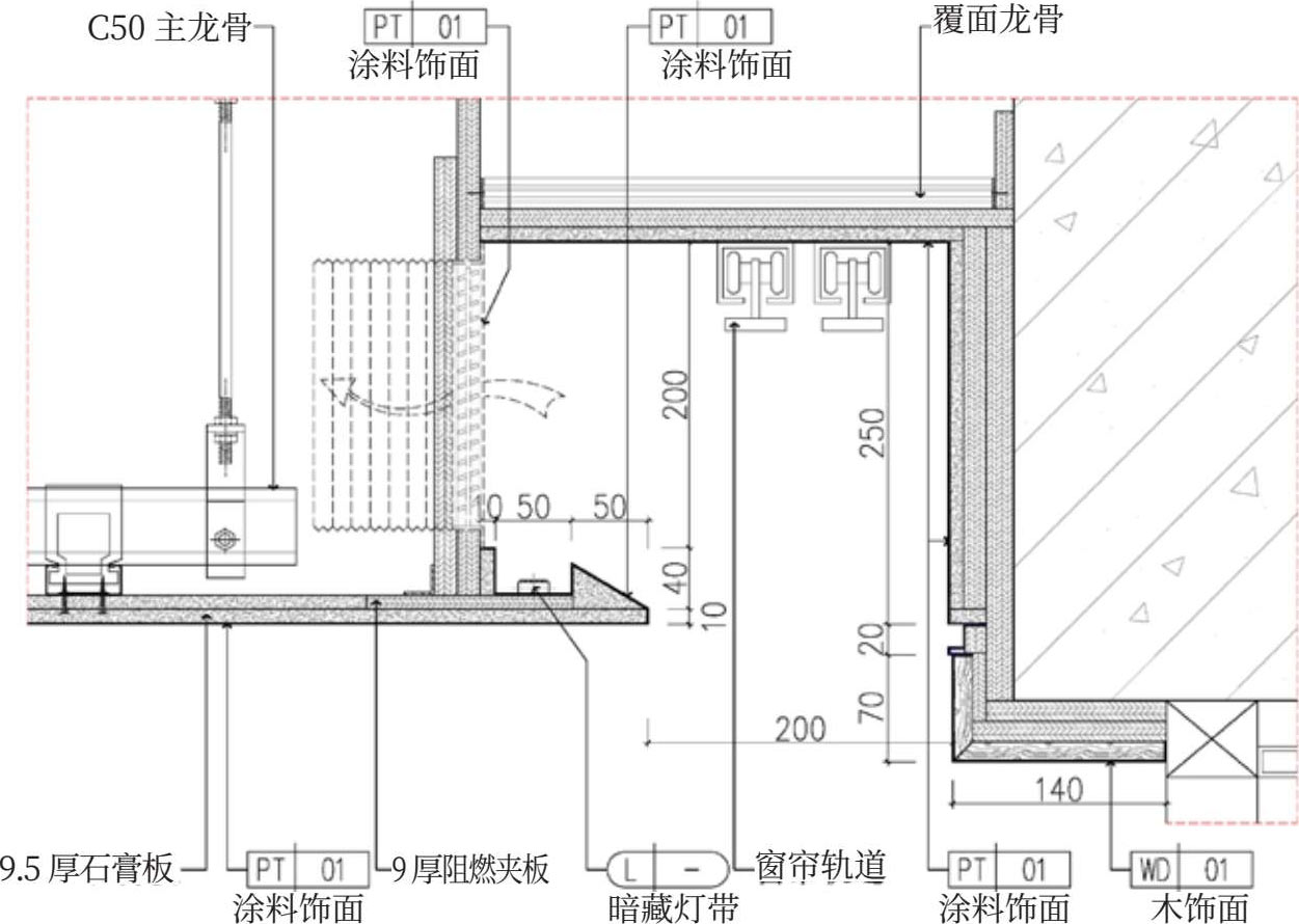
6 暗藏灯带天花节点(窗帘盒暗藏灯带)

节点大样图

三维示意图

竖剖面图

说明

墙面涂料饰面与天花最低点齐平,定制收口条与木饰面收口(墙面窗户木饰面需要用硅酸钙板基层,防止窗户渗水)。 Lmakeqx1Bz/cYiJzqAy+FTwn7IZBgAegwO/GcAXcbmvrn6eCeotEoAR9vwRdEojC

点击中间区域
呼出菜单
上一章
目录
下一章
×