购买
下载掌阅APP,畅读海量书库
立即打开
畅读海量书库
扫码下载掌阅APP

3 暗藏灯带
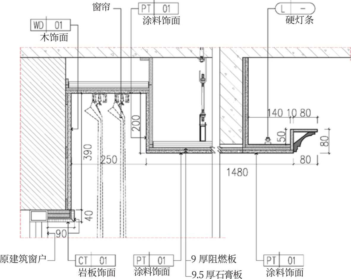
——暗藏窗帘盒天花节点

节点大样图

三维示意图

竖剖面图

说明

先做吊顶造型,定制石膏线条,再做墙面木饰面、窗边石材收口(窗帘盒顶部需要留夹板基层,固定窗帘)。 zdFqwcT2QgLxYD3tX3dzfjQ2yMQOD5JpiS/QGCgynRRT0T6YK1SVWp/adChtmxvA

点击中间区域
呼出菜单
上一章
目录
下一章
×