购买
下载掌阅APP,畅读海量书库
立即打开
畅读海量书库
扫码下载掌阅APP

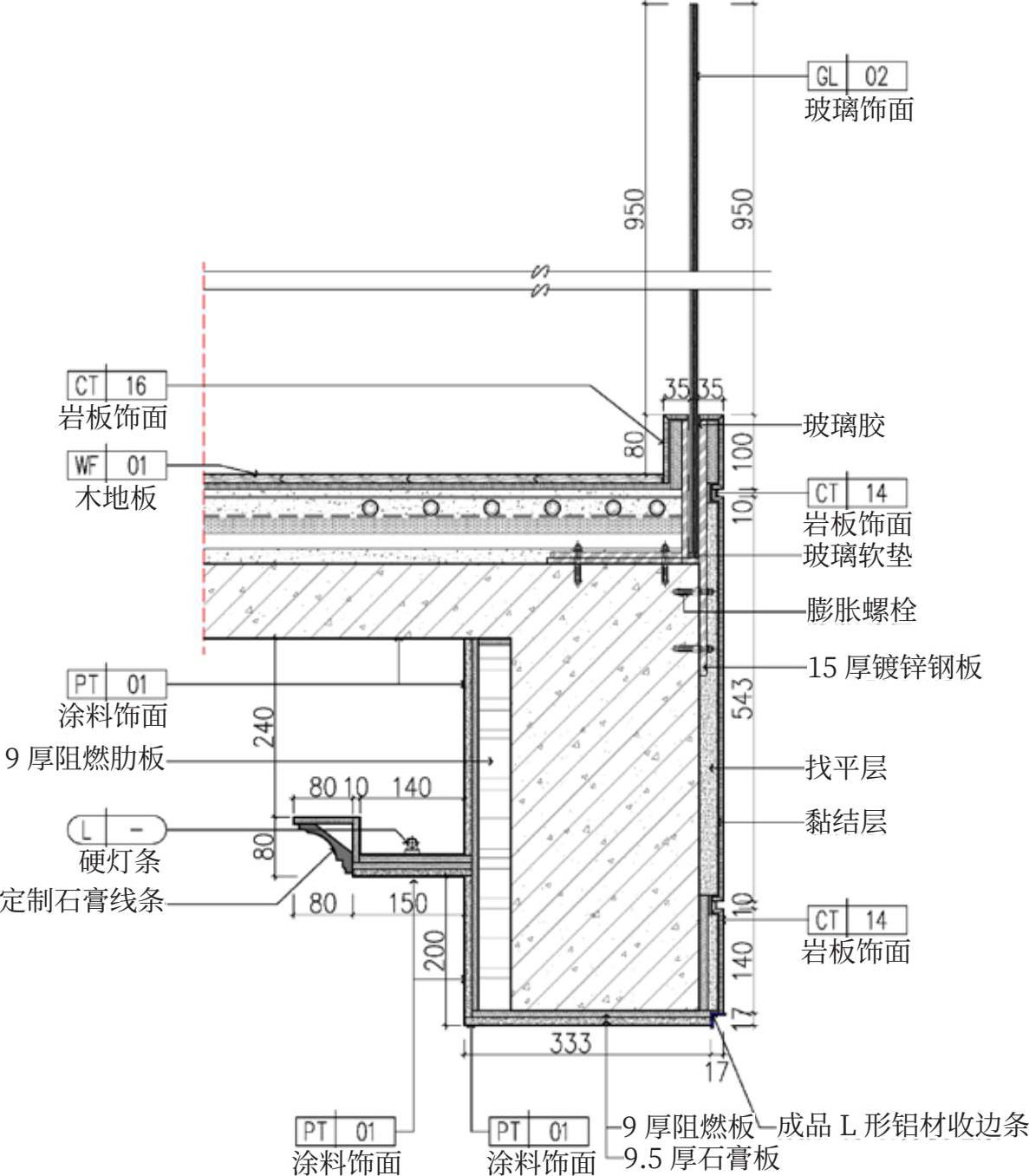
2 扶手
——暗藏灯带天花节点

节点大样图

三维示意图

竖剖面图

说明

先安装固定U形槽固定无框玻璃,U形槽深度为 100 mm以上,然后进行木地板施工。 97mHXR3B0xXh+bfKtdmvrJgFszdNrB8BMft8fmIY0195NtGCbG+fy3LiHD1gsIQ8

点击中间区域
呼出菜单
上一章
目录
下一章
×

打开