购买
下载掌阅APP,畅读海量书库
立即打开
畅读海量书库
扫码下载掌阅APP

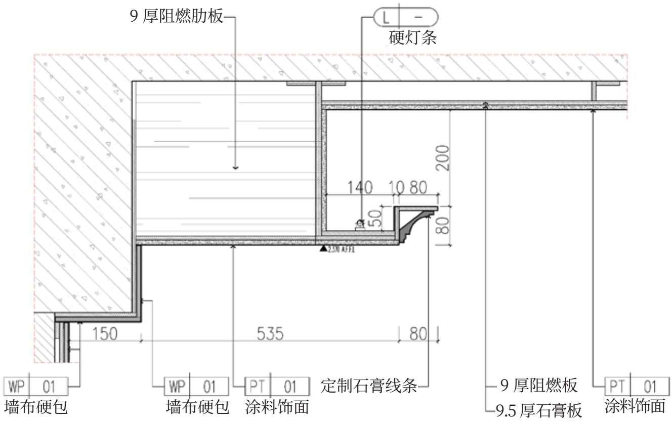
1 暗藏灯带天花节点(石膏线灯槽)

节点大样图

注:本书图中所注尺寸除注明外,单位均为毫米。

三维示意图

竖剖面图

说明

先做吊顶造型,定制石膏线条,再做墙布硬包造型。 /NNH4Dmanm0LcZAeHEMyju9SlNrDFPhKH0DKCT+Ud4f0Ee+eNOVKFi3Jna8Wb7Py

点击中间区域
呼出菜单
上一章
目录
下一章
×

打开