购买
下载掌阅APP,畅读海量书库
立即打开
畅读海量书库
扫码下载掌阅APP

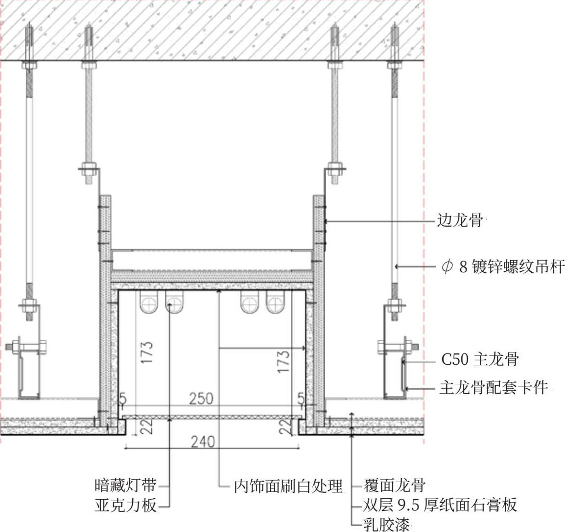
28 亚克力灯箱天花节点

节点大样图

三维示意图

竖剖面图

说明

亚克力灯箱细节收口,选用 3 mm厚亚克力片,固定在灯箱内部预留好的卡槽上。灯箱内灯带尽量选用COB灯带,此灯带发光均匀,呈线形,没有光斑。 zdFqwcT2QgLxYD3tX3dzfjQ2yMQOD5JpiS/QGCgynRRT0T6YK1SVWp/adChtmxvA

点击中间区域
呼出菜单
上一章
目录
下一章
×