购买
下载掌阅APP,畅读海量书库
立即打开
畅读海量书库
扫码下载掌阅APP

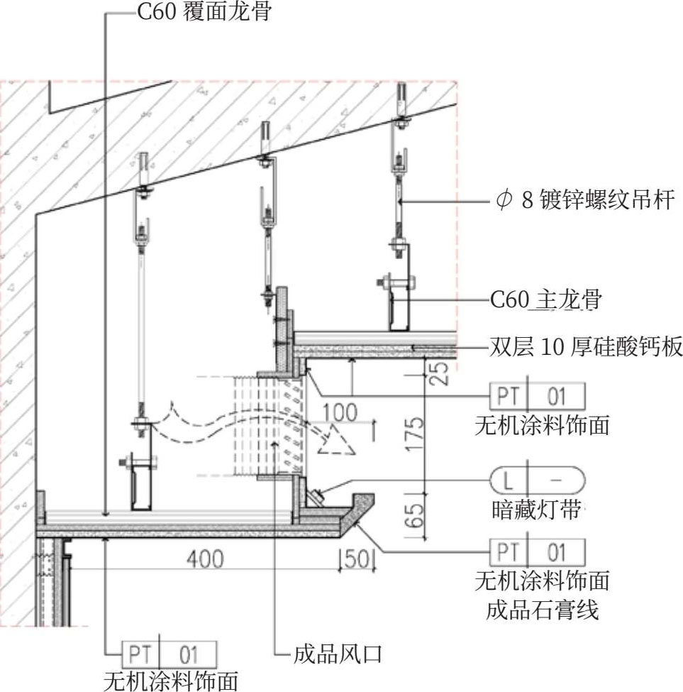
20 (带风口)暗藏灯带天花节点

节点大样图

三维示意图

竖剖面图

说明

需要提前定制好斜边石膏线条,在基层板造型做完后,将石膏线条用专用石膏线粘粉固定在夹板造型上,等待 4 分钟后即可完成。 zdFqwcT2QgLxYD3tX3dzfjQ2yMQOD5JpiS/QGCgynRRT0T6YK1SVWp/adChtmxvA

点击中间区域
呼出菜单
上一章
目录
下一章
×