购买
下载掌阅APP,畅读海量书库
立即打开
畅读海量书库
扫码下载掌阅APP

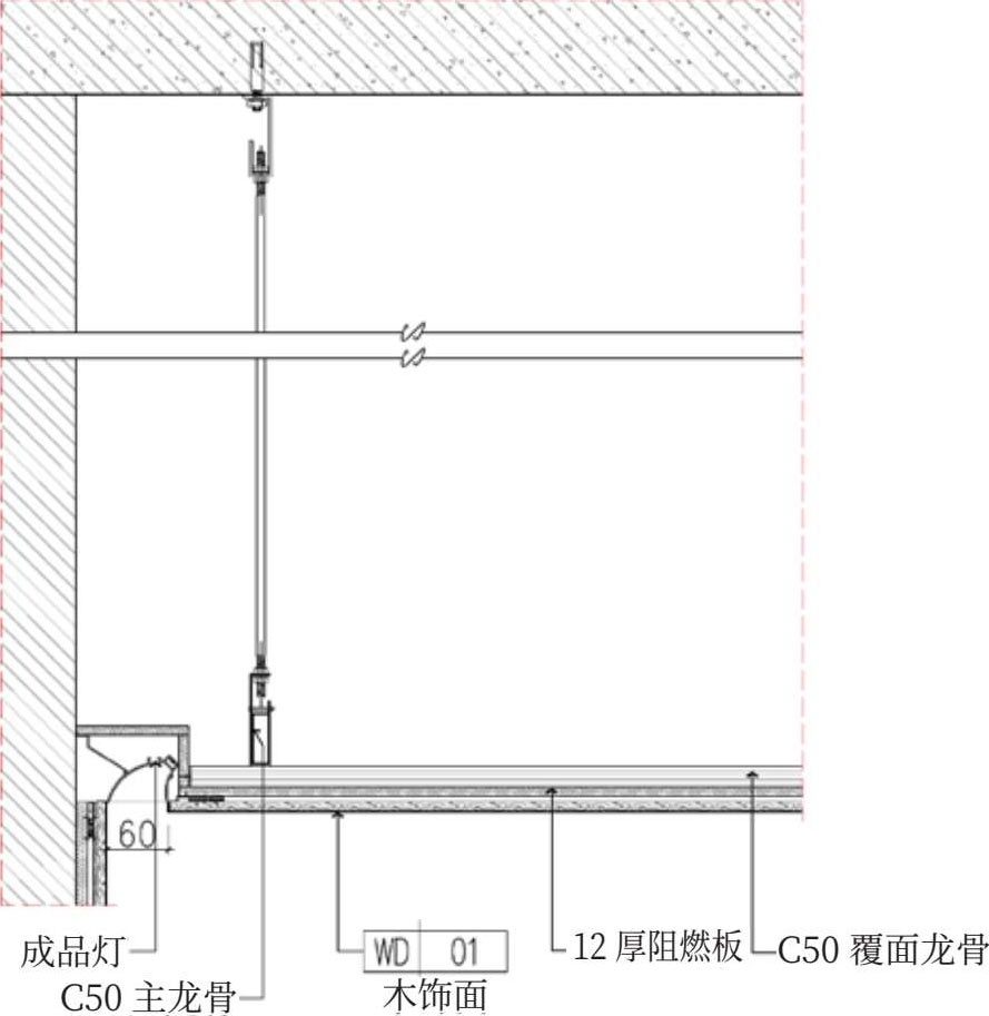
18 暗藏灯条天花节点(成品型材灯具)

节点大样图

三维示意图

竖剖面图

说明

天花吊顶基层夹板做完后,先固定定制款暗藏灯条(需要提前购买),再进行木饰面固定安装。 zdFqwcT2QgLxYD3tX3dzfjQ2yMQOD5JpiS/QGCgynRRT0T6YK1SVWp/adChtmxvA

点击中间区域
呼出菜单
上一章
目录
下一章
×