购买
下载掌阅APP,畅读海量书库
立即打开
畅读海量书库
扫码下载掌阅APP

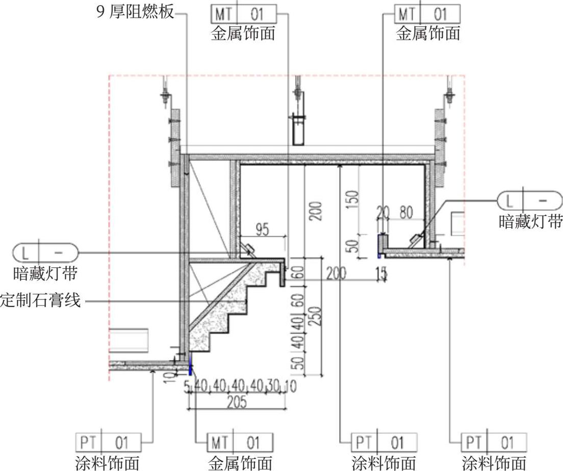
16 定制石膏线天花节点

节点大样图

三维示意图

竖剖面图

说明

先安装固定好定制石膏线,再进行金属饰面的安装。 zdFqwcT2QgLxYD3tX3dzfjQ2yMQOD5JpiS/QGCgynRRT0T6YK1SVWp/adChtmxvA

点击中间区域
呼出菜单
上一章
目录
下一章
×