购买
下载掌阅APP,畅读海量书库
立即打开
畅读海量书库
扫码下载掌阅APP

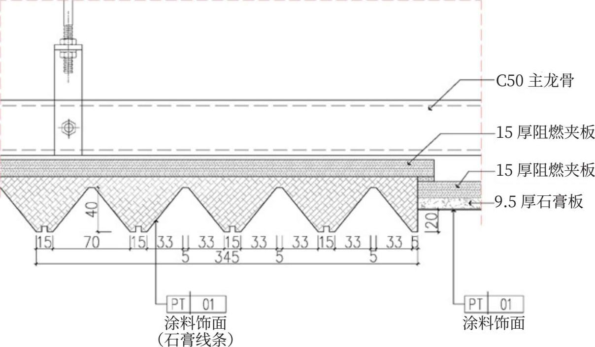
12 不规则石膏线天花节点

节点大样图

三维示意图

说明

将定制好的石膏线条在基层板预留石膏线的位置,通过专用石膏线粘粉固定在夹板上,等待 4 分钟后,可以松开手。 zdFqwcT2QgLxYD3tX3dzfjQ2yMQOD5JpiS/QGCgynRRT0T6YK1SVWp/adChtmxvA

点击中间区域
呼出菜单
上一章
目录
下一章
×