购买
下载掌阅APP,畅读海量书库
立即打开
畅读海量书库
扫码下载掌阅APP

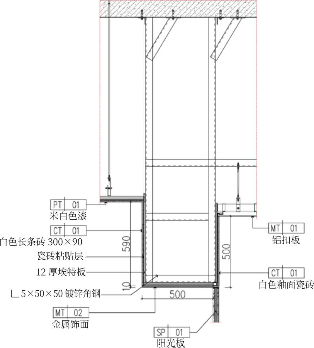
11 瓷砖、铝板天花节点

节点大样图

三维示意图

竖剖面图

说明

墙面上贴瓷砖时,内部用镀锌角钢基层,以提供足够的受力条件。在更高的墙面上贴瓷砖,则需要考虑内部增添点挂件。 zdFqwcT2QgLxYD3tX3dzfjQ2yMQOD5JpiS/QGCgynRRT0T6YK1SVWp/adChtmxvA

点击中间区域
呼出菜单
上一章
目录
下一章
×