购买
下载掌阅APP,畅读海量书库
立即打开
畅读海量书库
扫码下载掌阅APP

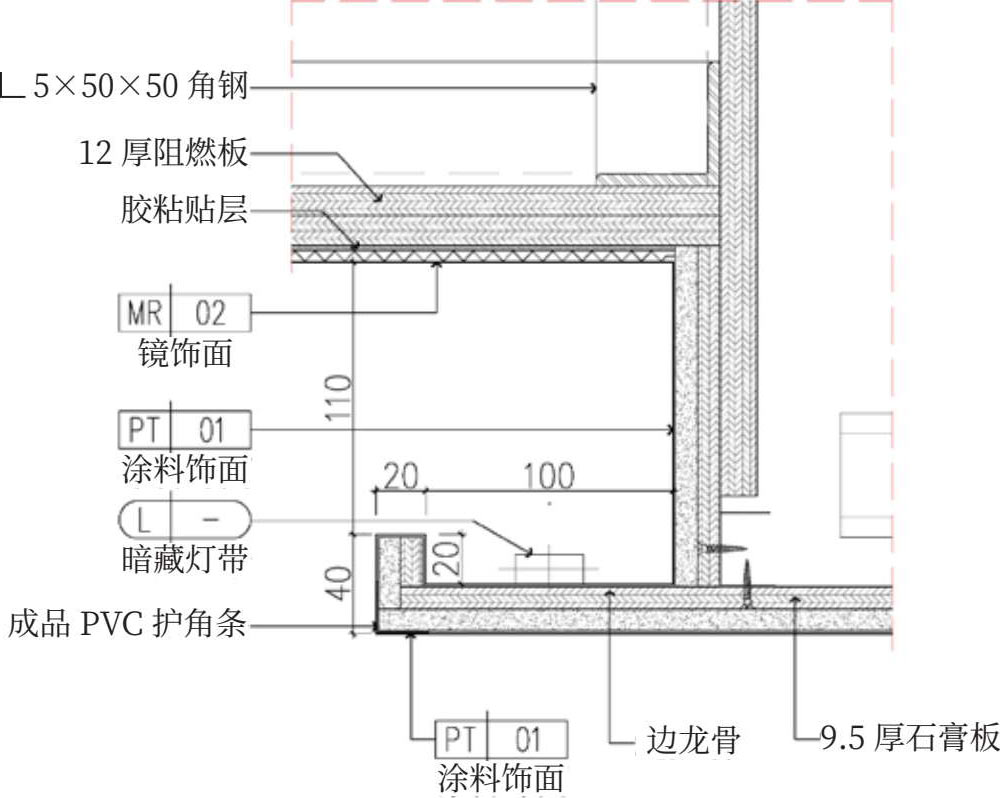
9 灯槽、镜面天花节点

节点大样图

三维示意图

说明

1.镜面顶部做角钢基层,以满足镜面的承重条件。

2.灯槽的阳角上提前预埋PVC护角条,让阳角线条更加垂直。 z11mR2weQklZiRrMxBGNuJJzTIsD0yo8ooZv6yPwIYSfY7w6im6vDwa527QiuuVc

点击中间区域
呼出菜单
上一章
目录
下一章
×

打开