购买
下载掌阅APP,畅读海量书库
立即打开
畅读海量书库
扫码下载掌阅APP

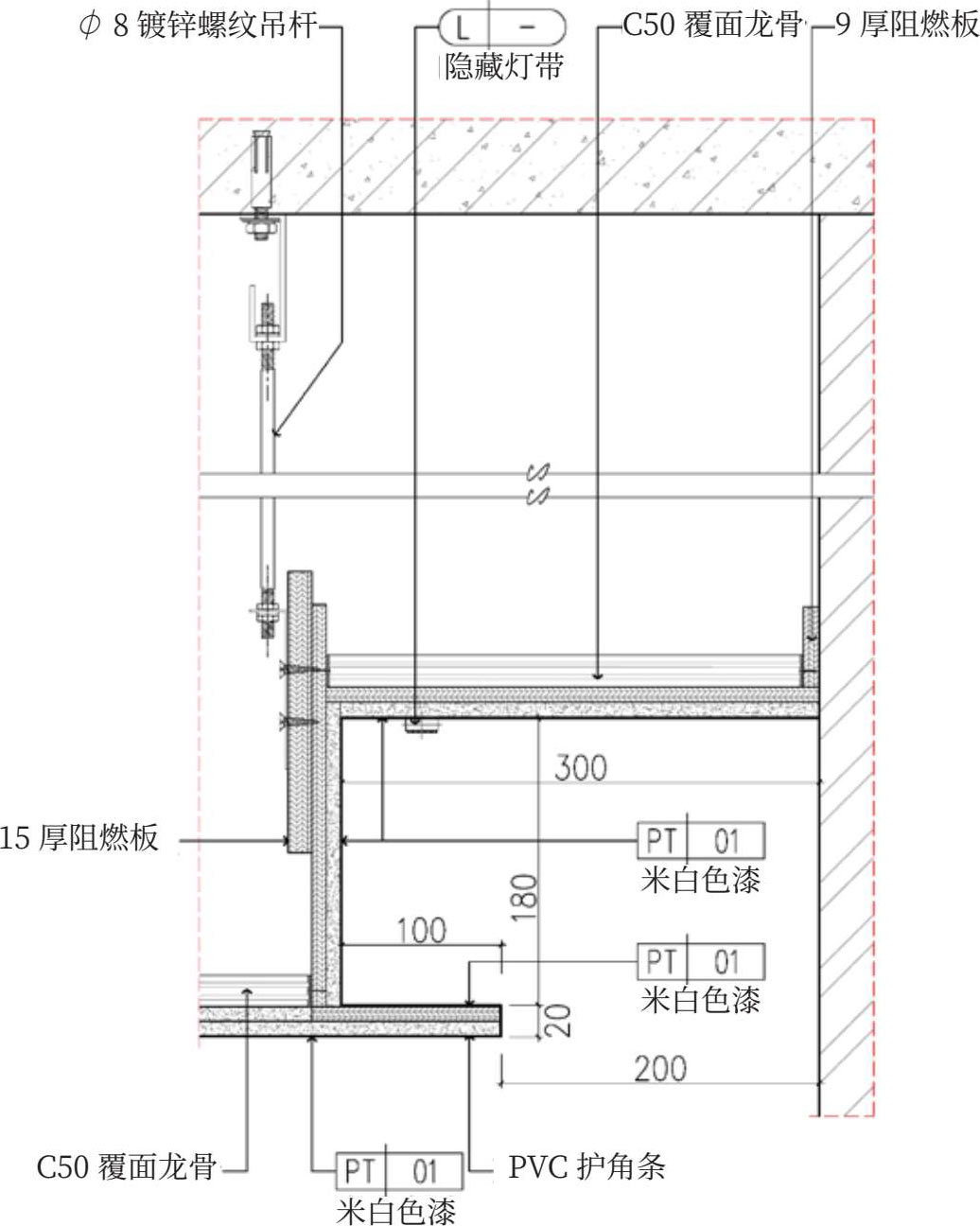
8 暗藏灯带天花节点(暗藏灯槽)

节点大样图

三维示意图

竖剖面图

说明

1.当吊杆长度大于 1.5 m时,要设置反向支撑。

2.灯条应固定在灯槽上方,让灯光达到更好场景的效果。 zdFqwcT2QgLxYD3tX3dzfjQ2yMQOD5JpiS/QGCgynRRT0T6YK1SVWp/adChtmxvA

点击中间区域
呼出菜单
上一章
目录
下一章
×