购买
首页
分类
免费
排行
我的书架
下载掌阅APP,畅读海量书库
立即打开
畅读海量书库
扫码下载掌阅APP
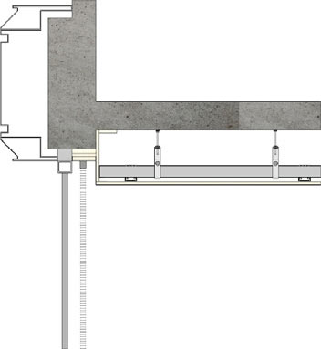
7 暗藏卷帘天花节点
节点大样图
三维示意图
竖剖面图
zdFqwcT2QgLxYD3tX3dzfjQ2yMQOD5JpiS/QGCgynRRT0T6YK1SVWp/adChtmxvA
点击中间区域
呼出菜单
购买书籍时,会优先扣除您的代金券,再扣除阅饼;当您的余额不足时,可使用微信或支付宝支付,补足差价;
连载书籍勾选自动购买下一章后,会自动扣费,已购章节不会重复扣费;
书籍购买记录请至我的—购书记录中查询
上一章
目录
下一章
×