



火灾探测器的选择
根据探测器所响应火灾的物理特性,探测器可分为感烟探测器、感温探测器、感光探测器(火焰探测器)、可燃气体探测器、复合探测器,如图2.7所示。
图2.7 各类火灾探测器
各类探测器根据其检测原理和结构特征又可分为以下类型,如图2.8—图2.12所示。
图2.8 感光探测器的分类
图2.9 感烟探测器的分类
图2.10 可燃气体探测器的分类
图2.11 复合探测器的分类
图2.12 感温探测器的分类
火灾报警产品种类较多,附件更多,但都是按照国家标准编制命名的。国标型号均按汉语拼音字头的大写字母组合而成,只要掌握规律,从名称就可以看出产品类型与特征,如图2.13所示。
图2.13 探测器型号示图
火灾探测器的型号意义:
①J(警)——火灾报警设备。
②T(探)——火灾探测器代号。
③火灾探测器分类代号,各种类型火灾探测器的具体表示方法如下:
Y(烟)——感烟火灾探测器;
W(温)——感温火灾探测器;
G(光)——感光火灾探测器;
Q(气)——可燃气体探测器;
F(复)——复合式火灾探测器。
④应用范围特征代号,表示方法如下:
B(爆)——防爆型(无“B”即为非防爆型,其名称也无须指出“非防爆型”);
C(船)——船用型。
非防爆或非船用型可省略,无须注明。
⑤、⑥探测器特征表示法(敏感元件、敏感方式特征代号):
LZ(离子)——离子;MD(膜,定)——膜盒定温;
GD(光,电)——光电;MC(膜,差)——膜盒差温;
SD(双,定)——双金属定温;MCD(膜,差,定)——膜盒差定温;
SC(双,差)——双金属差温;GW(光,温)——感光感温;
GY(光,烟)——感光感烟;YW(烟,温)——感烟感温;
YW-HS(烟温红束)——红外光束感烟感温;
BD(半,定)——半导体定温;ZD(阻,差)——热敏电阻定温;
BCD(半,差,定)——半导体差定温;ZC(阻,差)——热敏电阻差温;
BC(半,差)——半导体差温;ZCD(阻,差,定)——热敏电阻差定温;
HW(红,外)——红外感光;ZW(紫,外)——紫外感光。探测器型号实例如图2.14所示。
图2.14 探测器型号及参数
(1)感烟探测器
1)点型光电感烟探测器(图2.15、图2.16)。
光电式感烟探测器是对红外光、可见光和紫外光电磁波频谱区辐射的吸收或散射的燃烧物质敏感的探测器。光电式感烟探测器根据结构和原理分为减光型和散射型两种。
图2.15 JTYB-GM-TS1001点型光电感烟火灾探测器
图2.16 点型感烟探测器工程符号
①工作原理。减光型光电感烟火灾探测器的检测室内装有发光器件及受光器件。在正常情况下,受光器件接收到发光器件发出的一定光量;但在火灾时,探测器的检测室进入大量烟雾,发光器件的发射光受到烟雾的遮挡,使受光器件接收的光量减少,光电流降低,探测器发出报警信号。
在敏感空间无烟雾粒子存在时,探测器外壳之外的环境光线被迷宫阻挡,基本上不能进入敏感空间,红外光敏二极管只能接收到红外光束经多次反射在敏感空间形成的背景光。当烟雾颗粒进入由迷宫所包围的敏感空间时,烟雾颗粒吸收入射光并以同样的波长向周围发射光线,部分散射光线被红外光敏二极管接收后,形成光电流,当光电流大到一定程度时,探测器即发出报警信号。
②设备特点。
a.强电保护电路,防止现场总线错接AC 220×(1+20%)V造成产品损坏。
b.超低功耗设计,低监视及报警电流。
c.一体化单片机,内含放大电路,报警上传时间小于1 s,采用后向红外散射技术,黑烟响应性能优良。
d.对灰尘积累采用多级数字调制的漂移补偿技术,清洗周期比普通补偿技术延长3 ~5倍。
e.通过控制器可快速查询探测器的污染程度及报警烟浓度曲线。
f.超薄外形设计,指示灯360°可见,可通过控制器设置为巡检指示灯关闭状态。
g.底座采用专利免剥线技术,可满足现场复杂线路快速接线。
③技术特点(表2.1)。
表2.1 感烟探测器技术特点
④结构特征及安装。外形结构示意图如图2.17所示。
图2.17 感烟探测器结构示意图
点型感烟探测器安装示意图如图2.18所示。
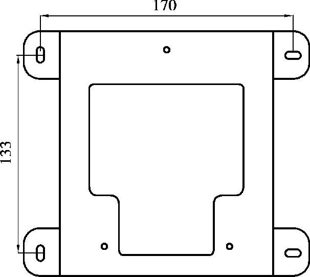
预埋盒可采用86H50标准预埋盒,其外形结构示意图,如图2.19所示。
TS-DZ-1401探测器通用底座外形结构示意图,如图2.20所示。
图2.18 点型感烟探测器安装示意图
图2.19 预埋盒结构示意图
图2.20 TS-DZ-1401探测器通用底座结构示意图
底座上有2个免剥线接线端子,安装时先将总线分别接在免剥线接线端子上,不分极性。
注意:接线时不需剥开线缆,只需将线缆放在免剥线端子的刀口上,用螺丝刀拧紧免剥线端子,线缆与端子即可导通。
接线步骤示意图如图2.21、图2.22所示。
图2.21 步骤1:抬起免剥线端子
图2.22 步骤2:将线缆放入免剥线刀口,用螺丝刀拧紧
接线完毕后,将底座固定在86盒上。(备注:也可先将螺钉固定在86盒上,再将底座旋入固定位置,最后再将螺钉拧紧。)
探测器与底座上均有定位凹槽,使探测器具有唯一的安装位置。待底座安装牢固后,将探测器底部的凹槽 C 对准底座凹槽 A 处,顺时针旋转至凹槽 B 处,即可将探测器安装在底座上,如图2.18所示。
⑤布线要求。无极性二总线宜选用RVS-2×1.0 mm 2 或1.5 mm 2 阻燃或耐火双绞线;穿金属管或阻燃管敷设。
2)JTY-HS-TS1006线型光束感烟火灾探测器(图2.23、图2.24)
图2.23 线型光束感烟探测器(发射端、接收端)
图2.24 线型火灾探测器实物图
①设备特点。
a.布线方便:无极性,两线制。
b.强电保护:防止现场总线错接AC 220 V造成产品损坏。
c.超低功耗:超低监视电流及报警电流。
d.调试方便:激光辅助定位安装,电机自动校准探测器角度。
e.灵敏度可设:三级可设。
f.维护方便:对灰尘积累采用多级漂移补偿算法。
②工作原理。将发射器与接收器相对安装在保护空间的两端且在同一水平直线上。在正常情况下,红外光束探测器的发射器发送一个不可见的脉冲红外光束,经过保护空间不受阻挡地射到接收器的光敏元件上。当发生火灾时,由于受保护空间的烟雾气溶胶扩散到红外光束内,使到达接收器的红外光束衰减,接收器接收的红外光束辐射通量减弱,当辐射通量减弱到预定的感烟动作阈值(响应阈值)[例如,有的厂家设定在光束减弱超过40%且小于93%时,如果保持衰减5 s(或10 s)时间],探测器立即发出火灾报警信号。
③结构特征。JTY-HS-TS1006线型光束感烟火灾探测器外形结构示意图,如图2.25所示。
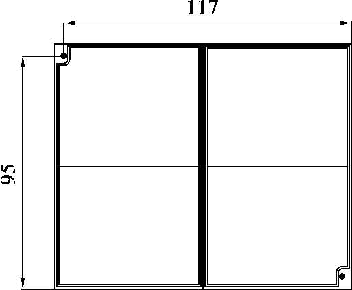
④安装与接线。探测器底座外形结构示意图如图2.26所示,单块反射器安装尺寸如图2.27所示,外接端子示意图如图2.28所示。
图2.25 JTY-HS-TS1006线型光束感烟火灾探测器结构示意图(单位:mm)
图2.26 探测器底座外形结构示意图
图2.27 单块反射器安装尺寸图
图2.28 外接端子示意图
安装时,先用M3螺丝刀将探测器固定在探测器底座上,再根据图2.26探测器底座外形结构示意图,将产品固定在安装位置。如果能确保探测器固定在安装面上,也可不使用探测器底座进行安装。
使用螺丝刀将探测器端子盖打开,从探测器背面将线穿过穿线孔,根据接线标识对探测器进行接线。
通过编码器或控制器开启探测器激光作为反射器安装辅助定位,将反射器安装在与探测器相对、处于同一水平面的位置上,单块反射器安装尺寸如图2.27所示。当探测器与反射器安装距离为10~40 m时,安装一块反射器即可;当安装距离为40~ 100 m时,需安装四块反射器。
⑤适用场所。点型光电感烟探测器能使用的场所;火灾发生时产生烟的场所;各类仓库、大型纪念馆、车间、图书馆、展览馆、体育馆、变电所等。
不适用场所:有日光照射,或有强烈红外光辐射的地方;有剧烈振动的地方;有一定浓度的灰尘、水汽粒子且粒子的浓度变化较快的场所;天顶高度超过30 m的场所;空间高度小于1.5 m的场所。
3)感烟探测器的灵敏度
感烟探测器的灵敏度(或称响应灵敏度)是探测器响应烟参数的敏感程度。感烟探测器分为高、中、低(或Ⅰ、Ⅱ、Ⅲ)级灵敏度。在烟雾相同的情况下,高灵敏度意味着可对较低的烟粒子数浓度响应。灵敏度等级上用标准烟(试验气溶胶)在烟箱中标定感烟探测器几个不同的响应阈值的范围。
一般来讲,高灵敏度用于禁烟场所,中级灵敏度用于卧室等少烟场所,低级灵敏度用于多烟场所。高、中、低级灵敏度的探测器的感烟动作率分别为10%、20%、30%。
(2)火焰探测器
1)火焰探测器的分类
根据火焰的光特性,目前使用的火焰探测器有三种:第一种是对火焰中波长较短的紫外光辐射敏感的紫外探测器;第二种是对火焰中波长较长的红外光辐射敏感的红外探测器;第三种是同时探测火焰中波长较短的紫外线和波长较长的红外线的紫外/红外混合探测器。
具体根据探测波段可分为单紫外、单红外、双红外、三重红外、红外/紫外、附加视频等火焰探测器。其实物如图2.29所示,工程符号如图2.30所示。
图2.29 JTG-ZM-TS1005点型紫外火焰探测器
图2.30 感光探测器(火焰探测器)工程符号
2)火焰探测器的工作原理
火焰探测器(flame detector)是探测在物质燃烧时,产生烟雾和放出热量的同时,所产生的可见的或不可见的光辐射。火焰探测器又称感光式火灾探测器,它是用于响应火灾的光特性,即探测火焰燃烧的光照强度和火焰的闪烁频率的一种火灾探测器。
对于火焰燃烧中产生的0.185~0.260μm波长的紫外线,可采用一种固态物质作为敏感元件,如碳化硅或硝酸铝。
对于火焰中产生的2.5~3μm波长的红外线,可采用硫化铝材料的传感器;对于火焰产生的4.4~4.6μm波长的红外线,可采用硒化铅材料或钽酸铝材料的传感器。根据不同燃料燃烧发射的光谱可选择不同的传感器,三重红外(IR3)应用较广。
当光敏管接收到185~245 nm波长的紫外线时,产生电离作用而放电,使其内阻变小,导电电流增加,使电子开关导通,光敏管工作电压降低,当电压降到 U 熄灭 电压时,光敏管停止放电,导电电流减小,电子开关断开,此时电源电压通过RC电路充电,使光敏管的工作电压重新升高到 U 导通 电压,重复上述过程,这样便产生一串脉冲,脉冲的频率与紫外线强度成正比,同时与电路参数有关。
3)火焰探测器的应用场合
石油和天然气的勘探、生产、储存与卸料;海上钻井固定平台、浮动生产储存与装卸;陆地钻井精炼厂、天然气重装站、管道;石化产品生产、储存和运输设施;油库;化学品;易燃材料储存仓库;汽车制造;飞机工业和军事,炸药和军需品;医药业;废品焚烧。
4)设备特点
①强电保护电路,防止现场总线错接AC 220×(1+20%)V造成产品损坏。
②超低功耗设计,低监视及报警电流。
③自主知识产权通信芯片及总线协议,报警上传时间小于1 s。
④采用进口紫外传感器,实现高灵敏度火灾探测。
⑤灵敏度可设置,适用于不同干扰程度的场所。
⑥采用智能火灾识别算法,报警及时、可靠。
5)技术特性(表2.2)
表2.2 火焰探测器技术特性表
6)注意事项
①不宜安装在可能发生无焰火灾的场所;
②不宜安装在火焰出现前有浓烟扩散的场所;
③不宜安装在探测器的镜头易被污染的场所;
④不宜安装在探测器的“视线”易被遮挡的场所;
⑤不宜安装在探测器易受阳光或其他光源直接或间接照射的场所;
⑥不宜安装在正常情况下有明火作业以及X射线、弧光等影响的场所;
⑦根据现场环境设置合适的灵敏度级别;
⑧现场有较强紫外线光源的场所不宜使用本探测器。
(3)感温探测器
感温探测器其外形如图2.31所示,感温探测器的工程符号如图2.32所示。
图2.31 JTWB-ZOM-TS1002点型感温火灾探测器
图2.32 感温探测器工程符号
火灾时可燃物的燃烧产生大量的热量,使周围温度发生变化。感温探测器是对警戒范围中某一点或某一线路周围温度的变化响应的火灾探测器,其将温度的变化转换为电信号以达到报警目的。
感温探测器是响应异常温度、温升速率和温差等参数的探测器。
1)感温探测器的分类
感温式火灾探测器按其结构可分为电子式和机械式两种,按原理又分为定温、差温、差定温组合式三种。
2)感温探测器的工作原理
定温式探测器是在规定时间内,火灾引起的温度上升超过某个定值时启动报警的火灾探测器。它有线型和点型两种结构,其中线型定温式探测器是当局部环境温度上升达到规定值时,可熔绝缘物熔化使两导线短路,从而产生火灾报警信号。点型定温式探测器利用双金属片、易熔金属、热电偶、热敏半导体电阻等元件在规定的温度值上产生火灾报警信号。
差温式探测器是在规定时间内,火灾引起的温度上升速率超过某个规定值时启动报警的火灾探测器。它也有线型和点型两种结构。线型差温式探测器是根据广泛的热效应而动作的,而点型差温式探测器是根据局部的热效应而动作的,主要感湿器件是空气膜盒、热敏半导体电阻元件等。
差定温式探测器结合了定温和差温两种作用原理并将两种探测器结构组合在一起。差定温式探测器一般多是膜盒式或热敏半导体电阻式等点型组合式探测器。
3)感温探测器的灵敏度
火灾探测器在火灾条件下响应温度参数的敏感程度称为感温探测器的灵敏度。
感温探测器分为Ⅰ、Ⅱ、Ⅲ级灵敏度。定温、差定温探测器灵敏度级别标志如下:
Ⅰ级灵敏度(62 ℃):绿色;
Ⅱ级灵敏度(70 ℃):黄色;
Ⅲ级灵敏度(78 ℃):红色。
4)感温探测器的适用范围
感温探测器主要用于产烟、多尘、湿度大于95%以上的场所,如厨房、锅炉房开水间、吸烟室等。
5)JTW-ZOM-TS1002点型感温火灾探测器
①设备特点。
a.强电保护电路,防止现场总线错接AC 220×(1+20%)V造成产品损坏。
b.超低功耗设计,低监视及报警电流。
c.自主知识产权通信芯片及总线协议,报警上传时间小于1 s。
d.灵敏度类别可设定为A1R或BS。
e.高可靠传感器设计,可适应高湿度地下室等环境。
f.通过控制器可快速查询探测器的实际温度。
g.超薄外形设计,指示灯360°可见,可通过控制器设置为巡检关闭状态。
h.底座采用专利免剥线技术,可满足现场复杂线路快速接线。
②技术特性(表2.3)。
表2.3 感温探测器技术特性表
③注意事项。
a.随探测器附带的塑料防尘罩,在现场安装后及未检测验收前,请勿摘除,以免探测器受到污染。
b.根据现场应用环境设定合适的产品类别。
6)缆式线型感温火灾探测器
缆式线型感温火灾探测器,其外形如图2.33所示,其工程符号如图2.34所示。
图2.33 JTW-LD-TS1008F缆式线型感温火灾探测器
图2.34 线型感温火灾探测器工程符号
①设备特点。
a.布线方便:无极性,二总线,无须单独供电。
b.强电保护:总线错接AC 220×(1+20%)V防护设计。
c.通信可靠:自主设计专用通信芯片。
d.低功耗:电源算法智能调控电路模块工作。
e.可重复使用:在安全温度范围内探测器报警后不损坏线型温度传感器。
f.高防护等级。
②技术特性(表2.4)。
表2.4 缆式线型感温火灾探测器技术特性
续表
③结构特征。信号处理单元外形示意图如图2.35所示,终端处理器外形示意图如图2.36所示。
图2.35 信号处理单元外形示意图
图2.36 终端处理器外形示意图
④接线方法及布线要求。信号处理单元接线端子示意图和终端处理器接线端子示意图如图2.37所示。
信号处理单元接线端子:
B1、B2:总线输入,无极性。
图2.37 接线端子示意图
红线L1、黑线L2:接线型温度传感器,其中L1接线型温度传感器红色线,L2接线型温度传感器黑色线。
终端处理器接线端子:
L1、L2:接线型温度传感器,无极性。
布线:B1、B2宜采用带护套双绞线,截面积不小于1.0 mm 2 。为保证防水性能达到要求,电缆应采用外径为6~8 mm的护套电缆,并拧紧电缆接头。
⑤注意事项。
a.探测器安装前建议进行绝缘电阻测试,线型温度传感器线芯间绝缘电阻应大于200 MΩ。
b.安装时严禁硬性折弯和扭转线型温度传感器。线型温度传感器的弯曲半径要大于150 mm,并防止护套破损,运输时应妥善包装,避免积压冲击。
c.信号处理单元必须与同型号的线型温度传感器配套使用。
(4)可燃气体探测器
点型可燃气体探测器外观如图2.38所示,其工程符号如图2.39所示。
图2.38 JT-ZI-TS1102点型可燃气体探测器
图2.39 可燃气体探测器工程符号
对探测区域内某一点周围的特殊气体敏感响应的探测器称为气体火灾探测器,又称可燃气体探测器。其探测的主要气体有天然气、液化气、酒精、一氧化碳等。其实物如图2.40所示。
1)可燃气体探测器的工作原理
催化燃烧式可燃气体探测器探头由一对催化燃烧式检测元件组成,其中一个元件对可燃气体非常敏感(该元件上涂有多层催化剂),另一个元件不敏感,用于补偿环境温度变化。这一对检测元件与另外一对高精度电阻构成惠斯登电桥。在催化剂的作用下敏感元件上发生催化燃烧(这种燃烧是阴燃,不会引爆外界可燃气体),使其温度升高(可高达500℃),从而改变电阻造成电桥失衡。其缺点是当检测气体中含有硫化氢和氯化物时,不宜选用。选用该检测元件易发生中毒。
图2.40 可燃气体探测器检查范围图示
2)可燃气体探测器安装场所、数量和高度
可燃气体探测器宜安装在非敞开式天然气、液化气压缩机房;原油、液化气泵房,液化石油气罐在充装车间。输油站计量间;油泵房;污油、污水泵房;阀组区;管汇间地沟内。油气管道密集、油气泄漏不易发现而且泄漏后容易积聚或经常污染的场所。
可燃气体探头的保护半径一般为6~7.5 m。安装数量需要根据场所面积来定。
可燃气体的相对密度大于0.75时,探头宜安装在低处,距离地面0.2~0.5 m为宜。
可燃气体的相对密度小于或等于0.75时,探头宜安装在高处,距离屋顶0.5~ 1 m为宜。
(5)复合火灾探测器
复合火灾探测器分为三种,分别为感烟感温复合探测器、感光感温复合探测器和感烟感光复合探测器,其工程符号如图2.41—图2.43所示。
图2.41 感烟感温复合探测器
图2.42 感光感温复合探测器
图2.43 感烟感光复合探测器
1)复合火灾探测器认知
复合火灾探测器是一种可以响应两种或两种以上火灾参数的探测器,是两种或两种以上火灾探测器性能的优化组合。集成在每个探测器内的微处理机芯片,对相互关联的每个探测器的测值进行计算,从而降低误报率。通常有感烟感温型、感温感光型、感烟感光型、红外光束感烟感光型、感烟感温感光型复合探测器。其中以烟温复合探测器使用最为频繁,其工作原理为无论是温度信号还是烟气信号,只要有一种火灾信号达到相应的阈值时探测器即可报警。其接线方式同光电感烟探测器相同,其外形如图2.44所示。
图2.44 JTF-GOM-TS1004点型复合式感烟感温火灾探测器
2)复合火灾探测器的特点
复合探测技术是目前国际上流行的新型多功能高可靠性的火灾探测技术,其特点如下:
a.强电保护电路,防止现场总线错接AC 220×(1+20%)V造成产品损坏。
b.超低功耗设计,低监视及报警电流。
c.自主知识产权通信芯片及总线协议,一体化单片机,内含放大电路,报警上传时间小于1 s。
d.数字调制补偿技术,清洗周期比普通补偿技术延长3~5倍。
e.通过控制器可快速查询探测器的污染程度及报警烟浓度曲线。
f.超薄外形设计,指示灯360°可见,可通过控制器设置为巡检关闭状态。
g.底座采用专利免剥线技术,可满足现场复杂线路快速接线。
3)主要技术指标(表2.5)
表2.5 复合火灾探测器主要技术指标
续表
(1)点型火灾探测器的选择
①下列场所宜选择点型感烟火灾探测器:
a.饭店、藏馆、教学楼、办公楼的厅堂、卧室、办公室、商场、列车载客车厢等。
b.计算机房、通信机房、电影或电视放映室等。
c.楼梯、走道、电梯机房、车库等。
d.书库、档案库等。
②符合下列条件之一的场所,不宜选择点型离子感烟火灾探测器:
a.相对湿度经常大于95%。
b.气流速度大于5 m/s。
c.有大量粉尘、水雾滞留。
d.可能产生腐蚀性气体。
e.在正常情况下有烟滞留。
f.产生醇类、醚类、酮类等有机物质。
③符合下列条件之一的场所,不宜选择点型光电感烟火灾探测器:
a.有大量粉尘、水雾滞留。
b.可能产生蒸气和油雾。
c.高海拔地区。
d.在正常情况下有烟滞留。
④应根据使用场所的典型应用温度和最高应用温度选择适当类别的感温火灾探测器:
a.相对湿度经常大于95%。
b.可能发生无烟火灾。
c.有大量粉尘。
d.吸烟室等在正常情况下有烟或蒸气滞留的场所。
e.厨房、锅炉房、发电机房、烘干车间等不宜安装感烟火灾探测器的场所。
f.需要联动熄灭“安全出口”标志灯的安全出口内侧。
g.其他无人滞留且不适合安装感烟火灾探测器,但发生火灾时需要及时报警的场所。
⑤可能产生阴燃火或发生火灾不及时报警将造成重大损失的场所,不宜选择点型感温火灾探测器;温度在0 ℃以下的场所,不宜选择定温探测器;温度变化较大的场所,不宜选择具有差温特性的探测器。
⑥符合下列条件之一的场所,宜选择点型火焰探测器或图像型火焰探测器:
a.火灾时有强烈的火焰辐射。
b.可能发生液体燃烧等无阴燃阶段的火灾。
c.需要对火焰做出快速反应。
⑦符合下列条件之一的场所,不宜选择点型火焰探测器和图像型火焰探测器:
a.在火焰出现前有浓烟扩散。
b.探测器的镜头易被污染。
c.探测器的“视线”易被油雾、烟雾、水雾和冰雪遮挡。
d.探测区域内的可燃物是金属和无机物。
e.探测器易受阳光、白炽灯等光源直接或间接照射。
⑧探测区域内正常情况下有高温物体的场所,不宜选择单波段红外火焰探测器。
⑨正常情况下有明火作业,探测器易受X射线、弧光和闪电等影响的场所,不宜选择紫外火焰探测器。
⑩下列场所应选择可燃气体探测器:
a.使用可燃气体的场所。
b.燃气站和燃气表房以及存储液化石油气罐的场所。
c.其他散发可燃气体和可燃蒸气的场所。
⑪在火灾初期产生一氧化碳的下列场所可选择点型一氧化碳火灾探测器:
a.烟不容易对流或顶棚下方有热屏障的场所。
b.在棚顶上无法安装其他点型火灾探测器的场所。
c.需要多信号复合报警的场所。
⑫污物较多且必须安装感烟火灾探测器的场所,应选择间断吸气的点型采样吸气式感烟火灾探测器或具有过滤网和管路自清洗功能的管路采样吸气式感烟火灾探测器。点型火灾探测器的适用场所见表2.6。
表2.6 点型探测器的适用场所或情形一览表
续表
续表
续表
(2)线型火灾探测器的选择
①无遮挡的大空间或有特殊要求的房间,宜选择线型光束感烟火灾探测器。
②符合下列条件之一的场所,不宜选择线型光束感烟火灾探测器:
a.有大量粉尘、水雾滞留。
b.可能产生蒸气和油雾。
c.在正常情况下有烟滞留。
d.固定探测器的建筑结构由于振动等原因会产生较大位移的场所。
③下列场所或部位,宜选择缆式线型感温火灾探测器:
a.电缆隧道、电缆竖井、电缆夹层、电缆桥架。
b.不易安装点型探测器的夹层、闷顶。
c.各种皮带输送装置。
d.其他环境恶劣不适合点型探测器安装的场所。
④下列场所或部位,宜选择线型光纤感温火灾探测器:
a.除液化石油气外的石油储罐。
b.需要设置线型感温火灾探测器的易燃易爆场所。
c.需要监测环境温度的地下空间等场所宜设置具有实时温度监测功能的线型光纤感温火灾探测器。
d.公路隧道、敷设动力电缆的铁路隧道和城市地铁隧道等。
e.线型定温火灾探测器的选择,应保证其不动作温度符合设置场所的最高环境温度的要求。
(3)吸气式感烟火灾探测器的选择
①下列场所宜选择吸气式感烟火灾探测器:
a.具有高速气流的场所。
b.点型感烟、感温火灾探测器不适宜的大空间、舞台上方、建筑高度超过12 m或有特殊要求的场所。
c.低温场所。
d.需要进行隐蔽探测的场所。
e.需要进行火灾早期探测的重要场所。
f.人员不宜进入的场所。
②灰尘比较大的场所,不应选择没有过滤网和管路自清洗功能的管路采样式吸气感烟火灾探测器。
(4)根据房间高度选择探测器
房间高度不同,选择点型火灾探测器的类别也不同,见表2.7。
表2.7 不同高度的点型火灾探测器的选择
注:表中A1、A2、B、C、D、E、F、G为点型感温探测器的不同类别,其具体参数应符合《火灾自动报警系统设计规范》(GB 50116—2013)中的相关规定,见表2.8的规定。
表2.8 点型感温火灾探测器分类
不同探测区域内探
(1)探测器数量的确定
在实际工程中房间功能及探测区域大小不一,房间高度和棚顶坡度也测器的布置设计各异,应按规范确定探测器的数量。规范规定每个探测区域内至少设置一个火灾探测器。一个探测区域内所设置探测器的数量应按下式计算
式中 N ——一个探测区域内所设置的探测器的数量,单位用“个”表示, N 应取整数(小数进位取整)。
S ——一个探测区域的地面面积,m 2 。
A ——一个探测器的保护面积,m 2 ,指这个探测器能有效探测的地面面积,由于建筑物房间的地面通常为矩形,因此所谓“有效”探测器的地面面积实际上是指探测器能探测到矩形地面的面积。探测器的保护半径 R (m)是指一个探测器能有效探测的单向最大水平距离,感烟、感温探测器的保护面积和保护半径见表2.9。
k ——安全修正系数。容纳人数为10 000人以上的特级保护对象 k 取0.7~ 0.8,容纳人数为2 000~10 000人的一级保护对象 k 取值为0.8 ~ 0.9,容纳人数为500 ~2 000人的二级保护对象 k 取0.9~1.0。
选取时,根据设计者的实际经验,并考虑发生火灾后对人和财产的损失程度、火灾危险性大小、疏散、扑救火灾的难易程度及对社会的影响大小等多种因素。
表2.9 感烟、感温探测器的保护面积和保护半径
(2)探测器的布置
根据保护面积和保护半径确定最佳安装间距,见表2.10。
表2.10 最佳安装间距
续表
通风换气对感烟探测器的面积有影响,在通风换气房间,烟的自然蔓延方式被破坏。换气越频繁,燃烧产物(烟气体)的浓度越低,部分烟被空气带走,导致探测器接受烟量的减少,或者说探测器感烟灵敏度相对降低。常用的补偿方法有两种:一是压缩每个探测器的保护面积;二是增大探测器的灵敏度,但要注意防误报。感烟探测器保护面积的压缩系数见表2.11。可根据房间每小时换气次数( n ),将探测器的保护面积乘以一个压缩系数。
表2.11 感烟探测器保护面积的压缩系数表
【 实例 1】 设房间换气次数为50/ h ,感烟探测器的保护面积为80 m 2 ,考虑换气影响后,探测器的保护面积为: A = 80 m×0.6 m = 48 m 2 。
【 实例 2】 某高层教学楼的其中一个被划为一个探测区域的阶梯教室,其地面面积为30 m×40 m,房顶坡度角为13°,房间高度为8 m,属于二级保护对象,试求:①应选用何种类型的探测器?②探测器的数量有多少个?
解 :①根据使用场所从表2.6可知,选感烟或感温探测器均可,但按房间高度表由2.7可知,仅能选感烟探测器。
②由 K 的取值规定可知,因属二级保护对象故 k 取1,地面面积 S = 30 m ×40 m =1 200 m 2 >80 m 2 ,房间高度 h = 8 m,即6< h ≤12,房顶坡度角 θ 为13 ° ,即 θ ≤15°,于是根据表2.8得保护面积 A = 80 m 2 ,保护半径 R = 6.7 m,所以
由上例可知:对探测器类型的确定必须全面考虑。确定了类型,数量也就被确定了。那么数量确定之后如何布置、安装及在有梁等特殊情况下探测区域怎样划分则是以下要解决的问题。
1)点型火灾探测器的布置
在平面图中布置点型火灾探测器时,需要先确定其安装间距,再考虑梁的影响及特殊场所探测器安装要求。
①确定探测器的安装间距。《火灾自动报警系统设计规范》(GB 50116—2013)中规定:探测器周围0.5 m内,不应有遮挡物(以确保探测效果);探测器至墙壁、梁边的水平距离,不应小于0.5 m。
探测器在房间中布置时,如果是多个探测器,那么两相邻探测器的水平距离和垂直距离称为安装间距,分别用 a 和 b 表示。
安装间距 a 、 b 的确定有以下几种方法。
a.计算法:根据从表中查得的保护面积 A 和保护半径 R ,计算直径 D = 2 R ,根据所算 D 值大小对应的保护面积 A ,在图2.45中曲线粗实线上取一点,此点所对应的数即为安装间距 a 、 b 值。在布置中,实际值不应大于查得的 a 、 b 值。
图2.45 探测器安装间距极限曲线
A ——探测器的保护面积,m 2 ;
a , b ——探测器的安装间距,m;
D 1 ~ D 11 ——在不同保护面积 A 和保护半径下确定探测器安装间距 a 、 b 的极限曲线;
Y , Z ——极限曲线的端点(在 Y 和 Z 两点间的曲线范围内,保护面积可得到充分利用)。
b.查表法。查表法是指根据探测器种类和数量直接从表2.10中查到适当的安装间距 a 和 b 值布置即可。
c.正方形组合布置法。这种方法的安装间距 a = b ,且完全无“死角”,但使用时受到房间尺寸及探测器数量多少的约束,很难合适。
②梁对探测器的影响(图2.46)。在有梁的顶棚上设置感烟探测器、感温探测器时,应符合下列规定:
a.当梁突出顶棚的高度小于200 mm时,可不计梁对探测器保护面积的影响。
图2.46 不同高度的房间梁对探测器设置的影响
b.当梁突出顶棚的高度为200~ 600 mm时,应按《火灾自动报警系统设计规范》(GB 50116—2013)中附录F、附录G确定梁对探测器保护面积的影响和一只探测器能够保护的梁间区域的个数。
c.当梁突出顶棚的高度超过600 mm时,被梁隔断的每个梁间区域至少应设置一只探测器。
d.当被梁隔断的区域面积超过一只探测器的保护面积时,被隔断的区域应按规范规定计算探测器的设置数量,见表2.12。
e.当梁间净距小于1 m时,可不计梁对探测器保护面积的影响。
③在宽度小于3 m的内走道顶棚上设置探测器时,宜居中布置。感温探测器的安装间距不应超过10 m;感烟探测器的安装间距不应超过15 m;探测器至端墙的距离不应大于探测器安装间距的一半,如图2.47所示。
④点型探测器至墙壁、梁边的水平距离,不应小于0.5 m。
⑤探测器周围0.5 m内,不应有遮挡物。
⑥房间被书架、设备或隔断等分隔,其顶部至顶棚或梁的距离小于房间净高的5%时,每个被隔开的部分至少应安装一只探测器。
⑦探测器至空调送风口边的水平距离不应小于1.5 m,并宜接近回风口安装。探测器至多孔送风顶棚孔口的水平距离不应小于0.5 m。
⑧当屋顶有热屏障时,感烟探测器下表面至顶棚或屋顶的距离,应符合表2.13的规定。
⑨点型探测器宜水平安装,当倾斜安装时,倾斜角不应大于45°。
表2.12 按梁间区域面积确定一只探测器保护的梁间区域的个数
表2.13 感烟探测器下表面至顶棚或屋顶的距离
图2.47 探测器在走廊中的布置
2)半径验证法
点型探测器布置完成后,可以采用半径法对布置的合理性进行验证。要保证探测区域内所有地面都在探测器保护半径以内,如图2.48所示。
图2.48 半径验证法一
在满足计算的前提下,当探测器的探测存在死角时,就必须增加探测器的数量到不存在死角时为止,如图2.49、图2.50所示。
图2.49 半径验证法二
图2.50 半径验证法三