购买
下载掌阅APP,畅读海量书库
立即打开
畅读海量书库
扫码下载掌阅APP

3.1 工艺图纸及材料准备

3.1.1 图纸识别

一、培训目标

(1)熟悉电缆路径平(断)面图的基本组成。

(2)掌握电缆路径平(断)面图的符号和标识。

(3)学会识别电缆路径平(断)面图中的错误和问题。

(4)掌握电缆路径平(断)面图的检查方法。

二、培训场所及设施

(一)培训场所

输、配电综合实训场,需配置一条电缆通道,至少具有电缆沟、槽盒、排管、顶管、隧道等敷设方式中的两种。

(二)培训设施

培训工具及器材如表3-1所示。

表3-1 培训工具及器材(每工位)

三、培训方式及时间

(一)培训方式

教师现场讲解、示范,学员进行技能操作训练,培训结束后进行理论考核与技能测试。

(二)培训与考核时间
1.培训时间

电缆路径平(断)面图的基本组成:0.5小时。

电缆路径平(断)面图的识读方法:0.5小时。

识别电缆路径平面图中的错误和问题:1小时。

根据电缆路径断面图进行现场验收:1小时。

分组技能操作训练:1小时。

技能测试:1小时。

合计:5小时。

2.考核时间

30分钟。

四、基础知识

(一)电缆路径平(断)面图相关知识

(1)电缆路径平(断)面图的组成元素。

(2)电缆路径平(断)面图的识图方法。

(3)根据电缆路径平(断)面图进行现场验收的方法。

(二)电缆路径平面图识图作业流程

作业前的准备→查看电缆路径平面图各要素→与现场结合补全缺失要素→检查电缆路径平面图各尺寸是否满足规范与标准→指出电缆路径平面图中的错误和问题→清理现场→工作结束。

(三)电缆路径断面图识图作业流程

作业前的准备→查看电缆路径断面图各要素→与现场对比确定现场对应的电缆路径断面图→检查电缆工井各尺寸是否与电缆路径断面图一致→回答答题纸问题,并指出现场与图纸不一致的地方→清理现场→工作结束。

五、技能培训步骤

(一)安全措施及风险点分析

培训及考核过程中,单人不要使用皮尺测量,防止皮尺被风刮起,导致人员与带电设备距离不足,造成触电风险。

(二)操作步骤
1.工作准备

对进场的仪器、工具器材进行检查,确保能正常使用,并整齐摆放。

工具器材要求质量合格、安全可靠、数量满足需要。

2.工作过程

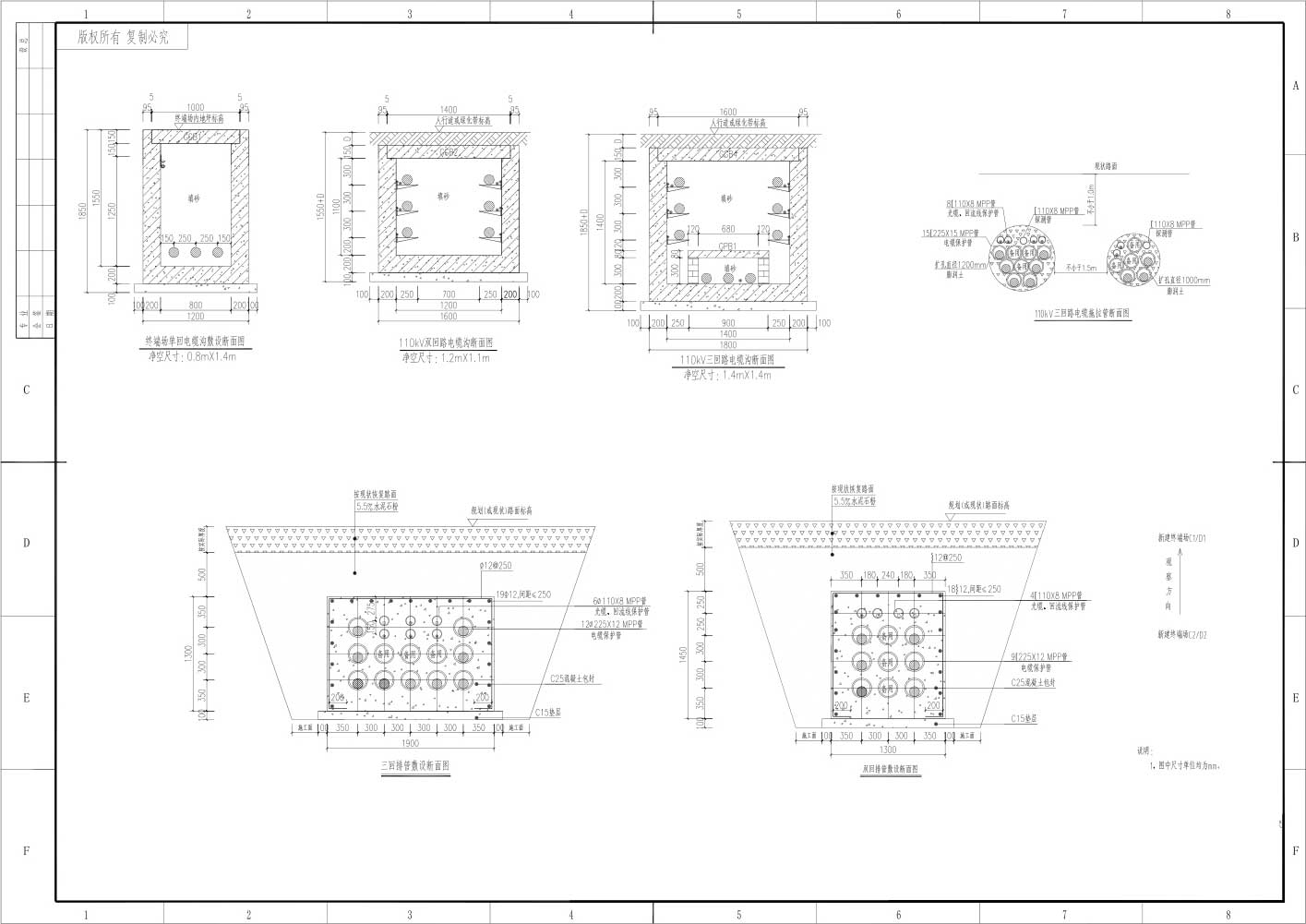
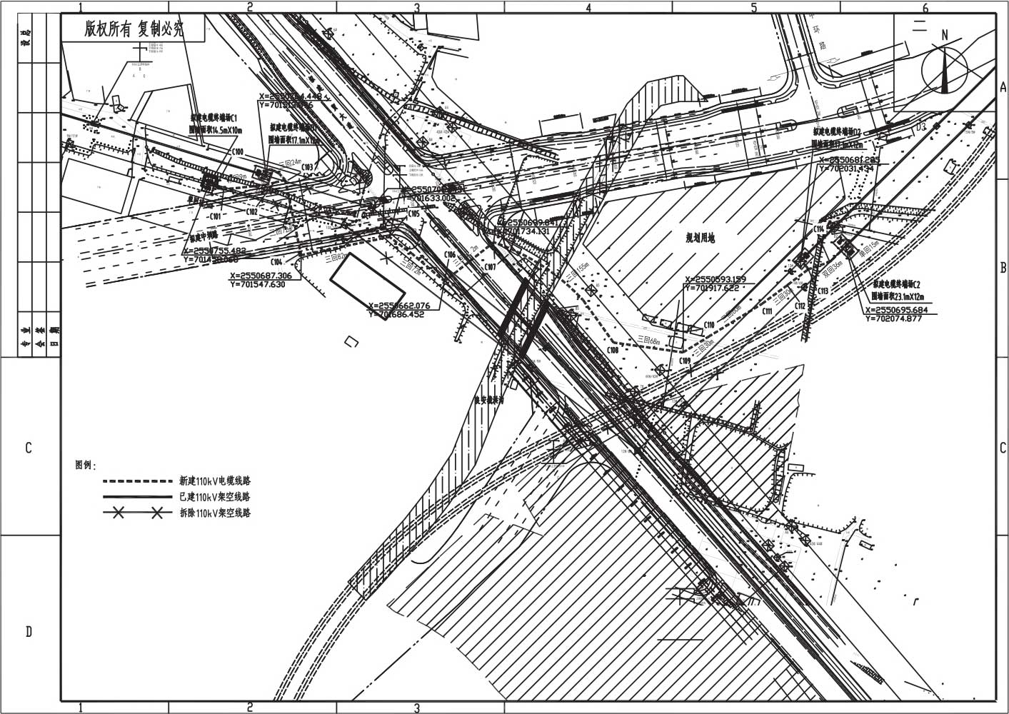
(1)检查工具器材外观,熟悉现场、电缆路径平(断)面图和考核题目。电缆路径平面图示意图如图3-1所示,电缆路径断面图示意图如图3-2所示。

(2)检查电缆路径平(断)面图要素。图纸格式方面,检查图纸的名称、图号、比例尺、指北针、图例(说明)等是否完整;内容方面,检查图纸终端场站、工井位置是否完整,检查电缆敷设方式是否清晰。

(3)正确识别电缆路径平面图并与现场对应,通过测量现场与图纸对应位置的长度,算出比例尺。比例尺=图纸尺寸/实际尺寸。

(4)确定敷设方式、敷设长度,并指出过渡工井在电缆路径平面图及现场的位置。

(5)核对电缆路径断面图,确定现场工井对应的电缆路径断面图。

(6)正确读取电缆路径断面图关键信息,通过现场测量的方式进行核对。核对要点包括:井深、井宽、井壁厚度;排管或顶管的管道数量、管径、壁厚;盖板的长、宽、高。

(7)确定现场对应的电缆路径断面图编号和两端敷设方式,通过观察,找到现场与图纸不一致的地方,如盖板数量、爬梯、集水井规格等。

图3-1 电缆路径平面图示意图

图3-2 电缆路径断面图示意图

3.工作结束

(1)工具器材整理归位。

(2)清理现场,工作结束,离场。

六、技能等级认证标准(评分)

电缆路径平面图考核评分记录表如表3-2所示。

表3-2 电缆路径平面图考核评分记录表

3.1.2 工具器材、材料准备及使用

一、培训目标

(1)了解电缆附件安装的基本流程。

(2)熟悉常用工具器材,并能正确选择和使用合适的工具器材。

(3)熟悉材料种类,并能根据要求选择合适的材料。

二、培训场所及设施

(一)培训场所

输电综合实训场。

(二)培训设施

培训工具及器材如表3-3所示。

表3-3 培训工具及器材(每个工位)

三、培训方式及时间

(一)培训方式

教师现场讲解、示范,学员进行技能操作训练,培训结束后进行理论考核与技能测试。

(二)培训与考核时间
1.培训时间

电缆附件安装工艺流程讲解:2小时。

电缆工具器材种类及用途讲解:1.5小时。

认识电缆附件安装所需材料:1小时。

分组技能操作训练:1小时。

技能测试:0.5小时。

合计:6小时。

2.考核时间

30分钟。

四、基础知识

(一)电缆附件安装的工具器材及材料选用
1.中间接头附件安装工艺

(1)准备工作及注意事项。

(2)电缆处理。

(3)加热校直。

(4)电缆绝缘屏蔽及电缆绝缘处理。

(5)套装零部件。

(6)压接连接管。

(7)安装屏蔽罩。

(8)橡胶绝缘件复位。

(9)电缆与接头外屏蔽处理。

(10)铜保护壳安装及处理。

(11)接地电缆连接。

(12)玻璃钢外壳安装。

2.中间接头附件安装主要材料

(1)绝缘带。

(2)半导电带。

(3)PVC带。

(4)热缩套。

(5)铜编织带。

(6)铝焊条。

(7)铅锡合金条。

(8)铜扎带。

(9)硅脂。

3.工具器材种类及用途

(1)钢尺:用于在安装电缆附件时量取尺寸。

(2)电缆加温校直机:用于电缆加热校直。

(3)钢锯:用于去除金属护套。

(4)电缆刨刀:用于剥除绝缘层。

(5)玻璃片:用于剥除外半导电层。

(6)燃气喷枪:用于电缆外护层剥除、热缩套处理、铜保护壳处理、预扩张管去除。

(7)压接钳:用于压接连接管。

(8)打磨机:用于电缆绝缘打磨。

(9)温湿度计:用于管控现场温度和湿度。

(10)电动兆欧表:用于开工前对电缆主绝缘本体和电缆外护层进行绝缘检测。

(二)电缆附件安装的工具器材及材料选用作业流程

作业前的准备→查看电缆附件安装工艺说明书和材料清册→根据电缆附件安装工艺说明书选择所需工具器材→根据材料清册检查电缆附件材料种类是否齐全→选择三种工具器材回答其用途→清理现场→工作结束。

五、技能培训步骤

1.工作准备

(1)现场准备:每个工位场地设置安全遮栏,在施工人员出入口向外悬挂“从此进出”标示牌,在遮栏四周向内悬挂“止步,高压危险”警示牌。

(2)工具器材及使用材料准备:对进场的工具器材进行检查,确保能正常使用,并整齐摆放,工具器材要求质量合格、安全可靠、数量满足需要。

2.工作结束

(1)工具器材整理归位。

(2)清理现场,工作结束,离场。

六、技能等级认证标准(评分)

电缆附件安装工具器材及材料选用考核评分记录表如表3-4所示。

表3-4 电缆附件安装工具器材及材料选用考核评分记录表

续表 aFlVOdMO2blzy/JfrplEv43rSCnGXI1tuPRnA2tFkhd189uxfAy03pukBW3uF1DT

点击中间区域
呼出菜单
上一章
目录
下一章
×