



(1)熟悉电缆路径平(断)面图的基本组成。
(2)掌握电缆路径平(断)面图的符号和标识。
(3)学会识别电缆路径平(断)面图中的错误和问题。
(4)掌握电缆路径平(断)面图的检查方法。
输、配电综合实训场,需配置一条电缆通道,至少具有电缆沟、槽盒、排管、顶管、隧道等敷设方式中的两种。
培训工具及器材如表3-1所示。
表3-1 培训工具及器材(每工位)
教师现场讲解、示范,学员进行技能操作训练,培训结束后进行理论考核与技能测试。
电缆路径平(断)面图的基本组成:0.5小时。
电缆路径平(断)面图的识读方法:0.5小时。
识别电缆路径平面图中的错误和问题:1小时。
根据电缆路径断面图进行现场验收:1小时。
分组技能操作训练:1小时。
技能测试:1小时。
合计:5小时。
30分钟。
(1)电缆路径平(断)面图的组成元素。
(2)电缆路径平(断)面图的识图方法。
(3)根据电缆路径平(断)面图进行现场验收的方法。
作业前的准备→查看电缆路径平面图各要素→与现场结合补全缺失要素→检查电缆路径平面图各尺寸是否满足规范与标准→指出电缆路径平面图中的错误和问题→清理现场→工作结束。
作业前的准备→查看电缆路径断面图各要素→与现场对比确定现场对应的电缆路径断面图→检查电缆工井各尺寸是否与电缆路径断面图一致→回答答题纸问题,并指出现场与图纸不一致的地方→清理现场→工作结束。
培训及考核过程中,单人不要使用皮尺测量,防止皮尺被风刮起,导致人员与带电设备距离不足,造成触电风险。
对进场的仪器、工具器材进行检查,确保能正常使用,并整齐摆放。
工具器材要求质量合格、安全可靠、数量满足需要。
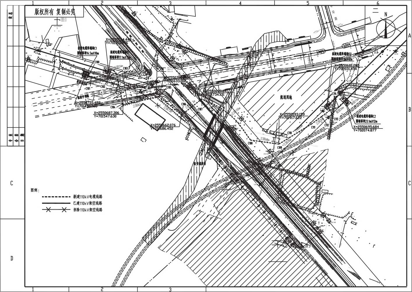
(1)检查工具器材外观,熟悉现场、电缆路径平(断)面图和考核题目。电缆路径平面图示意图如图3-1所示,电缆路径断面图示意图如图3-2所示。
(2)检查电缆路径平(断)面图要素。图纸格式方面,检查图纸的名称、图号、比例尺、指北针、图例(说明)等是否完整;内容方面,检查图纸终端场站、工井位置是否完整,检查电缆敷设方式是否清晰。
(3)正确识别电缆路径平面图并与现场对应,通过测量现场与图纸对应位置的长度,算出比例尺。比例尺=图纸尺寸/实际尺寸。
(4)确定敷设方式、敷设长度,并指出过渡工井在电缆路径平面图及现场的位置。
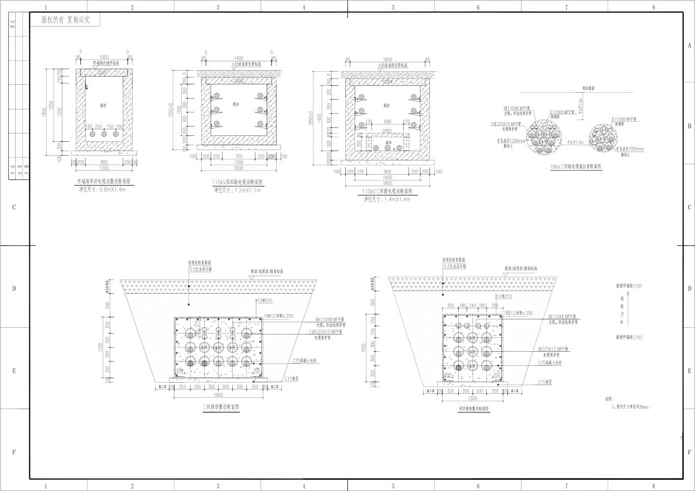
(5)核对电缆路径断面图,确定现场工井对应的电缆路径断面图。
(6)正确读取电缆路径断面图关键信息,通过现场测量的方式进行核对。核对要点包括:井深、井宽、井壁厚度;排管或顶管的管道数量、管径、壁厚;盖板的长、宽、高。
(7)确定现场对应的电缆路径断面图编号和两端敷设方式,通过观察,找到现场与图纸不一致的地方,如盖板数量、爬梯、集水井规格等。
图3-1 电缆路径平面图示意图
图3-2 电缆路径断面图示意图
(1)工具器材整理归位。
(2)清理现场,工作结束,离场。
电缆路径平面图考核评分记录表如表3-2所示。
表3-2 电缆路径平面图考核评分记录表
(1)了解电缆附件安装的基本流程。
(2)熟悉常用工具器材,并能正确选择和使用合适的工具器材。
(3)熟悉材料种类,并能根据要求选择合适的材料。
输电综合实训场。
培训工具及器材如表3-3所示。
表3-3 培训工具及器材(每个工位)
教师现场讲解、示范,学员进行技能操作训练,培训结束后进行理论考核与技能测试。
电缆附件安装工艺流程讲解:2小时。
电缆工具器材种类及用途讲解:1.5小时。
认识电缆附件安装所需材料:1小时。
分组技能操作训练:1小时。
技能测试:0.5小时。
合计:6小时。
30分钟。
(1)准备工作及注意事项。
(2)电缆处理。
(3)加热校直。
(4)电缆绝缘屏蔽及电缆绝缘处理。
(5)套装零部件。
(6)压接连接管。
(7)安装屏蔽罩。
(8)橡胶绝缘件复位。
(9)电缆与接头外屏蔽处理。
(10)铜保护壳安装及处理。
(11)接地电缆连接。
(12)玻璃钢外壳安装。
(1)绝缘带。
(2)半导电带。
(3)PVC带。
(4)热缩套。
(5)铜编织带。
(6)铝焊条。
(7)铅锡合金条。
(8)铜扎带。
(9)硅脂。
(1)钢尺:用于在安装电缆附件时量取尺寸。
(2)电缆加温校直机:用于电缆加热校直。
(3)钢锯:用于去除金属护套。
(4)电缆刨刀:用于剥除绝缘层。
(5)玻璃片:用于剥除外半导电层。
(6)燃气喷枪:用于电缆外护层剥除、热缩套处理、铜保护壳处理、预扩张管去除。
(7)压接钳:用于压接连接管。
(8)打磨机:用于电缆绝缘打磨。
(9)温湿度计:用于管控现场温度和湿度。
(10)电动兆欧表:用于开工前对电缆主绝缘本体和电缆外护层进行绝缘检测。
作业前的准备→查看电缆附件安装工艺说明书和材料清册→根据电缆附件安装工艺说明书选择所需工具器材→根据材料清册检查电缆附件材料种类是否齐全→选择三种工具器材回答其用途→清理现场→工作结束。
(1)现场准备:每个工位场地设置安全遮栏,在施工人员出入口向外悬挂“从此进出”标示牌,在遮栏四周向内悬挂“止步,高压危险”警示牌。
(2)工具器材及使用材料准备:对进场的工具器材进行检查,确保能正常使用,并整齐摆放,工具器材要求质量合格、安全可靠、数量满足需要。
(1)工具器材整理归位。
(2)清理现场,工作结束,离场。
电缆附件安装工具器材及材料选用考核评分记录表如表3-4所示。
表3-4 电缆附件安装工具器材及材料选用考核评分记录表
续表