



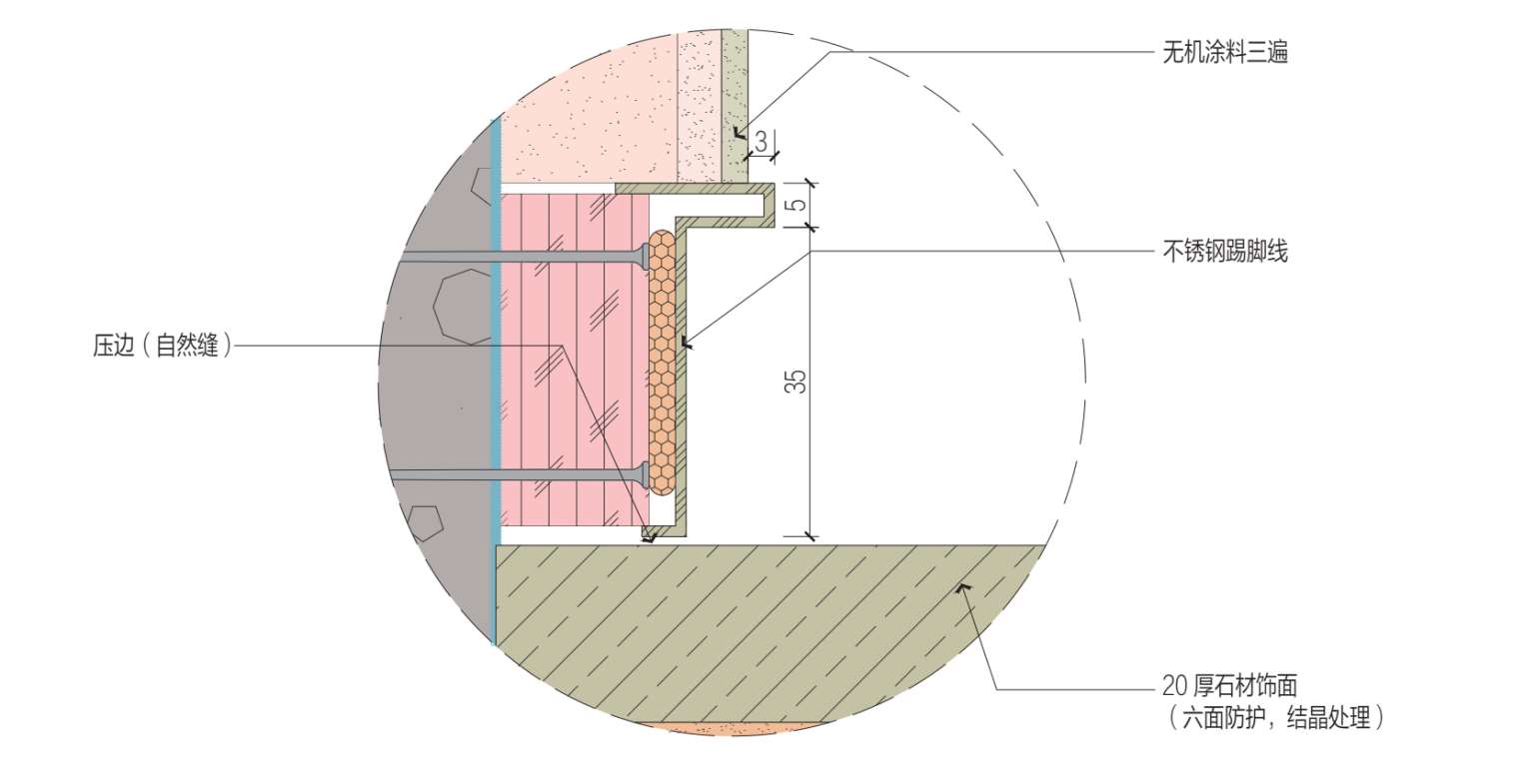
S 墙面涂料、不锈钢踢脚线与地面石材压边工艺
D 墙面涂料、不锈钢踢脚线与地面石材压边工艺大样图
墙面涂料与地面石材收口适用于会所、餐厅、办公室、医院等墙面与地面的装饰。这种组合可以营造舒适的氛围,带来温馨和专业的感觉,同时也能适应不同的装饰风格。
面层材料:无机涂料、不锈钢踢脚线、20 mm厚石材饰面。
基层材料:阻燃基层板、石材专用粘结剂、界面剂。
无机涂料
不锈钢踢脚线
石材饰面
阻燃基层板
石材专用粘结剂
界面剂
三维构造模型
收口“压”字诀:压接工艺讲先后,湿先干后有节奏;平压顺压变化多,一压百了往上扣。
1.图纸深化:明确不锈钢踢脚线与涂料墙面的收口节点,按照规范要求及使用功能进行综合机电点位排布定位。涂料墙面压不锈钢踢脚线,不锈钢踢脚线压地面石材。
2.技术交底:墙面在涂料施工之前,踢脚线基层应安装调平完毕,踢脚线基层与墙面涂料、地面石材之间预留3~5 mm宽的距离,便于后期不锈钢踢脚线面层安装,注意墙面涂料与踢脚线的进出关系。安装踢脚线面层时,墙根处地面石材应延伸至踢脚线完成面10~20 mm。
1.下单审核:厂家人员绘制的不锈钢踢脚线下单图应由驻场深化负责人员与施工负责人员共同审核,审核内容包括墙面涂料、不锈钢踢脚线、石材的物料编号、主要参数、尺寸、收口节点、图纸标高、定变量尺寸等信息。
2.现场交底:交底内容包括完成面放线尺寸、收口节点大样等关键内容,不锈钢踢脚线基层板安装位置应合理,施工应平整、牢固,墙根处地面石材应延伸至踢脚线完成面10~20 mm,避免出现质量隐患。
1.安装工序:
2.施工管控:材料进场应严格把控质量,规范验收。地面石材铺装要实时监测,出现偏差及时调整,确保成品效果“平、直、顺、齐、精、准”;墙根处地面石材铺贴完成后安装不锈钢踢脚线,不锈钢踢脚线与地面石材间预留1~2 mm宽自然缝。
3.品控质检:墙面涂料应把控整体墙面的平整度;地面石材铺贴平整且无色差,石材密拼缝隙宽度不得大于1 mm;不锈钢踢脚线折边加工时应进行90°刨槽处理,安装顺直且拼接处无明显焊点。
墙面涂料、不锈钢踢脚线压地面石材
S 墙面涂料、木踢脚线与地面石材压边工艺
D 墙面涂料、木踢脚线与地面石材压边工艺大样图
墙面涂料、木踢脚线与地面石材压边适用范围包括咖啡馆、餐厅、办公室、医院等墙面与地面的装饰,可营造舒适的氛围。这种组合可以带来温馨和专业的感觉,同时也能适应不同的装饰风格。
面层材料:无机涂料、木踢脚线、20 mm厚石材饰面。
基层材料:石材专用粘结剂、界面剂。
无机涂料
木踢脚线
石材饰面
石材专用粘结剂
界面剂
三维构造模型
收口“压”字诀:压接工艺讲先后,湿先干后有节奏;平压顺压变化多,一压百了往上扣。
1.图纸深化:明确木踢脚线与涂料墙面的收口节点,按照规范要求及使用功能进行综合机电点位排布定位。涂料墙面压木踢脚线,木踢脚线压地面石材。
2.技术交底:墙面在涂料施工之前,踢脚线基层应安装调平完毕,踢脚线基层与墙面涂料、地面石材之间预留3~5 mm宽的距离,便于后期安装木踢脚线面层,注意墙面涂料与踢脚线的进出关系。安装踢脚线面层时,墙根处地面石材应延伸至踢脚线完成面10~20 mm。
1.下单审核:厂家人员绘制的下单图应由驻场深化负责人员与施工负责人员共同审核,审核内容包括墙面涂料、木踢脚线、石材的物料编号、主要参数、尺寸、收口节点、图纸标高、定变量尺寸等信息。
2.现场交底:交底内容包括完成面放线尺寸、收口节点大样等关键内容,木踢脚线基层板安装位置应合理,施工应平整、牢固,墙根处地面石材应延伸至踢脚线完成面10~20 mm,避免出现质量隐患。
1.安装工序:
2.施工管控:材料进场应严格把控质量,规范验收。地面石材铺装要实时监测,出现偏差及时调整,确保成品效果“平、直、顺、齐、精、准”;墙根地面石材铺贴完成后安装木踢脚线,木踢脚线与地面石材间预留1~2 mm宽自然缝。
3.品控质检:墙面涂料应把控整体墙面的平整度;地面石材铺贴平整且无色差,石材密拼缝隙宽度不得大于1 mm。
墙面涂料、木踢脚线压地面石材