



随着山地城市发展进程的加快,为了高效构建多元化交通空间,高架桥梁在城市快速路、城市立交桥、轨道交通、综合交通枢纽等应用场景下得到了大量的工程实践。山地城市高架桥梁在提供安全、便捷、可靠的交通空间的同时,还具有拆迁占地少、工期短、可分期建设运行、维护费用低、投资效益比较高等诸多优点。本章选取了各个应用场景部分典型工程实践案例进行简要介绍。
呼和浩特市位于我国北部边境,是内蒙古自治区的首府,也是其政治、经济和文化中心,地处我国沿边开放和沿黄河经济开发轴带的交汇点上,地形地质条件比较复杂。呼和浩特市地貌特征主要包括中北部的大青山山地及其北麓丘陵地形、中部的土默川平原地形,以及东南部的黄土丘陵沟壑和蛮汉山山地地形。呼和浩特市是一座典型的北方傍山型山地城市。
呼和浩特市三环路工程是呼和浩特城市空间拓展的重大基础设施。工程起于罗家营立交,逆时针绕城,北段利用国道 110 改造新线,在台阁牧处,路线向南上跨G6 京藏高速,沿黄金大道向南,跨越京包铁路、小黑河、呼准铁路后,沿大黑河北岸向东,与科尔沁路交叉后,路线向南避让基本农田后沿现状堤岸路向东接至绕城高速,后沿绕城高速向北至国道 110,而后利用国道 110 至起点,闭合形成环,全长共 87.8 km(图 2.1)。
图 2.1 呼和浩特市三环路工程
呼和浩特市三环路工程由主线双向六车道高架桥和地面双向六车道辅路组成,整体定位为城市环路,其中高架层的定位为城市快速路,设计速度为 80 km / h;地面层的定位为城市主干路及城市景观大道,设计速度为50 km / h(图 2.2 至图 2.5)。呼和浩特市三环路工程主要功能包括 3 个方面:
图 2.2 地面层快速公交通道效果图
①形成城市交通外环,疏解市内交通,为城市现状路网整改创造更好条件;
②通过三环路工程的建设,整合起新的城市发展用地,进一步完善城市形态,拉开城市主框架;
③对接建设中的和林格尔新区区域交通组织的需求,形成新旧城区连接的交通纽带。
为了更好地发挥三环路工程的功能,三环路工程主线快速路大量采用了高架桥梁结构,包括主线高架桥、平行匝道高架桥和立交匝道高架桥等,其中新建主线高架桥全长 31.5 km,平行匝道和立交匝道高架桥共计 23.5 km,高架桥梁占项目总工程量的60%以上。同时,三环路道路环绕呼和浩特主城全域,地形条件复杂多变,地貌崎岖不平,成为山地城市中大规模应用高架桥梁的示范型工程。
图 2.3 小箱梁断面效果图
图 2.4 主线高架桥梁段效果图
图 2.5 钢箱梁跨域路口段效果图
本项目的高架桥梁工程分为主线高架桥、平行匝道桥及立交匝道桥 3 种类型。所有高架桥设计均遵循“安全可靠、适用耐久、经济合理、技术先进”的总体要求,并兼顾“利于环保、便于施工和养护”的原则来进行综合设计,力求达到“技术先进、经济合理”,并积极采用新结构、新工艺,反映新世纪高架桥梁建设水准,体现节约全寿命周期成本的理念。桥梁的功能性是本项目桥梁设计的根本指导思想,在满足功能的前提下,进一步提升桥梁的造型美观。
①道路等级:高架层为城市快速路;
②设计车速:高架层设计速度为 80 km / h;
③荷载等级:汽车荷载,城-A级;
④设计基准期及主体结构设计使用年限:100 年;
⑤抗震设计标准:根据《中国地震动参数区划图》(GB 18306—2015),反应谱特征周期: T = 0.35 s。地震基本烈度为 8 度,地震动峰值加速度: a = 0.20 g 。抗震措施等级为 9 度,抗震设防分类为乙类。
主线高架桥分为高架桥梁标准段和上跨交叉路口的节点桥两种类型。
主线高架桥梁标准段规模较大,具有等宽、直线(或大半径曲线)的特点。采用预制装配式结构,一方面可以实现桥梁上、下部结构同步施工,节省工期,保证外观质量,提升项目的绿色建造水准,另一方面有利于控制投资规模、提升工程经济性,降低桥梁施工对周边现状道路和环境的影响。呼和浩特市三环路主线高架桥桥下净空高度为8~10 m,采用 30 m跨径布置可取得最优的桥下空透感,结构比例合理,与周围环境协调,且工程量最省,因此主线高架桥主要采用 30 m主跨布置,局部路段通过设置 25 m主跨桥梁,以适应桥面分叉、变宽的需要,实现标准化主梁设计。预制小箱梁结构简单,采用工厂化预制,安装完成后现浇横向接缝,形成整体结构;同时,经济指标较低,结构刚度较大,抗扭性能较好,铺装较薄,对变宽段适应性强;对地面交通影响较小,线形美观、协调;便于机械化施工,施工速度快,上、下部平行作业,能有效控制工期,确保工程优质快速有序地进行。
由于呼和浩特市处于严寒地区,昼夜及季节性温差都较大,如果采用结构简支、桥面连续的形式,结构缝较多,后期由于温差造成的铺装开裂现象将会非常明显,影响桥梁的行车舒适性及观感。因此,呼和浩特市三环路高架桥采用先简支后结构连续预制小箱梁,尽量减少结构缝,从而避免结构缝处的铺装由于温差效应开裂。先简支后结构连续箱梁由于存在较大的负弯矩,往往在腹板变厚段的下缘压应力过大,在负弯矩钢束张拉位置的顶板上缘拉应力较大。针对连续梁的这一受力特点,将跨中外的钢束尽量上抬,以改善截面上、下缘的受力。
主线节点桥梁均上跨交叉路口,为保证交叉路口桥下行车安全,节点跨线桥跨径相对较大,一般在 50~60 m,采用钢箱-混凝土组合梁桥型。钢-混凝土组合梁截面中混凝土主要受压,钢梁受拉,充分发挥材料特性,承载力高。其强度高、刚度大、延性好,抗冲击、抗疲劳和抗震性能好,跨越能力强,有利于减小跨度内主梁的高度,结构自重轻,外形美观,并能较好适应道路平面线形,相对于钢梁节省钢材,降低造价,整体稳定性好。节点桥梁采用钢-混凝土组合梁,钢主梁与桥面板均采用预制的方式施工,预制完成后采用汽车运输的方式抵达桥位,采用汽车吊或者龙门吊安放,最大起重量可控制在 35 t以内。钢-混凝土组合梁通过抗剪连接件将钢梁与混凝土翼板组合在一起共同工作,可以充分发挥混凝土抗压强度高和钢材抗拉性能好的优势。钢-混凝土组合梁中的混凝土板可以对钢梁受压翼缘起到侧向约束作用,因而相对于纯钢梁具有更好的整体稳定性而不易发生侧扭失稳。
主线预制小箱梁下设置铅芯橡胶抗震支座。主线节点桥及立交匝道桥均采用双曲面球形抗震支座。
高架桥梁标准段和上跨交叉路口的节点桥下部结构采用带伸臂的门形框架墩+承台+群桩基础,标准段采用双柱式,桥面变宽段局部采用三柱或四柱式桥墩。桥墩盖梁采用预应力钢筋混凝土结构,墩柱采用矩形截面倒圆角,承台和桩基础采用钢筋混凝土结构,单个承台下设置 4 根钻孔灌注柱基础。现浇混凝土桥墩具有技术成熟、可靠性高、抗震性能优良、施工难度低、投资省的优点,推荐采用。
平行匝道桥梁桥跨布置采用 30 m预应力混凝土小箱梁,4 跨一联,先简支后结构连续设计。桥梁上部结构采用预制钢筋混凝土小箱梁结构,主梁由 3 片预制小箱梁组成,桥墩采用钢筋混凝土,墩柱采用花瓶墩形式。
承台采用钢筋混凝土。基础采用钢筋混凝土,群桩基础形式,单个承台下设置 2根桩基础,基础按照摩擦桩进行设计。现浇混凝土桥墩具有技术成熟、可靠性高、抗震性能优良、施工难度低、投资省的优点,推荐采用。
主线预制小箱梁下设置铅芯橡胶抗震支座。
预制小箱梁结构简单,采用工厂化预制,安装完成后现浇端横梁和横向接缝,形成整体桥,先简支后结构连续。经济指标较低,结构刚度较大,抗扭性能较好,铺装较薄,跨径较大,梁高适中,对变宽段适应性强;对地面交通影响较小,线形美观、协调;便于机械化施工,施工速度快,上、下部平行作业能有效控制工期,确保工程优质快速有序地进行。
立交匝道桥梁由于宽度变化范围大且大部分位于道路平曲线段,预制吊装施工较难适应上述条件,同时,本项目立交布置较为复杂,匝道穿越多条主线及现状道路,预制小箱梁采用不同跨度时,造价将大幅上升,因此本项目立交范围内匝道桥采用现浇预应力混凝土连续箱梁。现浇预应力混凝土连续箱梁体系为超静定结构,刚度大、行车舒适、养护容易。与简支体系相比较,受力合理,跨越能力更强,可以减小跨度内主梁的高度,降低结构自重,外形美观,并能较好适应道路平面曲线及宽度变化的要求。
道路曲线半径>60 m的立交匝道桥桥跨布置采用 4×30 m预应力混凝土连续箱梁,半径≤60 m的立交匝道桥桥跨布置采用 4×20 m普通钢筋混凝土连续箱梁。
上部结构采用预应力混凝土连续箱梁和普通钢筋混凝土连续箱梁,主梁采用斜腹式单箱单室箱梁。
桥墩采用普通钢筋混凝土结构。现浇混凝土桥墩具有技术成熟、可靠性高、抗震性能优良、施工难度低、投资省的优点,推荐采用。
承台及基础采用钢筋混凝土结构,群桩基础形式,单个承台下设置 2 根桩基础,基础按照摩擦桩进行设计。立交匝道桥梁均采用双曲面球形支座。
呼和浩特市三环路工程于 2018 年 5 月正式开工建设,并计划于 2022 年 10 月全面建成通车,其全线贯通将为将呼和浩特市内外城区交通网的全面形成奠定基础。
高架桥梁建设中,标准跨度高架桥上部结构箱梁采用预制吊装施工,吊装完成后施工后浇筑湿接缝。预制吊装小箱梁采用工厂化施工,构件的形式和尺寸可向标准化发展,有利于大规模工业化生产。该工艺能节省大量的支架和模板材料,模板可多次周转使用;梁体采用吊机或架桥机安放,无须支架施工,对桥下环境影响较小;预制安装速度快,工期能得到有效保证(图 2.6、图 2.7)。
图 2.6 预制小箱梁预制、架设
图 2.7 首片梁架设
高架桥梁建设中,立交匝道桥梁为现浇预应力混凝土连续箱梁,采用搭架现浇施工,施工简便、平稳、可靠,不需要大型起重设备。该工艺建造的桥梁构造简单,整体性好,施工中无体系转换,方便施工。
高架桥梁建设中,节点跨线桥梁采用钢-混凝土组合梁,其中钢梁在工厂制造,在现场拼装,混凝土板施工时,钢梁可以承担悬挂模板、混凝土板及施工荷载。该工艺无须设置支撑,可加快施工速度,对现状交通影响较小。
高架桥梁建设中所有下部结构桩基础均采用机械成孔灌注,桥墩墩身均采用搭架现浇施工,施工工艺成熟可靠(图 2.8)。
图 2.8 下部结构施工
重庆黄桷湾立交桥位于 3 条快速路(三横线、内环快速及机场专用高速)、一条市政道路相交的交通枢纽上,是连接朝天门大桥、慈母山隧道、内环高速、机场专用高速路的重要节点。工程场地东西向长约 1 km,南北向长约 1.2 km,地形相对高差达79 m;工程主要内容含 15 条匝道、全桥长 5.4 km,主要由预应力混凝土连续箱梁、钢箱梁、5 个高切坡和 17 处挡墙等组成。该工程总投资为 126 179.49 万元,包括工程费用57 994.08万元,其他费用 62 883.71 万元,预备费用 5 301.67 万元;其中,征地拆迁为54 717 万元。
(1)道路等级
峡江路:城市快速路;内环高速公路:城市快速路;机场高速公路:高速公路。
(2)设计时速
峡江路:60 km / h;内环高速公路:80 km / h;机场高速公路:80 km / h;立交匝道:35 km / h。
(3)标准桥面宽度
主线桥:0.5 m(防撞栏)+8.5 m(车行道)+0.5 m(防撞栏)+1.0 m(中央分隔带)+0.5 m(防撞栏)+8.5 m(车行道)+0.5 m(防撞栏)= 20 m。
单车道匝道:0.5 m(防撞栏)+6.0 m(车行道)+0.5 m(防撞栏)= 7.0 m。
双车道匝道:0.5 m(防撞栏)+8.0 m(车行道)+0.5 m(防撞栏)= 9.0 m。
(4)平曲线最小半径
主线≥1 044.750 m;匝道≥42.5 m。
(5)最大纵坡
主线:2.5%;匝道:5.8%(局部)。
(6)最小停车视距
主线:70 m;匝道:35 m。
(7)最小竖曲线半径
主线: R = 4 000 m;匝道: R = 700 m。
(8)设计荷载
车辆荷载:公路Ⅰ级。
(9)桥隧净空高度
桥隧净空高度:4.5 m(匝道)、5.0 m(机场高速I、E匝道)、5.5 m(内环高速公路)。
(10)设计年限
桥梁设计基准期为 100 年。
(11)抗震设防烈度
抗震设防烈度为 6 度,构造 7 度设防。
重庆黄桷湾立交桥是国、内外少见的由 3 条快速路(三横线、机场专用高速、内环高速)相交形成的枢纽型立交;并保留了内环高速与弹广路的连接系统,8 个主线交通流向,20 个转向交通流向,交通功能强大。本立交主线有 8 个交通流方向;新建及改建匝道达到 20 条。
重庆黄桷湾立交桥由于交通功能特别强大,设计总体思路是先要满足各方向的交通连接与转向功能。立交布设需要满足狭窄的带状地形条件,同时尽量降低工程造价,立交建设以满足主要交通流为主,对交通流量特别小的次要交通流予以精简,降低立交复杂程度。
交通功能决定了立交的复杂性,整个立交层数多、匝道数量多。设计采用了BIM技术对行车净空进行复核。交通识别性是设计的重点考虑内容。快速路主线转向交通采用单一出口,避免多出口导致的识别困难;每个分流点只有两个方向选择,均采用“一分二”的模式,易于识别。
重庆黄桷湾立交桥主要设计及效果图如图 2.9 至图 2.12 所示。
在满足交通功能的前提下,桥梁设计遵循“经济、实用、美观”的原则。
内环高速交通量很大,是市区非常重要的交通干线,对于与其相关的工法和桥梁结构的选择需要尽量考虑减少施工期间对内环高速通行的影响。
重庆黄桷湾立交桥梁设计原则:在施工期间一般不占车道、不占净空、不限高,施工期间应尽量减少对内环高速正常通行的影响,减少社会影响,实现和谐建设。
(1)采用了多种特殊工艺,保障施工期间既有交通正常通行
重庆黄桷湾立交桥跨越内环高速,由于立交规模大、匝道多、跨越次数多,有的匝道跨越内环高速路基,有的匝道跨越内环高速桥梁。
图 2.9 重庆黄桷湾立交桥交通流向图
图 2.10 重庆黄桷湾立交桥鸟瞰图
图 2.11 重庆黄桷湾立交桥局部结构实景图
为此,重庆黄桷湾立交桥施工采用了多种施工工艺:
①主线桥由于墩高,净空大,平面线型较顺直,采用少支架施工;
②B匝道和N匝道墩高,净空大,平曲线半径小,采用大跨门架现浇施工;
③F匝道桥由于跨越内环高速桥梁,施工期净空小,不宜采用门架现浇施工,宜采用顶推钢箱梁施工;
④M匝道跨越内环高速路基,采用吊装钢箱梁施工;
⑤机场快速通道跨越内环高速,采用钢盖梁门架和吊装施工。
(2)桥梁结构采用钢管混凝土格构柱、钢-混叠合梁等特殊结构适应现场复杂条件桥梁钢管采用了钢管混凝土格构柱。
重庆黄桷湾立交主线桥采用双跨跨越内环高速公路既有桥梁,在内环高速中分带设立桥墩存在以下几个方面的制约因素:
①主线桥跨径较大,长达 50 m;
②桥墩高,高达 36 m;
③斜交角度大,主线桥与内环高速公路桥斜交角度约 47°;
图 2.12 重庆黄桷湾立交全景图
④内环高速中分带空间小,净空间仅有 1.2 m。
由于以上制约因素的存在,采用常规的桥墩结构形式已不能满足结构受力、外形、美观、心理安全等综合要求。
如果采用圆截面混凝土桥墩,则由于桥墩截面尺寸太小,桥墩承载能力、裂缝宽度、结构稳定等受力要求均不能满足。如果采用矩形薄壁墩,桥墩横桥向截面尺寸可以加大,但是主线桥与内环高速斜交角度达 47°,桥墩弯扭耦合突出,桥墩截面受力严重不均匀,加上墩高、跨度大等综合因素的存在,使得矩形截面受力不能满足要求。
采用圆截面的钢管内填混凝土的组合结构则可有效解决这些问题。既可提高结构刚度和承载能力,也可适应各方向的受力要求。由于主线桥桥墩较高,桥墩长细比大,采用单肢钢管混凝土柱不能满足结构稳定要求。因此,采用双肢钢管混凝土填心组成的格构柱,双肢之间通过连接板进行连接。重庆黄桷湾立交桥中采用钢管混凝土格构柱具有以下优点:
①有效适应斜交桥桥墩受力方向变化问题,与钢筋混凝土结构相比,大大提高了结构承载力、延性、稳定性等综合力学指标。
②制作拼装简单,用钢量比钢结构少,造价较钢结构低。
③大大减小了结构尺寸,提供了有限空间下解决问题的方法。
④后期养护仅需要涂装钢管外表面,较钢结构简单,易维护,维护费用比钢结构低。
通过以上综合分析可知,主线桥桥墩采用钢管混凝土格构柱是本工程最适宜的方案。重庆黄桷湾立交桥采用钢管混凝土格构柱用于高墩大跨斜弯桥中的实践为在复杂条件限制下新建跨既有道路桥梁提供了一种新的解决方法,也为今后新建项目提供了重要参考。
(3)采用钢-混叠合梁
重庆黄桷湾立交桥因F、M匝道桥跨越内环高速公路,由于净空限制,若采用支架现浇则要求对桥下行车高度进行限制,而内环高速对行车要求高,影响大,协调困难,因此,不宜采用支架现浇工艺。 F、M匝道桥位于平曲线上,其中,M匝道半径仅 50 m。综上因素考虑,采用常规结构难以满足施工、交通等综合要求。
重庆黄桷湾立交桥若采用普通钢箱梁结构,则难以避免钢箱梁结构常见的系列问题:
①钢桥面沥青铺装易产生滑移、铺装破坏、腐蚀钢箱梁等;
②由于动载作用,易产生钢结构疲劳问题,特别是U肋开裂等;
③桥面附属设施构造与混凝土梁不统一,需独立设计和施工。
重庆黄桷湾立交桥若采用普通钢-混叠合箱梁结构,钢-混组合受力,易出现常见的系列问题:
①钢-混受力分配复杂,结合面常出现问题;
②温度梯度内力影响比较大。
重庆黄桷湾立交桥采用了以钢箱梁为主要受力构件,采用混凝土桥面板的组合结构,在很大程度上消除了上述结构产生的系列问题。
主要构造:钢箱梁+混凝土桥面板+沥青铺装,钢箱梁和钢筋混凝土桥面板之间采用剪力钉增强连接,桥面板内铺设钢筋网。
主线桥桥墩高度较高,全桥一联 30 m+35 m+40 m+35 m+40 m+50 m+40 m+35 m+33 m+40 m+40 m+35 m = 453 m。采用大量固接墩形式技能保证结构的整体刚度,共同抵抗水平力,避免个别高墩尺寸大,影响整体景观。因为采用估计体系,在设计时要关注温度、收缩、预应力等引起的变形对上部箱梁和墩柱的影响。
重庆黄桷湾立交桥主要设计如图 2.13 至图 2.19 所示。
图 2.13 桥型布置图(单位:cm)
图 2.14 施工流程图(单位:cm)
图 2.15 30m跨径箱梁一般构造图(单位:cm)
图 2.16 箱梁通用一般构造图(单位:cm)
图 2.17 35m跨径箱梁一般构造图(单位:cm)
图 2.18 标准断面构造图(单位:cm)
图 2.19 加厚断面构造图(单位:cm)
温州北站交通枢纽站南大道工程(简称“站南大道”)起点位于黄田大道(41 省道),向东延伸,经温州北站,止于环江路,终点接诸永高速公路延伸线。项目设计采用“地面辅道+主线地下通道+主线高架”等形式,道路全长约 1.52 km。
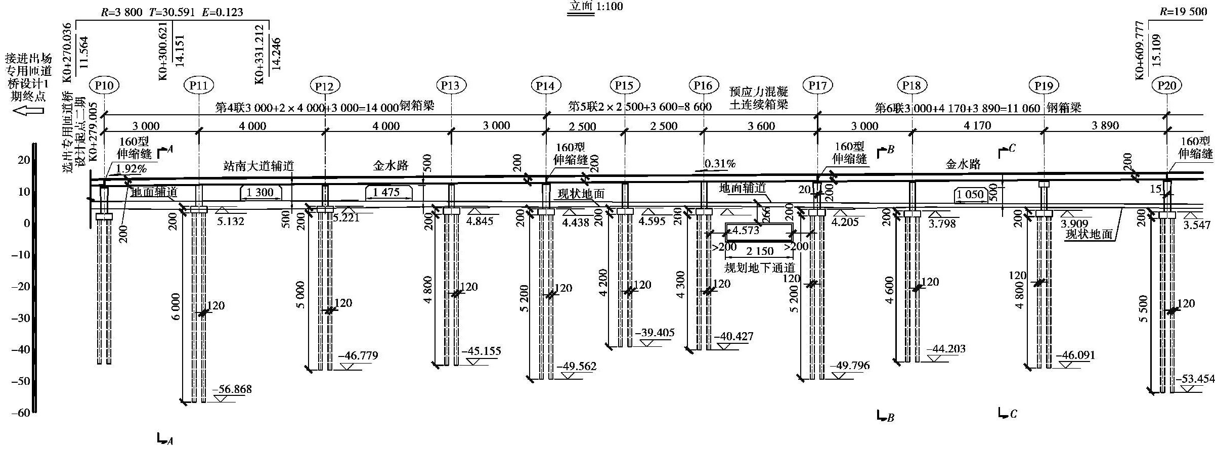
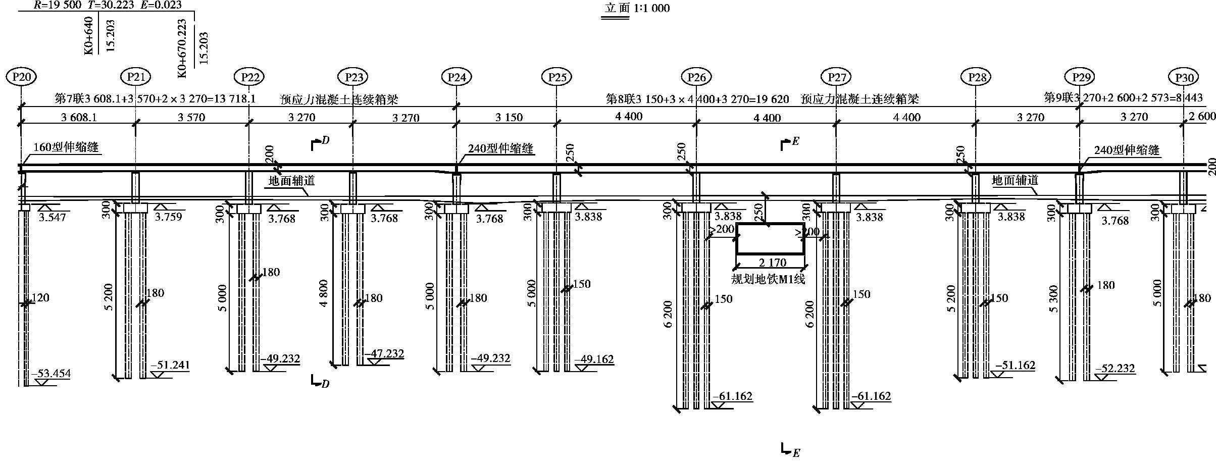
站南大道桥梁工程含主线高架桥梁、进出场专用通道桥及 4 座匝道桥。主线高架桥呈东西走向,跨越环江路,东接诸永高速连接线;桥梁分两幅布设,左幅全长179.928 m,右幅全长 179.192 m,左幅桥梁跨径布置为(1×30)m+(2×32+31.388) m+(1×52)m,右幅桥梁跨径布置为(1×30)m+(2×32+30.652)m+(1×52)m,采用现浇预应力混凝土连续梁、钢混组合梁。进出场专用匝道桥先后跨越站南大道辅道、金水路、规划地下通道、规划地铁M1 线、金田路、站南大道辅道,全长 1 449.325 m,跨径布置为(2×30) m +(4× 30) m +(3 × 33) m +(30 + 2 × 40 + 30) m +(2 × 25 + 36) m + (30 + 41.5 +39.097)m+(35.516+35.7+2×32.7) m+(31.5+3×44+32.7) m+(32.7+26+25.793) m+18.879 m+(3×21+22)m+(4×32.7)m+(26.2+33+30)m+(3×30)m,上部结构共分十四联,采用现浇预应力混凝土连续梁、现浇钢筋混凝土连续梁、钢箱梁。配套匝道 2 条,其中,1#匝道道路全长约 0.348 km,4#匝道道路全长约 0.187 km;站南大道平行匝道 2条,2#匝道道路全长约 0.098 km,3#匝道道路全长约 0.178 km。
①道路等级。站南大道:城市主干路;进出场专用匝道、1#~4#匝道:匝道。
②设计速度。站南大道主线:60 km / h;站南大道辅道:40 km / h;进出场专用匝道:35 km / h;1#匝道、2#匝道、3#匝道、4#匝道:30 km / h。
③设计荷载。高架桥及匝道桥:城-A级,人群荷载及非机动车道荷载按《城市桥梁设计规范》(CJJ 11—2011)第 10.0.5 条规定取值。
④桥梁结构设计基准期:100 年。
⑤桥梁设计使用年限。站南大道主线桥、进出场专用匝道桥、1#匝道、4#匝道、5#匝道:100 年;2#匝道、3#匝道:50 年。
⑥桥梁设计安全等级:一级。
⑦桥梁结构混凝土耐久性要求:环境类别Ⅰ。
⑧防撞护栏设计标准:高架桥边护栏SS级。
⑨抗震设计:抗震设防烈度设计为 7 度,水平向设计基本地震动加速度峰值0.1 g ,桥梁抗震设防类别为丙类,桥梁抗震设计方法为C类。
⑩台后填土高度:按≤2.5 m控制。
⑪桥下道路通车净空:≥5 m。
⑫设计洪水频率: P = 1 /100。
⑬桥面防水等级:桥面防水等级为Ⅰ级,防水层使用年限大于或等于 15 年。
①桥梁的结构形式应充分考虑工程的可行性、可靠性和社会经济效益等因素,因地制宜,结合本工程范围内的地形地物、河道、航道等情况,合理布置,在保证交通功能的前提下,做到技术合理、工艺先进。在此总体要求的基础上,注重桥梁景观及与周边环境相协调。
②在贯彻工程性能良好、经济、安全、合理、满足道路交通功能总体要求的基础上,进一步优化桥梁结构建筑的美观性,优化桥梁与城市发展的协调性。
③桥梁跨相交道路,跨径布置应结合桥梁功能和环境景观要求,尽量降低对地面交通的通行影响,满足道路通行净空要求,并应适当加大净空,以降低桥梁墩柱结构造成的行车和行人过交叉口处的视线干扰,提高行车和行人的通行安全。
④高架桥结构设计在充分考虑结构安全的基础上,注重结构的耐久性和行车舒适性,尽量选择刚度大的混凝土结构形式。
⑤桥梁设计须处理好桥面铺装、伸缩缝、支座及排水系统等附属设施的设计和产品的应用,以提高其耐久性和抗震能力,满足运营阶段行车的平顺、舒适、快速、安全的要求,降低桥面运营、养护费用。
⑥树立全寿命周期成本的设计理念,桥梁方案的选择不仅注重节约工程造价,而且应尽量减少后期养护费用,提高桥梁结构的综合服务能力。
⑦充分注意桥梁结构与现状以及规划建筑物、管线的协调,将施工期间对交通、环境的影响降到最小,体现以人为本的设计理念,尽量减少管线的搬迁量以及对现有建筑的影响,节约成本。
⑧桥梁形式的选择应充分考虑施工工艺,选择工艺成熟、经济合理、技术可靠的施工方法。结构设计满足同步施工的要求,力求缩短施工工期,降低对周边环境的影响,从而降低造价。
站南大道主要设计及效果如图 2.20 至图 2.27 所示。
图 2.20 项目总平图
图 2.21 站南大道(黄田大道—金钥路)标准横断面图(单位:m)
图 2.22 站南大道(金钥路-金田路)标准横断面图(单位:cm)
图 2.23 站南大道(雅林路-环江路)标准横断面图(单位:cm)
图 2.24 典型桥梁横断面图(单位:cm)
本次总体设计思路紧扣生态宜居、高效和谐,人脉与品质、创新与活力的主题,本着实用、安全、经济、美观的原则,合理选材,优化设计方案,对工程造价进行合理控制。综合考虑设计、施工的成熟工艺和经验,基于河网水系的自然格局,并依托城市干路系统的构架,打造以高铁新城为核心的开放空间系统布局,同时积极配置与之互动关联的公共设施,引导建立区域中心空间和核心场所,以宜居的生活环境、健康的生态基质和方便舒适的交通出行,提升城市综合品质。
图 2.25 高架桥鸟瞰图
图 2.26 匝道桥透视图
图 2.27 项目起点透视图
①本项目高架桥梁典型上部结构采用斜腹板现浇箱梁,底板面积小、自重轻、对跨中截面有利,结构受力合理;对应桥墩盖梁宽度较小,节省下部结构造价;结构高度层次变化,视觉效果好。
②下部结构采用花瓶形的双柱式墩柱,降低墩柱所占地面辅道的空间,有利于地面辅道的设置,合理利用桥下空间。在确保结构受力合理的同时,兼具曲线的协调柔美,与上部箱梁结构协调,景观效果较好。
③对于交叉口处小半径曲线梁采用钢箱梁,上下部可同时施工,节省工期;梁高较低,满足净空要求;自重较轻,有利于节约下部结构造价。
④局部交叉口为保证匝道平面线型流畅,条件允许均采用偏心墩设计,避免采用门架墩设计,大大优化了下部结构造价,减少工期,并增加景观效果。
⑤项目起点跨环江路段,为保证施工期间地面道路畅通,采用钢混组合梁设计,从而避免了落地支架的使用。
站南大道桥梁上部结构主要采用现浇预应力混凝土箱梁,平交口处采用钢混组合梁、钢箱梁;下部结构主要采用花瓶墩、柱式墩,承台桩基础;上、下部结构均较简单,受力明确。
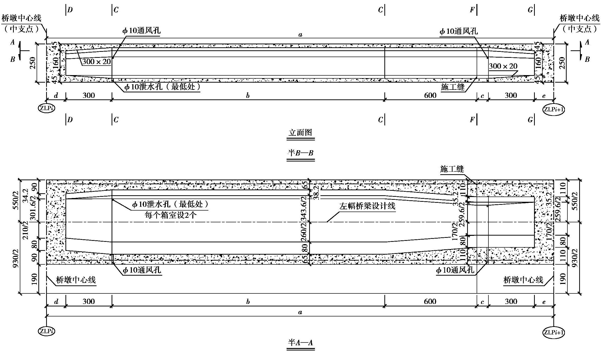
站南大道主要设计简图如图 2.28 至图 2.35 所示(图中除高程单位为m外,其余单位为cm)。
图 2.28 站南大道桥立面图
图 2.29 站南大道桥断面图
图 2.30 进出场专用通道桥型图(1期)
图 2.31 进出场专用通道桥型图(2期)(P10~P20)
图 2.32 进出场专用通道桥型图(2期)(P20~P30)
图 2.33 进出场专用通道桥型图(2期)(P30~P42)
图 2.34 进出场专用通道桥型图(2期)(P42~P47)
图 2.35 进出场专用通道桥断面图(单位:cm)
重庆轨道交通 18 号线工程为线网中的一条南北向轨道交通干线。工程起点为富华路站,途经渝中区、九龙坡区、巴南区和大渡口区,串联大杨石、李家沱和大渡口组团,止于跳磴南站。线路主要沿虎歇路、奥韵路、石坪桥正街、杨九路、黄桷坪正街、内环高速、白居寺长江大桥、在建中坝路和华福大道敷设。
线路全长约 29.016 km,设跨江大桥 2 座。其中,地下线长约 18.712 km、高架线长约 9.544 km,地面线长约 0.760 km。全线共设车站 19 座(地下站 12 座,高架站 7 座),其中,换乘站 8 座,平均站间距为 1.568 km。最小站间距为 0.864 km,位于四川美术学院站至重庆发电厂站区间,最大站间距为 2.290 km,位于金鳌山站至跳磴站区间。本工程设金鳌寺车辆段和富华路停车场各 1 座,新建电厂主变 1 座,利用既有 2 号线白居寺主变 1 座。
①使用年限:桥梁主体结构使用年限为 100 年,钢结构防腐体系使用年限为20 年。
②建筑限界:直线地段应满足最小线间距要求,曲线地段及岔线段按规定予以加宽,同时考虑桥上应为其他专业的管线、设备的设置预留位置。
③桥下净空:跨越公路,最小净空高度 5.50 m;跨越城市道路机动车道,最小净空高度 4.8 m。
④线路及间距:正线标准线间距 5.2 m,曲线断线间距根据线路半径调整;出入线线间距 5.0 m。
⑤车型:车辆形成采用国标As型车,列车编组为 6 辆(远期 7 辆)。车辆最大轴重 150 kN,最小轴重 80 kN。
⑥轨道:全线设计标准按一次铺设无缝线路,区间高架供电采用架空接触网的方式。
⑦最大设计时速:100 km / h。
⑧桥梁抗震设防烈度:按《地铁设计规范》(GB 50157—2013),本线高架桥抗震设防类别为B类。抗震设防措施等级为 7 级。
⑨跨越河流、航道要求:净空满足排洪、通航净空要求。桥梁设计洪水频率标准为1 /100,技术复杂,修复困难的大桥、特大桥应按 1 /300 洪水频率标准进行检算。
⑩后期徐变拱度:预应力混凝土梁的后期徐变上拱和挠度,应严格控制。线路铺设完成后,跨度小于或等于 50 m时,竖向残余徐变变形不超过 10 mm;当跨度大于50 m时,竖向徐变残余变形不超过 L / 5 000 且不超过 20 mm。按照《铁路桥涵设计规范》(TB 10002—2017)第 5.2.2(3)条相关规定执行。
⑪刚度要求:铺设无缝线路及无砟轨道桥梁的桥墩纵向水平刚度限制按下列规定采用。
桥上铺设无缝线路且无钢轨伸缩调节器的双线及多线简支梁桥,当不作计算时,其桥墩的墩顶纵向最小水平线刚度限值,可按表 2.1 的规定取值。单线桥梁桥墩纵向水平线刚度取用表中值的 0.6。
表 2.1 桥墩墩顶纵向水平线刚度限值
高架结构桥墩墩顶弹性水平位移应满足:
顺桥向:
横桥向:
⑫竖向挠度要求:钢筋混凝土及预应力混凝土梁式桥跨结构在列车静活载作用下,其竖向挠度满足下列规定:当跨度 L ≤30 m,挠度值 f ≤ L / 2 000;当跨度 30< L ≤60,挠度值 f ≤ L / 1 500。
⑬向挠度要求在列车横向摇摆力、离心力、风力和温度力的作用下,桥跨结构梁体的横向水平挠度不宜大于计算跨度的 1 /4 000。当不能满足时,应根据风-车-桥系统耦合振动分析的结果确定。
⑭高架结构墩台基础沉降:应按恒载计算,结构强迫位移按 5 mm考虑。
重庆轨道交通 18 号线区间高架段总长 8 544.115 m(不含白居寺长江大桥及李家沱复线桥)。长江二桥站—外河坪北站区间,简家槽站—茄子溪站区间,白居寺站—伏牛溪站区间高架段与地下段或者路基段交错布置,且体量较小(3 个区间桥梁总长760.834 m),设计根据地形及边界条件采用变截面悬浇(跨越花溪河节点桥),连续梁或简支梁等现浇工艺,该部分高架段下部结构采用花瓶墩形式及群桩基础。
伏牛溪站至终点(3 个区间+1 个折返线+出入线段)全部为高架段,结构形式为混凝土连续刚构方案标段采用预制节段拼装方式施工。端头块节段长度 1.5 m,渐变节段块节段长度为 2.6 m,标准节段块节段长度为 2.6 m。一跨中含 2 个端头块、2 个渐变节段块及 10 个标准节段块,节段采用密齿型剪力件,环氧树脂接缝。节段预制拼装下部结构桥墩采用双肢薄臂墩,基础采用承台加群桩基础。
重庆轨道 18 号线主要设计及效果图如图 2.36、图 2.37 所示。
图 2.36 重庆轨道 18 号线区间高架桥效果图
图 2.37 重庆轨道 18 号线区间高架桥截面效果图
高架结构总体设计必须同时满足两大功能性要求,即高架结构的实用功能性和高架结构的景观功能性,同时还要注重高架结构的“绿色生态”特征。实用功能性是指高架结构的可实施性、高架结构的安全性、高架结构的交通功能性(特别强调乘客的行车舒适性指标)、高架结构的耐久性、高架结构的低维护性、高架结构的造价合理性;景观功能性是指高架结构自身的建筑美之功能,以及其与周边城市环境的相互和谐与提升之美,“绿色生态”特征是指高架结构在施工及运营过程中采用先进工艺,力求达到少噪声、少扬尘、少影响交通,快速施工、标准化施工等。
伏牛溪站以北由于高架段不连续,因此无法发挥预制工艺的规模优势,使用预制工艺成本较高,可采用常规的现浇工艺。
伏牛溪站以南基本全为高架段,能充分发挥预制工艺的规模优势,其结构采用无支座全固接体系,箱梁采用节段预制拼装形式。该体系具有以下特点:
①全固接连续刚构结构可降低结构自重,提高结构效率,行车舒适性好;
②采用双肢薄臂墩的全固结体系能充分利用各个墩柱的刚度,以体系刚度代替一般连续梁只靠固定墩提供的全联刚度,能降低墩柱截面,减少混凝土用量。
③无支座体系后期使用基本不用维护,可降低后期管养成本。
采用短线法预制箱梁节段(每节段长为 2.6 m),以响应国家提出的绿色建筑,工业化建造的号召。由于节段短,质量小对运输车辆和道路无特殊要求,因此,预制场地的选址灵活;同时梁场内起吊,转运等机械均为一般吨位机械;梁场地基处理简单,一般压实硬化即可,大大降低了梁场的建设费用与建设周期。
这种结构体系采用无支座体系,在下部结构设计过程中墩柱既要满足轨道桥梁对刚度及变形的需求,又要避免结构因刚度过大导致温度、收缩、徐变、预应力等效应在桥墩上产生过大的内力,整个下部设计需要在刚度及强度之间取得平衡。
在上部节段预制箱梁施工工程中,各跨需要先在架桥机形成简支状态、落梁至临时支架、架桥机行走、该联各跨均放置在临时支架后再浇筑湿接缝、张拉合龙钢束、最后浇筑边墩墩梁固接混凝土成桥,施工工程中体系转换多。
同时在上、下部设计过程中要结合架桥机的行走、站位对箱梁及墩柱局部进行加强设计。
施工步骤如图 2.38 所示。
①箱梁设计简图如图 2.39 至图 2.42 所示。
②桥梁墩、台设计简图如图 2.43 至图 2.45 所示。
图 2.38 施工步骤图
图 2.39 主梁预应力钢筋步骤图(一)(单位:mm)
图 2.40 主梁预应力钢筋步骤图(二)(单位:mm)
图 2.41 主梁预应力钢筋步骤图(三)(单位:mm)
图 2.42 主梁断面构造图(单位:mm)
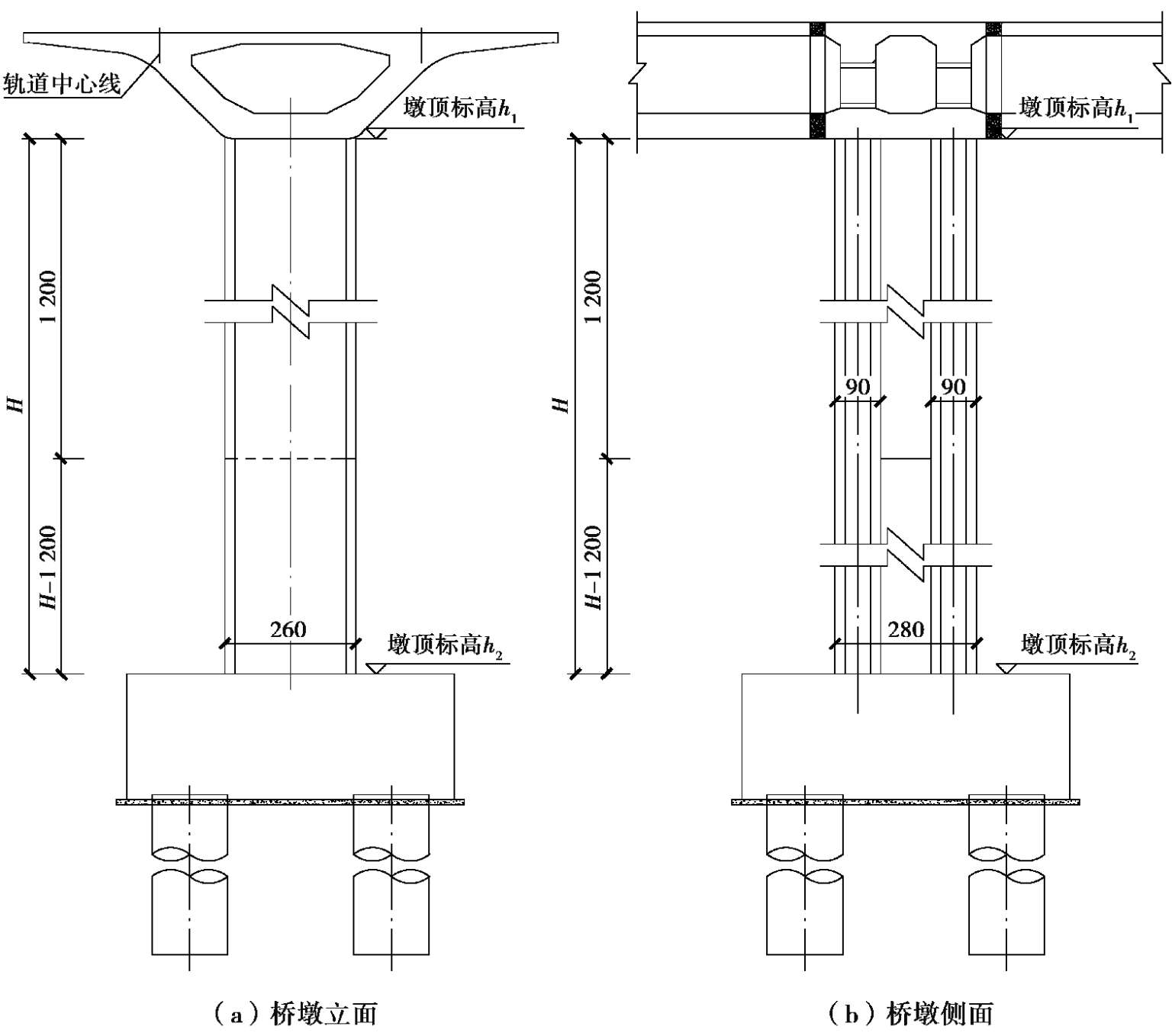
图 2.43 双线桥C类桥墩一般构造图(单位:cm)
图 2.44 基础构造图(单位:cm)
图 2.45 F类桥墩一般构造图(单位:cm)
南京至马鞍山城际铁路(简称“宁马城际铁路”)起自南京市西善桥站(含),沿宁芜公路、景明大街、江东大道敷设,有效串联南京板桥新城、滨江新城、马鞍山花山区、雨山区、当涂县,终点至马鞍山当涂南站(含)。
南京至马鞍山城际铁路全线长约 54.23 km,其中,地下线 11.48 km,高架线40.76 km,地面线 1.59 km,过渡段 0.40 km。共设 16 座车站,其中,地下站 4 座,地面站 1 座、高架站 11 座。
南京段:线路全长 26.51 km,其中,地下线 10.82 km,高架线 14.28 km,地面线1.01 km,过渡段 0.40 km。全线共设 8 座车站,其中,地下站 4 座、地面站 1 座、高架站3 座;设滨江车辆基地 1 座。
马鞍山段:线路全长 27.72 km,其中,高架线 26.48 km,山岭隧道段 0.66 km,路基段 0.58 km。全线共设 8 座车站,全部为高架站;设当涂南车辆段 1 座。
南京至马鞍山城际铁路(马鞍山段)09 标段工程起于试验工程(先开段)设计终点,终于设计终点,含出入线除路基段,如图 2.46 所示。里程范围:正线为下CK53+868.136 ~下CK66 + 533.946,全长 12 665.810 m;出入线为RCIK0 + 000 ~ RCIK1 +061.628,其中,RCIK0+000~RCIK0+126.628 段范围与正线共建,出入线全长 935 m。全线包括 3 个车站,即采石河站、当涂东站、当涂南站;涉及 5 个区间,试验工程(先开段)终点—采石河站、采石河站—当涂东站、当涂东站—当涂南站、当涂南站—设计终点、当涂南车辆段出入段线区间。线路绝大部分以高架形式敷设,在下穿巢马城际铁路正线、联络线、疏解线位置附近 424.919 m以地面线形式敷设,里程范围为下CK58+103.107~下CK58+528.026;在穿越白纻山位置时,以隧道和路基的形式敷设,里程范围为下CK63+262.526~下CK64+076.911,全长 814.385 m,其中,隧道长约 660 m;其余路段均以高架形式敷设。
南京至马鞍山城际铁路(马鞍山段)09 标段工程桥梁全长约 12 503.225 m,包含节点桥 25 座,共 4 241 m(含姑溪河特大桥 1 座 400 m),含左线单线桥 513.719 m,路基和隧道长 1 239.304 m。
图 2.46 南京至马鞍山城际铁路(马鞍山段)线路走向示意图
南京至马鞍山城际铁路(马鞍山段)09 标段桥梁提署路以北主要沿既有道路江东大道中央分隔带敷设,提署路以南主要沿现状农田和绿地敷设。沿途依次跨越采石河、规划超山路、规划黄梅山路、S24 常合高速公路、规划丁山路、长山东路、金山东路、明珠东路、预留路口、金山湖路、银塘河、釜山路、规划小桥河东支流、规划印王路、襄城河、太白东路、青莲东路、黄池东路、市场路、提署路、姑溪河及两岸防洪堤、涂山大道、青山路等多条现状(规划)道路及河流。沿途地下管线和高压线众多,两次跨越西气东输燃气管道。
江东大道呈南北纵向穿越马鞍山市,是马鞍山市主城区规划路网“五横一纵”中的一条重要的主干道,是城市绿化的景观风貌的景观大道之一,是城市对外交通的主要纽带之一。江东大道设计车速为 60 km / h,标准路幅宽为 60 m,具体横断面布置为:5.5 m(人行道)+5.5 m(非机动车道)+3.0 m(机非分隔带)+12.0 m(机动车道)+8.0 m(中央分隔带)+12.0 m(机动车道)+3.0 m(机非分隔带)+5.5 m(非机动车道)+5.5 m(人行道)= 60 m。南京至马鞍山城际铁路(马鞍山段)与江东大道的横断面关系如图2.47 所示。
图 2.47 沿江东大道走行段典型区间横断面图(单位:m)
(1)设计洪水频率
桥梁 1 /100,涵洞 1 /100,技术复杂、修复困难的特大桥采用 1 /300 检算。
(2)设计行车速度
速度目标值为 120 km / h。
(3)设计荷载
采用ZS荷载。
(4)线路最小曲线半径
最小曲线半径 R = 1 250 m。
(5)设计使用年限
桥梁主体结构按 100 年正常使用年限进行设计。
(6)建筑限界
①南京至马鞍山城际铁路桥梁限界满足市域铁路的相关要求。
②跨越城市公路时,按照《公路工程技术标准》(JTG B01—2014)的规定:
a.跨越高速公路的净高不小于 5.5 m;
b.跨越一级公路、二级公路的净高不小于 5.0 m;
c.跨越三级公路、四级公路的净高不小于 4.5 m。
③跨越城市道路时,按照《城市道路工程设计规范(2016 年版)》(CJJ 37—2012)的规定:
a.跨越城市快速路及主干路净高不小于 5.0 m;
b.跨越城市次干路净高不小于 4.5 m;
c.跨越城市支路净高不小于 4.0 m;
d.跨越非机动车道净高不小于 3.5 m。
(7)抗震设防烈度
抗震设防烈度Ⅵ度。
①南京至马鞍山城际铁路 09 标段工程含 3 个车站,涉及 5 个区间,其中,区间高架桥梁全长约 12.5 km,包含节点桥 25 座,共 4 241 m(含姑溪河特大桥 1 座,400 m),含左线单线桥 513.719 m,路基和隧道长约 1.24 km。
②高架区间桥梁大部分整体敷设在江东大道路中绿化带内,区间标准梁采用简支梁体系,标准跨度为 35 m,相较于连续体系,施工简单、对城市环境影响小,对道路占用及交通影响周期短。
③高架区间标准简支梁大量采用绿色建造技术,采用预制架设法施工,整孔预制吊装,梁上运梁,有效节约工期,减小对环境的影响,保障工程质量,白纻山隧道以南桥梁段约 3.27 km(含出入线桥 935 m),由于环境限制,不利于预制梁的运输和架设,采用支架现浇法施工。
④高架区间采用单箱单室大箱梁截面,其刚度大、整体性好、结构简单大方、施工方便、景观效果佳。
⑤高架区间路口和河流众多,跨一般路口和河流节点桥的跨径范围为 50~115 m,采用变截面连续梁(刚构)体系,封闭挂篮悬臂浇筑法施工。跨明珠东路节点桥 80 m采用下承式简支钢桁梁,支架拼装施工。
⑥高架区间标准梁采用花瓶墩形式,根据全线地质情况,采用桩基础作为本段桥梁的基础形式,桩底置于下部承载力较高的地层内。采用钻孔灌注桩,一般桥梁钻孔桩直径采用 ϕ 1.0~1.5 m,大跨特殊结构钻孔桩直径采用 ϕ 1.5~2.5 m。
主要效果图如图 2.48、图 2.49 所示。
图 2.48 宁马城际铁路区间高架横断面效果图
图 2.49 宁马城际铁路区间高架效果图
①桥梁结构设计与计算必须以地质勘查资料及国家有关规范、标准、规程为依据。桥梁结构的选型应满足安全、经济和美观的要求,并尽量采用标准化设计。
②结构必须保证施工和运营阶段具有足够的强度、刚度以及稳定性。
③桥梁选用的结构形式和材料,应满足抗震、减噪的要求,必要时根据环境影响评价要求设置隔声屏障,降低噪声污染。
④应认真考虑桥梁对城市景观、环境的影响,结合道路路幅、周边环境,选择经济合理的结构形式。
⑤桥梁结构及施工必须考虑对现有及规划城市交通的影响,并应将其影响降到最低限度,结合地面交通要求,选用适宜的结构形式和施工方法。高架桥与公路、铁路立交或跨越河流时,桥下净空应满足行车、排洪、通航的要求。
⑥桥梁的设计与施工应采用有效措施,控制梁的后期徐变和沉降,以满足整体道床无缝线路的要求。
⑦桥梁墩型的选定,除应满足结构自身受力要求外,需结合上部梁型,做到上下部结构和谐一致,同时还需着重从景观、视觉以及周边环境上考虑,尽量做到美观、大方,与周围环境协调一致。
⑧桥梁的桩基设计时,沉降应作为控制因素之一。应控制相邻桥墩间的沉降差。施工机具及工艺应考虑减小对周边环境的影响。
⑨结构设计除满足现行国家标准、规范、规定外,尚应满足地方有关规范及规定。
区间高架桥梁采用单箱单室大箱梁截面,整体刚度好,简洁大方;标准梁采用简支梁体系,预制架设工法施工,整孔预制吊装,梁上运梁;结构整体便于机械化施工,预制梁厂平均每天预制 2 片梁,每台架梁机平均每天架梁 2 片,可以有效节约工程工期,确保工程优质、快速、有序地进行。
由于本段多数沿江东大道中分带布设,采用梁场整体预制,运架施工的梁部施工方案,可以有效减少施工场地占用面积及占用空间,减小对城市交通的影响,在小曲线段以及局部运架受限、工期紧张地段,考虑采用现浇法施工。变截面连续梁(连续刚构)桥采用挂篮悬臂浇筑施工,道岔连续梁采用贝雷梁支架现浇施工,施工时桥下设防护。
主要设计简图如图 2.50 至图 2.57 所示。
图 2.50 桥面布置示意图(单位:cm)
图 2.51 35m预制简支梁构造图(单位:cm)
图 2.52 标准双线预制简支梁跨中截面(单位:cm)
图 2.53 标准双线预制简支梁支点截面(单位:cm)
图 2.54 1/2预应力钢筋力面布置图(单位:cm)
图 2.55 35 m预制简支梁钢束布置图(单位:cm)
图 2.56 双线简支梁典型基础构造图
图 2.57 双线简支梁典型桥墩构造图