



这里以U262-061N-4BVC10的封装为例,介绍使用嘉立创EDA专业版创建USB封装的步骤和操作方法。
(1)单击“文件—新建—封装”,弹出“新建封装”对话框,填写封装名称“USB-6”。
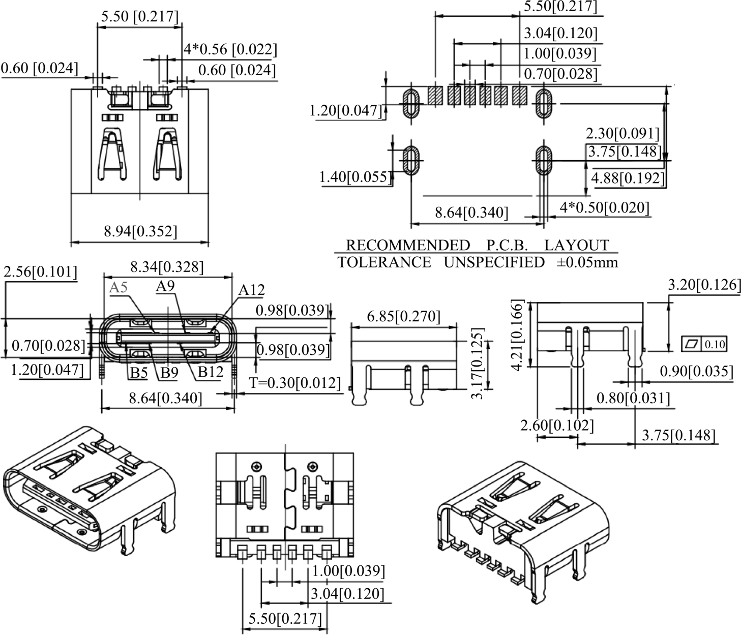
(2)下载U262-061N-4BVC10的数据手册;查看数据手册中的器件外形图,据此来创建它的PCB封装,如图4-36所示。
图4-36 U262-061N-4BVC10的数据手册
(3)通常制作封装焊盘的时候会加入补偿值;从图4-36所示的数据手册中可以看出右上角“RECOMMENDED P.C.B.LAYOUT”是补偿后的焊盘推荐图,可根据推荐图中尺寸和间距放置焊盘。
(4)先放置椭圆形定位焊盘,单击顶部工具栏中的条形多焊盘按钮“
”,放置条形多焊盘,竖向放置两个间距为3.75mm的焊盘;单击选中焊盘之后,在右侧栏更改属性,焊盘图层设置为多层,形状设置为长圆形,宽为1.1mm,高为2mm,钻孔形状设置为插槽,直径为0.5mm,长度为1.4mm。定位焊盘的属性如图4-37所示。
(5)选中第(4)步放置的焊盘,先单击“编辑—复制”,然后在空白处粘贴两个焊盘;选中一个焊盘单击“布局—偏移—相对偏移”,激活该指令后用鼠标光标单击(4)中放置好的焊盘中心,在对话框中填写偏移X为8.64mm,单击“确认”按钮,用同样的方法偏移第二个焊盘,如图4-38所示。
(6)设定焊盘中央点为器件原点,单击“放置—画布原点—从焊盘中央”。
图4-37 定位焊盘的属性
图4-38 相对偏移指令
(7)单击顶部工具栏中的条形多焊盘按钮“
”放置条形多焊盘,横向放置6个1mm间距的焊盘。先选中焊盘,然后在右侧栏中更改属性,焊盘图层设置为顶层,形状设置为矩形,宽为0.7mm,高为1.2mm。
(8)先选中焊盘,然后单击“布局—偏移—相对偏移”,选择对应参考点,单击椭圆通孔焊盘中心,输入偏移X为4.32mm,偏移Y为0.53mm,如图4-39所示。
从数据手册中可以看出1、6号焊盘的尺寸和间距比中间四个焊盘稍大,选中两边焊盘,在其属性对话框内分别设置宽为0.8mm,高为1.2mm。先选中焊盘,再单击“布局—偏移—绝对偏移”,将两边焊盘各向外偏移0.25mm,如图4-40所示。
图4-39 相对偏移指令
图4-40 绝对偏移指令
(9)按照数据手册,在顶层丝印层绘制器件本体丝印,此时要注意丝印到椭圆形焊盘中心的间距为2.3mm,如图4-41所示。
(10)根据数据手册更改焊盘编号,如图4-41所示。核对以上参数,单击“工具—检查尺寸”,查看封装各项间距,对照数据手册检查焊盘编号是否正确。所有设置完成后,封装即创建完成。
图4-41 创建完成的USB-6封装