



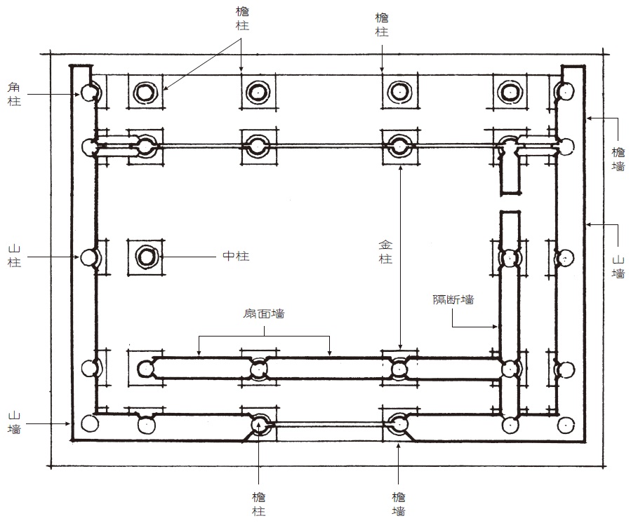
柱有五种位置(图三十八):(一)檐柱,凡是檐下最外一列的柱子都是。(二)金柱,在檐柱以内的柱子,除在建筑物纵中线上的都是。金柱又有里外之别,离檐柱近的是外金柱,远的是里金柱。重檐大殿里,在普通金柱的地位上,支着上檐的是重檐金柱。(三)在建筑物纵中线上,顶着屋脊,而不在山墙(即建筑物狭面的墙)里的是中柱。(四)在山墙的正中,一直顶到屋脊的是山柱。(五)放在横梁上,下端不着地,而上端的功用和位置与檐柱金柱相同的是童柱。
面阔进深是根据柱子的地位而定,而柱子的地位又是按柁梁之长短及重量的分配而定。所以大木的结构与平面的布置,相互有因果关系,而柱子之地位,足以影响到全部所有的结构。
柱子的下端立在地上,上端顶着柁梁;或垫着斗栱顶着柁梁。在每个柱头(即柱上端)与另一柱头之间,有连贯两柱间的横木叫额枋或檐枋,其长度按面阔。在较大的建筑物上,有用上下两层额枋的,叫做大额枋及小额枋(图三十九)。大小额枋之间有立着的板叫做由额垫板。大额枋的上皮与柱头平,其上再加上一层平板枋,枋上排列各攒斗栱,斗栱之上放梁,梁上放桁(亦称檩,大式称桁,小式称檩)。较小的建筑物不用斗栱,梁头直接放在柱上。梁头上放檐檩,柱头间则用檐枋连贯,檐檩与檐枋之间则加垫板,称檐垫板。按进深连贯两柱头间的横木,地位功用与额枋同的,叫随梁枋,但在小式大木,常只有梁而没有随梁枋。
图三十六 溜金斗栱
图中度量皆以斗口为单位。分件大小权衡见权衡尺寸表及插图。本图以单翘单昂为例,翘昂之数可以增减。起秤杆皆由蚂蚱头后带起。
图三十七 溜金斗栱(营造学社模型)
图三十八 墙柱位别图
若建筑物是重檐的,金柱须加高以支上檐。其柱头之间也有两层的额枋和垫板,不过大额枋改叫上额枋,小额枋上又加许多的洞以承受下檐的檐椽,叫做承椽枋(图四十)。
梁的功用是承受由上面桁檩传下的屋顶的重量,再向下传到柱上,然后下到地上去。在有廊的建筑上,主要的梁多半由前后两金柱承住;在金柱与檐柱之间,另有次要的短梁,在有斗栱的建筑中叫桃尖梁(图三十九),在无斗栱的建筑中叫抱头梁(图四十一)。这短梁并不承受上面的重量,其功用乃在将金柱与檐柱前后勾搭住,不过廊子太宽时,桃尖梁上还可以再加一根瓜柱,一条梁和一条桁。在这种情形之下,下层的叫双步梁,上层的叫单步梁,而双步梁除勾搭之外,也有载重的机能了。柱头科上既有桃尖梁头,便没有耍头和撑头(见本章第一节),桃尖梁头高合耍头和撑头两部合并的全高,所以桃尖梁的下皮是与平身斗栱耍头的下皮平的。桃尖梁宽六斗口,梁头则宽四斗口,柱头科坐斗上斗口宽加倍(二斗口)与梁头宽度尚差二斗口,所以自头翘或头昂以上,翘或昂嘴之宽须渐渐加大,直到与桃尖梁头同宽为度(图二十六)。抱头梁宽按檐柱径加二寸,梁头与梁身同宽(不像桃尖梁头之较小于梁身)。梁头做椀以承檐檩。
桃尖梁和抱头梁的下边,又有一条较小的梁,与桃尖梁及抱头梁平行,功用完全在增加檐柱与金柱间勾搭之力,以补大梁之不足,在桃尖梁下的叫桃尖随梁,在抱头梁下的叫穿插枋(图四十二),在角檐柱和角金柱间叫做斜插金枋。
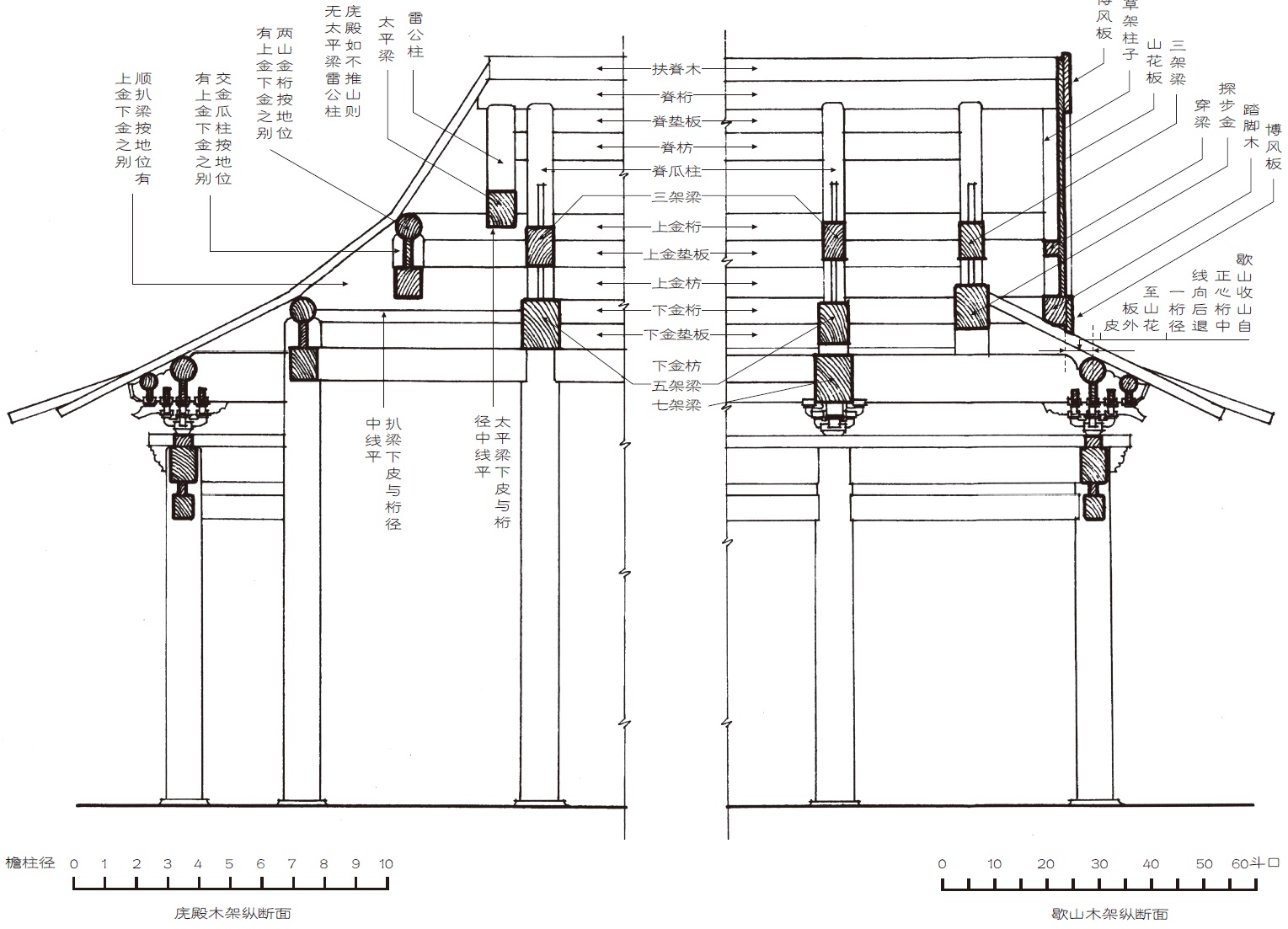
图三十九 庑殿与歇山横断面比较(1)
图三十九 庑殿与歇山横断面比较(2)
图四十 庑殿琉璃作(1)
图四十 庑殿琉璃作(2)
琉璃共有八样大小,每样有标准尺寸。按柱高⅖定吻高,然后用高度相符或相近正吻定样数。参看琉璃尺寸表。
图四十一 卷棚木架横断面
弯椽子名顶椽,自脊檩中心通一直线与上花架椽成正角,以此线与进深中线相交处为中,以此中至上花架椽与脊檩相切处为半径,两脊之间的弧即顶椽下皮线。大式大木之桁,小式谓之檩。单脊小式大木之脊檩枋垫板与大式同,其余各金檐檩枋垫板与本图同。檩数若成双,便有两根脊檩,上用弯椽子,谓之卷棚式。
图四十二 墙柱位别图
图四十三 七架梁(南海瀛台)
图四十四 五架梁(南海瀛台)
图四十五 卷棚式月梁(南海瀛台)
图四十六 中柱用梁及溜金斗栱后尾(社稷街门)
主要的梁两端放在前后两金柱上,若没有廊就放在两檐柱上,梁的长短随进深定。由这根梁上用两短柱或短墩又支一根较短的梁,或更再上再支,成为梁架。最下一层最长一根梁称大柁,次级较短一根称二柁。有三层时最上最短一根称三柁。各柁也可按本身所负桁或檩子的总数目,称为“几架梁”。如所负共有七檩,则称七架梁,其上一层则称五架梁。由大柁均分作若干步架(普通多用五六尺),二柁三柁每层梁之缩短便以每次两端均缩短一步架为准则。每层梁的两端均挖出桁椀以承桁或檩。桁的方向与梁成正角,而同平行于地面。两层梁架中间所支短柱高度过其本身之长宽的称瓜柱,高度减于其本身的长宽者称柁墩。瓜柱又按地位分为金瓜柱与脊瓜柱两种(图三十九)。柁梁按步架的多少分为九架梁、七架梁(图四十三)、五架梁(图四十四)或三架梁。间或有四架或六架的,这种双数架的梁多没有屋脊,脊部做成圆形叫卷棚式,也叫元宝脊(图四十五)。卷棚式顶层的梁叫月梁,月梁上的瓜柱叫顶瓜柱(图四十一)。凡是瓜柱都有角背支撑,以免倾斜,若纵中线上有中柱,则梁之内端,都安在中柱上(图四十六)。
桁檩放在各梁头上,上承椽子。梁头之下有柁墩或瓜柱顶着,瓜柱或柁墩又放在下一层梁之上。有斗栱者桁径按斗口定,无斗栱者则与檐柱径同。在有斗栱的建筑,正心枋上的桁叫正心桁,挑檐枋上的叫挑檐桁,挑檐桁径三斗口,正心桁径四斗口半。无斗栱的建筑在正心桁的地位上有檐檩,就无所谓挑檐桁了。在屋脊上的是脊桁(或脊檩)。在重檐金柱上的老檐桁——其实就是上檐的正心桁。在脊桁与老檐桁或正心桁之间的都是金桁,若有多数的金桁,则以上中下别之(图三十九)。
在每条桁下面与桁平行的,有垫板或枋。除正心枋挑檐枋已在上文说过外,金桁下有金垫板和金枋。金枋是左右两架梁头下瓜柱间的联络材,其上皮与瓜柱上皮平。在桁下枋上的空当,就是垫板的位置;有斗栱者高按四斗口,无斗栱者按半柱径加一寸,即所谓平水,就是梁头下皮至桁下皮之高度。脊桁下有脊枋和脊垫板,都是脊瓜柱与脊瓜柱间的联络材,其高厚与金枋金垫板同。
椽子是圆的或方的木条,密密的排列,放在桁与桁之间,每根的方向与桁成正角,以承受屋顶的望板和瓦。最上一排与扶脊木接触的叫脑椽;卷棚式(图四十一)没有脊桁,而在两根顶金桁间的称蝼蝈椽或顶椽。在各金桁上的都是花架椽,也因地位而有上下或上中下之别。最下一步的椽子称檐椽,一端放在金桁上(若是重檐则放在上檐的承椽枋上),一端伸出檐桁以外,谓之出檐。檐椽的外端上,除非是极小的建筑,多半加一排飞椽。出檐之远近是按檐柱高三分之一或十分之三(图四十七)。
图四十七 举架出檐法
在每层桁(或檩)之上,更有所谓椽椀者,与桁平行,紧放在桁上面。这椽椀是一根木头,按着椽子排列的疏密,在上面做成一排洞,使椽子穿过以免得左右移动。在脊桁之上,则用一条断面成六角形的扶脊木(图三十九),在前后向下的斜面上,也做成一排的洞,以承受脑椽之上端。但到檐椽的下端,则在其上用连檐将各椽头连住,在檐椽上的称小连檐,在飞檐椽上的叫大连檐。在每两根飞椽之间,正在小连檐的上边,用一通长的木头,高等于一椽径加1.5望板厚,宽为一椽径,上按飞檐椽分位作出凹槽,将飞椽卡入,同时即把椽间空当封住,叫做里口木。当遇到了翼角起翘处,改用小连檐和小块板封住椽挡,此即闸挡板。椽子之上铺望板。大连檐上面安瓦口;按瓦每陇的大小做成椀子,以承受每陇最下一瓦。
角梁是向下倾斜而在平面投影上也是斜角放置的木梁,与建筑物正侧面的檐桁各成四十五度角。角梁共有两层,上层称仔角梁,伏在下层老角梁上面,其关系正同飞椽之伏在檐椽上面一样。老角梁前端直接放在檐桁上——正面侧面两檐桁成正角相交处——外端更伸出,较檐椽略长,梁头做成霸王拳一类的雕饰;后端上皮按桁径一半做成桁椀托承正侧两面相交的两金桁的下皮。仔角梁前端长过老角梁,如飞椽之长于檐椽,头上有套兽榫,做安放套兽的地方;后端放在正侧面金桁相交点之上,故在其下皮做成桁椀,覆在两金桁相交处的上皮。这角梁与檐椽所占的地位极相似,所不同的只在材料之较大,断面是方形的,和四十五度斜角放置的方向。
屋角曲起的结构,全在檐椽与角梁间关系所使然(图四十八)。檐椽前端是放在桁上的,老角梁也是放在桁上的:然而老角梁的高,为椽径三倍,所以老角梁上皮比檐椽上皮高出两椽径。为使它们上皮均平,以便铺望板,所以须将靠近老角梁的多根椽子,渐次抬高,使离开桁的上皮,使紧靠角梁的最末根椽子上皮,达到同角梁上皮均平的地位。而在这渐次抬高的椽子底下,与桁逐渐离开的空当内,垫上一块三角形的木头,称衬头木或枕头木。而同时在平面上,这几根椽子,也渐次变更其方向,直至末根椽子与四十五度角上放置的角梁平行紧贴为止。衬头木(或枕头木)长同檐步,一头高,一头低,成为细长的三角形,上有椽椀,以承受椽子。高的一头上面放檐椽,这椽的上皮则与老角梁平;低的一头垫在第一根起始抬高的椽子之下。由建筑物的立面看,这行并排的椽头,便自然地成微微向上的曲线。
飞椽部分与仔角梁的关系,却稍有不同。檐椽之上,用望板及小连檐,因此将飞椽垫起少些;再加飞椽上面望板,飞椽上皮仍不能同仔角梁上皮平。故此仔角梁微微突起,高过望板,用以承脊瓦。仔角梁和飞椽一样,并不是直条木料,下端是故意刻成微微向上的弯曲,使前檐翘起的。
在平面上,这些平行排列的椽子,到了转角部分,由梢间的角金柱起;便依次加增斜度,直至紧靠角梁一根与角梁平行;前面已说到,但注意同时这些椽子也逐渐加长,直至仔角梁止,在正面及侧面投影上较前面飞椽长出三椽径。这转角部分从各方向看来均像鸟翼的开展;这部分的檐椽即称为翼角檐椽,飞椽则更因其翘起,称为翼角翘飞椽。
图四十八 翼角檐结构图
图四十九 各种屋顶
大木的结构因房顶形式之不同,方法也略异。房顶的形式,最普通者约有四种(图四十九)。其不同处全在左右两端——两山——的做法。
(一)庑殿 庑殿是屋顶前后左右四面都有斜坡的建筑[图三十九(1)、图四十、图五十],共有五脊:因为面阔较长于进深,所以前后两坡相交而成正脊,而左右两坡只同前后坡相交而成四垂脊。故庑殿也常称为五脊殿。在庑殿的构架,其主要梁架和桁枋,都是前后两坡下骨干的构架;至于左右两坡之下,亦须有两山金桁,在与前后金桁相同的地位,以承两山的椽子。这两山每步的桁与前后每步的桁,在四垂脊分位之下,成正角相交。各层山桁上,在前后每层金桁的中线上,在它们下面,与之平行的,有各层顺扒梁。顺扒梁分上下,乃至上中下层,每层都是一头放在桁上,一头放在柁上。例如两山老檐桁上就安下金顺扒梁,在下金顺扒梁上退入一步架处安柁墩,以承托两山下金桁,与前或后下金桁的相交点。再在前后上金桁的中线上,在它们的上面,安上金顺扒梁,伏在两山下金桁之上;其上再照下金顺扒梁上的办法,退入一步架处,安瓜柱,以承托两山上金桁与前或后上金桁的相交点(图五十一)。顺扒梁上,承托山金桁与前后金桁相交点的柁墩称交金墩,瓜柱称交金瓜柱。两山各桁与前后各桁相交处是放由戗的地位。由戗就是角梁的继续者,是四垂脊的骨干。由戗在各步架上并不一定须一直线相衔接,一方面有举架,一方面还可有推山,使它立面和平面的投影都是曲线,关于举架的方法,将在下文说明。推山只是庑殿所有,所以在这里解释(图五十二)。
图五十 单檐庑殿顶(太庙门)
图五十一 庑殿与歇山纵断面比较
假使两山的坡度与前后的坡度完全相同,则垂脊的平面投影及四十五度角线上之立面投影都是直线。为求免去这种机械性的呆板,所以将正脊两端加长,使两山的坡度,较峻于前后坡度,于是无论由任何方面看去,垂脊都是曲线了(图五十二、图五十三、图五十四)。类似这种微妙的作法,在希腊和歌德式建筑里是时时看见的。因山尖推出,脊桁也跟着加长,悬空在梁架的中线以外。在这种情形之下须在脊桁悬空一端之下加一道太平梁(图五十一),长两步架,放在前后上金桁之上;在太平梁之上,加一根雷公柱,以支住脊桁这悬空的一端,和它上面的正吻及其他琉璃瓦。
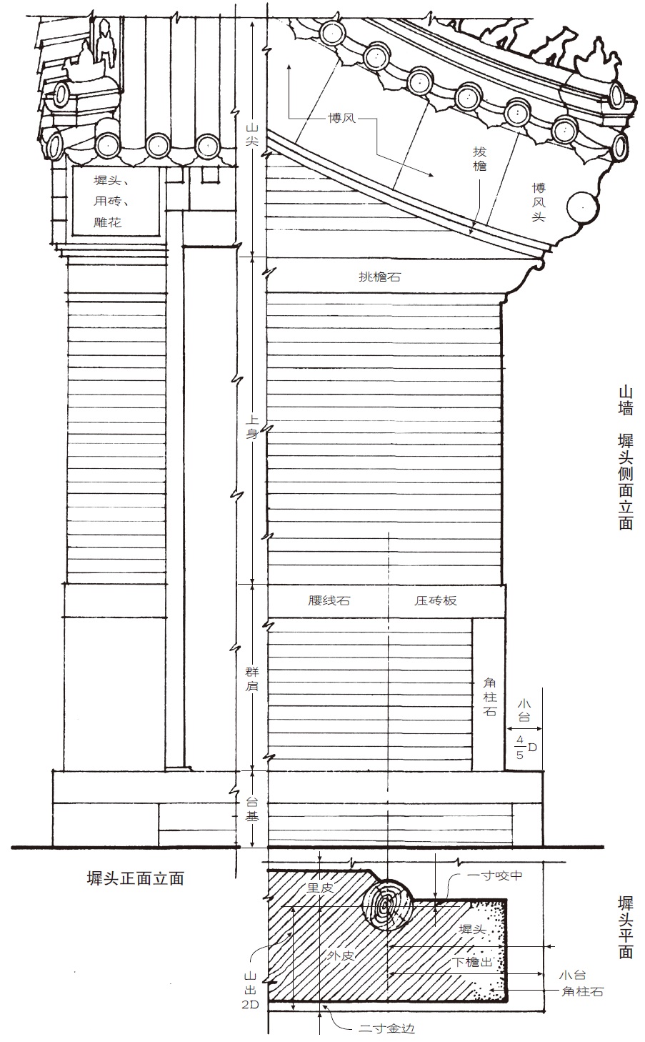
(二)硬山 只有前后两坡,左右两端是两面立墙(图五十五),叫做山墙。山墙内部也有木架的骨干,立着的有前后檐柱和正中的山柱(图三十八)。山柱下端立在两山台基之上,上端托着脊檩。在与大柁同高的位置,有由檐柱至中柱的梁;其上在各架梁的高度,按步架减短,有各根梁构成的梁架,称为排山,排山各梁有单步,双步,乃至三步,四步之别,其结构的方法与上文桃尖梁的双步梁单步梁一样。两端的山柱、檐柱、排山、各檩头,在向外一面,一概都砌在山墙之内,但向内一面,则露在墙面,在室内可以望见的。至于前后两坡,尤其是后坡,往往有不出檐的,檐椽只架到檐檩上,而不伸出,外面用砖垒到与檐平,将椽头完全封起,不令露在外面,叫封护檐(图五十八)。这种封护檐有时还用砖做成假椽头和假连檐的样子。
图五十二 庑殿推山法
图五十三 庑殿推山(太和殿)
图五十四 庑殿推山(太庙)
图五十五 山墙
(三)悬山 亦称挑山,结构上与硬山大致相同;唯一不同之点各桁或檩不在山墙内封住,而一直伸出到山墙以外,使檐支出(图五十六)。支出的远度与前后檐出檐的尺寸同。沿着各檩头外钉上博风板以保护桁头;桁头之下又加燕尾枋,以增加桁的支力。山墙或按硬山做法,将构架全部封在墙内,或随着各层排山梁柱和瓜柱砌成阶级形,直率地将结构表现在外面,称五花山墙(图五十七)。
图五十六 悬山
图五十七 五花山墙
(四)歇山 由结构上看来,歇山可以说是庑殿和悬山联合而成的。假使把一个悬山顶,套在庑殿顶之上,悬山的三角形垂直的山,与庑殿山坡的下半相交,即成为歇山[图三十九(2)、图五十一、图五十九]。在这种结构之中,其问题即在如何使山坡与垂直部分相交。其法乃将桃尖梁向后加长至梢间面阔之度,里端安在金柱之上,成为桃尖顺梁。顺梁下面,与额枋在相同的地位的是顺随梁枋。桃尖顺梁上面,在退入一步架处,上安交金墩,承着踩步金梁,与顺梁成正角。踩步金上皮与下金桁上皮平,两头与桁交,做成桁的样子,称假桁头。沿着踩步金梁的外边钻一列洞,以承受两山椽子。踩步金之上,各架梁的分配便与其余梁架完全相同。各层桁在踩步金中线以外,还继续地伸出,称挑山檩,成为悬山的结构。但因悬山太远,挑山檩不胜重负,所以在老檐桁上加放扒梁一道,下皮同时也放在两山檐椽之上,谓之踏脚木。踏脚木之上,在每根桁之下竖立小柱,支住桁头,称草架柱子。左右两根草架柱子之间,在各层同高的桁间,用小梁横穿支撑着,谓之穿梁。桁头之外有博风板如悬山之制。博风板之下有山花板,将三角形悬山的部分整个封护起来(图三十九、图五十一、图五十九)。山花板的外皮,须在两山正心桁中线以里一桁径。
图五十八 山墙檐墙图(1)
图五十八 山墙檐墙图(2)
图五十九 歇山
这四种大木结构,都是同用长方形的平面为基本,可以算做一大类。它们都是在平行、同距离、同长短的柁梁上产生出的结构,是木材建筑中最老实最守规矩的。至于所谓杂式与这些“正式”根本不同之点,就在平面之不同,因以影响到全部的结构法。图六十一、图六十三、图六十五是《工程做法》里的几种杂式;图十五、图六十二、图六十四、图六十六乃北平苑囿中所见,不另外加解说了。
举架是中国房顶曲线之所由来,也是对于许多关于中国房顶怪问题的答案。其实举架的原则是极简单的,就是将屋顶坡的斜度越往上越增加。达到这目的的方法就是将瓜柱的高度越往上层越加高。举架的高低,都以步架为比例(图四十七)。《工程做法》中,有五举、六举、六五举、七举乃至九举等名辞,其实就是说举架之高等于步架之长之十分之五、十分之六十分之九的意思。举架的急缓,以房屋的大小和檩数的多少而定。最下一举多是五举,飞椽则三五举,最上一举往往在九举之上,还加平水,将房脊推到适当或需要的高度。平水的高度,虽有一定的尺寸,但要点还是由设计人临时酌定。其通用的规则,即按各桁下垫板之高度;如有斗栱的大式大木,平水为四斗口,没有斗栱的小式大木,平水按柱径减一寸。但如城门箭楼等建筑物,因地位特高,建筑物本身又高,脊举若太少,在较近的地方,就有看不见屋脊的可能,所以可将平水加到比柱径还大的高度。
图六十 檩数分配图
图六十一 重三式杂木大法做工程——六柱圆亭
图六十二 圆亭
图六十三 重三式杂木大法做工程——四角攒尖方亭
图六十四 方亭(北海琼岛)
图六十五 重三式杂木大法做工程——三檩垂花门
图六十六 垂花门(北海琼岛)