



斗栱是中国系建筑所特有的形制,是较大建筑物的柱与屋顶间之过渡部分,其功用在承受上部支出的屋檐,将其重量或直接集中到柱上,或间接的先纳至额枋上再转到柱上。凡是重要或带纪念性的建筑物,大半部都有斗栱(图二十四)。
在建筑物的部位关系上,斗栱共有三种不同的位置:(一)在柱之上;(二)在屋角柱头上;(三)在柱间额枋之上。这三种各有专名
,叫做(一)柱头科(图二十五及图二十六);(二)角科(图二十七及图二十八);(三)平身科(图二十九及图三十)。斗栱的结构上有四种重要的分件(图三十一及图三十二)。略似弓形,位置与建筑物表面平行的叫做栱;形式与栱相同,而方向与栱成正角(即与建筑物表面成正角)的叫做翘;翘之向外一端特别加长,斜向下垂的叫做昂;在栱与翘(或昂)的相交处,在栱的两端,介于上下两层的栱间,有斗形立方块叫做升。在翘(或昂)的两端,介于上下两层翘(或昂)间的斗形方块叫做斗。升与斗的区别在它们的位置和上面开的卯口;升内只承受一面的栱或枋,所以只开一面口,称顺身口,斗则承受相交的栱与翘昂,上面开十字口。
(一)柱头科(柱头铺作)
柱头科为桃尖梁头与柱头的垫托部分,位于柱头上,承载梁头所受的重量,并传递给柱身。
(二)角科(转角铺作)
角科为承接转角部位荷载的斗栱,位于转角柱上,其结构比柱头科和平身科复杂。
(三)平身科(补间铺作)
平身科位于额枋或平板枋上,结构作用远逊于柱头科,是一种不甚合理的装饰性构件。
图二十四 山西五台山佛光寺大殿(三种不同位置的斗栱)
图二十五 柱头科各部分名称
栱有正心栱和单材栱之别,按位置而定。凡在檐柱中心线上,与建筑物表面平行的,都叫正心栱,正心栱一面向外,一面向里,在栱的纵中线上,要加上一道槽,以安垫栱板,所以正心栱之厚要比单材栱之厚多这垫板之厚。其余不在正心线上的都叫单材栱;在檐柱中心线以外者叫外拽栱,在以里者叫里拽栱。
图二十六 柱头斗栱(1)
图二十六 柱头斗栱(2)
图二十七 角科斗栱
图中标明度量以斗口为单位。分件名称未注明者参看图二十六。分件大小权衡见权衡尺寸表及插图。本图以单翘单昂五踩为例,翘昂踩数设计人可酌情增减,参看本书图八。
图二十八 角科各部分名称
图二十九 平身斗栱
图中注明度量以斗口为单位。分件名称未注明者参看图二十六及图二十七。分件大小权衡见权衡尺寸表及插图。本图以单翘单昂五踩为例,翘昂踩数可由设计人酌情增减参看本书图八。
图三十 平身科各部分名称
图三十一 斗栱分件一(1)
图三十一 斗栱分件一(2)
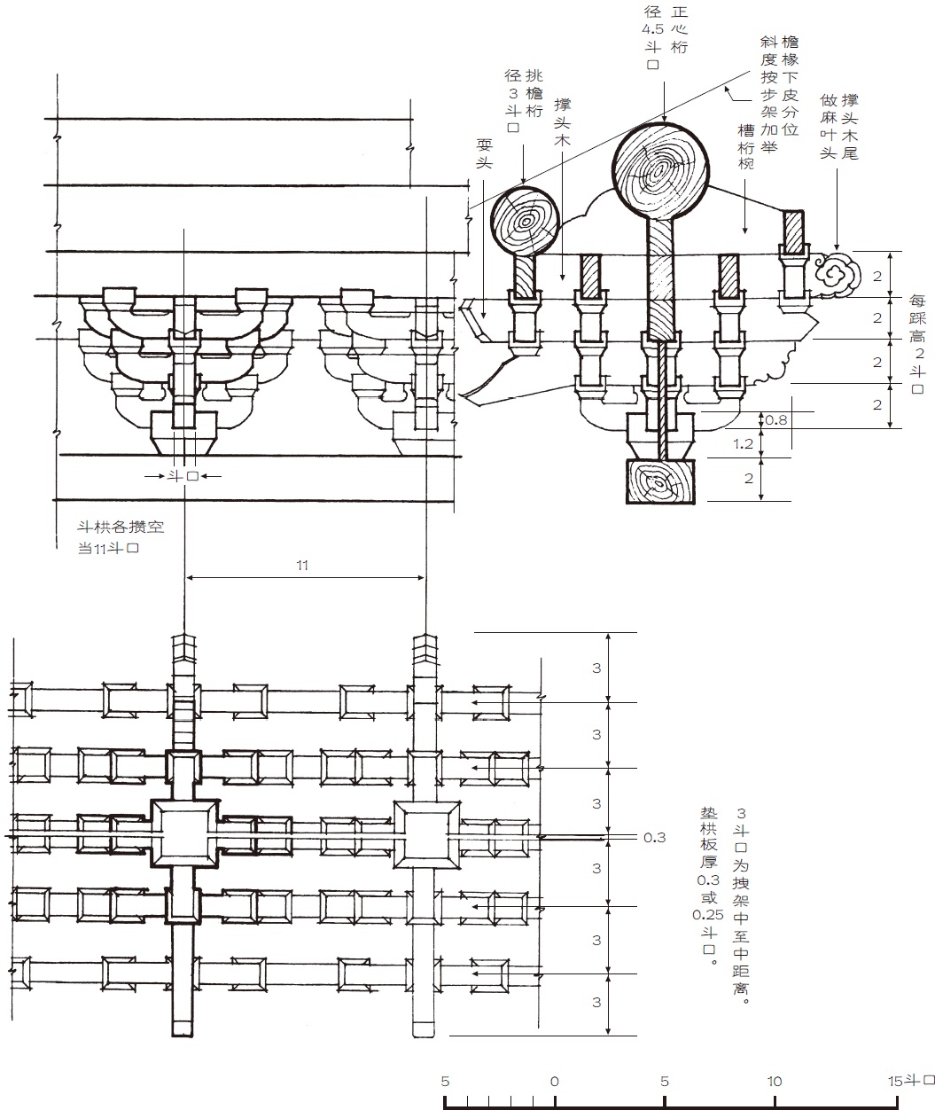
翘昂耍头撑头长按踩数或拽架数定。踩与踩之间为一拽架,长按3斗口。本图以单翘单昂平身斗栱为例。度量皆以斗口为单位。
图三十二 斗栱分件二(1)
图三十二 斗栱分件二(2)
栱以长短分三等:瓜栱、万栱、厢栱。瓜栱最短,厢栱次之,万栱最长。瓜栱和万栱,除非没有翘昂不往外出踩(见下文)的斗栱,每多相叠并用:瓜栱在下,托着万栱在正心上或里外拽上。在正心上的叫正心瓜栱,正心万栱;在里外拽的叫单材瓜栱,单材万栱;——若更求准确,便叫里拽瓜栱、外拽瓜栱和里拽万栱、外拽万栱。至于厢栱,却总是安在最上层翘昂之最外或最里端上,绝没有放在正心上的时候,所以只分里外,而无正心单材之别。
栱的中间有与昂或翘相交的卯口;栱两端上面有承托升子的分位。在升与卯口之间,弯下去的部分叫栱眼,栱的两端下面曲卷处叫栱弯。栱弯的曲度,在《工程做法则例》里有所谓“瓜四”“万三”“厢五”的规矩,使栱弯成为几小段直线的小瓣,以便制造(图三十三)。为便于绘图计,我更另为规定(图三十一及图三十二)。
与栱成正角形的横木叫做翘或昂。翘昂的长短以支出之远近而定;在下层的支出最少,越往上支出越远。每支出一层,在里外两面各加一排栱,叫做踩。踩与踩中心线间的平距离叫做一拽架;翘昂的长短就以拽架之多少而定。在最上层的翘或昂之上更有两层与翘昂平行而大小亦与之相同的分件,其中在下的叫耍头,在上的叫撑头;耍头前后两端露在外面,都有雕饰;撑头外端不露在外面,只摆在里面,将外面的挑檐枋和里面的井口枋撑住,但后尾却露出刻作麻叶头。撑头之上更有桁椀,其上斫作半圆形槽,大小同桁径,以承受桁或檩。
翘的形式与栱完全相同。更有功用与翘相同,而在向外一端特别加长,向下伸出的,叫做昂。伸出的部分叫做昂嘴。昂的向里一端或曲卷如翘或栱,或做成六分头或霸王拳
一类的雕饰。耍头的外端往往做成蚂蚱头,里端做成麻叶头
。这许多的形制和大小都有一定的做法(图三十三)。
凡是上下二层栱间,或枋子与翘或昂之间,有斗形的方块,垫在二者之间,叫做斗或升。在全攒斗栱之最下一层,在正心瓜栱与头翘或头昂之下的叫坐斗,也叫大斗,是全攒重量之集中点。在里外拽栱之两端,托着上一层的栱或枋子的叫三才升;在正心栱之两端。托着上一层的栱或枋子的叫槽升子;在翘或昂之两端,托着上一层栱与翘昂相交点的叫十八斗。
坐斗之上,有十字的卯口,以承受瓜栱和头层的翘或昂。这承受翘或昂的口叫做斗口,是有斗栱的建筑(大式大木)各件尺寸权衡的基本单位。例如柱径六斗口,高六十斗口;坐斗高二斗口,长宽各三斗口;或是每拽架长三斗口等等的比例和全攒斗栱,乃至全屋大木的权衡,都是按斗口而定的(见各件权衡尺寸表)。
图三十三 栱头昂嘴做法(1)
麻叶头做法用「三弯九转」。中心以外,弧线三层为三弯;每两弧线相接处曰转,共九处为九转。
图三十三 栱头昂嘴做法(2)
图三十四 一斗三升斗栱(西朝房)
斗栱因层数或拽架之增减,可以有极简单的,也可以推增出极复杂的。其中最简单的,坐斗上安正心瓜栱一道,栱上安三个槽升子,谓之一斗三升(图三十四)。以正心栱为中,每往里外支出一拽架,就多一踩,谓之出踩。例如正心一踩,里外各出一踩者谓之三踩;里外各出两踩者谓之五踩,以此递加可以加到九踩乃至十一踩(图三十五)。至于翘昂的分配,则有单翘单昂、单翘重昂、重翘重昂、重翘三昂等等的变换。翘昂的多少是随出踩的多少而定的。
由结构方面看来,柱头科和角科是合理的做法,平身科是不甚合理的装饰。柱头科是桃尖梁头与柱头间的垫托部分,所以柱头科的头翘或头昂比平身科的头翘或头昂厚加一倍(二斗口),并且越往上层越加厚;到最上层就直接承受由内部伸出来的桃尖梁头;而梁头之厚,则为四斗口(图二十五及图二十六)。
图三十五 斗栱出踩图
两柱头科之间,放在额枋及平板枋上的斗栱,谓之平身科(图二十九及图三十);其功用远不及柱头科之重要,差不多是一种纯粹的装饰品。结构与柱头科微有不同;柱头科的桃尖梁头位置,在平身科则为耍头,上面再加撑头木(两者合起来的高度与桃尖梁头高度同)。耍头只厚一斗口,平身科的翘与昂也只厚一斗口。
角科(图二十七及图二十八)在角柱之上,地位特殊。普通的斗栱只有一个外面一个里面,角科却同时有两个外面;而且同时左方的正面就是右方的侧面,右方的正面也是左方的侧面;于是在正面做栱的转角就是昂或翘。不唯正心线上如此,就是外拽各栱也如此;例如正面的外拽瓜栱万栱,在侧面伸出为两层翘或昂,而按地位之不同,叫做搭角闹头翘或搭角闹二翘,但在他面则名外拽瓜栱,外拽万栱,仅厢栱过角后称把臂厢栱。除正侧两面外,在斜角线上,又有斜昂或斜翘,与各层翘昂平;与耍头平处则有由昂,上安宝瓶,以承受上部支出的角梁,整个成为一个有机能的结构。各部分专名都在图二十五至图三十中注明。
溜金斗是一种特殊的斗栱。自中线以外,与普通斗栱完全相同。中线以里,自耍头以上,连撑头和桁椀,都在后面特别加长,顺着举架的角度向上斜起秤杆,以承受上一架的桁或檩。各层秤杆之间,横着安栱或三福云,直着用伏莲销,销成一起(图三十六及图三十七)。
斗栱之全部统称曰攒,两攒间的距离通常是十一斗口。在城楼等大建筑物上也有十二斗口的。这完全是权衡的问题,应该由设计人自己决定。
一攒斗栱之中,里外拽各加一踩时,上下就加了一翘或一昂。无论一攒共有几踩,在最里最外两极端上只有一层厢栱,外拽厢栱之上就是挑檐枋,枋上就是挑檐桁。其余各踩都只有两层栱,瓜栱在下,万栱在上;万栱之上就是枋子,在正心的叫正心枋,在里外拽的叫拽枋。无论踩数多少,正心万栱以上就层层的用枋子叠上,一直到正心桁之下面(图二十六、图二十七、图二十九)。