



一座建筑物的平面有两种度量——宽与深;两者之中,较长者叫宽,较短者叫深。中国建筑因特有的构架制度,先用立柱横梁构成屋架,然后加筑墙壁或槅扇,所以柱之分布,便成为平面配置上最重要的一个原素,凡在四柱之中的面积,都称为间。间之宽(在建筑物长面之长度)称为面阔;全建筑物若干间合起来的长度称通面阔。间之深(在建筑物短面之长度)称为进深;若干间合起来的长度称通进深(图八)。
这间就是建筑平面上的最低单位,建筑物的大小就以间的大小和多寡而定。普通居中开门的一间叫做明间,明间两旁为次间,次间之外为梢间,梢间之外为尽间,全建筑物的四周或前后还可以有廊子,左右还可以加套间。
间的面阔和进深,按需用的广狭,和木材的长短大小而定。但有斗栱的大式大木(见第三章),面阔进深则按斗栱攒数定。次间较明间可收(即少)一攒,梢间可与次间同,或更收一攒。廊深普通以二攒为最多。
平面的形式以长方形为最普通,举凡北平故宫主要宫殿(图十一及图十二)或一般平民住宅,都以长方形为主。正方形也有用作主要建筑的,如中和殿(图十三及图十四)及辟雍。六角形(图十五)八角形多半是点缀庭园的建筑。圆形却大半是隆重的大建筑物,如天坛的祈年殿(图十六及图十七)和皇穹宇。复杂的形体如城墙上的角楼是曲尺形(图十八及图十九)或十字形(图二十及图二十一),或如带雨搭的箭楼(图二十二及图二十三),都是多数的长方形相聚而成。
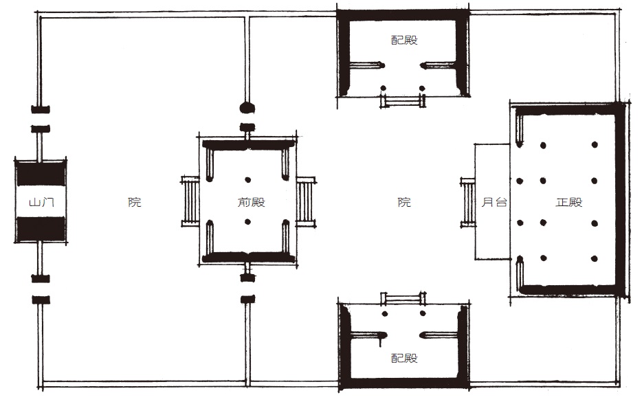
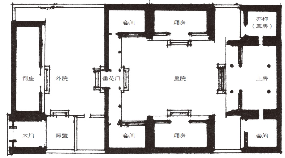
普通平面均齐的配置方法,不论宫殿庙宇或住宅,均由若干座的建筑物合成(图九及图十)。主要的建筑物居中,多南向,称正殿或正房。在正殿之前分列左右面相向者为配殿或厢房(与正殿相对者为前殿或倒座)。这四座共包括的范围称一院。一处住宅,宫殿或庙宇,多由一院或多院合成。一院之四面都有房屋者,称四合;或有例外,只有单面厢房,或无倒座,只是三面有房屋者,称三合。其他主要部分的布置,原则仍是不改。至于完全不均齐的配置,如离宫别馆,庭园斋舍,地位方向皆因地随宜设计,绝不受规例的拘束。
图八 面阔进深图(九檩单檐庑殿作例)
图九 四合住宅平面各部分名称
图十 四合寺观平面各部分名称
图十一 长方形(太和殿)
图十二 太和殿
图十三 四方形(中和殿)
图十四 中和殿
图十五 北海琼岛 六角亭
图十六 圆形(天坛祈年殿)
图十七 祈年殿
图十八 曲尺形(北平东南角楼)
图十九 北平东南角楼
图二十 十字形(紫禁城角楼)
图二十一 紫禁城角楼
图二十二 凸字形(阜成门箭楼)
图二十三 德胜门箭楼