



欧洲旧式建筑的门窗是墙壁上开的洞,墙壁是房子的体干,若是门窗太多或太大,墙壁的力量就比例地减小。所以墙与洞是利害相冲突的。在中国建筑里,支重的是柱子,墙壁如同门窗槅扇一样,都是柱间的间隔物。其不同处只在门窗槅扇之较轻较透明,可以移动。所以墙壁与门窗是同一功用的。因这原故,在运用和设计上都给建筑师以极大的自由,有极大的变化可能性。其位置可以按柱的布置随意指定,形式大小可以随意配制,而于构造上不发生根本的影响。
这些门窗槅扇,在中国建筑中一概叫做装修;台基以上,柁枋以下,左右到柱间,都可以发展。按地位大概可分为外檐装修和内檐装修两大类。外檐装修为建筑物内部与外部之间隔物,其功用与檐墙山墙相称。内檐装修则完全是建筑物内部分为若干部分之间隔物,不是用以避风雨寒暑的。二者之功用位置虽略有不同,不过在构造法上则完全一样。
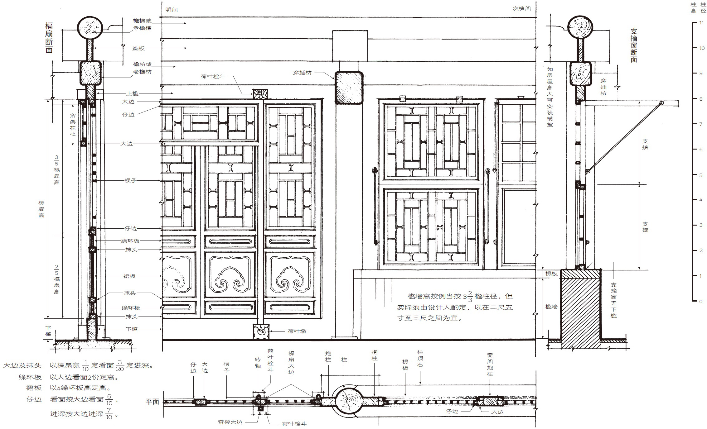
装修的本身也可分两部分——框槛和槅扇(图八十二及图八十三)。框槛是不动的部分,槅扇是可动的部分。框槛之中,横的部分都是槛,更因地位的高下,分上槛、中槛、下槛。上槛也叫替桩,紧贴在檐枋之下。中槛也叫挂空槛。下槛放在地上。左右竖立的部分叫抱框,紧靠着柱子立住。这框槛的全部就是安装槅扇的架子。普通建筑物多在中槛下槛之间安门或窗,上槛中槛之间安横披。门窗横披都是槅扇,其不同处乃在门、窗是可以启闭而横披是固定不动的。若建筑物矮小,则不用中槛,只有门窗而无横披。
图八十二装 修(1)
支摘窗可分内外两层,各分上下两段。外层上段可支起,下段可摘下。内层固定,不能支摘,但上段可用纱窗卷纸,下段装玻璃。
图八十三 装修(2)
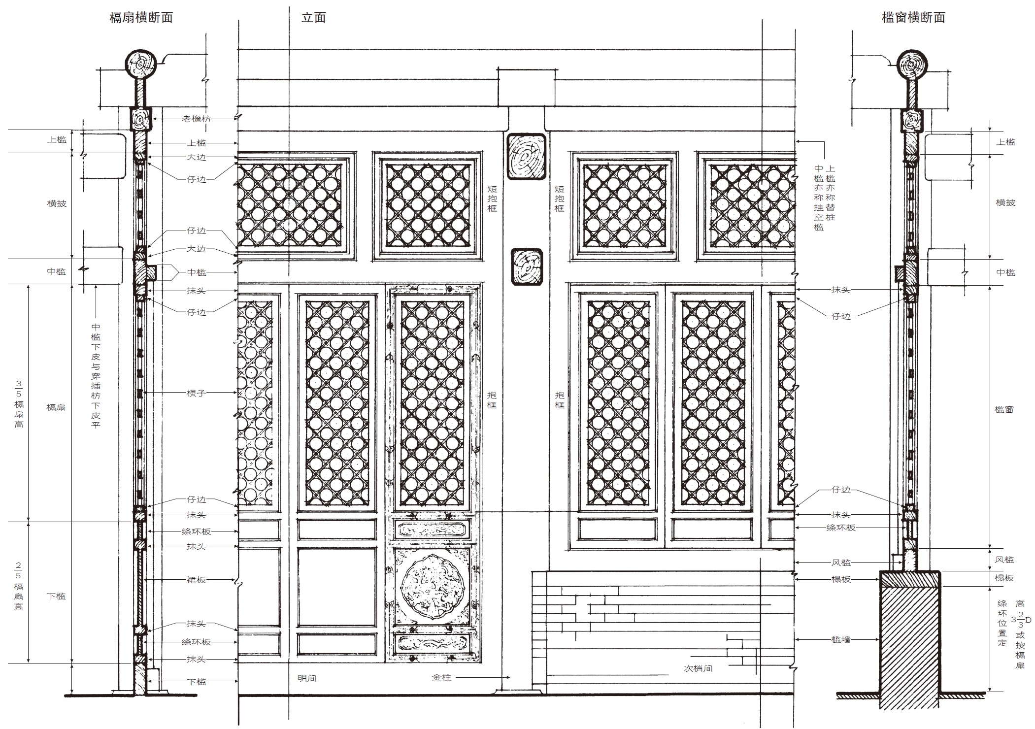
槅扇的部分也是一个架子,两旁竖立边梃。边梃之间,横安抹头。每扇槅扇可用抹头分作上中下三段:槅心、绦环板和裙板(图八十四及图八十五)。上段的槅心,亦称花心,是槅扇上透明通气的部分;四周在边梃抹头之内有仔边,中间有棂子,作裱糊或安玻璃的骨架。棂子的花纹或用菱花(图八十六)或类似的六角或八角的几何形,或用方格。这种门扇可以做槅扇,也可以做门或窗。做门窗时上下两头加转轴。若做窗则称槛窗(图八十三及图八十七)。
图八十四 太和殿槅扇门
图八十五 北海槅扇门
图八十六 太庙菱花槅扇
图八十七 故宫太和殿槛窗
边梃与抹头相接处,在较华丽建筑中,多用角叶或人字叶钉上。以防扇角松脱或歪斜。在边梃的中段钉看叶,带钩花钮头圈子。在较朴素的建筑中则用梭叶,梭叶的功用与看叶同,而形式较简单,也带钮头圈子。
普通的窗子都做在槛墙之上。槛墙顶上先安榻板,榻板以上一切的构造都和上文所说的同,次安槛框,只是下槛较小,改称风槛。窗扇有时不像门那样左右转动,而做内外两层,上下两段,外层上段可以向上支开,下段可以摘下的,称支摘窗(图八十二及图八十八)。支摘窗没有风槛,下段直接安在榻板上;并且窗形不像槛窗的直立,而是横的。槛窗多用于宫殿庙宇,支摘窗则多用于住宅。
帘架是一种辅助的门框,安在槅扇之外有门处。两边的边梃与槅扇同高,下部是门洞,上部用抹头二根,中有仔边棂子,称帘架心亦称花心。帘架上可挂帘子,有时可以安两扇门。帘架边梃的上下两端,率多用荷叶栓斗及荷叶墩安装,可以随时卸下。
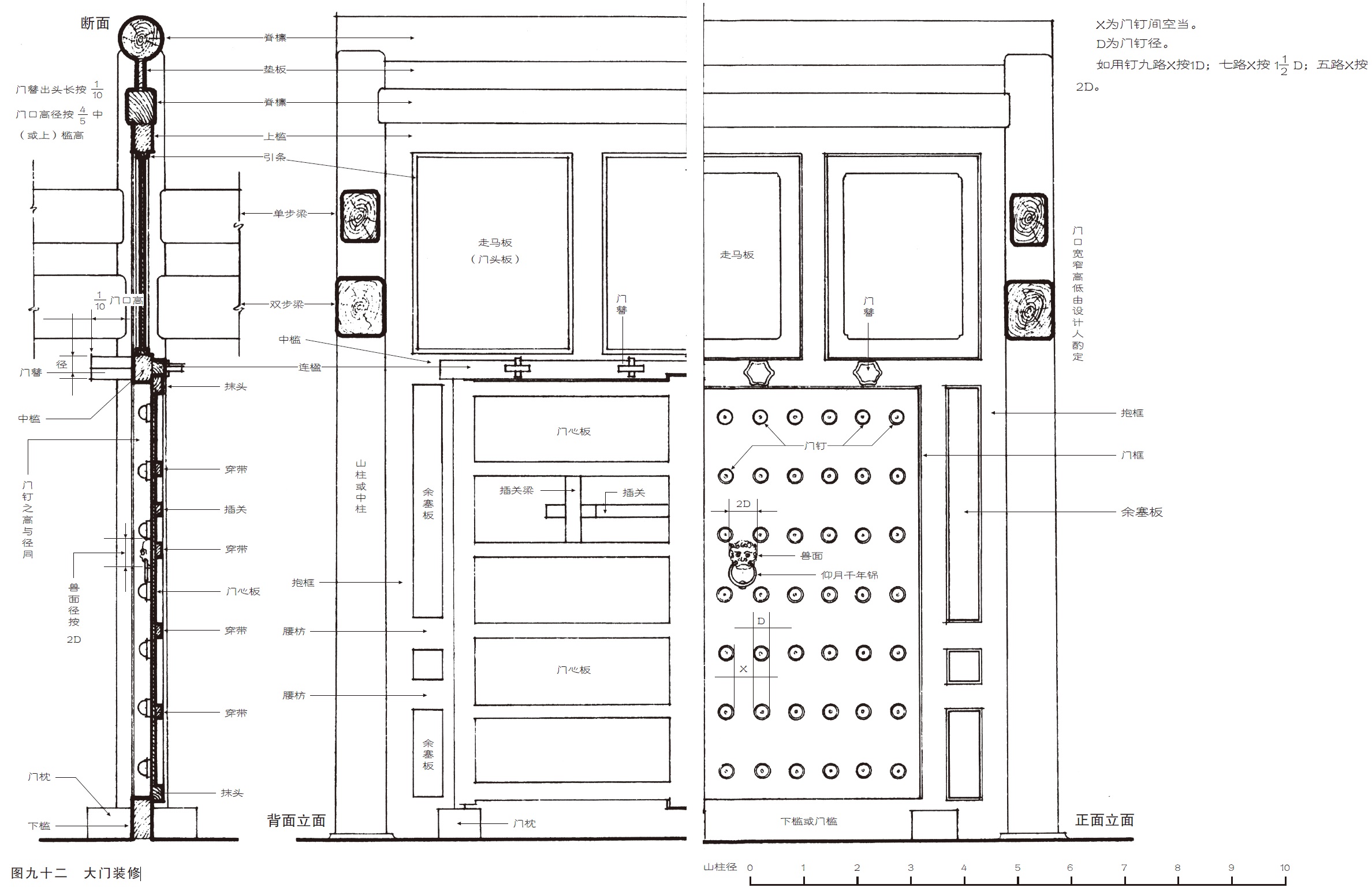
大门是一种特殊的装修(图八十九至图九十一)。槛框的构造与上文所述同。门扇的宽往往不如大门柱间面阔,所以抱框以内有时有加上门框的必要。门框与抱框间的横木为腰枋,将框间分成上下两段乃至三段,框与腰枋间的空当用板遮住,谓之余塞板。中槛以上横披所在的分位,不用槅扇而用板遮盖,称走马板。大门槛近两端处,在门扇转轴之下有门枕,有时用木,有时用石。大门的转轴上头穿在连楹里,下头立在门枕上。门枕的形式甚多,可以做成种种有趣的样子(图九十三)。中槛上有门簪,将连楹销在中槛上,外端成六角形,也是一种有趣的装饰(图九十四)。
大门门扇的结构,左右竖立大边,上下端横安抹头,上下抹头之间有较小的抹头称穿带。大边与抹头一周的中间是门心板。门外安门钹,门里安插关(图九十二)。在较大的大门上,门钹的形式做成有环的钑兽面。此外还有五路、七路、九路及至十一路的门钉,可以帮助表现出凛然不可侵犯的庄严样子(图九十五)。
以上所述都是外檐装修,至于内檐装修,构造原则与外部完全相同,但因不受风雨气候的限制,样式极多,可以施用种种的雕刻,很能自成一种自立的艺术。
图八十八 北海公园悦心殿支摘窗
图八十九 太和门殿宇大门
图九十 奶子府府第大门
图九十一 清朝住宅大门
图九十二 大门装修
图九十三 门枕石
图九十四 门簪
图九十五 门钉、兽面门钹(故宫大红门)
图九十六 故宫藻井
图九十七 天花彩画部分名称
天花在《工程做法》里归在大木作之内,但是它于建筑全部的结构上没有根本的关系,功用与装修相同,所以应当归在装修项下。在天花梁或别的梁上,在高度适当处安装帽儿梁或是贴梁,然后将支条安在帽儿梁或贴梁的下面。支条按面阔进深排列成方格,每方格就是一井,井内的板叫天花板(图九十六及图九十七)。