



方和圆的概念,大约在人类造物之初便被总结出来。以直木为材料,构物必易为方形;以陶泥为材料,则圆器更易于成型。构物成型,其中空的空间,是人为的创造性空间,是从大自然中人为界定出来并为人所善加利用的空间,这一方面尤以制陶和建屋的创造性为先民所重视。老子说:“埏埴以为器,当其无,有器之用。凿户牖以为室,当其无,有室之用。”(《老子·第十一章》)前一句说的是制陶,后一句说的是建屋,可见由于初民长期进行这两种创造人类可利用空间的活动,导致他们在有无、虚实等抽象概念的互生与转换关系上,来理解方和圆这种概念性的图形。
对仰韶文化半坡遗址大量建筑遗迹充分研究后,已知当时的房屋从建筑平面上已经可以明显地区分为方形和圆形两大类型。为了扩大内部使用空间,两类房屋都在内部利用木材制作了简单的柱梁结构,借以支撑屋顶的重量。由于这种内部结构的存在,可以肯定地说,房屋外观平面是方形抑或圆形,都是建筑者按预先设计的规划来完成的。
从“构木为巢”的时代起,利用直木构建的最实用空间就是方形,而圆形房屋则很有可能是长期制陶的先民移植陶作的理念于建筑中而创造的。无论方形或圆形建筑,其墙体最初都是利用地穴的立壁。后来室内地面慢慢抬升,高出地面的部分以立木和葛藤之类编结,覆以加入草筋的陶泥,利用陶泥的可塑性构成“木骨泥墙”,经过焙烧以后,有的能达到非常坚硬的程度。尽管有这样的墙体,但房屋的承重结构依然是集中荷载的立柱承重框架体系。
在半坡遗址中,圆形房屋的出现较方形房屋为晚。在河南龙山文化遗址中,圆形房屋的工程质量明显优于方形房屋,且往往成组布置,有可能为富有的家族聚居所用。但是,由于方形房屋的迅速发展,很快出现了利用梁柱结构向两边延伸而构筑的长方形多室建筑。这种建筑满足了社会发展对家族聚居以及作为群体活动场所的公共建筑的需要,而在当时的技术条件下,难以构筑巨大室内空间的圆形民居建筑遂逐渐被淘汰。
传说中有巢氏教人“构木为巢”,但很可能不是我们现在想象中类似鸟巢的窝棚,而是冬暖夏凉的地巢,其实就是新石器时代遗址中发现的早期民居的地穴式建筑。后来,随着筑墙技术的发明,室内地面渐渐抬升,渐渐与地面齐平,再出现防潮效果更好的夯土台基。由于社会分层迅速发展的需要,最初的统治阶层“前堂后寝”的建筑——“堂高三尺,采椽不斫,茅茨不翦”的宫室,也就被建立起来。
在遍布东部亚洲各大流域的新石器时代晚期的遗址中,以大型宫室、宗庙、祭坛等一系列起到政治秩序枢纽作用的公共建筑为中心,建设起大量民居、作坊,最初的城邑开始出现。与此同时,青铜冶炼技术的发展促成了工具、武器、礼器的迭代,使人类的创造力倍增。而文字作为有效管理广域国家的工具,被恰如其分地利用,使得建立国家秩序意义上的政治结构的努力,开始在古代中国的中原地区首先展现出切实无误的征兆。
如果说,经过六十多年考古探索发现的大量物证,尚不能证明二里头遗址是中国最早的广域王权国家夏朝都城的话,那么,接踵而至的商朝由于在安阳殷墟发现大量甲骨文字自证其为商,令全世界所有人都不再怀疑商朝的存在。
现在已经知道,二里头遗址是一处经过总体规划后再行建设的大型王都。其中心区分布着由数十处宫殿遗址组成的宫殿区、宫城、祭祀区、有围墙的冶铜和绿松石作坊及几处贵族聚居区,此外尚有大片的平民居住、活动区。宫殿区的外围有四条宽十至二十米的大道,略呈“井”字形垂直相交,最长的一条残存七百米。道路环绕的宫殿区有中轴线布局,大型宫殿有规律地成组分布。二里头文化第二期(约距今三千七百年或稍晚)所揭示出来已经完成的城市规划总体布局,其完整程度和宏大格局都显示出其作为商代之前的伟大王朝都邑的特征,也就是说,在黄河中下游地区,这时候可能已经出现了真正的国家。
二里头发现的宫殿遗址虽然只存地基,但仍能看出其恢宏的气象。宫殿建于边长约一百米的夯土台地上,四周有夯土围墙环绕,成一南北向的长方形院落。主殿靠北,位于长方形夯土台上,坐北朝南,横列三间,每间宽约十米。殿的墙体为木骨泥壁结构,墙外夯土台上周边有一圈柱洞,表明建筑四周曾有挑出的屋檐。夯土院墙内侧东、西、南三面也有柱洞,表明空旷的内庭周围曾建有回廊。
在整个二里头遗址中,具有类似结构布局的建筑遗迹还有数十处,这是中国现存最早的宫殿遗址。它所开创的基本建筑格局和规划思路,在此后数千年间,一直为中国历朝历代的宫殿布局所承袭。
无论在二里头发现的是否就是夏都的废墟,在被考古学时间推定为中国最早的广域王权国家都邑的二里头遗址中,由这样格局的宫殿组成了庞大的宫殿群。在距今三千七百年左右的东部亚洲,这里显然曾经是一个维持着巨大社会集群运转的政治权力中心,或者是一个维系着宏大信仰体系的宗教中心。
代夏而起的商朝,经过数次迁都,商王盘庚时迁都于殷。历史文献上反复提到位于安阳的殷墟,因为发现了数量庞大的甲骨文,最终被现代学术界所确认。但是,从1928年开始,断断续续至今的考古发掘,虽然发现了大量商代遗址(仅建筑基址就有五十多处)和重要文物,但却没有类似二里头的宫殿建筑群遗址被发现。作为以都城建筑占地宽广著称,在当时就被称为“大邑商”的商王朝,这种情形令人困惑。甚至有人怀疑,殷墟可能仅仅是商王朝的先王陵寝和祭祀区域,另有王朝的国都遗址至今尚未被发现。
但是,现有的考古资料已经显示,商王朝的治理方式很有可能并没有完全沿袭之前的夏朝,而是以一种更为松弛的形式来实现统治,譬如没有集中的超大型王都、城邑来彰显王朝的外部权威,而是在商王所在地周围安置星散的族群聚居中心拱卫王都等;另一方面,在精神层面上采取更加紧密的约束,譬如牢牢掌握祭祀与占卜的权力。商王作为沟通人与神的唯一中介,通过频繁的占卜,为其精神权威与行政诏令提供合法性保障,从而起到整合社会的作用。
西安半坡遗址圆形房屋复原想象图
据刘敦桢主编《中国建筑史》第一章第二节
西安半坡遗址方形房屋复原想象图
据刘敦桢主编《中国建筑史》第一章第二节
河南偃师二里头宫殿遗址复原平面图
据李允鉌《华夏意匠:中国古典建筑设计原理分析》第四章
湖北黄陂盘龙城商代中期宫殿F1遗址平面图
目前已经在距离殷墟相当遥远的地方,通过考古发掘发现了多个历史上并没有记载的文化中心遗存,它们可能代表着与商王朝保持时好时坏、若即若离关系的古代方国。如山西高红古城遗址、湖北黄陂盘龙城遗址、江西樟树吴城遗址、四川广汉三星堆遗址等,乃至位于陕西岐山凤雏村的晚商至周初的遗址(可能是在历史文献上有记载的周)都是当时的方国都邑宗庙所在。至于郑州商城遗址,则可能与商代晚期都城殷墟在文化上有先后从属关系。
商代方国在文化上的高度发达,可以看作是商代王室在政治秩序上较松散的约束带来的结果。它使得新石器时代晚期就得到充分发育的地域性古国文化,能在服从和借鉴商文化所取得的成果上获得更大的周旋空间,实际上最后的效果是推广了商人所奉行的文化价值体系。商王朝这种在政治上一紧一松的做法,也为后来推翻商朝的西周王朝在周初就以分封诸侯的方式,来处理与区域文化政治集团的关系,起到了启示作用。
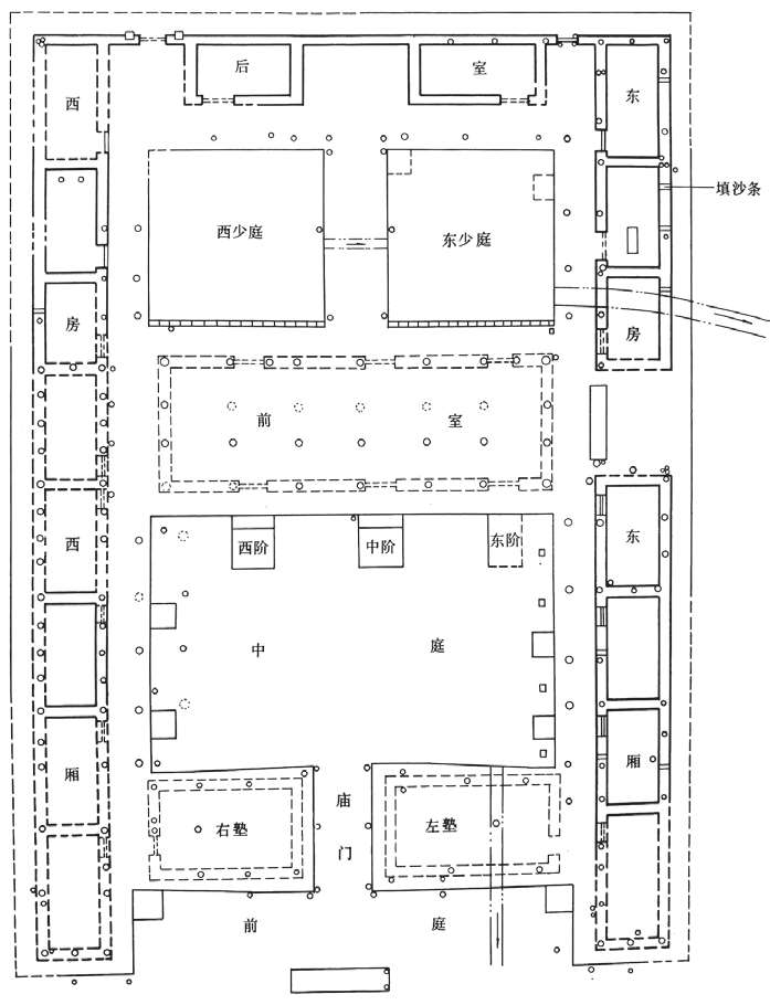
陕西岐山凤雏晚商—西周早期宫室(宗庙)遗址平面图
虽然没有发现商王朝建设有类似二里头宫殿建筑群那样规模宏伟的王都或宗庙,但在郑州商城、湖北黄陂以及安阳殷墟,仍然发现了许多宫殿式建筑。这些显然是供政治集团上层使用的公共建筑,沿袭了二里头文化宫殿建筑的基本格式:横列数间的大殿耸立于夯土台基之上,有的周围建有回廊,因为采光,多南向而建;宫殿位于更宽大的夯土围墙内,墙内外或建单廊,或建复廊;复杂一点的格局,会有多重庭院。大型的宫殿建筑需要驱使大量的劳动力,并耗费大量的材料。这些宽广巨大的房舍和中庭并非是以生活实用目的来进行规划的,而主要是为了恰当地彰显商王的权威。
从考古资料上看,商代的民居和新石器时代晚期的民居差不太多。因为青铜工具的使用所导致的社会飞速发展,使得社会分层日益严重,属于社会顶层的宫殿建筑变化非常迅速。在外观上,宫殿建筑除了体量增大、台基逐渐增高、功能区域的划分更复杂之外,还有装饰上的增加,如梁、柱等木构件和墙壁上的彩画、玉、石雕刻件的镶嵌及青铜铸造附件的增加等。作为地位、财富、权力的象征和国家政治中心的传统中国宫殿建筑的基本要素,在这个时期已经大体具备了。
人类建造的所有礼仪性建筑,包括宫殿、宗庙、陵墓以及各种信仰的殿堂,都是人类在发现了速朽的人生这一不可逃避的现实之后,表达对不朽的期望或者希求的一种方式,或者至少是对不朽的某种仰望方式。在普通民众每天都必须经历的现实人生中,这种仰望或许会给他们带来生活的信心和希望,而不至于过早地被现实生活所窒息,避免更快速地朽化,复归于自然。伟大的建筑,从一开始就是人类用以自证其存在的方式,而并非仅仅是遮风避雨的生活实用品。
商代之后,有围墙的宫殿建筑经过长时期的传承发展,内部的空间分割和周围的附属建筑也越来越复杂。但是,先民创造的这种建筑格局所营造的神秘、威严和尊贵的气氛却与日俱增,在历史悠久的中国皇权专制社会中,发挥着巨大的社会精神凝聚作用。也就是说,作为文明中心的象征物,兼具皇权的具象外化、精神的纪念碑性、财富积累的表象等多重性质的中国宫殿建筑,是中国精神、文化、艺术最具体也最抽象、最繁褥也最简约、最深刻也最直白的物态化的表达。