



二百户村所处的华北平原地形以及麦作体系的基本布局塑造了传统时期村落居住的基本格局,表现为“聚村而居、傍户而住”的整体居住形态。这种集居的村庄,其人居、神居、祖居、公共设施、集市等有着其特定的空间分布,而这些都影响着村民的生产、生活以及村落内部治理。本节拟从村落生产生活的“高度集中化”特点及其关系等方面进行探讨。
村庄的宏观环境决定了其内部的布局。从村庄居住格局到房屋内外布局,深层次揭示了二百户村庄的华北平原底色。
1. 聚村而居,以土为伴
在民国时期,二百户村如同周围其他村落一样,村居被土地所环抱着,深受大地的滋养,村民聚村而居,形成了“一片地,一个村”的总体格局。除了园子地分布在村落内部,用于种庄稼的土地均分布于村庄之外。环住在村庄边缘的户,与最近的土地仅为一条道之隔,村落大部分土地集中在房屋周围,村落以土地为伴,形成人与土地相互依存的生存圈。
2. 局部傍户建房,整体排列无章
在集居形态下的二百户村庄,村落内房屋锦簇,以胡同和街作为通行要道,基本形成了“局部傍户建房,整体排列无章”的格局。杨文增老人讲述说,“过去的房屋乱着呢,在村里买了地,房子想建在哪里就建在哪里,爱挨着谁就挨着谁,没有统一的规划和方向,全是看个人意愿。1949年后,村庄统一进行集体规划,才形成有章有序的‘排子房’”,由此我们可以看出,尽管村庄以集居格局呈现,但并不是现代意义上排列有序的结构,房屋局部布局则是根据村民的意愿进行安排。在看似“乱”的院落中,却又彰显出一种“序”,因为大多数村民选择的是相邻建房,即“傍户而居”。
村庄建房就是踩房基地,公家未对房屋建造标准进行规定和限制,村民在自己的地上能自愿安排房屋构造,但具有群居性的村民并不喜欢将房屋孤零零地伫立在一边,如果建在他处,村里的人会觉得那一户人“野”,那么这户在邻里关系上就可能遇到麻烦,所以“这里一块那里一块不好,大家还是集中起来好”。因此,从局部来看,一般是由几个院落形成一排房,或者条件好的户单独建成一排房,不过大多数村民没有那样的条件,也就选择相邻建房。在一排房屋的结构布局中,房屋朝向具有一致性,当然,房屋大小、长宽、高低、间数都没有统一要求,地基也可以不一样高。由于村落内分布着多个姓氏,一排房既有同一姓氏的,也有不同姓氏的,同一姓氏有不是亲属关系的,不同姓氏有关系要好的选择建房在一起,也有不熟悉的,建房后久而久之成为好邻里。户大人多的基本会选择建在一排。如杨文增家,前街一趟街都姓薛,后街一趟街都姓杨。在村里,除了条件好的户,没有谁的能力能够将院落独立成一排房,不过,相连建房,自己便也有街坊邻居,在“远亲不如近邻”的观念下,村民都在为自己能够建立良好的街坊邻居关系而考虑和打算。
3. 修墙筑院,以院为家
香河城素有“小北京”之称,二百户村便坐落于香河城南偏西6公里处。北京城的味道自然弥漫到了二百户村庄,如话语里的京腔京味、房屋讲究四合院格局等等。此处便是要介绍二百户村庄“以院为家”的四合院结构。
受地理、气候、降水等自然环境以及人文环境的影响,南北方的房屋结构有着本质上的差异。在二百户村,冬季风势力强,基于院墙能够阻挡冬季风,利于房屋的保温的因素考虑,院墙是房屋的基本特征之一。虽然家家户户谈不上高墙大院,但是每家每户都建有院落,或高或低,或大或小。房屋周围修建院墙,除了基本的防寒功能,院墙的高低大小也是一族身份地位的象征,条件越好的人家,院墙垒得越高,院墙也就越大,“屋里边是啥情况根本不知道”。可见,院墙不只是将一家人或同姓人“围”起来,其封闭性和开放性的双重性质,正是反映了中国传统时期的社会观念和生活方式。除此之外,院墙还有防卫的功能,传统时期,村庄时而会发生偷窃的事情,即便是家里条件一般的户,如果被下院子的人
“看中”,家里的牲口或柴火都可能被偷走,因此,修建一个结实的院墙对于防范下院的人是必要的。
以院落形成的家户住在同一个院子,但这里面的人不一定是单家独户,有的也有好几户,有不少家庭在分家之后因无法另外修建新房而继续生活在一起的情况,只是里面是有权属规矩的。这些所指的几户人家,除了基于血缘关系,即因分家由一户产生多户的情况,也有因双方关系好而同住在一起的。如二百户村人赵青和王武和两户人,王武和家从其父辈开始在天津做买卖,在村里已经没了房子,便住在好朋友赵青家,因王武和时而会回村,赵青便专门从家里收拾了一间屋子给王武和住,不收钱。
如上文讲述到,村落的房屋都建有院墙,但居住在同一院落内的,有单家独户的,也有分了家后几户人家仍居住在同一院落的。在传统时期,一般人家的房屋没有明显的标识,不过,通过门脸可以辨别这户人家在庄内的钱势地位。据村内老人介绍,家里经济条件与门脸的高低、大小、精致是成正相关的,条件好的人家就是“大门脸”,一般的穷户就是“小门脸”。对于门脸的大小讲究,杨文增老人这样说道,一方面,在有条件的人家,家里地多,种植的庄稼多,进出门需要赶车,门脸的宽窄要比车的宽度还要宽;另一方面,传统时期“下院子”多,足户家里贵重东西更多,为了防止“下院子”来家里偷窃,也需要将门脸修得高大。除此之外,为彰显家门的地位和气势,越有条件的人家,门脸越是高大。因此,在村民的日常言语交流中,一说到谁家是“大门”,就知道哪家有钱有势,一说到谁家是“小门”,就知道他家是一般户。可见,“大门”与“小门”已成为二百户村落家户地位的标签。
在二百户村人看来,房屋不宜多建,因为家产都是通过一代一代辛苦积累节省下来的,开源不容易,加上“房多累主”的思想观念让二百户村人在房屋上的花销保持着一定节流。房屋不多建,也不会少修,房屋不会繁华装饰,但大户人家也有一定讲究,村内富农老薛家因家里人口多,共建有砖房41间、棚子12间,再如杨文增家、邵旺家,因家里条件好一点,在房屋院墙还建有“大土墙”,房屋内还有影壁。可见,在房屋的修建上,二百户村人有着自己的一套行为范式。
受寒冷的气流和风霜影响,北方的冬天格外冷,为了多采集阳光,房屋的门脸一般朝向南方,也就是“坐北朝南”,不过并非现在意义上的“正北正南、正东正西”走向,对于居住在一起的一趟街的几户,房屋朝向一般具有一致性,否则显得格格不入。
1. 边界基本概况
房屋边界主要分为两种情况,一种是相邻房屋的边界,一种是因分家在原有房屋内产生的边界,两种房屋界线在二百户村都不是特别清晰。
首先是相邻房屋的边界,也就是“共墙”。一方面,地表的边界看宅基地,因房屋均以宅基地为基础进行修建,宅基地的四至在哪里,边界便在哪里。而宅基地的边界物一般是埋石灰桩,在地上凿一个窟窿,将石灰灌在里面,形成一个石灰桩。但是地标一般埋在地下看不见,刚开始做一个记号能看见,时间久了,边界就不清晰了,石灰桩埋在地底下,一般不会被毁坏,因为房子盖好了,家里几辈子都不会动宅基地,即便是重新修建,只要宅基地还在,都以此为界。如果宅基地有变更,则会重新做石灰桩标识。另一方面,对于地表之上的边界,这需要看两房屋是否相连,如果两家的房子挨着,建房就有墙,建房就以院墙为边界,因此有“院墙就是边界”之说,东西方向的邻居以两家的院墙为边界,南北方向的邻居中间有道(名叫“管道”
),道留二三丈宽,能使大车通过就行。如果房屋不相连,则看胡同,胡同由两家共同预留,边界“对半分”,一家一半,即以胡同的中间为边界。胡同虽然是两家人留的,但是村里的人都可以走,因为这两家人也会经过别处的胡同。
图2-3 相连房屋界线
图2-4 不相连相邻房屋界线
其次是因分家产生的房屋边界。传统时期,子女与父母分家后,如果家里有多余的院落或是有余力修建新的房屋,分出去的几兄弟便搬出去住。如果家里条件不够修建新的房屋,在原房屋够住的情况下,分家后的兄弟仍同父母居住在一个屋檐下,只是各房各屋明晰了产权和使用权,则:一是对于私人的房屋,谁占房谁就使;二是共有的屋共同使用,如老二老三都在西厢房(分南北两间屋),“中间那间房屋都是一起使用,一家一半就得了,没有分那么细致”,对于中间的外屋边界便不那么清晰了。
2. 房屋边界的确立
房屋周边基本没有无主之地,没盖满的也算是房基地,可以留着种园子使。房屋宅基地的地,一是祖业地,二是自己买来的地,宅基地以及建成后的房屋可以出售。房屋边界的确立,不需要中人,因为在买地时边界已经确立好了,地边界就是房屋的边界。房屋的边界不需要告知四邻,也不需要到保甲长处登记,一是买地有地契,房基地都是自己的,二是家家都有房契(房文书),在官府进行登记即可。
对于房屋周围的空地,或者房屋修建后剩下的空地,均归买地的人所有,“谁买的地就归谁”。空地上的附属物,如有一棵树,树在谁的地上就归谁。相邻建房时,总的原则就是不占不挤别人的地。两家人之间,如果是就着人家的墙盖(村内有“垒东不垒西”之说,下文有解释),需要给邻居说一声;如果不就着人家的墙就不用说。对房屋进行扩建,主人家不需要向任何人汇报,只要修的房子不挤占别人的宅基地,不影响别人家即可,如窗户不能对着别人家的门口等等,主人家享有修建房屋的自主权。如果是拆房,不需要向邻居说,也不需要向保甲长汇报,不用申请,“拆房比建房容易,自己家动手拆都可以”。自家劳力够用,便不必请人帮忙;如果劳力不够用,可以请关系不错的人帮忙,管饭不支付报酬,或者雇人拆,开小工的工钱即可。在一般情况下,拆房的都是属于“白帮忙”,管饭喝酒即可。对于拆除后的房屋材料处理和分配,二百户村人讲究“旧砖打里,外面垒新”,即破老土用于垫底打地基,外面用新砖。破老土还可以当肥料使,“一把土都是好的”,没有浪费的土。
3. 房屋边界纠纷
房屋与房屋之间,都是你挨着我,我挨着你,房屋处不种地,即便是园子地,也不会挨着种。同时,因二百户村地处北方,雨水较少,房屋均没有排水沟,因房屋边界发生纠纷的情况是少数。不过据杨文增老人介绍,建房有一种对比心理,如在院墙的修建上,“你高,我还高,下次你再高”,只要有钱,院墙的修建一次比一次高。杨文增家在修建房屋上就和邻居发生过矛盾纠纷,两家闹得不和就一直不交往。
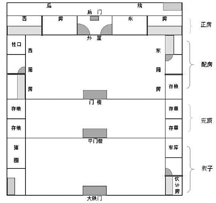
1. 房屋概况
二百户村的房屋,整个院的构造分为正房(上房)、配房、鹿顶、棚子以及后院五部分,杨文增老人讲述,棚子西侧的两个猪圈不算房。因此,共有18间。
图2-5 1949年前杨文增
住宅示意图
从杨文增家房屋的结构图可看出,正房(上房)共五间房,(大户一般是5间正房,贫穷人家3间正房,最穷的也有两间房,但是不会出现4间或6间双数正房),这样的房屋也叫“四梁八柱”,因为一根梁需要两根柱。每根柱顶部方向有一“柁头”,用于年节贴“萝卜钱”。右侧两间叫东房,也是整个房屋的主房,辈分最高者居住;左侧两间叫西房,相对于主房来说是次房,辈分次高者居住,家里的小孩一般安排在东房或西房,和家里长辈一起居住,“未成婚的子女不单独居住,一般随父母等长辈居住”。两间东房中间有1个柁,柁一般是1丈5尺5长,具体情况根据房屋大小而定,“照着地方大小来”,柁即房梁,房梁撑起的就叫房顶,为了保暖、美观,会在屋内的房顶上用秫秸搭一层架子,糊上一层专用的带图案的顶间纸,叫作“糊顶棚”(或糊顶间),顶棚一般糊龙凤花纹,不过一般人家不讲究,糊白纸即可,这样的叫“白顶棚”。另外,房顶四角有四个云子勾,像云一样,象征吉祥,两间东房白顶棚中间分别有云子勾,此设计只用于东房,其他房门不需要。中间那间房叫外屋,外屋东南角和西南角各有一个锅台,锅台产生的暖气分别通向东西房的炕,冬三月得以取暖。住人的地方才有锅台,为了烧火取暖用,厢房若是拴牲口用,则不需要修建锅台,或是家里是3间正房,或只有东房住人,则在西南角修建一个锅台。
配房分为东厢房和西厢房,厢房不分主次,成家的儿子随意挑选房间居住,住人的那一方会有锅台,取暖使用。没住人的厢房可用于搁粮食,拴牲口。对于一般条件的家庭,并不是东西厢房均会修建,或是修建一侧,或是不修建厢房,修建一侧时以西厢房居多。
鹿顶和棚子不是家家户户修建,一般条件的家庭没有修建棚子,有需要、有条件的家庭修建。鹿顶如果不住人,则主要用于存放人吃的粮食以及牲口吃的粮草。平门楼里面的屋子才算是房子,平门楼以外不算房,因此,此部分就叫棚子,主要用于饲养家禽、存车以及做活的伙计居住使用,做活的人不在院子里住,全部安排在院外住。另外,家里有条件的,一般会在家扩建一个后院,可以用于堆放杂物等。
类似于杨文增家庭这样的房屋,则建有3道门,从里向外,分别是门楼、平门楼、大铁门。其中,门楼做工最精致,平门楼次之,大铁门做工最粗糙。每道门会形成小院,院内没有其他的构造。门楼就是房屋的出入口,院内主要是主人家居住,门楼和平门楼均位于房屋的正中央,平门楼的“平”在于门楼是平面,下雨不会打湿。大铁门用铁铸成,且位于东边,象征出入平安、吉祥如意,村内有“西边是鬼门,东边是喜门”之说,因此最外层的门是“靠东不靠西”。年节贴门联时,3道门都贴,贴门联的主次是根据门的主次。
厕所的讲究视情况而定。其一,男女厕所分开使用。在条件好的家庭,男性、女性一般分开使用厕所,房屋内有两个厕所,两个厕所不会挨在一起,一是男女有别,二是大户家庭人口多。厕所一般分布在房屋的不同位置,一处是后院的西北角,为女厕所,只能家里的女性使用,另一处在棚子的西南角,为男厕所,和猪圈是连通的,统一收集粪便,由家里的男性和伙计使用。其二,不分男女厕所。这样的情况一般是条件普通的家庭,家里人口少,直接在西边建一个厕所。其三,厕所随家庭人员状况的改变而变动。如家里只有1个男孩,不管结婚与否,都可以修1个厕所;若家里有两个男孩以上,没有成婚,就修一个厕所,若有一个成婚,就要修两个厕所,男女分开;家里有几兄弟的,分家但是没有搬出去,仍居住同一个院子的,也需要修建两个厕所,男女分开使用。
在北方,炕是必不可少的。据杨文增老人介绍,做炕需要先做坯,将秫秸和黑焦土混合,放置在长1尺2、宽8寸的坯模子里,用脚丫子在秫秸和黑胶土上面踩结实,最后做成坯。根据炕的大小,使用的坯数量不定,小炕需要100多块坯,大炕则需要200多块、300多块不等。所有的坯均是立着放、斜着放,形成一条“火道”,便于锅台产生的烟顺着火道流入,均匀产生热量,立着放的坯上面还会再盖上一层坯,盖好就抹泥打炕,铺炕席,铺炕被,一个合格的炕便形成了。
有条件的人家一般建有影壁,一个院落修一个。影壁位于最内侧的大门,即门楼里面,和大门相对。影壁比门楼要宽要大,既能防止外面的人看见屋内人,一定的封闭性又能保护屋内主人的隐私性,使里面的人不受外面的影响,还能表现家庭地位。
对于院落住宿的安排,一般情况下,东边住公公婆婆,西边住儿子媳妇,没成婚的孩子都不单独住,跟着父亲母亲住,即便家里有七八个孩子也一样住,“炕大能睡下,实在不行,爷爷奶奶还在,可以把小孩安排在其爷爷奶奶房间”。只有结了婚的儿子,有了新媳妇,才可以单独住。例如对于有5间房的家庭,家里有两个儿子,两个孩子长大成家后,则1人分两间半的房,所生的小孩都跟着父母一块住,或者随着爷爷奶奶住。
传统时期,比起对房屋的要求,二百户村的人们更看重土地的价值。他们认为,土地产生的价值是源源不断的,除了冬三月,土地没有“闲”时候。在他们看来,对于房屋,好的也住人,不好的也住人,投入再多也生不了财,房多反而累主。因此,在对房屋居住要求上,绝大多数村民认为有地方住就好。在村民看来,诸如富农老薛家在村内有40余间房屋、副乡长卢木斋家的蓝砖房就是气派的房子,气派的房子一般只有条件好的户修建,而房屋原材料类型、房屋间数、影壁等便是衡量房屋是否气派的标准。
表2-17 民国时期二百户村部分村民房屋基本情况表
资料来源:此表根据河北省香河县钳屯公社二百户大队《阶级成分登记表》(1966年)绘制而成。
从表2-17可看出,总体上,二百户村村民家庭条件越好,房屋居住条件越好,以砖房为主,房屋数量占有量也越多,基本在8间以上(8间房即为5间正房、3间厢房);家庭条件越差的,房屋修建类型基本是土房,且房屋数量在5间左右,甚至没有房屋。具体来看,房屋居住也呈现出一定的差异性,如地主卢俊丰家(其父卢文林为当家人),房屋居住类型是土房,且只有8间。
2. 房屋的修建
房屋新建或扩建由“老的”决定,即由当家的做主,“家里辈分高的商量”。在二百户村人看来,建房既是一件常事,又不是一件常事,因为家家户户都会修房子,“谁没修个房子住,有大有小而已”,但因房子具有相对稳定性,一定时期不会变动,要建房、扩房,那都是有钱人家干的。建房时,不需要向保甲长汇报,不用告知亲戚,盖好之后也不需要说,不需要去保甲长处登记,大家早晚都会知道。
建房用地,一是祖辈留下来的地,祖上留下的空地很少,一般是将原房屋拆掉,在宅基地上重新修建,二是买别人的地,可以用于扩建或新修。房屋只建在自家的地上,如果地少了,有钱再买一些地建房用,没钱的就按照土地大小修建。只要是自己的地,就可以在上面建房,不需要向保甲长汇报,也不要政府审批。
据民国二十五年(1936年)《香河县志》记载:“居室,乡间则瓦房必缙绅之家,农民不能也。寻常小康之家,以砖土房为上,其余均为土坯房,足蔽风雨而已。”传统时期,根据家里的经济条件,二百户村的房屋主要分为3种类型。一是“土坯房”,没有钱的人家买不起砖,就用泥巴建成,“三面拍墙建房”,又叫“板打墙”,即三面是泥巴拍的土房,正面那面窗户用砖,窗户用砖讲究13行,加强房屋的稳固性,防止房屋坍,即窗户下面有13行砖,砖的上面就是窗户和门。因是用泥土盖起来的房,也叫“盖土房”。二是“软心房”,也叫砖土房。这类房屋主要是中等人家修建,房子下面共六七层砖,一层砖大约8寸高,垒上7层左右的砖,上面就是大土坯,因房屋下面硬,上面相对较软,就叫“软心房”。三是“蓝砖房”。这类房屋一般是有钱人家盖的房。传统时期有颜色的砖房,均是蓝砖修建而成,没有红色的砖,因此将蓝色的房屋叫“蓝砖房”。蓝砖和现在的红砖区别在于是否用水印(指从窑顶向下淋水),用水印过的砖,里面不含碱,故呈蓝色。二百户村内,一般人家不会盖全部是砖的房子,和修房子比起来,宁愿留点钱置地。
至于建房的工序,定是从打地基开始。杨文增老人介绍说,过去修房子,先打地脚,将宅基地剜出槽来,一层一层垫土,再用碌碡
砸,将土砸结实,一层一层垫高,然后开始垒房,上檩条,上箔(秫秸箔),上泥。对于脊檩(上梁),房屋有固定的讲究,一般情况下,一间房有7根檩,6根小檩,中间1根大檩,大檩就是脊檩。上檩条时,先上小檩,脊檩暂时不上,将脊檩搁在地上,待到上梁的时候就上脊檩。上梁不需要通知保甲长,也不需要跟亲朋好友说,主人家会让帮工在家里吃一顿好的。房屋盖好后不需要请客吃饭,在上梁时已经请过一次了。
修建房屋时,“一三两人两瓦匠,后檐只需四瓦匠”,一般10多个人就够,具体人数跟建房的大小、精致度等有关系。修建房屋,不需要请人设计,家里长辈知道怎么修,主要请木匠、瓦匠、除泥搬砖以及帮忙的人,木匠和瓦匠属于大工,除泥搬砖的人属于小工。大工和帮忙的人由主人家去请,小工不用主人家专门找,请了大工,大工会去找小工。他们一般是本村的人,“本村人够用时,不用请外村的,人手不够才会请外村的”,请的人当中,亲戚占少部分,一般是村里的人互相帮忙,这次你帮他,下次他帮你。家里有木匠或瓦匠这类手艺人,则不需要再请。在分工上,不同的人负责的工序不同,木匠主要是负责檩条,瓦匠主要负责垒墙,其余的人负责除泥搬砖、打下手。对于大工的报酬,工资和管饭分开,一般会说“管饭多少钱,不管饭多少钱”,换句话说,如果主人家管饭,大工工资就会少一点。请了小工的,主人家多少表示一点。如果是来“闹忙”的,不需要开钱,管饭即可。
传统时期,修建房屋工序简单易操作,盖房子在二百户村人看来不是一件很困难的事。例如盖一个5间的大土坯(即土房),村里有句谚语,“一天起来大土坯,两天能上箔,三天就冒烟儿”,也就是说土坯房一般三天就能建好。当然,这是最简单的房屋,如果是砖房,或是软心房,花的时间会多一点。总之,修房子“简单就省工”。
除了修房时间要看房屋的结构和所建造的类型,修房子的花费也是视其而定。修建房屋“简单就省工”,大土坯房最便宜,蓝砖房最贵,并且原材料买得贵就多花钱,买得便宜就少花钱。具体来说,房屋的花费一是木工、瓦工工钱,二是木材、砖等原材料价格,三是办伙食酒钱等费用。没有钱的人需要修建房屋,如果家里建房差钱,首先向亲戚借钱,因为亲戚就算再难多少也会借一点;若是钱不够,再向关系好的街坊借钱;如果钱还没有凑齐或是没有在他处筹集到钱,家里有土地的,会临时卖出一些土地,这样临时出卖的土地价格一般比平时低。当然,修房子的人不会卖出太多,多为一两亩,一是土地有限,得留土地过生活;二是修房子花不了多少;三是此时的价格低一些,卖太多土地不值。一般人家修房的钱差太多,怕借了钱还不起,也不会轻易修房。
建房也有其相应的讲究。关于院落的“共墙”,讲究“垒东不垒西”,即一趟街的几户,靠边上那家需要垒两面,其余几家垒东面院墙即可。在院墙的修建上,不讲吃亏不吃亏,这是长期以来大家已默认的一种建房方式。在院墙的产权上,谁垒的就是谁的,两家相连的院落,这面共用的院墙便是分界线。另外就是忌讳,一南一北前后两家的房屋,有“窗户对着门,必死人”一说,例如有AB两家,家户A位于南面(居前),家户B位于北面(居后),家户A后墙的窗户不能和家户B前院的大门对着。具体来说,如果家户A的房屋后盖,家户A在房屋上修建的窗户,不能对着B家的大门,否则B家认为不吉利,会死人,家户B可以要求家户A挪动窗户的位置,不然两家会产生矛盾;同理,如果家户B后建房,其大门口不会对着A家的窗户修建。杨文增家重新修房时,后边的邻居不允许他家的窗户对着邻居家的门口,否则会对邻居家不吉利,最后杨文增家也没有修建后墙的窗户。
使用一年的房屋,需要进行维护,主要包括脱坯打炕和抹房,先脱坯,再打炕,最后抹房。一方面,“一年一脱坯,一年一打炕”。由于锅台老烧,里面就会产生黑烟,炕使用一年后,烟会把炕下的火道堵住,“不打不好烧,里面有黑烟子,冒烟熏人,炕还不暖和”。因此,每年都会将坯从炕里“请”出来,炕里的坯重新脱,请出来的坯或是继续用来抹房,或是拿去当庄稼肥料使,“没有浪费掉的土”。另一方面,抹房,“一年一次抹”。抹房也称泥房,尤其全是用泥巴做成的土坯房,需要一年抹一次房,“省得漏水”,砖房则不用,修新房的时候也不需要抹房。抹房一般需要4个人,1个锄泥,1个递泥儿
,2个抹工,1个抹糙,1个抹细。抹房一般不需要请人,“自个儿弄”,家里人手不够可以请关系好的邻居帮忙,但是不需要给钱,管饭即可。抹房、脱坯和打炕一起,将炕里请出来的坯用水泡软,抹房直接使,房屋结实。
抗战时期,卢景华买了一块地,之前是一片荒地,大概有二三十亩地,土质不好,不能用于种庄稼,便将这片地卖出去用来给大伙盖房,盖了一趟街,最后叫“新世界”。从头一家开始,依次是赵坤、罗进财、张连贵、丁文玉、老宋家五家,其中,老宋家是二百户人,曾搬到红庙村居住,但在抗战时期又搬回二百户村。
传统时期,二百户村内有西大寺、东大庙(老爷庙)、菩萨庙(关堂庙)以及3处土地庙(又称小庙、五鬼庙)。所有神居均位于村庄内部,具体来说,西大寺位于村道西侧,东大庙位于村道正北方向,菩萨庙位于东大庙不远处的西南角,3处小庙分别位于村落的东北角、西南角、东南角。
从各神居的分布来看,人居和神居交错分布,具有一定的分散性,不过寺庙更多集中于村落的中北部,这里也是人居最集中之地。神居的分散修建,保证了村内居民的信仰需求,因此,神居与民居之间均不是很远,最近的出门便可看见,如保长邵旺家旁边就是东大庙,杂货铺老板张全靠近东北角的小庙。最远的距离便是庄东南到庄北的西大寺、东大庙处,但都位于村庄内部,距离也不是很远。不过,对神居的信仰程度与距离神居的远近没有直接关系,不一定呈正相关,家里没有信仰的,或是信仰程度不高的,由于很少去神居,对神居的了解也是很少的。
神居并非村庄的中心,但地处庄北的西大寺、东大庙是村民经常活动的神居,久而久之,这两处神居演变为村落的一处重要公共场所。西大寺平时很少用,因此挪了三间房出来当学堂,是村内学生念书的地方。东大庙的公共性更强,如在炎热的夏天,村民会经常去东大庙处的树下乘凉。二百户村有人市,人市就在东大庙处,平时也有不少本村村民以及外村村民会集聚在此处,等待有需要的东家给活干;在闲暇时间,时而也有说书人来村里说书,因东大庙常来的人多,这里也是说书人的最佳选择。当然,这里也少不了做小买卖的流动商贩的身影……可见,神居尤其是东大庙是村内生产生活的重要公共场所。
图2-6 二百户村神居示意图
资料来源:本图由二百户村人赵海手绘。
神居“一早就有”,由公家组织修建,二百户村没有个别家户出资修建的神居。整个村庄统一修建时,由会落组织筹集资金,根据土地多少缴纳资金或粮食,地多的多承担,地少的少承担。据说还会请和尚去募捐,和尚一般是去跟前的村,如果资金筹集不够,他们再去较远的村落,人们多少都会捐点香火钱,因为他们认为,这是在做好事行善。神居由公家雇用的一位本村人看管,“有人伺候着”,人称“宋老道”,原名叫宋翔,家里5口人,妻子和3个儿子,属于贫农成分。在几处神居中,宋老道主要看守东大庙,其他庙里的事情也由他负责,庙地归宋老道种,并有一定报酬,报酬由会落出钱,具体数目无从考证。二百户村虽有神居,但是没有形成相关的组织,也没有大型的庙会活动,村内人赶庙会均是去周围其他村落。
村庄内部的神居,均由二百户村组织修建,没有与外村联合修建,外村也有自己的信仰神居,各村负责各村的神居修建。因此,村内的几处寺庙,产权归属于二百户村落所有。不过,外村人可以祭拜村内的神居,本村人也可以去祭拜外村的神灵,赶庙会活动,只要有这方面的信仰,大家都可以参加。但由于二百户村没有大型的庙会,并且各村有自己的神居,基本没有外村人来村内祭拜,反而是村内的居民会去其他村落赶庙会。这种跨村庄的赶庙会活动不用给各村的保甲长汇报,也不用给庙会的负责人说。
总之,作为传统时期文化生活的一方面,神居在二百户村内的形成历史较长,是村落重要的精神信仰。每月初一、十五,村民便会去东大庙烧香,家里有信佛的或者家里有什么事的,不论男女老少,都可以去庙里烧香拜佛。相对于其他几处寺庙,村内的3处小庙是家家户户都会去的地方,因为小庙是给过世的人送纸的地方,谁家有去世的人,就要去小庙送纸,寄托着家人对逝世者最后的祝福。
1. “一姓立一个祠堂”
传统时期,二百户村的大户主要有卢、宋、赵三大姓氏,尤其以卢姓居多。据卢廷喜老人介绍,二百户村建有少量祠堂,这些有限的祠堂主要是大的姓氏修建,大姓氏家里人多,修族谱建祠堂,小姓氏的家族,人口少,经济条件一般,不会修建祠堂。一个姓氏一个祠堂,均是本族人,因为建祠堂主要是为了祭拜祖先和长辈,那么,不是同一个姓氏的不用祭拜。这也决定了在修建祠堂时,以本族人为修建单位,族里统一筹资修建,组织安排修建。因修建祠堂的都是大户,大户人多劳力多,在修建祠堂时优先安排本族人,劳力不够,再请村内其他年轻力壮的人“闹忙”。
2. “一人立一个祖匣”
祠堂里都摆放着祖匣。祖匣,一个人立一个牌位,即一个匣子是一位,祖匣外面用一个匣罩着。祖匣放到辈分大的家户中。“祖匣放在家里,搁在大条上,不是每家每户都有,一个姓的,就放在那一家,其余的户,上了三辈、五辈的就上那家人去祭拜,不单立”。据卢廷喜老人回忆,老卢家的祖匣就放在后院那家(具体人名不详)负责管理祖匣的人家,其家里经济水平中下,但因其辈分较高,家里摆放有3个匣子,祭祀时同姓人家便到他家祭拜,不过,“不是年夜,没有谁去祭拜”。当然,家里经济条件好的人家,也可以摆放祖匣,如副乡长卢木斋家中,也摆放着老卢家的祖匣。祖匣摆在谁家,由谁家出钱制作与管理,同姓氏的人不进行费用分担。
祠堂建在村内,与民居之间的距离很近,最近的民居与祠堂隔一条胡同或一条管道,如卢廷喜老人家距离老卢家的祠堂仅有一条街。同时,由于村落聚居的居住形态,最远的民居距离祠堂也只有几趟街的路程。
祖居,是供奉一族祖先的场所,也是传统时期各类祭祀活动的场所,是族内惩恶扬善、解决矛盾纠纷的场所,它是一家血缘的延续和流动,凝聚着家族的人与心,也是族人的精神归属。不过,在民国时期,因各种原因,村内祠堂的概念和功能逐渐淡化。据村内老人说,那时候主要是在年节祭拜,并且是对着祖匣祭拜,祖匣主要放在本族辈分高的人家中。所以在当时,祠堂对二百户村落生产生活的影响已逐渐变弱,在祭拜的时间和对象上,主要是清明祭祖、年节祭拜祖匣(已逝的祖宗)以及村内尚在的长辈。
1949年前,二百户村落没有形成固定的进行买卖交易的集市。村民赶集以香河县、河西务、安平三个集市为主,二百户距离香河12里地,距离安平12里地,距离河西务13里地。香河逢一、三、五、七、九有集,其中,一、七为大集;逢二、四、六、八赶河西务集;逢二、五、八、十赶安平集。另外,也有湾屯集市,距离二百户村18里地,刘宋集市距离二百户村30里地,因距离较远,去湾屯、刘宋赶集的人占极少数。“门口有现成集市,爱赶哪里赶哪里”,对于二百户村来说,“首集就是香河”,其次便是河西务集市、安平集市。1949年后,随着交易往来的增多,形成了二百户综合集贸市场,每逢农历一、三、七,跟前村落的村民都会到二百户村赶集。
传统时期,村落虽以一家一户(家户)为经营单位,但并不能实现完全的自给自足,村民日常的买卖与物品交换也就变得格外兴盛,尤其是二百户村在当地来说是一个大村,需求量较大。因此,村内虽然没有形成集市,但时常有各种流动商贩进村,或是走街串户,或是去东大庙前吆喝,或是去西大寺串学校。流动商贩中,有卖吃的,如花生挑、炸馃子、烤红薯、羊肉、牛肉等,有卖用的,如估衣、花样、针头线脑的,还有串学馆儿的、打铁的、剃头的。流动商贩有男有女,有本村的也有外村的,他们早上出门,中午打道回家,不在农户家吃饭。
“人多需求大”,村内还开有“德山永小铺”等杂货铺,以经营油盐酱醋等杂货为主,开小铺无须经过保甲长同意,自由买卖。不过,村内有条件的人家在香河城开有“祥记杂货铺”,家里的儿子负责经营,但赚来的钱得上交给当家人。另外,村里也有人做小本生意,多是自己找关系不赖的朋友,搭股来做生意,分工合作,自由经营。村里有油坊、糖坊、粉坊、烧锅、窑地等8处,但是由于利润低薄,大多以“散伙”收场。
集市作为交易进行的公共场所,除了其本身的内涵之外,随着市场活动的进行和发展,也成了村落遛弯儿玩耍,瞅瞅热闹,逢逢熟人的场所。当然,村内大多数人家,仍是去集市进行买卖交易活动,或是购买家里需要的商品,或是去集市卖些东西挣点小钱。遛弯玩耍的人,要么是家里条件好,有时间有精力去,要么是不务正业好来耍之人,而对于一般户,每天都有农活,没有闲暇的时间,对于扛活的或打短的人来说更是没有机会上集市。但是在逢年过节就不一样了,如年节(春节)等,集市尤其热闹,村内有更多的人赶集,或是买卖,或是凑热闹玩耍。
传统时期,村落公共空间作为村民生活形态的一种载体,是村庄居民生产生活和公共活动的主要场所,体现村落居民的生活观念、理想和价值观。
自村落形成以来,基于村民生产生活需要,村内逐渐发展形成了水井、石碾、石磨等公共物,他们位于村落内部,分散在村庄主要十字路口处。在二百户村,对于水井、使土坑以及碾子,村民习惯添加一个“官”字,称呼它们为“官井”“官坑”“官碾”。在调查中得知,因水井、使土坑、碾子均是由公家修建或提供,为了表示这些地方是公家的,均以“官”字开头。官井、官坑、官碾产权的所有者是公家,但公共空间的使用权是全村,所有二百户籍的村民均有权利使用,大家彼此熟知,使用时不需要向保甲长申请或汇报。
这些公共空间因生产生活需要而生成,反过来,村民在这些空间范围内生产生活。在行为互动中,因寺庙空间产生了信仰关系,因官碾、官坑空间产生了以生产为主的关系,因官井空间产生了生活关系等等。这些地方作为一个空间体,具有界限、大小、尺度等空间形态特征,村民原本在此进行生产生活活动,随着人员的聚集,大家在此进行开放式的交流,逐渐形成公共空间,承担着村落的公共生活。
1. 碾子
(1) 碾子的概况
二百户村没有私人碾子,均是共同使用的碾子。碾子一早就有,因是公家修建,村里人都称“官碾”。村里共有4个碾棚,碾棚用于保护碾子,每个碾棚里有一个碾子,分别位于村西北面、村西南面、村南面以及村东面,以官井沿儿为中心,碾子大体在村落的东南西北4个方向均有分布。4个碾棚中,东面的碾棚是大碾,另外3处的碾略小一点。碾子为石制工具,主要用于碾米压面,即谷子、稻子、高粱等谷物脱壳。碾子占一间屋子,有四五米大,一米左右高,由立头(轴)、石头碾盘、碾轱辘、碾框及碾棍构成。碾和磨有区别,碾是碾轱辘来回转动,形成力,然后压在谷物上。
村落除了有碾粮食的大碾子,还有碾药用的药碾子,药碾子不是公家的,私人一般人家里也没有,这种碾子主要是开药铺的先生用,用脚蹬,一个铁槽,一根细木棍,一个碾,村里有需要用的,可以去药铺向先生借用,在药铺碾好后,不用给先生送礼物或给报酬。
(2) 碾子的使用及规则
推碾子,需要推动碾轱辘转动以碾压粮食,是一项消耗体力的活。因此,推碾一般需要两个人,男女均可,有力气便可。其中一人负责推碾,以男性为主,另外一个人负责扫碾、看碾、装粮等细碎的活,并帮助推碾,以女性为主。村北、村西、村南3处的碾子较小,可以人力推,1—2人均可,家里劳力充足的,也可以多去人,推碾省力。村东面的碾子较大,家里有驴或骡子的,一般会套用牲口助力,家里没有牲口的,或借用关系不赖的人家的牲口,或增加次数,在小碾子处多碾几次。不过对于一般户,一次碾不了那么多粮食,不需要使用大碾。
村与村之间,碾子不共同使用。庄内的碾子由二百户村公家修建提供,供本村人使用,不提供给外村使用,同时每个村有石碾,也不会跨村使用。对于二百户村内的村民,“碾子千家使”,即村里人都可以使碾子,也不向公家交钱,免费使用。使用碾子时,一般是就近使用,距离哪个近就去哪里,“没有谁会背着那么沉的东西满村转悠,累人,就使当屋见儿的
”,若碾的粮食比较多,便需要使用村东面的大碾。使用碾子不按照距碾子远近、长幼顺序、家庭贫富,一般按照“先来后到”的原则使用。若遇到几家一起到,特殊情况下,谁家更着急用谁就先使,或当碾的粮食数量不相当时,碾压东西少的那一家先使。如果碾压物太多,碾压物少的这个人就会等很久。使用碾子遇上人多时,大家也不会争吵,都商量着来使用碾子,“不是自己家的,都没有权利去安排,都商量着使”,因事情急,实在等不及的话,也可以用村里其他官碾去碾粮。
(3) 碾子的占位规则
为了提高碾子的使用效率,可以对碾子进行“占位”。如某家第二天要使碾,头天下午可以用碾棍占位,向街坊四邻表示已经有人要用此碾子。头天占位时,若有人还在使用碾子,可以给他说一下,等他使好了碾子,帮忙将碾棍放在碾子上。但是占归占,占了不去用也不行,如果下一家来了,他等了一会,没有来人,他就会用,占位的人有理也说不过去。如果因此发生了矛盾纠纷,管闲事的人便会来进行说和,说和好了,该谁先使就谁去,这种矛盾纠纷一般能调和好。
(4) 碾子的管理及维护
碾子平时没人管理,但也没有人去破坏碾子,如果有小孩在碾子处捣乱,大人看见了会说教。在村里人的爱护下,碾子耐用,很少或基本不会出现故障,如果遇上碾子坏掉,由公家出点钱,重新修一个。维护主要在碾棚,碾棚由泥土建成,需要一年抹一回,以防裂开或漏水。给碾棚抹泥时,不需要专门请人,因为在使用碾子的人中,“谁爱说话,谁说话灵”的人就会发起抹碾棚活动,有时间的人就会参与,由于碾棚仅一间房,每次2至3人即可,一天可以磨好。磨坊的人是自愿为大家服务,村里不会给予报酬,发起人也不用管饭。
(5) 石磨及其关系
私人没有碾子,碾子是公家的,但是石磨基本每家每户都有。磨是上下两扇相互摩擦形成力,底下不转,上面转。因各家各户都有石磨,不用去借别人家的石磨。石磨耐用,一般情况下,不易损坏,中间木轴坏了,换一根即可。碾子可以人拉,也可以牲口拉,一般使驴拉,1人扫,或者2人推,1人扫。家里雇有扛活的或打短的,由他们套着牲口负责磨;家里没有雇活的,主人家自己套着牲口拉磨;家里没有牲口的,谁有力气谁去磨,男女都可以;家里没有劳力的,可以请人帮忙拉磨,请人不给报酬,关系好白帮忙。
图2-7 二百户村被弃用的石磨磨盘
2. 碾子的公共空间关系
一开始,村民有碾粮食需要的时候,会去碾棚,“碾粮的时候很热闹,你家去几个,我家去几个,大家有说有笑”。尤其是好串门的,或者距离碾棚的人家,闲暇时间会聚在碾棚处聊天说笑。不过村民吃饭不会在碾棚处吃,都是在家里吃,基本没有人将饭端出来吃,否则会被村落其他人看成邋遢之人。
对于村落这些公共设施或公共财产,其他村的村民不会跨村使用,因为各个村都有。如果确实有需要,需要向村落的保甲长汇报,经过公家的同意和许可,得到使用权,否则村与村之间会发生纠纷。不过,对于在二百户村久居的外村人来说,也有特例,1949年前山东有一男子因生活困难来到二百户村,通过编席、扛活,逐渐落户于二百户村落。
当然,在官井、官碾、东大庙等几处公共空间,村民最常活动的场所以及经常聚集的场所是东大庙,因为寺庙有老树,有宽敞的空间,有人市,偶尔有烧香拜佛的人,比其他公共场所热闹。在二百户村,以院落为主的房屋,形成较为密闭的空间,具有一定封闭性,而这些公共空间的存在,为平日见不着面的村民提供了极佳的生产生活场所。
民居、神居、祖居、公共设施等在村落形成的整体性布局,对村落的权力、社会以及家户的生产和生活有着深刻而又持久的影响,继而塑造了二百户村特定的家户性格和村落性格。
二百户村有相当一部分公共空间,具体上包括官井、官碾、官坑、寺庙(尤其是东大庙)等地方。从图2-8可以看出,以官井沿为村落中心,村庄的神居、祖居、公共设施等,主要沿着村落的交通干道分布,位于重要的十字路口处。同时,在分布上具有分散性,散布于村内各个地方,由于村庄东南角人居较少,公共空间分布的数量稍少。整体而言,这些空间坐落在民居内部,虽然是杂乱无章,但呈现出“内聚”“集聚”的空间结构特点,而在村庄边缘以及村庄外部,公共空间“零存在”。
图2-8 村落公共空间分布图
据杨文增老人介绍,对于村庄的空间结构分布,村落似乎没有过多的思考和规划,一种“就是该这样”的思维惯性支配着村民的行为,成为一种潜移默化的讲究。具体来说,一方面,是由公共空间的特性决定的。官井、官坑、官碾等公共空间的形成,必然会占据一定的物理空间,官井为大家所有,不可能也不会修建在距离生活区较远的私人麦田区域;官坑为建筑使用,基于泥土免于偷盗,方便村落居民搬运,保证房屋建筑土质等各方面考虑,官坑散布于村庄内部;官碾用于生活之需,更是较为均匀地分布在村落四个方向。公共空间“无序之中的有序”特征,不仅满足了村民生产生活之需,而且强化了村民的产权保护意识,还为村民的公共生活创造了空间。
另一方面,公共空间往往分布在人口流动较为频繁之地。公共空间产生于生产生活之需,服务生产生活,这就决定和强调了人的作用。二百户村地处平原社会,民居以集居的形态聚集在一起,同时连片分布的小麦环绕着民居,也就是说,传统时期基本没有独户独居的存在,大家都居住在村落共同体这一“屋檐”下。因此,官井、官坑、官碾等公共空间都是为了满足人们的需要,这也就决定了这些公共空间的集聚化分布。
结合前文的讲述,从居住空间分布来看,村民聚村而居,村内形成以卢、宋、赵为主的三大姓氏,另有薛、邵、赵、刘等20余个姓氏,在这些不同姓氏之中,同姓氏或同族的村民又形成小的居住群体,主要体现在房屋建造相连或相近。传统时期,老杨家5家单独形成一趟街,几家相邻而建,同时在院墙之外修筑了大土墙。当然,由于搬迁、邻里关系等多种原因,一趟街也有不同姓氏相邻而居。二百户村并没有形成村内集市,因买卖关系有较大的人际往来的集市分布在村庄外部。传说,民国时期本计划在二百户村内成立集市,但由于老百姓认为集市人多人杂,对村庄安全具有一定的威胁,最后反对修建集市。不过,对二百户村来说,无论村内是否形成集市,也无法阻挡因买卖需要而刺激的频繁交易,流动商贩、村内小铺以及油坊、糖坊、粉坊、烧锅、窑地等各种作坊生意往来不断。但是,神居、祖居以及公共设施都位于村庄内部,零星分布在村落东南西北,确保了资源享有均等化。对村庄居民而言,这些空间的存在是人类生产生活的结果,也是人类生产生活的“发动机”,为村民提供生存和发展的物质资料和资源禀赋,村落的一切都显得格外重要。
由于独特的平原地形,特定的干旱环境,二百户村在民居、神居、祖居、公共设施等空间分布上与全国其他区域有着本质的不同,它区别于长江水域的逐水而居,区别于东南宗族,区别于西南少数民族,区别于西北区域等等。
村外土地成片,村内民居聚集,神居、祖居、公共设施“散而不乱”地分布在村庄内部,极大地保障了村民的生产生活资源均等,为保甲长实现村落的公共治理提供了有利条件。在二百户村,房屋院落具有整体性,单家独户具有相对封闭性,妇女主内,尤其是当媳妇儿的,没有多余的时间出现在村落公共空间,因此也就无法充分地参与村落公共生活。同时,村落的公共性和私人性是相对独立的,公共空间并非包揽村民所有的生产生活。如大家可以在碾棚内干活推碾、聊天等,流动商贩和村民在东大庙处进行交易,会落在东大庙开会等等。但是吃饭是在各家各户吃,以院墙形成院落,家家户户均有大场,家里条件好的,土地种植较多,同时院落房屋较大,形成的大场较大,不会出现大场不够用的情况,打粮食、晒粮食都在自家的大场完成。吵架具有临时性、突发性等特点,没有固定的场所,或是在家里,或是在村街巷道,或是在庄外的土地,或是在集市,均有可能出现矛盾纠纷的情况。