



之前版本的“魔方舱”采用的是常规模式,以魔方的概念将不同种类的功能模块组合在一起,并通过太空对接舱的对接模式连接其他空间或功能模块,以实现新的空间功能。而这次的3.0版本将太空舱的概念加以深化,设计出可以移动的魔方舱。它非常形象地诠释了太空对接舱的对接模式。通过移动魔方舱可以将其和衣柜区域或是书桌区域进行对接,分别组合成衣帽间或是一间相对独立的书房。并且可以对两种功能空间进行随意切换,形成不同的使用模式。
当然除了可以移动的魔方舱,魔方舱的概念也被运用到了全屋的各个区域之中。
户型结构: 一居室
所在地区: 北京市
建筑类型: 筒子楼
使用面积: 32m 2
户型层高: 2.49m
常住人口: 夫妻俩+初中男孩
原始平面图
1. 东西通透。
2. 有独立的厨房。
A. 走廊宽度较窄又包含主通道,空间利用率低。
B. 厨房面积较小,管线较多。
C. 卫生间面积较小,地面有高台,使用不便。
D. 客厅与卧室重叠导致私密性较差,斜角空间不易布局,空间利用率较低。
E. 阳台进深较窄,空间利用率低。
F. 层高相对较低。
未利用空间约16m 2
占整体面积的50%
1. 需要两间卧室。
2. 需要一间书房。
3. 需要干湿分区的卫浴间。
4. 需要充足的储物空间。
设计一组可移动的魔方舱,既是两间卧室中的缓冲空间,又可以和开放式书房对接成一间独立的书房。
原始功能分区
改造后的功能分区
改造后的平面图
改造后的储物空间
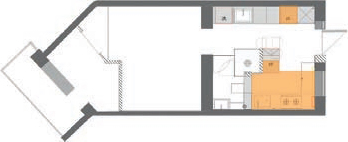
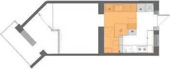
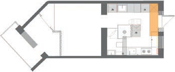
模式一
模式二
改造后的玄关区域
原始户型问题
①原始户型无玄关,进门即通道,无停留空间。
②入户门外即公共走廊,隔音、隔热皆不理想,因此空间利用率低。
③外部条件导致玄关空间无归属感,委托人不愿停留。
根据业主回家进门时的使用习惯,在进门左手边设计了一组通顶的玄关柜,中间部分设计了开放式的储物格,可以随手放置车钥匙等小物件。下部设计为鞋柜,内部层板更是按照鞋子的形状调整了角度,采用不规则的斜面层板,可以放置更多的鞋子。
在进门的右手边设计了一组单面的魔方舱,对各种功能模块进行重新组合,此空间囊括了储物柜、鞋柜、衣柜、冰箱、洗手台、洗衣机等。
改造后的厨房区域
原始户型问题
①厨房面积较小,储物空间不够。
②无完整的操作台,不利于厨房日常操作流程。
③管线较多,不利于后期清洁。
将原始的厨房改为开放式厨房并将原本过道部分的空间纳入厨房中,设置高柜,增加厨房的储物空间,并内嵌小型烤箱,以满足女房主烘焙的爱好。
利用窗边空间将操作台的面积进行延伸,更方便备餐。
通过细节设计,如柜门的暗扣手设计、柜门的落地设计、台面的无后档设计,以及大规格的墙面瓷砖设计,尽量减少卫生死角,便于后期清洁。
规划调料架、沥水架、厨房纸巾架等,有效提升厨房使用便利度。
改造后的卫生间、过道区域
原始户型问题
①卫生间面积较小,无干湿分区以及储物空间。
②过道空间功能单一,造成空间利用率低。
充分利用过道空间将储物柜、独立淋浴房等功能模块进行整合,提升过道空间的功能性和利用率。除此之外,与卫生间相连的储物柜中还隐藏了餐桌,打开后可以满足一家人同时用餐。
原户型的卫生间面积很小,经过设计之后,将淋浴房外移,占用一部分的过道空间从而整合成一组新的魔方舱,并将此魔方舱与卫生间对接。独立的淋浴房既是卫生间的外挂空间,又与其巧妙地组合在一起,形成功能完备的洗浴空间。
淋浴房和卫生间门全部用玻璃代替,有效地节省了空间;又将壁挂马桶的上部空间设计为储物柜,用于放置洗浴用品和卫生用品;除此之外,还额外增加了一处洗手台,多人使用时可互不干扰。
模式一
模式二
可移动的魔方舱除了可以对接组合成不同的功能空间,自身也在整个空间的格局里起到了至关重要的作用。通过魔方舱可以将空间巧妙地分隔成两个独立的卧室,不仅如此,魔方舱还可以作为两个卧室间的过渡空间,这样可以更好地保持两个空间的私密性。
魔方舱对接到原始门洞上,形成通往卧室区域的通道,也成为全屋动区和静区之间的过渡区域,同时和右侧墙面的衣柜区域对接成一间步入式衣帽间。
魔方舱也将左侧空间分隔成了一间客厅兼卧室,通过墙面的隐形床可将客厅随时转化为卧室。
魔方舱移动对接到书桌区域,组合成一间相对独立的书房。
书房和靠近阳台的卧室相连,保障隐私性的同时更便于日常工作和学习。
异型空间的改造
原始户型中有一面斜墙,不方便布置家具,导致空间利用率较低。经过设计之后,分隔出一间适合居住的方形卧室,将原有的斜面空间设计为休闲角,其在两个卧室间起到了缓冲的作用。
阳台的改造
通过更换三层玻璃的断桥铝窗,增加墙体的内保温层,有效改善了阳台的内部环境。将其规划到卧室内,增大卧室的面积,利用不可拆除的配重矮墙设计一组书桌,提升卧室的功能性。