



这是一个北漂家庭的房子,38m 2 的开间里,入住了祖孙三代共五口人。38m 2 ,除去厨房和卫生间,剩余面积仅28.5m 2 。如果采用常规的设计方式,房间会被分割得狭小压抑,采光和通风都成问题。
采用“魔方舱”的概念进行设计,在空间中置入两个悬浮的“魔方舱”,通过“魔方舱”的组合模块和对空间的划分来实现多功能空间的配置,例如书房、客厅、卧室等,为这个小户型实现了六大功能升级。
户型结构: 开间
所在地区: 北京市
建筑类型: 钢筋混凝土结构板楼
使用面积: 38m 2
户型层高: 2.60m
常住人口: 夫妻俩+爷爷奶奶+3岁男孩
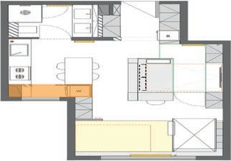
原始平面图
1. 户型整体布局方正,南向采光。
2. 有独立带窗的厨房。
3. 卫生间面积相对宽敞。
A. 玄关处的储物空间无明显规划,导致物品堆积,空间利用率低。
B. 卫生间无明显规划,造成空间浪费,利用率低。
C. 衣柜和书桌的布局既占用面积,又降低了空间的利用率。
D. 简易储物格,高度不够导致上部空间没有被充分利用,且储物格与床之间形成死角,动线不够灵活,利用率较低。
E. 柱盆式水槽,占地面积大且无储物空间,还容易造成清洁死角。
F. 缺少生活阳台。
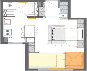
未利用空间约14.2m 2
占整体面积的37.4%
1. 需要三个相对独立的卧室。
2. 需要安静的办公空间。
3. 需要舒适的就餐空间。
4. 需要充足的储物空间。
5. 需要孩子的活动空间。
6. 需要晾晒空间。
原始功能分区
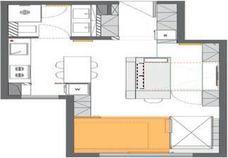
改造后的功能分区
原始储物空间
改造后的储物空间
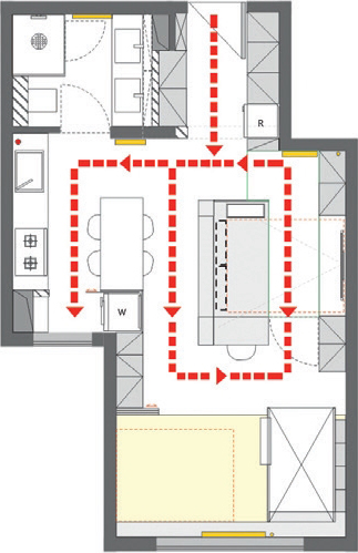
改造后的环形动线
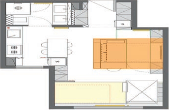
改造后的魔方舱
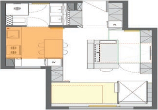
改造后的玄关区域
规划储物空间,提升空间利用率。将卫生间和玄关之间的墙体向卫生间方向移动30 cm后,利用此空间设计打造了整面墙的白色通顶玄关柜,包含超大容量的储物柜、衣帽柜以及鞋柜,大大提升了不足3m 2 的玄关的利用率。
门是魔方舱的设计关键。通过门的不同状态,魔方舱会变换成不同的功能模式。当门处于打开状态时,魔方舱和周围空间融为一体形成一个开放式的客厅;当门处于关闭状态时,魔方舱外部与内部完全隔离,外部形成一间独立的书房,内部则变换为老人房。
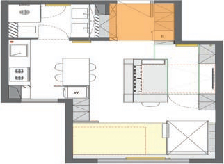
改造后的魔方舱区域
复合功能的魔方舱连接入户区、客厅、餐厅、卧室等空间。与入户区连接承担了玄关的功能,既提高了空间的利用率,又起到了保护隐私的作用,同时还避免了小空间进门的“一览无余”。
魔方舱里面是迷你客厅,虽然面积不大,但是五脏俱全。既有宽敞的走道空间,又有86 cm深的沙发可供家人窝在里面舒服地看电视。而且在客厅与玄关之间还设计了一个小窗,透过小窗可以直接看到入户大门,既保留了私密性又增加了通透性。
穿过客厅之后便是书房区。改造前的开间设计让房主没有属于自己的独立办公空间,只能躲进卫生间里办公。改造后不仅拥有了属于自己的独立书房,设计师还利用靠近餐厅的那面墙设计了通顶的书柜,增加储物空间之余也正好作为书房区的补充。
当办公区域旁的玻璃门处于关闭状态时,把客厅沙发下面暗藏的抽屉拉开,对接到电视矮柜上,就形成了一张150 cm宽、230 cm长的双人床,客厅区域就成了隐藏的老人房。床上特意放置了棕垫,更适合老人的身体需求,如此一来就创造出互不干扰的舒适睡眠空间。
书房的右侧区域是主卧,内嵌式床垫让空间在视觉上更开阔,主卧外还设计了一组通顶的衣帽柜,作为主卧配套的储物空间。
改造后的主卧区域
除此之外,主卧的地台里还见缝插针地设计了两组储物格,其中一个暗藏升降书桌。闲来无事时,一杯咖啡、一本书,或是一台笔记本电脑,这里就是一个惬意的小角落。
改造后的儿童胶囊区域
地台设计,划分区域。用地面高差将儿童胶囊与主卧进行划分,儿童胶囊采用包裹式的设计,里面插入的收纳柜可以放置大量玩具。而后出于采光的考虑,将原先开间仅有的一扇窗一分为二,并在靠窗区域贴心地打造了一个学习区,像玩具插片一样插入了一个小书桌,书桌下预留有足够的放腿空间。等孩子长大了,这个儿童胶囊也可作为他的卧室。
改造后的厨房与餐厅区域
拆除原始户型中厨房和客厅之间的墙体,将其改造为开放式厨房并对操作台进行优化,以便最大限度地方便洗菜、备餐、炒菜的做饭流程。增大了储物空间,同时也方便在做饭的时候看护孩子。
岛台餐桌一体化设计,既延伸了厨房操作台面,又获得了一张独立的餐桌,一家人终于有了一个可以舒适就餐的环境。
改造后的阳台区域
利用柜体作为厨房和客厅之间的隔断,将部分厨房空间改造为小型生活阳台并放置洗衣机,满足房主一家洗衣、晾衣的功能需求。
在阳台与厨房之间还安装了一扇推拉式的玻璃移门。既能保证室内的充分采光,又能在做饭的时候拉上移门,防止油烟扩散到衣服上。
改造后的卫生间区域
改造后的卫生间增加了双盆洗手台与超长台面,可同时满足两个人洗漱。以后夫妻俩上班前再也不用抢洗手台了。独立的淋浴房配以大理石导水槽,彻底解决了以前干湿不分的问题。
墙排式的马桶设计,可以有效解决卫生间打扫上的死角问题;水箱隐藏在墙体内,也更加节省空间。
从玄关柜到“魔方舱”,全屋分散式储物柜数量多达170个,如此充足的储物柜可以让房主一家的生活用品都有合理的“藏身之地”。隐藏式的柜体设计,不仅让生活告别凌乱,而且还塑造出一个“小而不挤,小而能装”的舒适居住空间。
房主家的瓦楞纸箱在裁剪之后,被填充到儿童胶囊的板材结构中,瓦楞纸质地松软,声波穿过这类材料时会被内部蜂窝状的结构所吸收,从而达到隔音的效果。这样的设计既避免了材料的浪费,又满足了房主一家的隔音需求。
因为既想让魔方舱呈现出上下悬浮的效果又不至于浪费上层空间,所以决定利用超薄的洞洞钢板打造一个夹层区,在夹层内部设计储物格,可以存放家里不常用的物件和小朋友的玩具。