



磁浮轨道结构的型式需要根据线路的具体情况确定,但以下几个方面任何时候均必须严格满足:轨距要求(2800mm);功能区与车辆之间的接口关系(相对位置和尺寸);建筑限界要求。
高速磁浮交通限界可分为建筑限界、设备限界及车辆限界三类,分别定义如下:
(1)建筑限界。为保证磁浮列车在线路上运行以及线路上建筑物和设备的安全,要求线路上必须有一定的空间(建筑物及设备不准侵入该空间),该空间称为建筑限界,也称为净空包络限界。
(2)设备限界。在列车运行动态边界线的基础上再计入轨道出现最大允许误差和公差时,引起车辆的偏移和倾斜等附加偏移量,以及在设计、施工、运营中等因素在内的安全预留量,也称为固定设施边界。
(3)车辆限界。在列车轮廓线的基础上,计入列车动态运行可能达到的边界并预留安全量,也称为列车运行动态边界。
磁浮单线、双线限界分别如图2-1、图2-2所示。
磁浮线路横坡角 α ≠0°时的限界需要在 α =0°的基础上进行加宽。
如图2-3所示,当线路有横坡角 α 时,其限界加宽按下列公式计算:
L bD = L 1 + S + L 2
L h = L 3 + L 4
式中 S ——线间距。
L i = b i + Δ i , i =1,2,3,4
 
    图2-1 磁浮单线限界图
 
    图2-2 磁浮双线限界图
 
    图2-3 设横坡路段磁浮双线限界图
其中,
 
   磁浮线路与横坡相关加宽参数如图2-4所示。磁浮车辆限界见表2-1。
 
    图2-4 磁浮线路与横坡相关加宽参数示意图
表2-1 磁浮车辆限界
 
   当列车处于停车状态时,需满足图2-5所示限界要求,当停车位置(车站或辅助停车区)线路处于曲线上时,还需要考虑额外的曲线外侧加宽值。
 
    图2-5 列车停车状态限界图
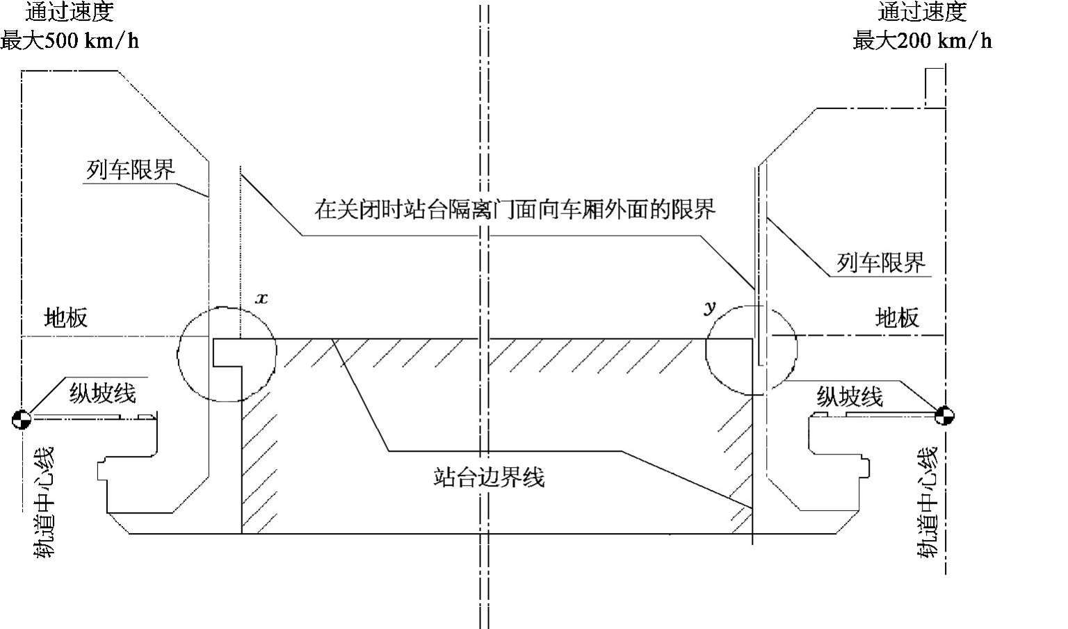
停车位置限界与列车通过速度相关。当车速低于200km/h时,停车位置限界为车辆停车状态限界;当通过列车速度高于200km/h时,车站限界为车辆运动状态限界(图2-6)。
车站内车辆限界至站台边缘的间距为10mm。考虑通过站台时的空气动力影响,车速为400~500km/h时,车辆限界与站台门或站台基础的距离最小值为1.2m。
 
    图2-6 车站上列车限界图