



《机械制图》国家标准是一项基础性的技术文件。每一位工程技术人员在绘制图样时都必须严格遵守,认真贯彻执行。
1)图纸幅面
概念:图纸宽度与长度组成的图面。
为了合理利用图纸和便于图样管理,国家标准规定了 5 种标准图纸的幅面,其代号分别为A0,A1,A2,A3,A4。
绘图时,应优先选用国家标准规定的幅面尺寸,见表 1.1。必要时,也允许以基本幅面的短边的整数倍加长幅面。
表1.1 图纸幅面尺寸/ mm
2)图框格式
概念:图纸上限定绘图区域的线框。
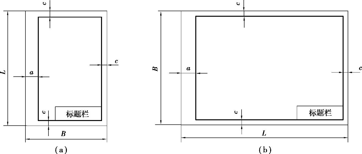
无论图纸是否装订,都必须用粗实线画出图框。其格式分为不留装订边和留装订边,如图 1.1 和图 1.2 所示。其尺寸均按表 1.1 中的规定。但应注意,同一产品的图纸只能采用一种格式。
图1.1 不留装订边的图纸格式
有时,为了复制或缩微摄影的方便,还采用对中符号。对中符号是从周边画入图框内约5 mm的一段粗实线,如图 1.1(b)所示。
图1.2 留装订边的图纸格式
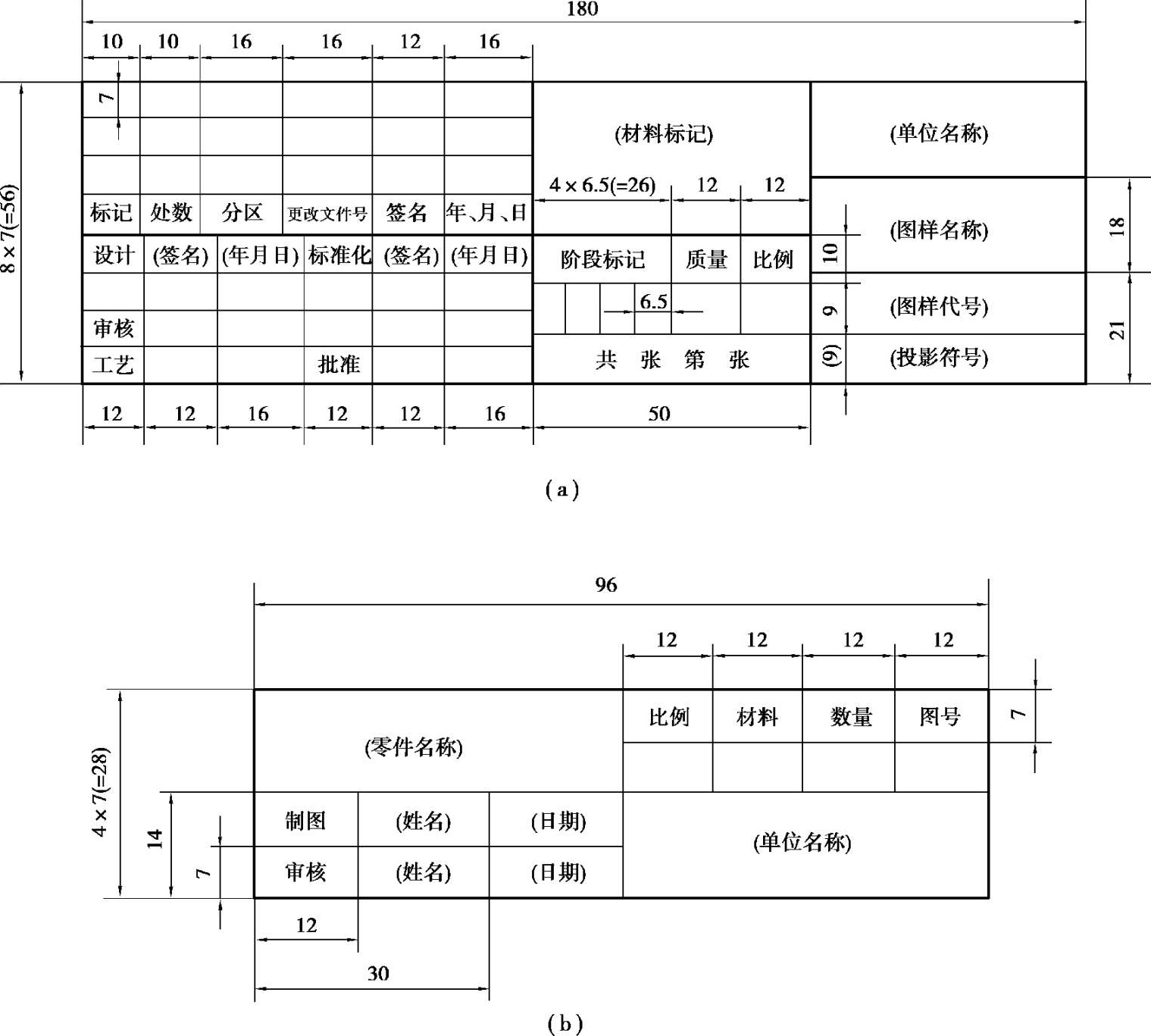
3)标题栏及明细表
每张图样上都应有标题栏,用来填写图样上的综合信息,标题栏配置在图纸的右下方。其格式如图 1.3 所示。明细栏是装配图中才有的。在学校的制图作业中,标题栏也可采用如图 1.3(b)所示的简化形式。标题栏中,文字方向必须与看图方向一致。一般标题栏内图名用 10 号字书写,图号、校名用 7 号字书写,其余都用 5 号字书写。
图1.3 标题栏的格式
图样中机件要素的线性尺寸与实际机件相应要素的线性尺寸之比,称为比例,即
一般比例分为原值比例、缩小比例和放大比例 3 种类型。绘制图样时,尽可能采用原值比例,以便从图中看出实物的大小。根据需要,也可采用放大或缩小的比例,但不论采用何种比例,图中所注尺寸数字仍为机件的实际尺寸,且图样按比例放大或缩小,仅限于图样上各线性尺寸而与角度无关。绘制同一机件的各个视图应采用相同的比例,并在标题栏中统一填写。当某个视图采用了不同的比例时,必须在该图形的上方加以标注。常用的比例见表 1.2。
表1.2 比例
图样中除图形外,还需用汉字、数字和字母等进行标注或说明。它们是图样的重要组成部分。字体包括汉字、数字和字母的字体。
1)图样中书写的字体
图样中书写的字体必须做到:字体端正、笔画清楚、排列整齐、间隔均匀。
2)字体的号数
字体的号数即字体的高度(单位:mm),分别为 20,14,10,7,5,3.5,2.5,1.8 这 8 种,字体的宽度约等于字体高度的 2 /3。数字及字母的笔画宽度约为字高的 1 /10。汉字的高度h应不小于 3.5 mm,其字宽约为字高的h /
。不宜采用 2.5 和 1.8 号,以免字迹不清。
3)汉字
汉字应写成长仿宋字体,并应采用国家正式公布的简化字。
汉字要求写得整齐匀称。书写长仿宋体的要领为:横平竖直、注意起落、结构匀称、填满方格。如图 1.4 所示为长仿宋体字示例。
图1.4 长仿宋字体示例
4)数字及字母
数字及字母有直体和斜体之分。在图样中,通常采用斜体。斜体字的字头向右倾斜,与水平线成 75°角。拉丁字母以直线为主体,减少弧线,以便书写及计算机绘图。数字和字母的笔画宽度约为字高的 1 /10。罗马数字上的横线不连起来。国家标准规定的数字和字母的书写形式如图 1.5 所示。
图1.5 数字和字母示例
用作指数、分数、极限偏差及注脚等的字母及数字,一般采用小一号的字体,如图 1.6所示。
图1.6 字体组合应用示例
概念:图中所采用各种形式的线。
1)基本线型
在机械制图中,常用的线型有实线、虚线、点画线、双点画线、波浪线及双折线等。它们的使用在国家标准中都有严格的规定(见表 1.3)。使用时,应严格遵守。
表1.3 基本线型及应用
续表
2)图线宽度
在机械图样中,采用粗细两种线宽,它们之间的比例为 2 ∶1。
图线的宽度 d 应根据图形的大小和复杂程度,在下列数系中选择:0.13,0.18,0.25,0.35,0.5,0.7,1,1.4,2 mm。该数系的公式为 1 ∶2。通常情况下,粗线的宽度采用 0.7 mm,细线的宽度采用 0.35 mm。在同一图样中,同类图线的宽度应一致。
3)图线的应用
如图 1.7 所示为上述几种图线的应用举例。在图示零件的视图上,粗实线表示该零件的可见轮廓线;虚线表示不可见轮廓线;细实线表示尺寸线、尺寸界线及剖面线;波浪线表示断裂处的边界线及视图和剖视的分界线;细点画线表示对称中心线及轴线;双点画线表示相邻辅助零件轮廓线及极限位置轮廓线。
4)图线的画法(见图 1.8)
①同一图样中同类图线的宽度应基本一致。虚线、点画线及双点画线的线段长度和间隔应各自大致相等。
②绘制圆的对称中心线时,圆心应为线段的交点。点画线和双点画线的首末两端应是线段而不是点,且应超出图形外 2~5 mm。
③在较小的图形上绘制点画线或双点画线有困难时,可用细实线代替。
图1.7 图线应用示例
图1.8 图线交接处的画法
④虚线、点画线、双点画线相交时,应是线段相交。当虚线是粗实线的延长线时,在连接处应断开。
⑤当各种线型重合时,应按粗实线、虚线、点画线的优先顺序画出。
概念:用特定长度或角度单位表示的数值,并在技术图样上用图线、符号和技术要求表示出来。
国家标准规定了标注尺寸的规则和方法。绘图时,必须严格遵守。
1)基本规则
①机件的真实大小应以图样上所注的尺寸数值为依据,与图形的大小及绘图的准确度无关。
②图样中(包括技术要求和其他说明)的尺寸,以毫米(mm)为单位时,不需标注计量单位符号或名称。如采用其他单位,则应注明相应的单位符号。
③图样中所标注的尺寸,为该图样所示机件的最后完工尺寸,否则应另加说明。
④机件的每一尺寸,一般只标注一次,并应标注在反映该结构最清晰的图形上。
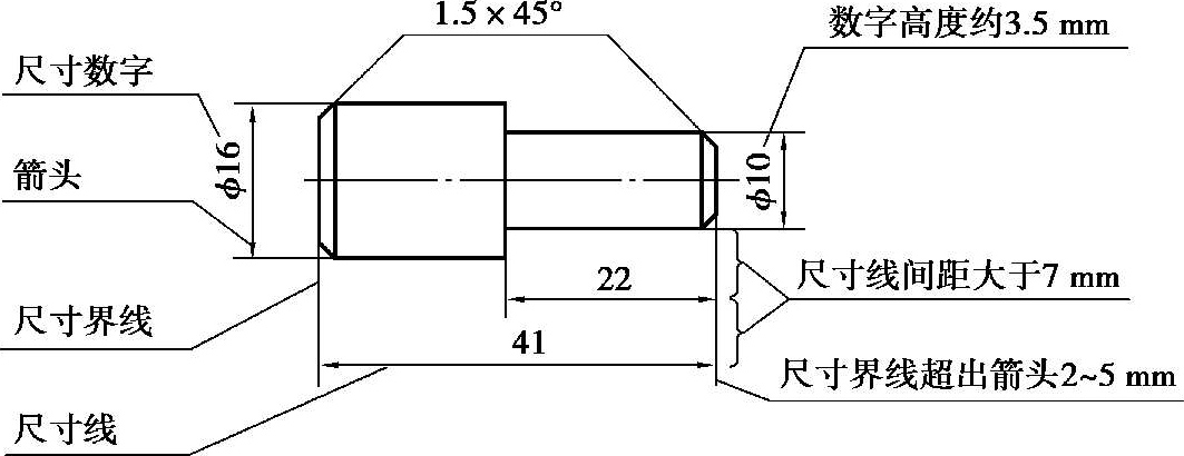
2)尺寸标注的组成
一个完整的尺寸由尺寸数字、尺寸线、尺寸界线及尺寸的终端(箭头或斜线)组成,如图1.9 所示。
图1.9 尺寸的组成
(1)尺寸界线
尺寸界线用细实线绘制,并应由图形的轮廓线、轴线或对称中心线处引出,也可利用轮廓线、轴线或对称中心线作尺寸界线。一般尺寸界线应与尺寸线垂直,必要时允许倾斜,如图 1.9 所示。
(2)尺寸线
尺寸线表明尺寸度量的方向,必须单独用细实线绘制,不能用其他图线代替,也不得与其他图线重合或画在其延长线上。标注线性尺寸时,尺寸线必须与所标注的线段平行。在同一图样中,尺寸线与轮廓线以及尺寸线与尺寸线之间的距离应大致相当,一般以不小于 5 mm为宜,如图 1.9 所示。尺寸线的终端可用两种形式,如图 1.10 所示。一般机械图用箭头,其尖端应与尺寸界线接触,箭头长度约为粗实线宽度的 6 倍。一般土建图用 45°斜线,斜线的高度应与尺寸数字的高度相等。
图1.10 尺寸线终端的形式
(3)尺寸数字
线性尺寸的数字,一般应注写在尺寸线的上方,或注写在尺寸线的中断处,尺寸数字不可被任何图线所穿过,如图 1.9 所示。
线性尺寸的数字方向,一般应按如图 1.11 所示的方向注写,即水平方向的尺寸数字字头朝上;垂直方向的尺寸数字字头朝左;倾斜方向的尺寸数字字头有朝上的趋势,如图 1.11(a)所示。应避免在图示 30°范围内标注尺寸,当无法避免时,可按如图 1.11(b)所示的形式标注。
图1.11 线性尺寸数字的方向
3)常用尺寸注法
在实际绘图中,尺寸标注的形式很多。常用尺寸的标注方法见表 1.4。
表1.4 常用尺寸的注法
续表
4)尺寸代号
标注尺寸的代号应符合表 1.5 的规定。
表1.5 尺寸标注常用代号
正确使用制图工具对提高制图速度和图面质量起着重要的作用,熟练掌握制图工具的使用方法是一名工程技术人员必备的基本素质。常用的制图工具有图板、丁字尺、三角板、圆规、分规、比例尺、曲线板、擦图片、绘图铅笔、绘图橡皮、胶带纸及削笔刀等。
在绘制工程图样时,要选择专用的绘图铅笔。一般需要准备以下 3 种型号的绘图铅笔:
①B或HB。用来画粗实线。
②HB。用来画细实线、点画线、双点画线、虚线及写字。
③H或 2H。用来画底稿。
H前的数字越大,铅芯越硬,画出来的图线就越淡;B前的数字越大,铅芯越软,画出来的图线就越黑。由于圆规画圆时不便用力,因此,圆规上使用的铅芯一般要比绘图铅笔软一级。用于画粗实线的铅笔和铅芯应磨成矩形断面,其余的磨成圆锥形,如图 1.12 所示。铅笔应从无硬度标记的一端削起。
图1.12 铅笔的削法
画线时,铅笔在前后方向应与纸面垂直,而且向画线前进方向倾斜约 30°,如图 1.13 所示。当画粗实线时,因用力较大,倾斜角度可小一些。画线时,用力要均匀,匀速前进。
图1.13 用丁字尺画水平线
图板根据大小有多种型号,图板的短边为导边。丁字尺是用来画水平线的,丁字尺的上面那条边为工作边。
如采用预先印好图框及标题栏的图纸进行绘图,则应使图纸的水平图框线对准丁字尺的工作边后,再将其固定在图板上,以保证图上的所有水平线与图框线平行。如采用较大的图板,为了便于画图,图纸应尽量固定在图板的左下方,但须保证图纸与图板底边有稍大于丁字尺宽度的距离,以保证绘制图纸上最下面的水平线时的准确性。
用丁字尺画水平线时,用左手握住尺头,使其紧靠图板的左侧导边作上下移动,右手执笔,沿丁字尺工作边自左向右画线。当画较长的水平线时,左手应按住丁字尺尺身。画线时,笔杆应稍向外倾斜,尽量使笔尖贴靠尺边,如图 1.13 所示。画垂直线时,手法如图 1.14所示,自下往上画线。
图1.14 用丁字尺画垂直线
一副三角板有 30°、60°、90°和 45°、45°、90°两块。三角板与丁字尺配合使用可画垂直线及 15°倍角的斜线,如图 1.15(a)所示;或用两块三角板配合画任意角度的平行线,如图 1.15(b)所示。
图1.15 三角板的使用
1)圆规
圆规是画圆和圆弧的工具。画图前,圆规固定腿上的钢针(带有台阶的一端)应调整到比铅芯稍长一些,以便在画圆或圆弧时,将针尖插入圆心中。钢针的另一端作分规时使用,如图 1.16 所示。
在画粗实线圆时,圆规的铅芯应比画相应粗直线的铅笔芯软一号;同理,画细实线圆时,也应使用比画相应细直线软一号的铅芯。
使用圆规时,应尽可能使钢针和铅芯插腿垂直于纸面。画小圆时,可用点(弹性)圆规;画大圆时,可用延伸杆来扩大其直径,如图 1.17 所示。
图1.16 圆规钢针、铅芯及位置调整
图1.17 圆规的使用
2)分规
分规是用来量取尺寸和等分线段的工具。为了准确地度量尺寸,分规两腿端部的针尖应平齐,如图 1.18 所示。
等分线段时,将分规两针尖调整到所需的距离,然后用右手拇指和食指捏住分规手柄,使分规两针尖沿线段交替旋转前进,如图 1.19 所示。
图1.18 分规
用分规在尺上或图上截取尺寸或线段的方法和手势如图 1.20 所示。
图1.19 等分线段
图1.20 分规截取尺寸
比例尺有三棱式和板式两种。如图 1.21( a)所示,尺面上有各种不同比例的刻度。在用不同比例绘制图样时,只需在比例尺上的相应比例刻度上直接量取即可,省去了麻烦的计算,加快了绘图速度,如图 1.21(b)所示。
图1.21 比例尺及其使用方法
曲线板是一种具有不同曲率半径的模板,用来绘制各种非圆曲线。使用曲线板时,应先描出曲线上若干点,徒手用铅笔把各点轻轻地连接起来,再选择曲线板上曲率合适的部分逐段描绘,如图 1.22 所示。每一段中,至少有 4 个点与曲线板吻合,每描一段线要比曲线板吻合的部分稍短,留一部分待在下一段中与曲线板再次吻合后描绘(即“找四连三,首尾相叠”),这样才能使所画的曲线连接光滑。
图1.22 曲线板及其使用
绘图模板是一种快速绘图工具。它的上面有多种镂空的常用图形、符号或字体等,能方便地绘制针对不同专业的图案,如图 1.23( a)所示。使用时,笔尖应紧靠模板,才能使画出的图形整齐、光滑。
量角器用来测量角度,如图 1.23(b)所示。简易的擦图片是用来防止擦去多余线条时把有用的线条也擦去的一种工具,如图 1.23(c)所示。
图1.23 其他绘图工具
另外,在绘图时,还需要准备削铅笔刀、橡皮、固定图纸用的塑料透明胶纸,磨铅笔用的砂纸,以及清除图画上橡皮屑的小刷等。