



室内空间界面设计是对室内空间的各个围合面(地面、墙面、隔断、平顶等)的使用功能和特点进行分析,然后对界面的形状、图形线脚、肌理构成进行设计,同时对界面和结构构件的连接构造、界面和通风、空调、水、电等管线设施,如风口、灯具的协调配合等进行统筹设计。室内空间界面设计,既有功能和技术方面的要求,也有造型和美观上的要求,是确定室内环境基本形体和线形的设计内容。由材料实体构成的界面,在设计时需重点考虑线形、色彩、材质和构造 4 个方面,只有将这几个方面同室内空间形式有机地结合起来,才能形成一个整体的、综合的空间环境效果。
(1)风格统一
室内空间的各个界面处理必须统一在同种风格下。设计师必须准确把握各种风格的表现手段、图案与色彩关系,从而整体控制最终效果。
室内空间界面设计也会影响空间的尺度与使用者的心理感受,设计风格所需的物质功能和精神功能,空间的客观环境因素和使用者主观的身心感受是界面设计需重点考虑的因素。
(2)突出重点,分清主次,避免过度装饰
每个空间界面的重要程度是不同的,应根据空间设计的序列关系、空间重要程度、视线关系,确定重点处理的界面。装饰重点不能太多,避免过度装饰,以免显得杂乱无章;还要处理好空间界面与室内家具陈设的关系,处理好背景与主体的关系。当室内空间界面作为室内环境的背景,对室内空间家具和陈设起烘托、陪衬作用时,应坚持以简洁、明快、淡雅为主。对于需要营造特殊气氛的空间,如客厅、影视厅等,需要对室内空间界面作重点装饰处理,以加强效果。
有些时候,界面处理不一定要做“加法”。从建筑物的使用性质、功能特点等方面考虑,一些建筑物的结构构件也可以不加装饰,作为界面处理的手法之一,这正是单纯的装饰和室内设计在设计思路上的不同之处。
(3)与空间的功能性格一致
不同使用功能的空间,具有不同的空间性格和不同的环境氛围要求(图 2.20)。在室内空间界面装饰设计中,图案与色彩关系应符合该空间的性格和环境氛围,进行合理的设计。如居室要求富于生活情趣以及亲切、安静的室内空间环境;而宾馆则要富丽豪华、色彩丰富、空间尺度较大而富有变化,既要符合旅客休息、活动的要求,又要满足旅客的交往要求。
图2.20 不同的空间有不同的功能和装饰要求
(4)功能性要求
各类界面的功能性要求包括耐久性及使用期限、耐燃及防火性能、无毒性、无放射性、易于制作安装和施工、隔热保暖、隔声吸声性能、相应的经济要求等。
楼地面还应耐磨、防滑、易清洁、防静电;墙面、隔断还应当符合遮景借景等视觉效果,同时满足隔声、吸声、保暖、隔热的要求;顶面、顶棚还应满足质轻、隔声、吸声、保暖、隔热和光反射效果等要求。
形状、图案、色彩、肌理等是界面设计的要素,也是设计风格表达的重要手段和语言。
界面可以是平直的、折线的、弧形的、拱形的以及完全不规则的等多种形式。设计时,需根据空间条件、设计风格、空间功能等因素,确定合适的形式。比如以结构构件、承重墙柱等为依托,以结构体系构成轮廓;也可以根据室内使用功能对空间形状的需要,脱开结构层另行考虑,例如客厅等重要空间的天棚,往往做成叠级顶、拱形顶甚至穹形顶。
界面图案(图 2.21)设计是指将界面中所包含的点、线、面元素,根据风格要求、功能要求、空间特点,用形式美法则,进行图案的组织与设计,界面图案设计是立面设计的主要内容,包括线条、块面、材质、肌理等。能够形成线条的造型要素包括踢脚、挂镜线、门套线、阴角线、家具的边框等;块面要素包括墙面、门、家具等。
图2.21 界面图案
界面图案必须符合室内环境整体的气氛要求,起到烘托、加强室内精神功能的作用。根据不同的场合,界面图案可以是具象的或抽象的、有彩的或无彩的、有主题的或无主题的,可以是绘制的、与界面同质材料的,也可以是用不同材料制作的。界面图案设计还需要考虑与室内织物(如窗帘、地毯、床罩等)的协调。
界面的边缘造型、交接、与不同材料的连接处理,即所谓“收头”,是室内设计的难点之一。界面的边缘转角通常以不同断面造型的线脚加以处理,如墙面木墙裙下的踢脚和上部的压条等的线脚,光洁材料和新型材料大多不作传统材料的线脚处理,但也有界面之间的过渡和材料的“收头”问题。
界面色彩(图 2.22、图 2.23)是室内设计中最生动、最活跃的因素,也是人们在房间中最直接的视觉感受。色彩极具表现力,它通过人们的视觉感受产生的生理、心理和类似物理的效应可以形成丰富的联想、深刻的寓意和象征,给人们留下室内环境的第一印象。
图2.22 界面色彩 1
图2.23 界面色彩 2
色和光不能分离。除色、光外,色彩还依附于材质、家具、室内织物、绿化等。
界面的色彩设计需根据色彩的个性,具体问题具体分析,确定室内主色调,选择适当的色彩配置。如选择暖色或冷色,是明度高还是明度低,是对比色还是协调色等,都会使室内装饰呈现出不同的效果。
首先要服从设计风格的表达,不同设计风格往往有其常用的主色调与色彩搭配体系。如古典的欧式风格常用米色与红色、金色搭配,传统江南民居的灰瓦白墙和栗色木柱对中式风格的色彩体系有很大的影响。
其次要充分考虑空间的使用性质,停留时间长短等因素,室内地面、墙面、天棚的色彩一般是不同的。比如睡眠空间一般色彩饱和度比较低,营造安静温馨的氛围;公共活动空间可以比较跳跃、比较个性化。
最后要注意装饰材料质感和表面肌理对色彩带来的影响。如光滑的表面色彩比较亮,反光比较强;粗糙的表面色彩比较暗,反光比较弱,吸光性较强。
界面肌理(图 2.24)是通过界面材料自身或者材料的再次加工与组合呈现出的花纹、图案和质地。肌理根据其形成方式可分为天然肌理、加工肌理、人工肌理和综合肌理;根据其形成过程可分为一次性肌理和二次性肌理;根据人的感官感受分为视觉肌理和触觉肌理。另外,肌理还可分为粗、中、细 3 种类型。
图2.24 界面肌理
不同的肌理,会给人带来不同的心理感受。如大理石肌理表现华贵、高雅的意境,布纹肌理传达亲切、柔和、质朴的意境,等等。同时,不同的肌理,因造成反射光的空间分布不同,会产生不同的光泽度和物体表面感知性。比如,细腻光亮的质面,反射光的能力强,会给人轻快、活泼、冰冷的感觉;平滑无光的质面,由于光反射量少,会给人含蓄、安静、质朴的感觉;粗糙有光的质面,由于反射光点多,会给人笨重、杂乱、沉重的感觉;而粗糙无光的质面,则会使人感到生动、稳重和悠远。不同肌理的对比、调和可以产生不同的气氛效果,因此肌理是一种含义异常丰富的形式语言。例如,以松木条板为模板现浇而成的混凝土天棚及墙面,综合了木材与混凝土肌理,在光滑的白色水磨石地板对比下,形成温馨、安静、含蓄的空间氛围。
人们对室内环境气氛的感受,通常是综合的、整体的,既有空间形状,也有作为实体的界面。在界面的具体设计中,根据室内环境气氛的要求和材料、设备、施工工艺等现实条件,也可以在界面处理时重点运用某一手法。例如:显露结构体系与构件构成,如图 2.25 所示;突出界面材料的质地与纹理,如图 2.26 所示;界面凹凸变化造型特点与光影效果;界面上的图案设计与重点装饰,如图 2.27 所示;强调界面色彩或色彩构成,如图 2.28 所示。
图2.25 显露结构体系
图2.26 突出界面肌理
图2.27 界面图案构成
图2.28 突出界面凹凸变化造型特点
楼地面是室内空间的基面,视线上它与人的关系最近,视域比重仅次于墙面;地面与人具有直接的触感,形成坚硬与柔软、粗糙与平滑、温暖与冰冷等不同感觉,对人体的生理舒适感影响较大。地面设计首先考虑不同空间的功能需求,公共空间往往要求坚固、耐久、易清洁,卧室空间则需要脚感温暖、舒适,厨房、卫生间则要求耐腐蚀、防滑、防潮、防水、易清洁等。为防止水漫入其他房间,用水房间地面应比室内其他地面低 20 ~ 30 mm。
此外,地面设计还要考虑与其他界面的整体一致性,以及相互之间的烘托作用。地面的图案和色彩作为家具的背景色,切忌花纹太过明显与杂乱。
随着科学技术的进步与经济水平的提高,出现了一些新型地面,如发热地面(俗称地暖)、发光地面等。
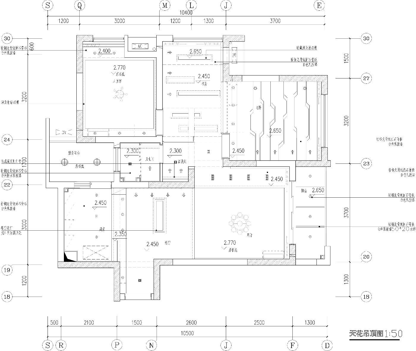
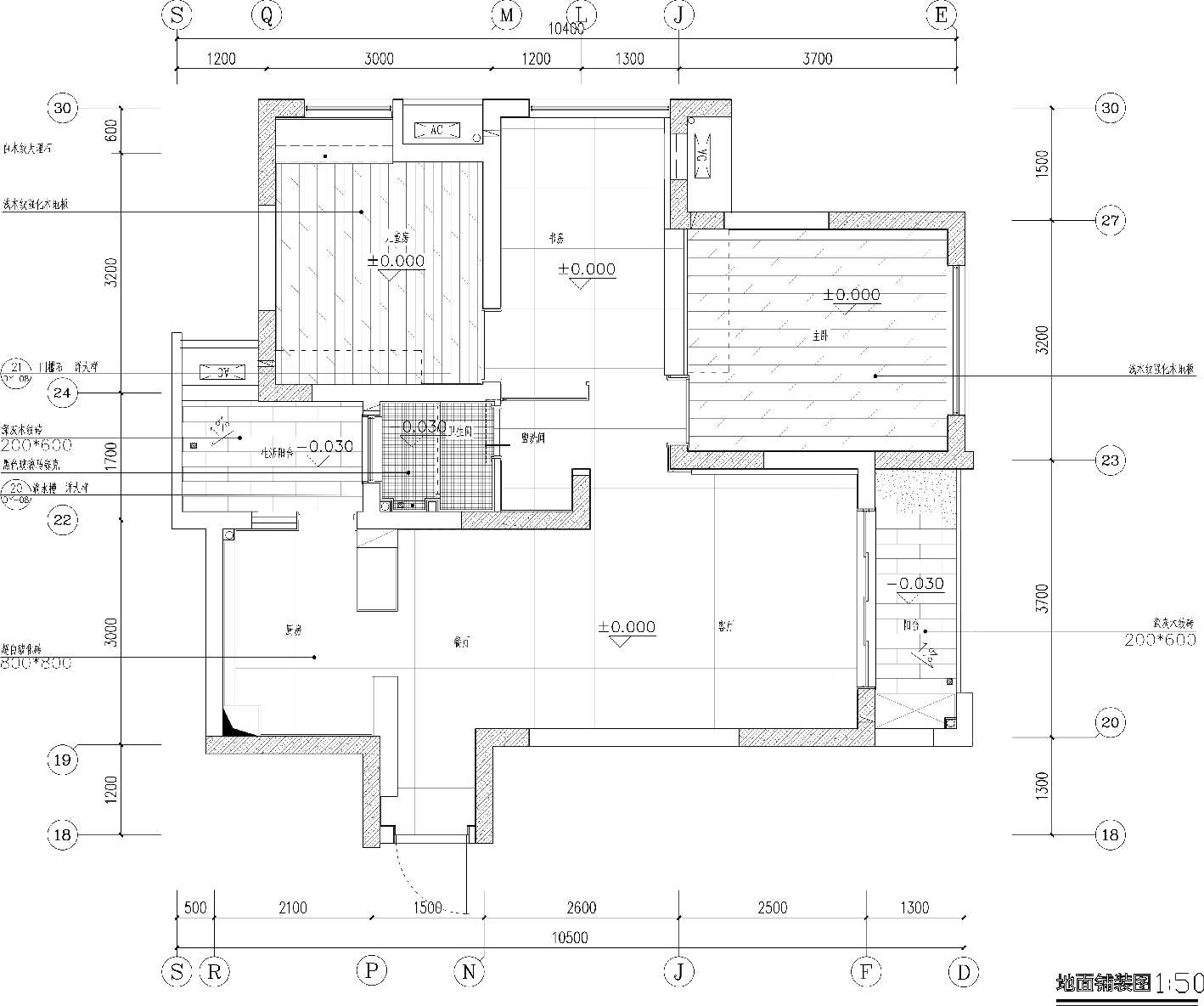
地面设计案例如图 2.29—图 2.31 所示。
图2.29 地面铺装图
图2.30 拼花木地板营造出温馨氛围
图2.31 地面设计整体要与空间匹配
天棚是室内空间的另一个重要界面,起装饰(遮饰等)和隔绝(隔音等)作用。尽管它不像地面和墙面那样与人的关系非常直接,但它却是室内空间最富变化和引人注目的界面。特别是在高大空间中,顶棚的视域比值很高,所以在设计中应予以充分的重视。
顶棚装饰设计的要点如下:
①注意顶棚造型的轻快感。造型、色彩、明暗处理方面应考虑主次原则,力求简洁、完整、突出重点部位。
②满足构造和安全要求。设计应保证装饰部分构造处理的合理性和可靠性,以确保使用安全,避免意外事故的发生。
③满足设备布置的要求。室内设备包括通风空调系统、消防系统、强弱电缆系统、烟感器、自动喷淋器、扬声器等。
天棚设计案例如图 2.32—图 2.34 所示。
图 2.33 中,天棚叠级造型与空调侧送风口相结合,深色天棚与深色墙面相结合,形成安静、深邃的氛围。而图 2.34 中,天棚设计暴露了原建筑结构,漫反射造型与楼板肋板实现了完美结合。
图2.32 天棚平面图
图2.33 天棚设计案例 1
图2.34 天棚设计案例 2
墙面是室内外环境构成的重要部分,不管用“加法”或“减法”对它进行处理,都是陈设艺术及景观展现的背景和舞台。因此,墙面对控制空间序列、创造空间形象具有十分重要的作用。
墙面装饰设计的作用如下:
①保护墙体:墙体装饰能使墙体在室内湿度较高时不易受到破坏,从而延长使用寿命。
②装饰空间:墙面装饰能使空间美观、整洁、舒适,富有情趣,渲染气氛,增添文化气息。
③满足使用:墙面装饰具有隔热、保温和吸声作用,能满足人们的生理要求,保证人们在室内正常工作、学习、生活和休息。
坚固、规整而对称的墙面设计,能够表达出一种规范的美感;不规则的墙面设计则具有动感和活泼性,尤其是采用具有粗糙纹理的材料或将某种非规则的设计性格带到空间内时,表现得更为强烈。当墙面带有材质纹理并设计有活泼色彩时,就成了积极活跃的动点界面,成了展示空间个性的“屏幕”,能够吸引住人们的注意力,成为视区的“主角”。
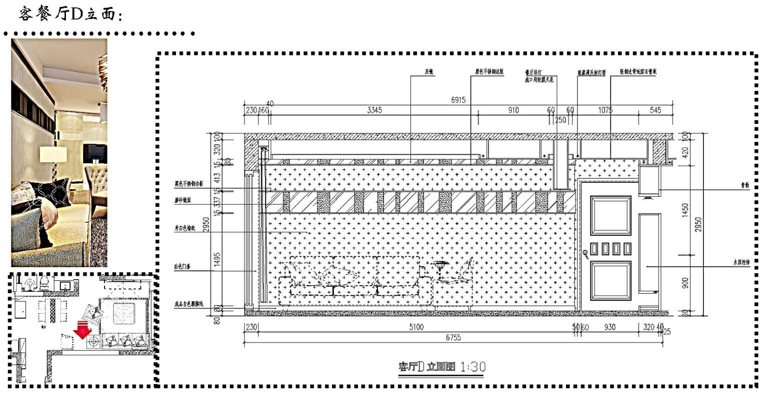
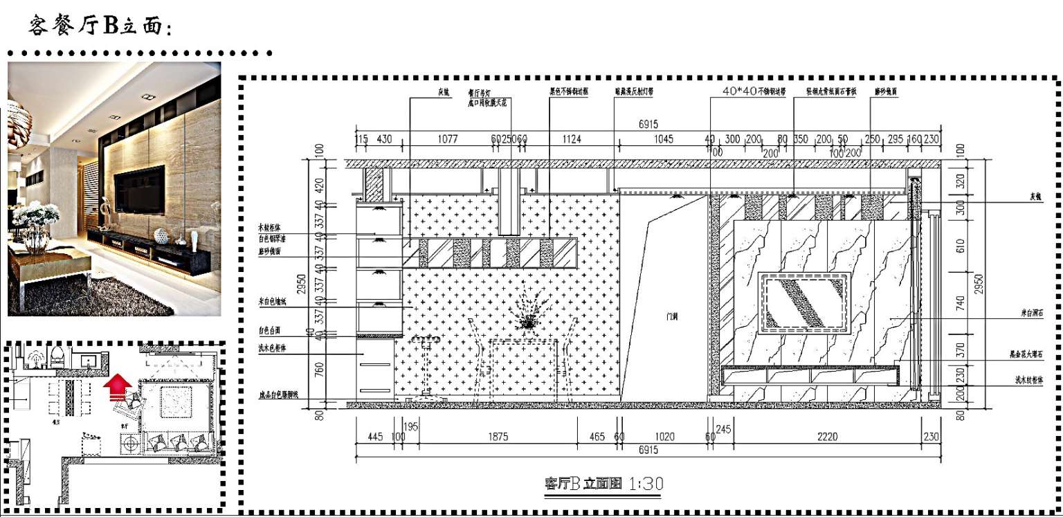
墙面设计案例如图 2.35、图 2.36 所示。
图2.35 墙面与空间分割的设计效果
图2.36 墙立面设计方案