



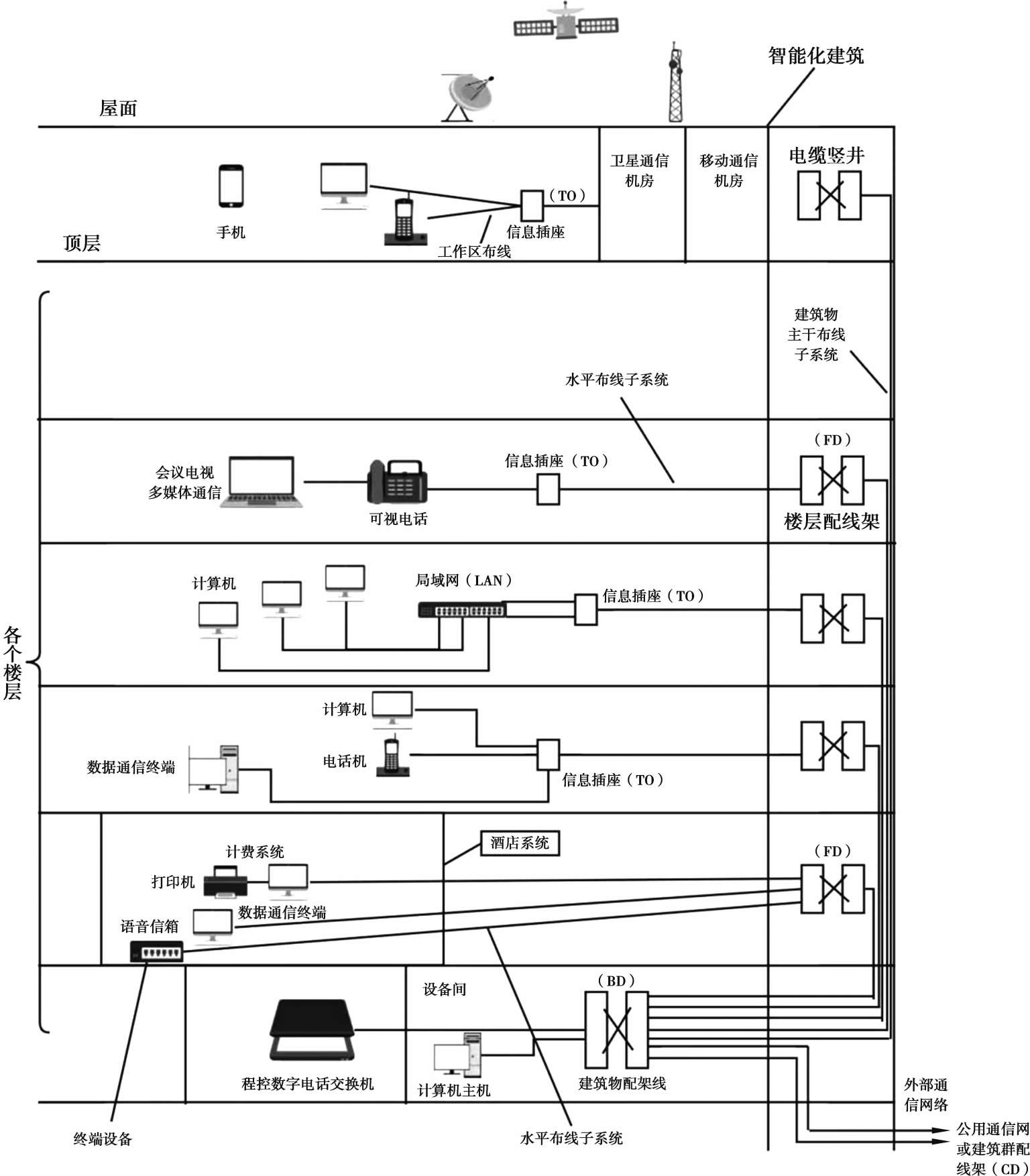
综合布线系统是以建筑环境控制和管理为主的布线系统,是一个模块化的、高灵活性建筑布线网络。它可以连接语音、数据、图像以及各种楼宇控制和管理设备。目前,综合布线系统在智能建筑中的典型使用情况,如图2.19所示。从图中可知,智能化建筑的各相关子系统都可通过综合布线系统连接在一起。
图2.19 综合布线在智能建筑中的典型应用示意图
由图2.19也可以了解到目前广泛使用的综合布线系统与建筑设备自动化系统的集成尚有一定的距离,下面进一步介绍相关情况。
建筑设备自动化系统(BAS)是智能建筑中的重要组成部分,是一个集中管理和分散控制相结合的计算机控制系统,简称集散型控制系统。
集散控制系统(DCS)是20世纪70年代随着计算机技术发展而出现的。它的主要基础是4C技术,即计算机、控制、通信和CRT显示技术。DCS分为硬件和软件两个部分。其硬件部分主要由集中操作管理装置、分散过程控制装置和通信接口设备等组成。通过通信网络将这些硬件设备连接起来,共同实现数据采集、分散控制和集中监视、操作及管理等功能。DCS软件包括工程师站组态软件、操作员站在线软件、现场控制器运行软件、服务器软件等。
当前,BAS常采用分层分布式结构。整个集散型控制系统分为3层,每层之间均有通信传输线路(又称传输信号线路)相互连接形成整体。因此,集散型控制系统结构由第1层中央管理计算机系统、第2层区域智能分站(现场控制设备,即DDC控制器)和第3层数据控制终端设备或元件组成,如图2.20所示。
图2.20 集散型控制系统的组成
中央管理系统实施集中操作还有显示、报警、打印与优化控制等功能。智能分站通过传输信号线路和传感元件定期采集现场各监测点的数据,并将现场采集的数据及时传送到上位管理计算机;同时,接收上位管理计算机下达的实施指令,通过信号控制线控制执行元件动作,完成对现场设备进行控制。传感元件和执行元件称为终端设备,传感元件对温度、湿度、流量、压力、有害气体和火灾检测等监测对象进行检测,执行元件对水泵、阀门、控制器和执行开关等进行调节或开关。
目前,GCS与BAS的集成工作主要体现在如何确定综合利用的通信线路和安装施工协调两个方面。
目前,在建筑设备自动化控制系统中各子系统中常用的线缆类型,主要有电源线、传输信号线路和控制信号线3种:电源线一般采用铜芯聚氯乙烯绝缘线;传输信号线通常采用50Ω,75Ω,93Ω等同轴电缆和双绞线等,有非屏蔽(UTP)或屏蔽(STP)两种类型。控制信号线一般采用普通铜芯导线或信号控制电缆。由此可见,BAS所用的线缆类型只有传输信号线路可与综合布线系统综合利用,这种技术方案也能简化网络结构,降低工程建设造价和日常维护费用,方便安装和管理工作。此时,应统一线缆类型、品种和规格,并注意:
①建筑自动化系统品种类型较多,有星形、环形和总线形等不同的网络拓扑结构,其终端设备使用性质各不相同,且它们的装设位置也极为分散。而综合布线系统的网络拓扑结构为星形,各种缆线子系统的分布并不完全与各个设备系统相符,因此,在综合布线系统设计中,不能强求集成,而应结合实际有条件地将部分具体线路纳入综合布线系统中。
②按照国家标准规定要求火灾报警和消防专用的信号控制传输线路应单独设置,不得与BAS的低压信号线路合用。因此,在综合布线系统中这些线路也不应纳入。
③BAS如在传输信号过程时,有可能产生电缆线路短路、过压或过流等问题,必须采取相应的保护措施,不能因线路障碍或处理不当,将交直流高电压或高电流引入综合布线系统而引发更严重的事故。
当利用综合布线系统作为传输信号线路时,GCS通过装配有RJ-45插头的适配器与建筑环境控制和监测设备的网络接口或直接数字控制器(DDC)设备相连。经过综合布线系统的双绞线和配线架上多次交叉连接(跳接)后,形成建筑设备自动化系统中的中央集中监控设备与(分散式)直接数字控制设备之间的链路。此时,(分散式)直接数字控制设备与各传感器之间也可利用综合布线系统中的线缆(屏蔽或非屏蔽)和RJ-45等器件构成连接链路。
智能建筑中BAS的信号传输线路利用综合布线时,其线路安装敷设应根据所在的具体环境和客观要求,统一考虑选用符合工艺要求的安装施工方法。主要注意以下5点:
①BAS水平敷设的通信传输线路,其敷设方式可与综合布线系统的水平布线子系统相结合,采取相同的施工方式,如在吊顶内或地板下。
②当BAS的通信传输线路,采取分期敷设的方案时,通信传输线路所需的暗敷管路、线槽和槽道(或桥架)等设施,都应预留扩展余量(如暗敷管路留有备用管、线槽或槽道内部的净空应有富余空间等),以便满足今后增设线缆的需要。
③应尽量避免通信传输线路与电源线在无屏蔽的情况下长距离墙平行敷设。如必须平行安排,两种线路之间的间距宜保持0.3m以上,以免影响正常信号传输。如在同一金属槽道内敷设,它们之间应设置金属隔离件(如金属隔离板)。
④在高层的智能建筑内,建筑自动化系统的主干传输信号线路,如客观条件允许时,应在单独设置通信和弱电线路专用的电缆竖井或上升房中敷设。如必须与其他线路合用同一电缆竖井,应根据有关设计标准规定保持一定的间距。
⑤在一般性而无特殊要求的场合,且使用双绞线的,应采用在暗敷的金属管或塑料管中穿放的方式;如有金属线槽或带有盖板的槽道(有时为桥架)可以利用,且符合保护线缆和传送信号的要求时,可采取线槽或槽道的建筑方式。所有双绞线、对称电缆和同轴电缆都不应与其他线路同管穿放,尤其不应与电源线同管敷设。
传统2芯线电话机与综合布线系统之间的连接通常是在各部电话机的输出线端头上装配1个RJ-11插头,然后将其插在信息出线盒面板的8芯插孔上就可使用。在8芯插孔外插上连接器(适配器)插头后,就可将1个8芯插座转换成2个4芯插座,供两部装配有RJ-11插头的传统电话机使用。采用连接器也可将1个8芯插座转换成1个6芯插座和1个2芯插座,供装有6芯插头的电脑终端以及装有2芯插头的电话机使用。此时,系统除在信息插座上装配连接器(适配器)外,还需在楼层配线架(IDF)上和在主配线架(MDF)上进行交叉连接(跳接),构成终端设备对内或对外传输信号的连接线路。
数字用户交换机(PABX)与综合布线系统之间的连接是由当地电话局中继线引入建筑物的,经系统配线架(交接配线架)外侧上的过流过压保护装置后,跳接至内侧配线架与用户交换机(PABX)设备连接。用户交换机与分机电话之间的连接是由系统配线架上经几次交叉连接(跳接)后形成的。
建筑物内直拨外线电话(或专线线路上通信设备)与综合布线系统之间的连接是由当地电话局直拨外线引入建筑物后,经配线架外侧上的过流过压保护装置和各配线架上几次交叉连接(跳接)后构成直拨外线电话线路,如图2.21所示。
图2.21 综合布线与外线电话的连接
计算机网络与综合布线系统之间的连接,是先在计算机终端扩展槽上插上带有RJ-45插孔的网卡,然后再用一条两端配有RJ-45插头的线缆,分别插在网卡的插孔和布线系统信息出线盒的插孔,并在主配线架上与楼层配线架上进行交叉连接或直接连接后,就可与其他计算机设备构成计算机网络系统,如图2.22所示。
图2.22 GCS与计算机网络的连接
电视监控系统中所有现场的彩色(或黑白)摄像机(附带遥控云台及变焦镜头的解码器),除采用传统的同轴屏蔽视频电缆(75Ω)和屏蔽控制信号电缆与控制室控制切换设备连接构成电视监控系统的方法外,还可采用综合布线系统中非屏蔽双绞线缆(100Ω)为链路,以及采用视频信号、控制信号(如RS 232标准)适配器与监视部分、控制室部分的电子监控设备相匹配相连后,构成各摄像机及解码器与监控室控制切换设备之间采用综合布线系统进行通信的监控电视系统的方法,如图2.23所示。
图2.23 综合布线与电视监控系统的连接
智能建筑可按实际应用分为很多种类型。不同类型的智能建筑,其投资成本、智能化程度以及对综合布线技术的要求也各有差异。如专用大厦和商业大厦由于主要用途是专业办公或商务办公,在建筑中需要使用大量的电气设备,同时还要另外配置通信、计算机、消防、保安、楼宇自动化控制、管理自动化等系统,其投资成本及对于综合布线技术的要求也较高。国外常办公大楼综合布线投运2年甚至1年后就需要改造扩容,尤其是进入智慧社会建设阶段,元宇宙概念得到落实和接受之后,考虑到未来可能迎来的高密度数据量需求,一般需考虑5年左右的超前量。
1.综合布线系统的基本含义是什么?它的现状和发展方向是怎样的?
2.综合布线系统由哪些子系统组成?各子系统的主要功能是什么?主要使用什么部件?
3.综合布线系统中使用的主要传输媒体有哪些?各有何应用特点?
4.综合布线系统的配置标准和性能特点是怎样的?
5.综合布线系统的设计过程是怎样的?
6.综合布线系统的各子系统设计有哪些基本要求?
7.综合布线系统目前与建筑设备自动化系统是如何集成的?
8.综合布线系统是怎样与电话系统、计算机网络系统和电视监控系统相连接?
9.工作区子系统的设计需求有哪些?
10.系统接地的要求有哪些?
11.简述集散型控制系统的组成,并介绍其控制过程。