



工作如果不再只是榨干智慧、耗尽体力,而是一个既可发挥创意、又可强健身心、谈心说情的最佳场所,也许就再也没有人抱怨永远还没休息够又要工作,工作也不再成为生活中不得不为的有规律动作而已。而这样的魔幻工作空间在本案设计师的巧思下于焉展开!
一场高科技和艺术融合的飨宴
不同于过去总以明亮的光线、浅色的壁面、单调的材质来作为办公空间的设计典型,本案最大特色即是以艳丽的色彩表达和丰富的光线变化来塑造办公空间的语汇。一栋五层楼的科技大楼,一楼大厅白色银狐石柜台以半弧形烤漆玻璃板作为背景,再配上圆形墨绿色石材地板,高科技质感隐然而现;但当窥见大厅右侧鲜艳的黄色块毯所区隔的会客区,以及点点光影所投射在大厅的壁面、地板那一刻起,才恍然大悟原来一场高科技和艺术融合的飨宴早已拉开了序幕。
上了二楼,首先令人惊叹的是各平面空间的区隔竟是以高穿透性的玻璃来替代一般的实墙。以玻璃墙十字形的划分产品展示区、小型会客室、宾客等待区以及主管办公区、小型会客室、宾客等待区以及主管办公区,除了巧妙地暗示了各区域间既关连但又各自独立的关系外,更着实显露出公司对于自身所制造的产品不论是由任何人在任何角度都可接受严格检验的自信。另一方面,主管区的走廊逐层退缩式边墙,在设计师大胆地将它涂上了色彩艳丽的蓝色并巧饰天花板上的透光灯映射后,一种俏皮的戏剧效果迸然而出:瞧!不小心从边墙上各个主管办公室的玻璃门所溢泄出来的光影,正透露着也许将随时会有个意想不到的创意出现呢!而五楼的员工休闲空间则顿时令人有错置酒吧或休闲娱乐中心之感。无论是区域一端以壁面间接光呈显出幽暗氛围的撞球、KTV等静态休闲区,抑或是另一端以天花筒灯照耀得满室星斗的健身房、桌球室等动态休闲区,在黄、蓝色边墙、玻璃砖墙,以及原木、灰色相间地板的活泼妆点下,辛勤一天的员工在此终于找到了放松身心、解放自我的空间。
壁面和地板色彩的活泼变化,让人彷佛有置身于酒吧或咖啡厅之感。
工作空间的省思
只有办公桌椅的工作空间不再是理所当然,严肃淡雅的色彩亦非工作空间的固定模式,而冰冷理性的材质搭配更不是高科技公司唯一可强调的企业形象;也许当符合基本工作机能的同时,也能重视员工的休憩,并不忘融入人文艺术的感性气质,才真正是一个高瞻远瞩的企业所应汲汲追求之目标。
从天花和喷砂玻璃门内所泄溢出的光影,在渐层退缩的蓝墙上构筑了一个科技的魔幻世界。
光影在玻璃砖墙上产生五颜六色的物理变化。
二楼设计平面图。
入口大厅处,在白色银狐石柜台、半弧形烤漆玻璃板和镜面不锈钢饰条作为背景,以及台湾绿石地板的烘托下,高科技质感展现无遣。
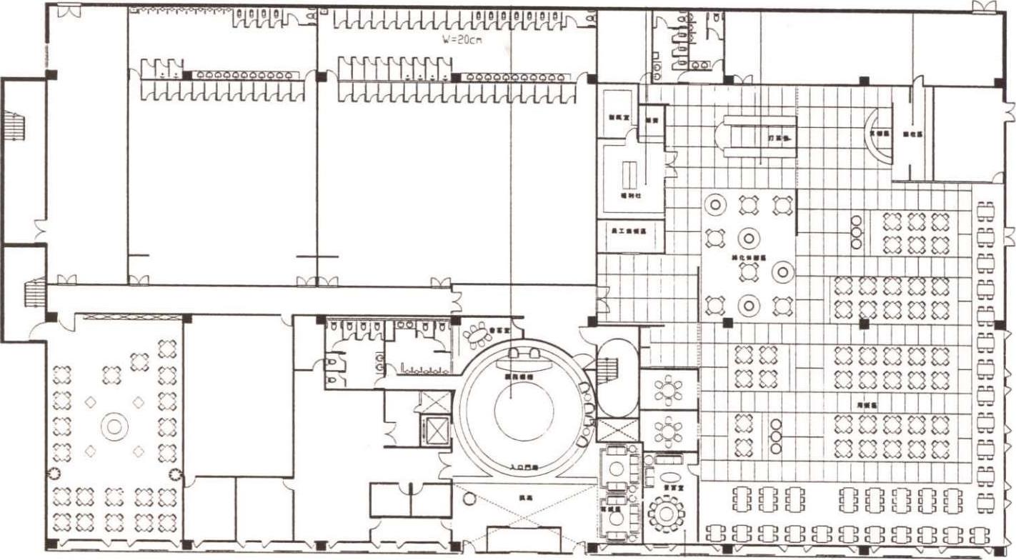
一楼设计平面图。
四楼设计平面图。
一楼的员工用飨区,在不同色系的地坪,以及三个漆上艳蓝色的几何图形墙面框架区隔下,自然地被点显了出来;相间的光点树影,让午后的休憩更添几分惬意。
自天花板和壁面层层透显出来的光影,将四楼的演讲厅妆点得热闹非凡彷佛一场精彩绝伦的演讲就要开始!
一楼的员工用飨区一隅。
畅饮可乐、开怀高唱,高兴时再撞个几局球……一切就在下班时刻的五楼静态休闲区热闹开锣!
即便在交谊厅中闲聊,仍可感受到玻璃墙后的健身房里所散发出来的热力和活力。
大厅右侧以黄色块毯作为空间区隔的会客区,在点点光影的映照下,不仅推显出对来访宾客的重视,更暗示着一场高科技和艺术融合的飨宴即将开始。
二楼的主管办公室隐然若现的玻璃门所含的是中西艺术兼容的品味,壁柜上虎虎生风的十八罗汉像可一点也不逊于设计的创意呢!
高穿透性的玻璃墙以十字形将二楼的平面空间划分为产品展示区、主管办公区、小型会客室以及宾客等待区等四个区域,巧妙地暗示了各区域间既关连但又各自独立的关系。