



“人”与“环境”是左右室内设计案完成风貌的两大因素,前者意指业主与设计师之间的沟通与协调结果,后者则涵括了建筑物形式、面积大小等硬体方面的限制,以及采光和景观等外在环境的条件。
在一般的设计案当中,这两个因素都具有一定的影响力,重要性不分上下;然而对一个跨国案例而言,在同一个设计师面对同一个业主的情况下,环境因素所造成的影响很自然地被突显出来,成为左右设计案完成风貌的一大主因。
本案就是一个由设计师林马克为美希亚音乐办公室(MCA)在新加坡、马来西亚以及台湾三地所完成的跨国案例,深受建筑物及外在环境的影响,在个案陆续完工之后,呈现出色彩鲜明且风格迥异的三种样貌。
台北三民路和南京东路口附近的金融商业区中有栋新落成的办公大楼,最顶两层的楼中楼就是美希亚台北分公司的所在地,有约66平方米面积的挑高空间,正对着南京东路口,视野颇佳。
本案设计师从格局规划着手,将后方的夹层区域区隔成不同的作业单位,前方的挑高区域则维持开放的型态,未加以隔间,并以大门入口处为起点,设置了一个弹型接待区,此区域位居枢纽,不但串连起前后两方的天地,也重整了入内的通道,让上下两层楼的行走动线不至重复。
至于各区域的机能规划则曾做过多次修改,最后定案是将挑高区域作为宣传部门的开放工作区,考量他们的工作性质偏向动态,着重团体沟通
和创意激发,独立作业单位的区隔方式并不适合他们,所以作此安排;此外,则因为此区有完整的玻璃墙面,正对着南京东路口,视野顿时扩增了不少,有助激发员工的潜能与想象力。
主管室则设在二楼夹层的前方,由上向下望去不但可感受到宣传伙伴们所散发出的活力,同时也可看到南京东路的繁忙街景;而后方的夹层区域则划归为静态、可独立作业的生产和财务等部门的办公室,以避免受到前方动态开放工作区的干扰。
在家具配置方面,由于美希亚希望给人充满活力的第一印象,因此,设计师大胆采用红、黄等暖色系的家具,与一般企业认为是标准色的蓝、白等冷色墙面形成强烈的对比,让整体空间显得极为活泼。
至于在材质方面较为特殊的应属透光玻璃和吸音壁布的运用,前者有助于维持空间的通透感,后者则兼具实用与装饰功能,主要将部分墙面作包布处理,在接待室后方以及会议室的通风口外,都可见到这样的处理手法,除了具有美化空间的效用之外,最主要的目的,还是在进行吸音控制,以符合美希亚员工的专业需求。
新加坡的美希亚办公室位于当地繁忙的商业区内,如同台湾的西门町一般,有许多老旧的街屋。美希亚承租其中一栋双层街屋的顶楼作为办公用地,此栋建筑物保留着传统街屋的长形格局以及斜形、挑高屋顶等特色,再加上仅有162平方米的大小,因此,设计师在规划时必须考量到室内采光以及空间利用等问题。
于是,本案设计师林马克保留了原有的天井,此天井弥补了传统街屋因紧邻防火巷,而且格局过长所造成的采光不足的遗憾,并在植栽的围绕下成为室内造景的一部分。此外,为修饰过高的天花板及充分利用空间,林马克增置了夹层空间作为收藏资料以及开会的场所,此夹层与天井和作为端景的一面黄色隔屏,同样具有视觉阻断的效果,因而修饰了本案过长的格局。
美希亚的马来西亚分公司位于吉隆坡的住宅区内,是一栋承租的平房,四周环境令人感到相当的悠闲、自在,因此,设计师特地以大片的落地玻璃窗面取代部分旧有的水泥墙面,除了可引进充分的阳光之外,也带入随风摇曳的棕榈树,以及一般浓厚的热带风情。
另一方面,为避免猛烈阳光直射入内所造成的不适感,设计师细心地在玻璃墙面外设置一片片斜置的木头百叶,以不遮挡户外景观为前提,过滤掉刺眼、多余的阳光;户外则设有花架以供花草攀爬、直上屋顶,凡此种种与大自然相亲的举动和呼应当地度假休闲风潮的悉心设计,使美希亚的员工获得一个可以舒缓身心、从容面对挑战的良好工作环境。
本案设计师在与业主的沟通协调下,成功地呼应了三地不同的区域环境以及街屋、平房和高楼的建筑物形式,为此跨国案例创造出三种风格迥异但却同等精彩的样貌。
马来西亚设计平面图。
台北剖面图。
台北剖面图。
新加坡长向剖面图。
台北——本案的区域机能规划,曾做过多次修改,此是修改中所拟定的手稿之一。
台北二楼会议室与静态、独立作业单位之间的通道。
台北——由一楼的开放区域望向二楼的会议室。
台北——从二楼主管室的窗口向下望去,不但可感受到宣传部员工所散发出的活力,同时也可看到三民路的繁忙街景。
台北一楼通往二楼的主要通道。
台北二楼会议室,出风口外的天花板可见吸音控制的处理手法。
台北——玻璃材质的运用维持了空间的通透性。
美希亚新加坡分公司。
美希亚台北分公司。
美希亚马来西亚分公司。
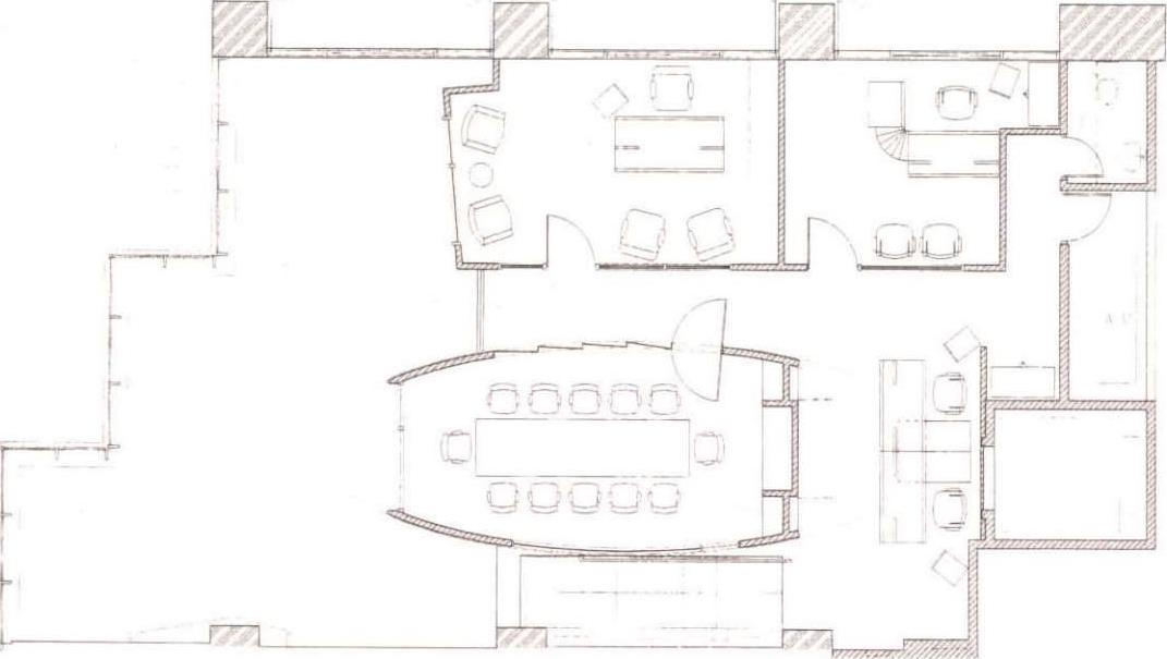
台北办公室的一楼设计平面图。
台北办公室的二楼设计平面图。
以大门入口处为起点所设置的弹型接待区。
台北——设计手稿。
台北——设计手稿。
马来西亚办公室立面图。
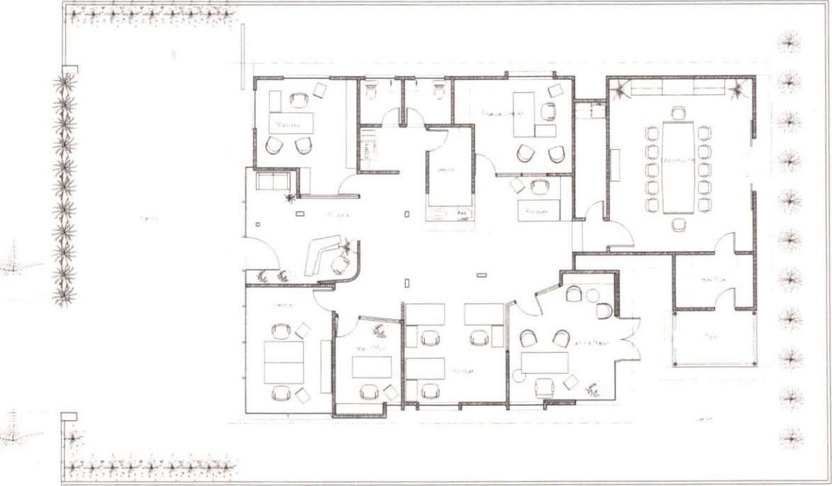
新加坡办公室的一楼设计平面图。
新加坡办公室的夹层设计平面图。
新加坡——夹层与黄色隔屏用具有视觉阻断的效果,修饰了本案过长的格局。