



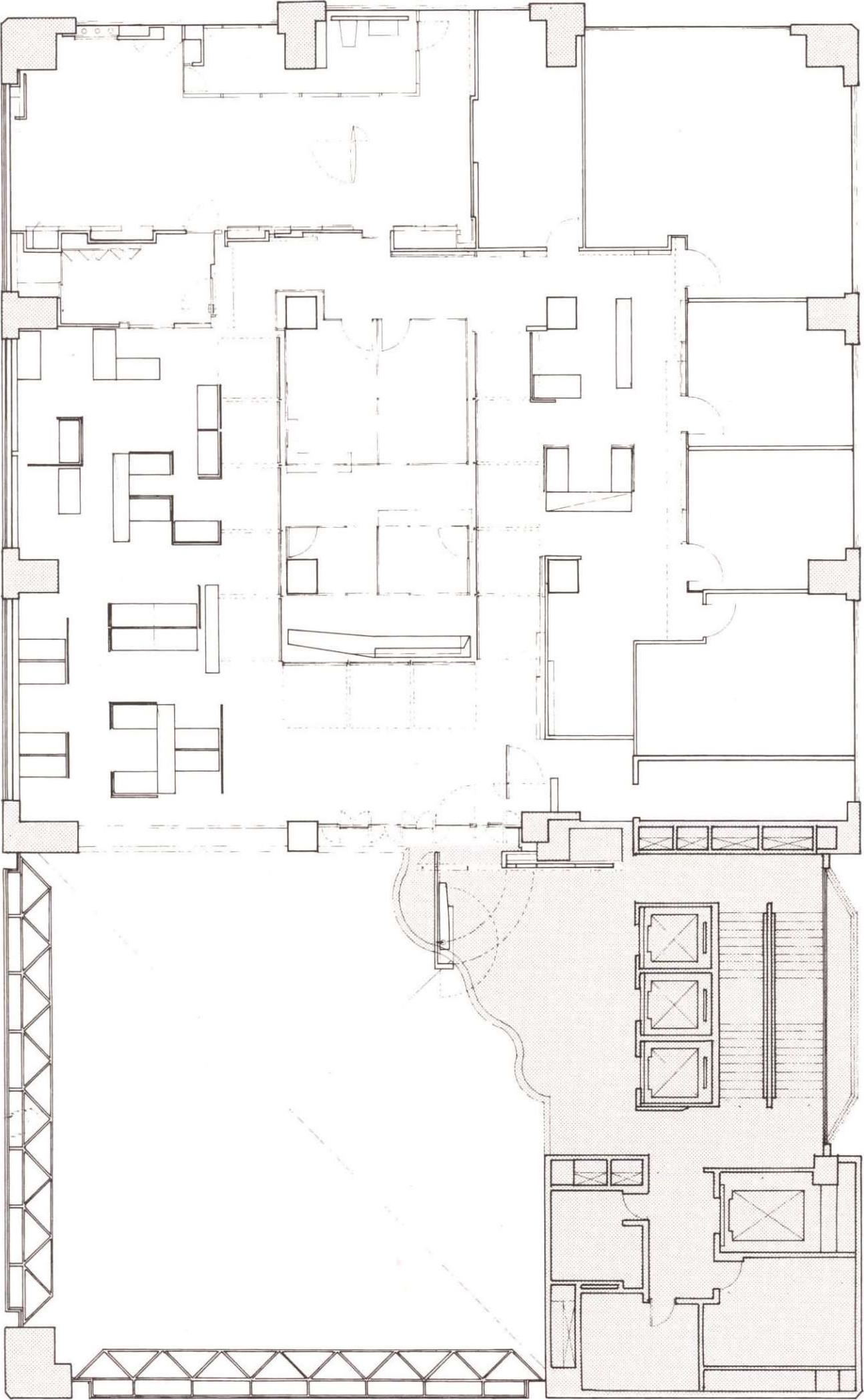
12楼平面图。
本设计案是三立影视总公司的新办公室,也是完成三立影视办公室、三立影视中影棚之后,继续发展的设计,而在这个延续的设计概念中,必须提及前案的架构;最初三立影视办公室要求将电视的操作过程放进一层平面中,设计师尝试将各空间以分节及连续的操作方式,将一个二度的复合性机能在三度视觉过程中完成。三立中影棚位于原本即抽象虚拟的主题公园,在机能上则是过渡的视觉体,用以连结摄影室及工作室;在理念上,设计师以这个箱子(大堂)来传达现实与幻象的并存性。
本案是5层办公室中的一层,是公司的中枢机能体,也是对外与内部的沟通场所。设计上设计师采开放式工作区,中心设置一个多重玻璃的沟通箱,其中包含柜台、会客室、会议室等,以及传真、电脑网路等电子通信式的沟通。细分割的玻璃,透明与半穿透的视觉手法将原有的层叠更加复杂,经由机能同时的使用,内部视觉干涉及箱子外围开放区人影的移动,反射映照在这个多向性的沟通体上。这个箱子的表面是一个可上开的羽板结构,扮演肢体介入这个多向性沟通空间的另一因子;经由这层“膜”的开闭组合,造成所谓的直接干涉与间接干涉。
传播媒介在传达沟通上朝向双向与多向发展,现代的沟通手段已将物理空间剥夺,取而代之的是接收者的位置。独立封闭式的沟通空间也因新起的网路会议所取代。
与外界似通有无的会议室。
多层次的分割方式,更显空间的多重叠性。
“箱子”的开、闭印象。
极具光影效果的大门入口。
由大门进入,便可感受空间的许多层次。
中心箱子开展后与外围办公区的关系。
视觉由柜台处向后延伸,隐约可见重叠交汇的物件群。
半穿透的视觉效果。