



面积:60平方米
间隔:二室二厅
由踏进房子的一刻开始,便仿如踏进了舞台的场景,玄关的长格子石砖地板,像台阶一般欢迎你上台。
在这个钻石型的间隔里,面积虽小,各个角落却都各自精彩。饭厅的一边,作了一面入墙柜,柜面用红榉和白榉木镶了九个框格,九宫格内配置磨砂胶板,把一面柜身如图案般装饰,成了整个起居室的焦点。九个图格像圣诞日历,每个格内藏的是什么?可能是一般日用杂物,可能是鞋柜,也可能是……咦,中间的一格……是的,只是一个装饰位,不能开启,是设计师开的一个玩笑,九个同样的设计,要你猜哪一个是例外。
满室活泼颜色,布置在另一边厢。客厅同样是个不规则间隔,要刻意把它齐整规格化,吃力而不易讨好;不如来个随意而一般的设计:沙发、电视柜就这样简单地摆放着。客厅虽是款客的地方,更多时候却是一家人欢聚的场所,布置这个温馨场景,设计师致力于它们的形象:坐垫上是蓝与黄配成深浅有致的格子图案,电视柜柜门同样用红木、白木组成格子点缀,这个格子情结,承转自饭厅入墙柜的柜面设计。大格子配上阔条的黄白间墙纸,借宽大简约的线条图案减轻空间狭小的感觉,至于鲜艳的色彩,则希望制造更明朗的空间气氛。家居的温暖情意,透过色彩和线条展现开来。
把人从起居室引入卧室,这里靠的是一列狭长的走廊。走廊里是另一个充满迷幻的空间,走廊入口如常有装饰标示其位置,设计师用的是左右两道木柱条装饰。两根木柱看似设计一致,其实左边的一条乃以红榉木包镶墙角边而成,右边的一条则连贯电视矮柜的结构,独立而成一柱。两道木柱的设计除为暗示走廊入口而设外,也为平衡两边前后位置有别的墙身。再向前行,又是一由长条子和格子组合而成的几何世界,菱形格子拼成的木门,隐藏着一个又一个私隐空间;最透露心事的,就只有那用磨砂玻璃作的厨房门。不过要数最密实的,还不如楼顶的一列天花,在简单的射灯之后,隐藏的是宽阔的储物空间。
设计师没有刻意把这个家布成舞台,然而线条、颜色的组合,却在视觉效果上引人注目,带一点剧场的夸张悦目。或许真如人所说,人生是一台戏,走在社会大道上,就像步进舞台的世界,拥有自我之余,同时也为找寻认同而扮演着另一角色,至于在家居中,上演的又会是怎样的一台戏呢?
设计及照片提供:Ricky Lai(禾洛室内设计装饰有限公司)
摄影:黄浩然(正本广告摄影制作)
撰文:李慧欣
设计师在饭厅这边墙身造了一个入墙柜,柜面以九宫格式的长格子并图组成,在红、白榉木框架内镶上轻巧胶板,胶板的图案仿自日本和纸的纹理设计,不但能做到磨砂玻璃的朦胧效果,更不会产生一般磨砂玻璃柜门因玻璃日久重压而造成柜门变形的弊端。九格柜门之内,分别用作储物及鞋柜,中间的一格,则内置灯管,作成一个装饰柜位。
整个房子的图案以长条、格子为主,颜色则采用黄、蓝的活泼色调,整个布局,就给人舞台效果的感觉。
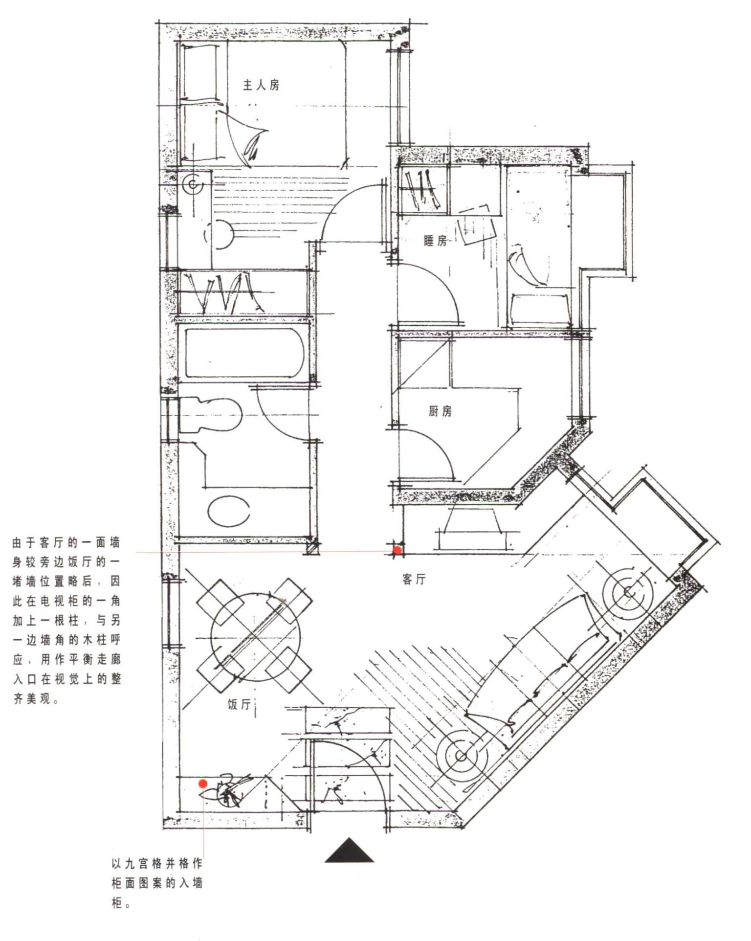
设计师在电视柜近走廊口的一角加上一根木柱,目的乃平衡旁边略前的一面墙身。
房走廊一般长而狭,难以摆放多余的家具,却往往占去房子面积 5 %- 7 %,为了地尽其用,不妨从天花板入手,像设计师在这里加设假天花板暗藏储物空间,并因势利导装上灯槽,为起居室加添照明。
由于摆放电视柜那面的墙壁较饭厅的那一幅位置略移后,为平衡彼此的距离,设计师在电视柜近走廊口的角位加了一根木方柱,更在另一面墙身的墙角包镶了同一款式的装饰,从视觉上平衡了两墙的差距,又装饰了廊门。
房子内的各个房门,全由设计师为户主特意设计图案,设计师所持的设计宗旨是要配合整个空间设计的线条,因此选取的都是与方格子有关的几何设计,无论是木制的睡房门,还是磨砂玻璃的厨房门,所有房门均采用菱形的拼格。
几何线条横贯整个房子,即使在卧房里,也可以看见长条子的纵横贯穿。
在卧室里的衣柜,也同样采用客厅入墙柜的设计,以大大小小的长格子为图案,在红榉木框架内镶上轻巧的日式纸样图案胶板。设计师说一般客户以为只有磨砂玻璃才能做到朦胧的视觉效果,事实上这种普遍用于酒店装修的磨砂胶板,不单在图案上选择更多,而且较玻璃轻巧,不会令柜门受压变形。
单元平面图