



面积:约 47平方米
间隔:二室一厅
沿着缓慢的车龙,坐在的士车厢里,以为身在旺角闹市。人多车多皆因对面同一发展商有新楼盘推介示范单元。有灯饰、有饮品,俨如嘉年华会一样。新潮的买点一向是低密度住宅,环境清幽,但眼前的境况却相反。幸好进入目的地的范围里,没有了外来参观的人潮和响闹不停的车声,四周依然是宁静的。
缘分是一件很奇妙的东西。这次的访问本来没有时间亲自到拍摄现场的,是突然行程有变才可以成行。与设计师相见后,发现他跟撰稿人是差不多三年前一次访问中认识的,之后没有再遇上。那所房子的设计令我有很深刻的印象,因为一间外表平平无奇的村屋,内里的装修却可以是很现代化的。设计师给予撰稿人的印象是富有创意,又不忘实用性,还有对颜色的配搭很讲究。再看这所房子,设计师的风格犹在,只是多加了其他的设计灵感。
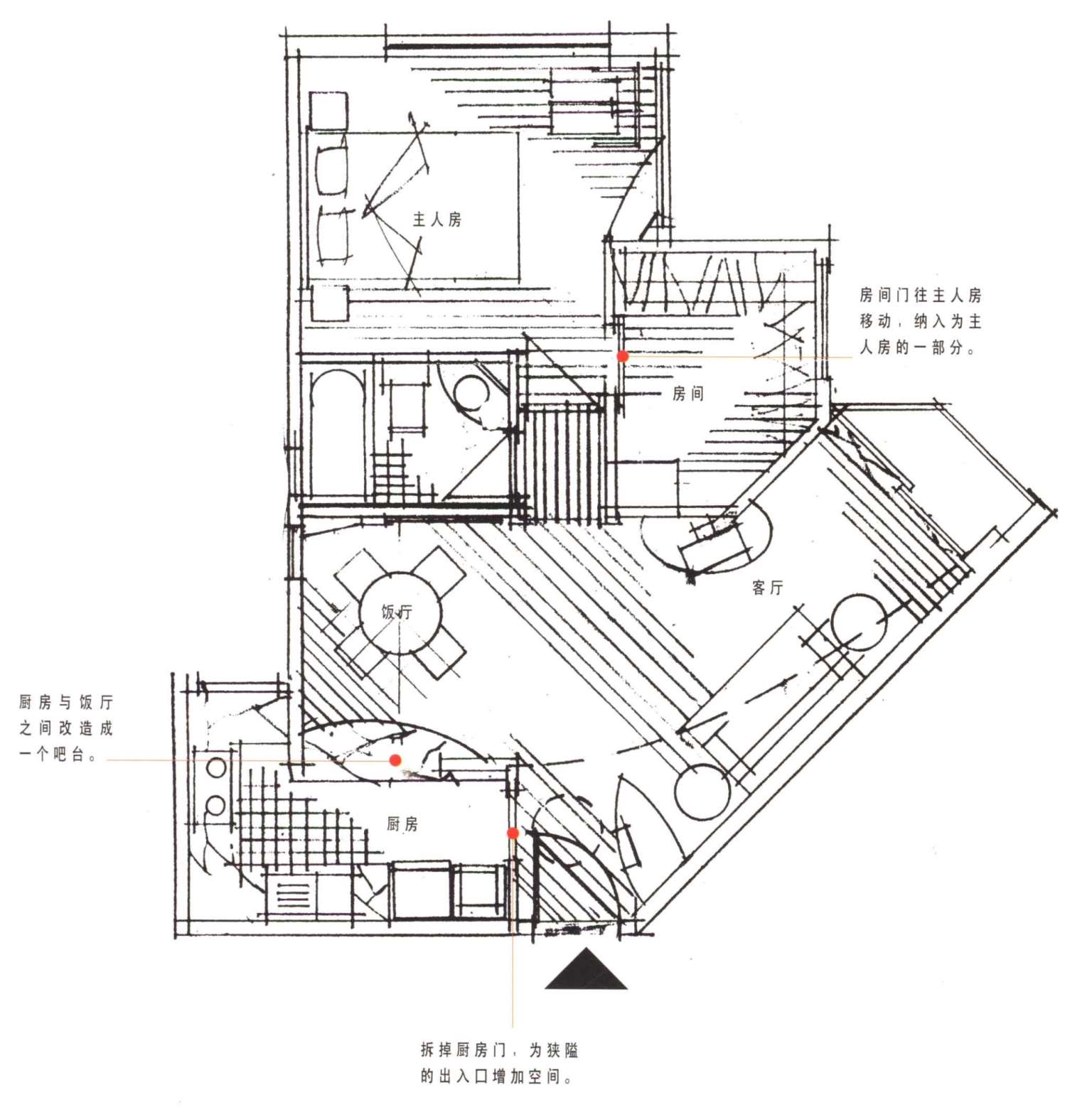
原来房子有不少拆改的地方,一来是拆去若干间隔墙壁及房门,让一个人住的空间更见宽敞;二来是改动一些家具摆放的位置,为不规则的厅堂重造新的起居模式。
原来密封的厨房拆改为半开放式,小型云石超出本位,墙身除榉木外还夹杂彩色纸皮石,是鲜见的设计素材。厨房门拆去了,不致占去太多的空间。
原来两间睡房改为一间主人房连衣帽间,除方便屋主的起居生活外,主人房的空间亦扩大了。
原来的厅堂是呈不规则状的,若在贴近露台的长方形空间里同时摆放沙发及电视柜,则两者的距离太近了,不太方便。如要拉远两者间的距离,便要挪出一点。设计师借用了客厅近睡房走廊处的转角位造了一个弧形电视柜,相对的位置则摆放了一张沙发。这样,电视柜与沙发既是客厅中最远的一段距离,又可以大致保持直线的视点。这是利用家具位置与形状重造生活模式的方法,效果更见理想。
原来一般的鞋柜有划出玄关位置,以及分隔玄关与起居室的作用。但房子中的鞋柜不单如此,设计师特意造成风帆状是想在视觉上改变客厅的空间线条,不再成三尖八角的。再配合弧形的电视柜及远处圆形的饭桌,不规则的空间虽然依旧是不规则,但感觉上顺畅了许多。
圆,是几何上的图形,落到设计中可以成为一种隐喻。房子的设计充斥着圆形。踏入大门,玄关位置上的假天花板已是圆形。旁边鞋柜的风帆状磨砂玻璃上有一块圆镜。进深一步,饭厅的一道灰绿色墙壁挂上矩形镜子,在右上角便刻出了一个圆形的装饰。还有浴室门及主人房门的左上角也各自有一块圆形的磨砂玻璃。全屋的圆,大小不同,分布地方亦不同,但一再出现,喻表了圆是房子设计的主题。
圆是无始无终的线,代表圆润,代表团圆。更深地可以联想到句号也是一个小小的圆形。若句子文章可以划上句号,这个“圆尾”意味着“完美”。房子的圆形,原来是隐喻了生活中的“圆”。
设计及照片提供:Henry Li(Amazing Interior Design Co.)
摄影:黄浩然(正本广告摄影制作)
撰文:周静仪
由玄关延伸至客厅的弧形假天由玄关延伸至客厅的弧形假天花板内置光源,射灯和反射灯互相配合。
玄关位置的鞋柜特意造成风帆玄关位置的鞋柜特意造成风帆状,除了取其外形独特、富新意外,利用弧形线条改变厅堂的形状也是其中目的之一。
鞋柜上风帆状磨砂玻璃中的圆形是一面镜子,让屋主临出门前可以再一整姿容。
电视后的墙身陡然斜向窗门,较难摆放电视后的墙身陡然斜向窗门,较难摆放家具,设计师便在转角处造了一个弧形电视柜,既可以拉远沙发与电视之间的距离,又改善了空间的不规则线条。
半开放式的厨房以榉木及彩色纸皮石拼半开放式的厨房以榉木及彩色纸皮石拼砌出独特的效果,如设计师所说,用料较为新鲜,能带出令人意外的惊喜。
客厅这幅镜墙上的圆形装饰,与两道房门上的圆形磨砂玻璃互相呼应,以统一的设计手法,带出了生活中的“圆”。
饭厅灰绿色墙壁挂上矩形镜子,增加了空间的深度。
厨房空间较狭长,左右距离只有数格阶砖,所以索性拆去房门,腾出更多的空间摆放厨房用品。
蓝色的地砖、蓝白色的墙砖、蓝红色的厨柜,将厨房变成蓝色的天地,的确有人喜欢蓝。
单元平面图