



面积:47平方米
间隔:两室一厅
可曾注意到有不少电影或戏剧都会有一人分饰两角的情况出现,通常是一个演员同时间演绎两个截然不同的角色,这两个角色无论在性格、行为、思想或者生活习惯等各方面均大相径庭。其实,现实生活中也经常有一人分饰两角、甚至多角的情况出现,因为每个人都有可能潜意识地在不同场合扮演不同的角色,要整体上了解一个人的真实性格,确实要从多方面去分析观察,才可以得出结论。
举例说,有些人在社交场合表现得很健谈,但他们可能特别喜欢宁静的生活;也有些人表面看似十分豪爽和不拘小节,但当他们做起事来却又表现得分外细心……人的心理状况随环境而变,所以给别人的印象往往是不一致的。其实,从多方面的剖析和了解,正好形容这所房子的设计方案……
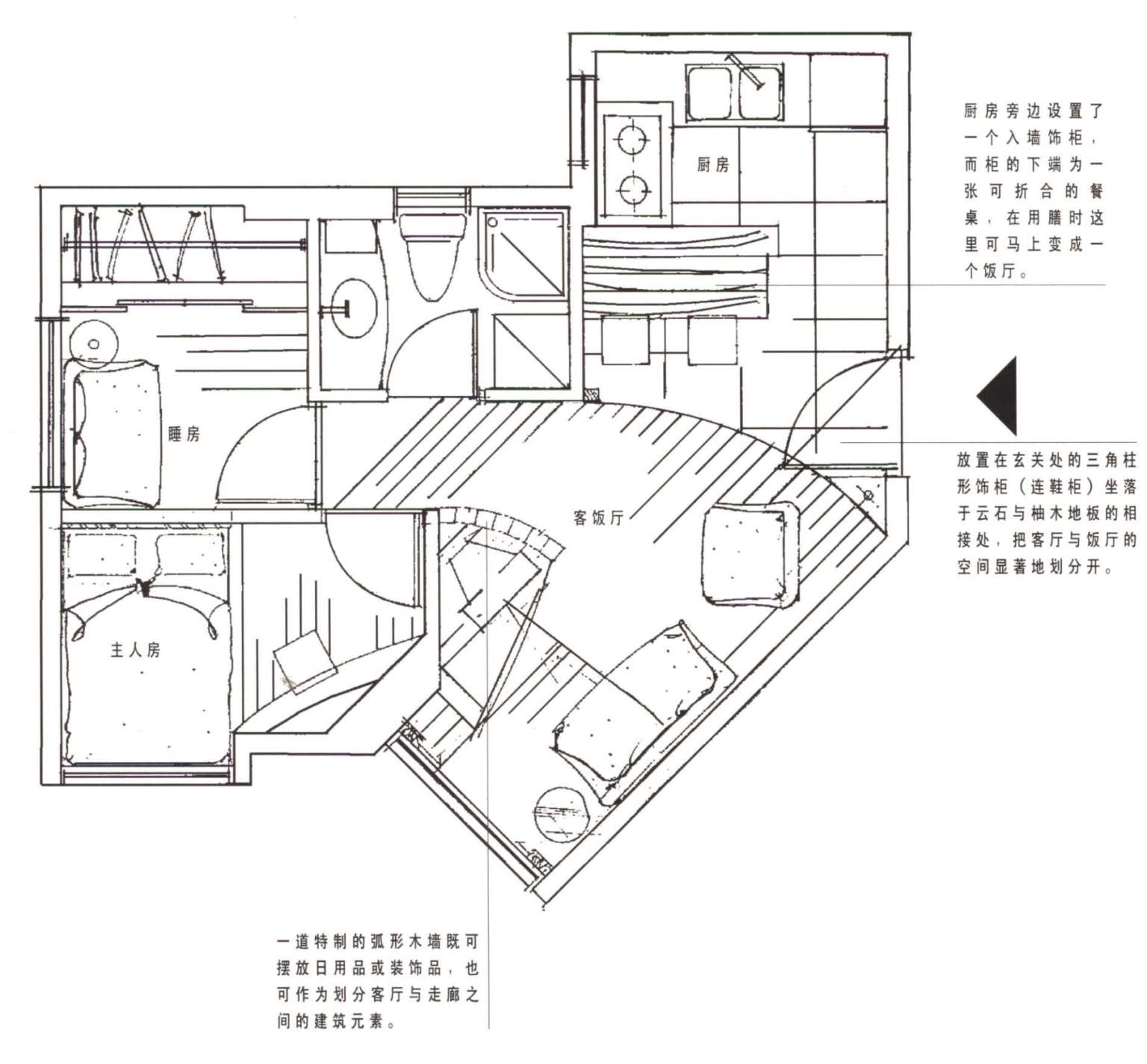
整体上,本居室的布局给予笔者一份多面体的感觉,这种感觉原于设计师把一些建筑元素与特别设计的家具融合起来,为室内营造出一连串多变的空间。放置在入口处的三角形立柜分为两部分,一部分为密封的鞋柜,而另一部分则为设有玻璃层板的饰柜,里面摆放精致小巧的装饰品,令玄关增加了一片瑰丽雅致的气氛;另一方面,柜子特别被安排放置在柚木地板与云石地砖相接处,此举明确地把客厅和饭厅两个不同功能的空间划分出来。这个款式独特的柜子在室内“扮演”了两个重要角色——它既是玄关的标志,也是把客厅与饭厅划分开的元素之一。
鉴于这所房子面积比较小,设计师特别设计了一个附设餐台的入墙柜,提供业主一个更富弹性的空间布局。如果不使用餐台时可以折合并收藏于饰柜之下,饭厅就变得宽敞起来。如此具创意的方案在客厅也可以见到,一道纯白色的弧形木墙装于电视柜旁边,把原有的墙壁延伸开来,也顺势加强了走廊的深度。此外,设计师为了令走廊更增通透感,墙身特设安装玻璃层板的长方形架子,用作摆放激光唱片及日用品;当射灯映照着精致的摆设时,整个客厅顿时添上更多缤纷悦目的色彩。
由于本居室为钻石型单元,设计师在安排家具、陈设及布局上显然要花更多心思。如何令不规则形状的客厅变得宽敞实用?一件呈弧线形的电视柜改变了原来不规则空间:柜子犹如一轮弯月靠在呈45度角的墙上,为客厅腾出了更多空间,更与柜旁一道特制的弧型木墙互相配合,构造出一个极富动感的流线型厅堂。其实,家居的布局与服装配衬均有着相同的基本原则——如一个人要穿上适合自己身份的服饰。那么,他身上每一件衣服的色调及款式均必须配搭得宜。同样地,要塑造出一个富特色的空间,并不能单纯依靠单一的建筑元素或家具,最重要的是把各种元素互相融合。才能把客厅改造成一个更宽敞、更具美感的空间。
有些人与生俱来已潜伏着多种性格,也有些人的性格特征会因自己的成长阅历和周围环境而变化。巧合,这居室内每一件家具或建筑元素也有如演绎一个人的多重性格,在不同时间、不同角度上演着不同的角色,发挥着不一样的功能。这些元素融合起来构成一个个互动灵活的空间,令平凡的家居生活添上无限生趣……
设计及照片提供:禾洛室内设计装饰有限公司
撰文:乐陶
一道特制的弧形墙构成了客厅与走廊之间的缓冲区。而墙身当中设有玻璃层板,用其摆放镭射唱碟或装饰品,既实用又美观。
大门的弧形图案与三角形的饰柜形成了强烈的对比,也同时产生了和谐。
邻近厨房的入墙柜摆放了屋主的珍藏品,在射灯的照亮下整个柜子更星色彩夺目,为饭厅添上了一点情趣。
橙色的碎花窗帘令素净的客厅布局添加了清新跳脱的气息。
位于饭厅内的入墙柜下端可作餐桌之用,在非用膳的时候桌面可折合收藏,营造了灵活幻变的空间布局。
客厅的柚木地板与饭厅内的云石地砖是用来划分两个不同功能空间的主要建筑元素。
厨柜由樱桃木及不锈钢面板的西德胶板构造,配合玛瑙红的地面云石,为整个厨房营造了高雅的气派。
主人睡房内安装着鲜橙色碎花罗马布帘及弧形的梳妆台,与客厅的陈设风格贯彻始终,也同时缔造一室清新简洁的布局。
衣柜门镶上全身镜,令整间游戏房倍添空间感觉。
单元平面图