



在发动机排量不变的情况下,发动机充气系数越高,动力就越强劲。为了增大充气系数,发动机配置了不同的进气增压系统:机械增压利用发动机传动带驱动增压系统,其特点是低速增压效果明显;废气涡轮增压系统低速时略有迟滞,高速时增压效果明显。除了采用增压器增加充气系数,还有许多车型配置了长短可变进气道和可变配气正时调节机构来调节进气量。可变进气歧管长度切换阀在发动机低速运转时采用长进气道形成惯性进气增压,同时由于两个进气道开闭的角度不同,可以使进入气缸的气流形成涡流和滚流,有利于形成均匀混合气;在发动机高速运转时走短进气道,通过减小进气时间和增大进气截面积达到高速时增大充气系数的目的。可变配气正时系统不仅可以根据发动机负荷变化改变气门开启、关闭时间,有些还控制开启量,以精确地控制充气系数。和其他单独改善充气系数的装置不同,它还可以在发动机高速运转时调节进排气门重叠角,进一步提高发动机的动力性并且降低NO的排放量。另外,一些汽车发烧友为了增大自然吸气发动机的动力性,在空气滤清器进气口处安装风坝(风斗),以增大发动机充气系数。
进气增压系统有两种:废气涡轮增压系统和机械增压系统。两种系统各有优缺点,但它们的功用却是一致的:都是通过增加单位时间内发动机的进气量(充气效率),来达到提升功率和转矩的目的。下面详细叙述两种增压系统的结构原理与常见故障分析。
1.废气涡轮增压系统
(1)结构组成
该装置由两个同轴叶轮组成,这样可以保证两个叶轮旋转速度相同。但每个叶轮又相对独立地在各自的轮室内运行。第一个轮名为涡轮,从发动机排出的废气推动涡轮的叶片转动,最高转速可达120000r/min;另一个轮名为“叶轮”,也按同样的原理转动,同时将吸入的外界空气加压传送至气缸,从而使空气充满气缸(图1-1)。
(2)工作原理
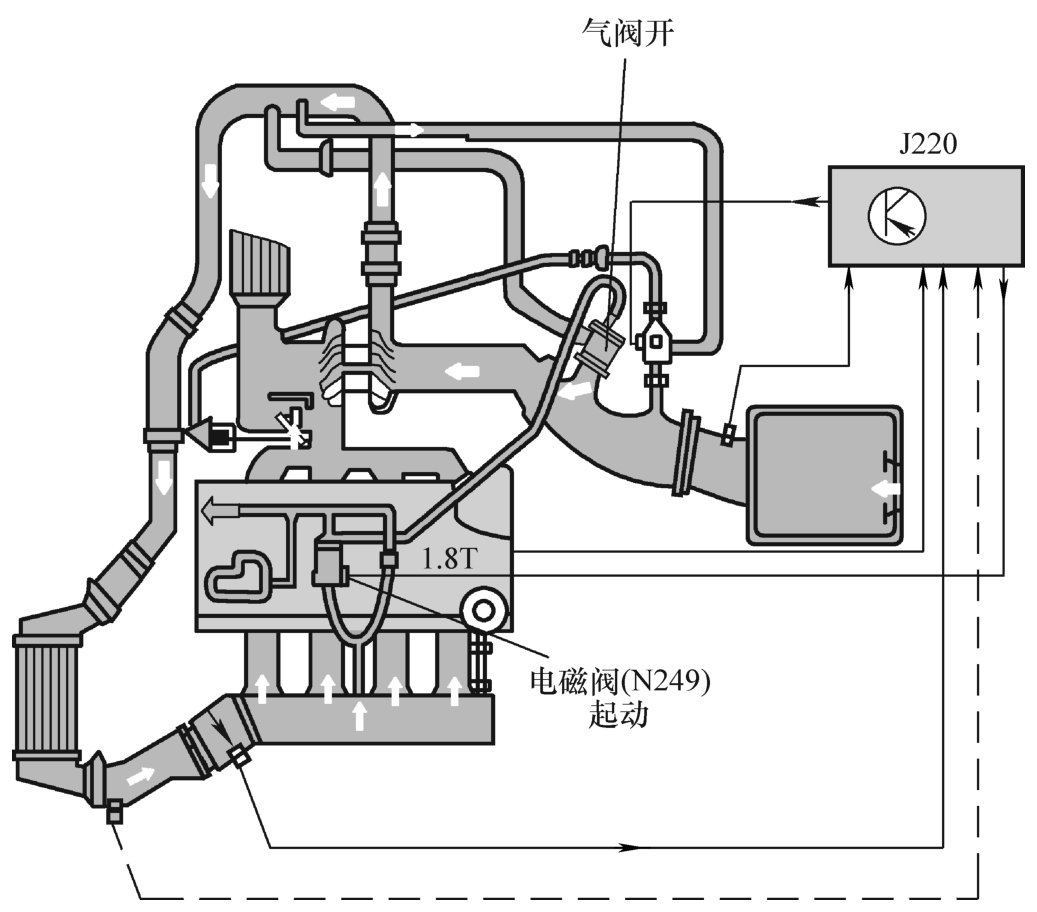
涡轮直接固定在排气管上,以便充分运用废气的能量。热的废气推动涡轮转动、叶轮吸气。叶轮吸入的气体经过加压并通过一个通道流向中冷器;在中冷器中压缩气体温度降低,密度增加。气体流出中冷器进入蝶形阀(图1-2)。
电控涡轮增压控制系统中的压力控制电磁阀根据空气流量传感器和发动机转速传感器的信号,负责控制进入燃烧室的增压空气量。
增压压力传感器和进气温度传感器的作用是检测实际增压压力,并做为增压压力控制的主要参数信号。
图1-1 涡轮增压示意图
图1-2 涡轮增压原理图
涡轮增压器通过对吸入的空气进行压缩、冷却,以增大气体密度,使自然吸气进气行程终了缸内压力由60~80kPa增加到涡轮增压的120~130kPa,从而增加了发动机每个进气行程进入燃烧室的空气量,并同步增加循环供油量,提高了发动机升功率和升转矩,从而达到了提高燃烧效率和整机使用经济性的目的。
1)为避免减速时或发动机怠速时涡轮转速降低,在其靠近叶轮一侧装有一个歧阀。该阀门在进气真空压力的作用下,打开通向循环通道的气路,从该阀进入的空气可以在一定条件下(气门闭合,真空压力大)进行循环。这个系统可以使涡轮自由转动,无须产生压力。这种空气运动有助于叶轮保持高速运转,并保证对驾驶人再次提速做出最快的反应。此时,歧阀关闭,所有的压缩空气都被送入发动机(图1-3)。
2)随着涡轮机功率增加,增压压力也相应加大。为不影响发动机的使用寿命,应限制增压压力。增压调节装置承担了这一工作。减速空气循环控制装置在气门猛然关闭时,可以避免涡轮机叶轮进行不必要的制动(图1-4)。
图1-3 涡轮增压器短路阀工作
涡轮增压器微课
图1-4 增压压力限制阀打开状态
①节气门处于打开状态,车辆正常行驶(图1-5)。
②节气门关闭,车辆处于减速滑行状态(图1-6)。
(3)使用及注意事项
1)因涡轮增压器工作在温度高和转速高(涡轮转速可以达到14000r/min)的恶劣条件下,其润滑和散热的好坏直接影响涡轮增压器的使用寿命,所以建议涡轮增压发动机使用全合成机油;同时为了保障其正常的润滑和工作温度,在汽车发动机起动后不要立即急踩加速踏板。
2)发动机刚起动后要有一个暖机过程,根据环境温度建议在1~3min,使机油温度升高、流动性能变好,使涡轮增压器得到及时的润滑。
图1-5 涡轮增压器正常工作状态
3)高速行驶后对于装有涡轮增压器的发动机一定要怠速运转几分钟,以便涡轮增压器进一步散热和润滑。
(4)涡轮增压器常见故障分析
1)增压压力不足。
故障现象:发动机加速无力并伴有发动机电子稳定系统(EPC)灯点亮。
图1-6 涡轮增压器短路阀工作状态
可能原因:
·涡轮增压循环空气阀故障。
·涡轮增压器与进气歧管之间存在漏气。
·增压压力限制电磁阀软管故障。
·增压压力限制电磁阀故障。
·增压压力调节真空马达或驱动机构存在故障。
·增压压力旁通阀存在泄漏。
·增压压力传感器损坏。
·进排气存在堵塞现象。
2)增压压力过高。
故障现象:EPC灯亮,发动机加速受限。
可能原因:
·增压压力限制电磁阀故障。
·增压压力限制电磁阀软管故障。
·增压压力旁通阀卡滞。
(5)典型案例
车型及配置:一辆奥迪A6L装配2.0T涡轮增压发动机。
故障现象:当车速达到80km/h以上,急加速时车辆出现明显的耸车并伴有发动机“呼呼”异响。
诊断排除过程:
读取故障码。存在故障码“P029900增压压力控制没有达到控制极限主动/静态”(图1-7)。
图1-7 增压压力故障波形
增压压力实际值与规定值相差超过2kPa。根据提示首先检查了进排气系统是否堵塞,检查发现没有堵塞现象;接着检查了增压器管路是否存在漏气现象,检查也正常;试换增压压力传感器G31,故障没有改善;用手动真空泵(两用型)检查真空压力限制调节真空马达能够正常动作;检查循环空气阀N249,动作正常,密封良好;对比增压压力限制阀N75,发现在不通电时和正常车功能没有差别;试换涡轮增压器总成,故障排除。
检查增压器机械方面并没有故障,替换增压压力限制电磁阀N75后故障排除(图1-8为正常增压压力)。
N75的控制策略是:在无电流通过的情况下,N75电磁阀闭合,而增压压力直接作用于隔膜。这样,只要气压稍微增加,增压控制阀就会打开。也就是说电磁阀不通电时N75的真空膜盒管路和增压后的空气管路相通,此时随着增压压力的增压会打开排气涡轮侧的旁通道使排气压力下降,从而降低涡轮转速和进气增压压力。
总结分析:
该车的故障是N75增压压力限制电磁阀存在发卡现象,在急加速时出现N75电磁阀通电本应将增压控制阀的管路和空气滤清器处的真空管接通,但由于该阀存在卡滞,导致增压压力控制阀管路仍和增压后的空气管路相通,造成排气涡轮侧的旁通道部分打开,使排气压力下降,从而降低了涡轮转速,进而影响增压压力无法达到规定值。
图1-8 增压压力传感器正常波形
诊断该故障时可断开增压控制阀上的真空管,如故障码变为“P023400增压压力控制超出控制极限被动/偶发”,说明故障原因就是增压压力限制电磁阀N75存在机械故障。
2.机械增压系统
机械增压装置由传动带与发动机曲轴相连接,被固定在发动机上。它从发动机输出轴获得动力,来驱动增压器的转子旋转,从而将空气进行增压,并送到进气歧道里。其优点是转子转速和发动机同步,因此没有滞后现象,动力输出非常流畅。但是由于它与发动机曲轴相连,还是消耗了部分动力,增压效率并不高。
(1)结构组成(图1-9、图1-10)
图1-9 机械增压器整体图
图1-10 机械增压器结构组成
(2)工作原理
机械增压器也叫罗茨式增压器,它是一种旋转活塞式结构的装置。该装置采用挤压原理工作,内部并无压缩过程。该增压器有一个壳体,壳体内有两个轴(转子)在转动。这两个转子采用机械方式来驱动,比如采用曲轴驱动。这两个转子是由壳体外的齿轮来传动的(传动比相同),两个转子同步转动,但旋向相反。这样两个转子工作起来就像在彼此啮合。其结构的重要之处在于:两个转子彼此之间以及其与壳体之间是密封的。该结构的难点在于只允许产生非常小的摩擦。在工作时(转子转动),叶片和外壁之间的空气就被从空气入口(吸气侧)输送到空气出口(压力侧)。输送空气的压力是因回流而产生的(图1-11)。
图1-11 机械增压器原理图
增压器的驱动方式是永久式的(就是只要发动机运转,就一直被驱动)。因此如果没有增压压力调节机构的话,增压器在任何转速时都会产生相对于这个转速的最大气流(也就是最大增压压力)。但是,并非在所有工况都需要增压,这就会在增压器压力侧形成很高的气阻。这种气阻会造成发动机出现不必要的功率损失。因此,必须有相应的措施能调节增压压力。现代汽车大都采用旁通翻板机构来实现增压压力的控制。
①全负荷工况(旁通翻板关闭,图1-12)。
②部分负荷工况(旁通翻板打开,图1-13)。
图1-12 机械增压器全负荷工作状态
图1-13 机械增压器部分负荷
部分负荷时旁通翻板根据进气压力传感器和两个增压压力传感器的实时数据,进行闭环调节,使增压压力适合每一个工况。
(3)机械增压器与废气涡轮增压器对比
1)优点。
·需要时可立即获得增压压力。
·增压压力是连续供给的,且随转速升高而增大。
·增压空气不会被过度冷却。
·寿命长,保养方便。
·结构紧凑(节省空间,安装在发动机V形腔内,而不是安装在进气歧管内)。
·节省燃油。
·发动机转矩增大快,可提前达到最大转矩值,因此起步性能好。
·压缩空气到气缸的路径非常短,因此反应非常快。
·废气特性好。原因:催化转化器可以更快地达到工作温度。而对于使用废气涡轮增压器的发动机来说,一部分热能要用于驱动废气涡轮增压器(这部分热能就损失掉了)。
2)缺点。
·精度高(转子-壳体),因此生产成本高。
·对进气管道内混入的异物敏感性过高。
·重量相对大些。
·降噪声的费用高。
·驱动增压器需要消耗部分发动机功率。
3)增压压力电磁离合器(图1-14)。为了解决机械增压一直由发动机驱动造成的功率损耗问题,现代车辆的机械增压器在驱动带和转子轴之间加装了电磁离合器;这样的改动可以使发动机不需要增压压力时没有额外的功率损耗,在需要增压压力提供支持时又可以迅速介入。
图1-14 机械增压器的电磁离合器
(4)使用注意事项
1)机械增压器属于精密偶件,对空气洁净度要求高,所以建议根据使用环境的恶劣程度,及时清洁或更换空气滤清器。
2)机械增压器通过加工平面直接和发动机组装在一起,所以在拆装机械增压器过程中一定要注意相关接合面的保护工作。
(5)机械增压器常见故障分析
机械增压器在售后维修中很少出现故障,在出现增压压力过高或过低相关故障时其诊断思路与涡轮增压器基本一致。需要特别注意的是由于积炭导致旁通翻板卡滞以及机械增压器与气缸盖接合面的密封性。
1.结构组成
可变进气歧管由进气歧管翻板、翻板驱动真空马达、进气歧管翻板位置传感器和真空马达控制电磁阀等相关件组成(图1-15)。
2.工作原理
较长的进气歧管在发动机低转速时的容积效率较高,最大转矩值会较高,但随着发动机转速的提高,容积效率及转矩都会急剧降低,不利于发动机高速运转。较短的进气歧管则可提高发动机高转速运转时的容积效率,但在低转速时会降低发动机的最大转矩。因此若要兼顾发动机高低转速的动力输出,保持较好的容积效率,唯有采用可变长度的进气歧管。大部分车型在发动机转速达到4000r/min时切换到短进气道。
图1-15 可变进气歧管
1)低速时可变进气通道的阀门关闭,进气走弯形长进气道。此时既可以利用惯性进气增压提高充气效率,又可以使进气流形成涡流和滚流,使混合气混合更均匀(图1-16)。
2)高速时阀门开启,进气走直的短进气道,以增加充气系数(图1-17)。
图1-16 可变进气通道阀门关闭
图1-17 可变进气通道阀门开启
3.常见故障分析
进气歧管转换阀常见故障主要是阀门卡在关闭位置或开启位置,故障表现为EPC灯亮同时仪表提示“发动机转速最高不能超过4000转”(不同车型有一定差异)。引起上述故障的主要原因有进气歧管转换电磁阀故障、进气翻板存在机械卡滞、真空驱动马达失灵以及真空源漏气。
可变进气歧管微课
4.典型案例
车型配置:奥迪A6L,装配2.5L自然吸气缸内直喷发动机。
故障现象:客户反映冷起动后起步有时熄火。
诊断排除过程:
诊断仪检查“01发动机”,系统里有故障码“P207000可进气歧管卡在开启位置”。根据该车控制策略了解到,在怠速时可变进气歧管应处于关闭位置,而发生故障时处于打开位置。初步分析是由于真空驱动马达漏气或进气歧管翻板机构卡滞所致。
首先用手动驱动进气翻板真空驱动马达,发现进气翻板可以正常打开和关闭;同时诊断仪显示也是正常的。该车采用新型温度管理控制,在冷起动时发动机控制单元控制可调式水泵控制电磁阀,使水泵处于空转状态,进而使发动机温度迅速提升。可调式水泵和进气翻板都处在同一真空管路上,综合分析怀疑是冷起动时可调水泵电磁阀打开后可调水泵真空驱动装置存在漏气。试用手动真空泵检查可调水泵工作是否正常,经检查发现可调水泵真空驱动装置存在漏气现象。更换可调水泵后故障排除。
1.可变气门正时系统
可变气门正时控制的作用是随着发动机转速提高,增大点火提前角和根据发动机转速变化改变配气相位,控制或提高充气系数。
一般情况下可变气门正时系统(CVVT)只对进气凸轮轴转角进行控制,主要作用是增大高速时进气迟闭角,提高充气效率(图1-18)。
通过进、排气凸轮轴的转角控制,进而控制进、排气门的开启时刻、关闭时刻,即双凸轮轴可变气门正时系统(D-VTC)(图1-19),作用是高速在增大点火提前角的同时,提前开启排气门和进气门,使排气更彻底,进气更充分。
图1-18 CVVT可变配气正时
可变气门正时系统工作模式如下所述。
1)滞后调节(图1-20)。
图1-19 双凸轮轴可变气门正时系统
2)提前调节(图1-21)。
2.进 、 排气门的开启时刻 、 关闭时刻和升程控制 (VTEC)
三菱公司和本田公司应用该技术。发动机控制单元根据曲轴位置传感器、节气门位置传感器、冷却液温度传感器和车速传感器信号,控制机油控制阀的位置,使进、排气门产生提前和滞后及在大负荷时改变气门升程。气门升程的作用就像一个水龙头,直接决定了发动机的进气速度。在高转速时配合较大的气门升程能大幅提升发动机的最大功率;低转速时发动机的单位时间进气量本来就小,也就不需要很高的进气速度,减小气门升程有助于形成涡流,提高充气效率。本田公司的气门升程调节为阶段式可变,作用同样是提升中低转速转矩,但效果不如宝马和雷克萨斯的连续可变技术明显。
图1-20 可变气门正时系统滞后调节
可变配气相位微课
图1-21 可变气门正时系统提前调节
可变气门升程两个进气门摇臂中间还有一个特殊的中间摇臂,它对应的是凸轮轴上的一个高角度凸轮,而在发动机低转速时两个进气门摇臂和这个特殊的中间摇臂是分离的、互无关系,进气门摇臂只由低角度凸轮驱动,因此进气门打开的升程较小,这有助于提高低转速时的燃油经济性。但当发动机达到一定转速时,由电子液压控制的连杆会将两个进气门摇臂和中间摇臂连接为一体,此时三个摇臂就会同时被高角度凸轮驱动,而气门升程也会随之加大,单位时间内的进气量更大,从而使发动机动力更强(图1-22、图1-23)。
图1-22 可变气门升程结构组成
图1-23 可变气门升程不同调节工况
阶段性可变气门正时系统技术特点:通过提高充气效率,增加发动机功率,以提高燃油效率。由于缺少连续正时技术,在中段转速下转矩不足。
3.进气凸轮轴采取电子控制 , 排气凸轮轴采取液压控制的双凸轮轴可变气门正时系统 (VANOS)
除控制进气门的开启时刻、关闭时刻和升程外,VANOS可确保排气凸轮轴的开关点从“滞后”到“提前”,或从“提前”到“滞后”平稳地移动。该技术于1992年首次应用于宝马5系车型的M50发动机上,2006年9月用于新款雷克萨斯LS460的V形8缸发动机上。VANOS属于连续性可变气门正时系统,如图1-24、图1-25所示。
图1-24 电子可变配气正时
发动机转速较低时,系统将进气门提前关闭以提高发动机怠速的平稳性,并在低速状态下提高最大转矩;发动机中速运转时进气门提前开启以增大转矩,发动机转速为3700r/min时,要求进气门关闭得较迟,以满足提高最大功率的要求;高速运转时进气门将延迟开启和关闭,以使发动机获得最大输出功率。
4.可变气门升程
奥迪车采用可变配气相位与可变气门升程组合配置。可变气门升程就是指发动机控制单元通过在不同转速区间利用两个导向电磁阀来控制配气凸轮在大小凸轮之间切换,使气门升程发生相应的改变(图1-26、图1-27)。
图1-25 宝马电子气门调节系统
图1-26 可变气门升程组成结构
1)在部分负荷时(采用较小的凸轮外形),气门开启是不对称的,一方面是因为凸轮的形状使得一个进气门比另一个进气门开启得大(2mm和5.7mm),另一方面是因为较小凸轮外形的气门开启时间也是不同的。另外,气门升程小的凸轮形状是按照让进气门同时打开这一原则来设计的,但第二个气门的关闭时刻却稍晚,再加上气缸盖中进气门特殊的遮蔽形状,就可使得吸入燃烧室的气体呈高流速和旋转运动状态,并配合专用活塞形成滚流进气,最终获得极佳的混合效果(图1-28、图1-29)。
图1-27 可变气门升程调节凸轮
2)发动机转速高于4000r/min或者超过一定的转矩值(特性曲线调节)时,切换到大凸轮以增加进气量来提高发动机功率(图1-28、图1-29)。
图1-28 可变气门升程调节电磁阀
图1-29 可移动凸轮的高低凸轮
上传版AVS工作原理
5.常见故障诊断分析
可变配气相位调节和可变气门升程故障率较低,当油压或是电子执行元件发生故障时,发动机控制单元会记录相关的故障码。根据故障提示就可以找到故障原因。需要注意的是,如果配气正时发生机械问题也会报“配气相位不正常”相关故障码,所以出现类似故障时检查配气机构机械装配是否正确仍是首要的工作。
6.经典案例
车型配置:奥迪A5 2.0T。
故障现象:突然出现发动机抖动并伴有加速不良。
诊断排除过程:用诊断仪检测有故障码内容:凸轮轴传感器G40相位错误,数据流也不正常。怀疑为配气正时安装错误,拆卸散热器框架检查正时正常。进行反复分析数据,怀疑故障出在凸轮轴调节阀。试更换传感器G40与调整阀N205,故障依旧。最后决定拆卸凸轮轴支架检查机械阀。拆掉链条上端盖后检查机械阀发现阀门卡滞,推回去后弹不出来(图1-30)。
图1-30 凸轮轴调节阀止滞
解决措施:更换可变正时调节阀后故障排除。
总结分析:由于可变正时调节阀存在机械卡滞,导致凸轮轴调节器相关油道通过截面积发生变化。在发动机工况达到调整转速时,由于油道错位导致调节器响应速度变慢。由于实际配气相位与理论相位变化相差较大,此时发动机控制单元就会产生故障码“凸轮轴调节错误和发动机曲轴和凸轮轴位置传感器分配位置不合理”。