



家具制造企业是一类特殊的制造企业,产品品种繁多,工艺复杂多变,物料与信息流不规则,手工生产与机械作业并存,生产控制的难度较大。我国的家具工业经过近10年的跨越式发展已初步实现工业化,但在产品质量与生产效能方面与先进国家仍有较大差距,多数家具企业仍然在延续手工作坊的经验管理手段,缺乏现代企业生产控制的科学方法与关键技术,导致车间作业无序混乱、在制品库存高、订单准交率低等问题,与德国、日本、意大利、美国等国的先进制造企业相比,劳动生产率低10~20倍。
由于产品的材料、结构、工艺、制造设备等方面的诸多差异,导致了各种产品生产方式的多样性与复杂性。为了清晰认识家具生产这一类客观事物的真实面目,揭示其内在的规律性,非常有必要从多个视角、多个侧面深入家具生产这一复杂的生产系统,以期对我国家具生产方式做出定性分析,掌握实际情况,发现存在的问题,才能有针对性地找出解决问题的方法。
家具产品生产是将有形原材料转化为有形产品的过程,因而家具生产首先从属于制造性生产。按照工艺过程的特点,可以将制造性生产分为两种,即连续性生产与离散性生产。连续性生产是指物料均匀、连续地按一定工艺顺序运动,在运动中不断改变形态和性能,最后形成产品的生产。连续性生产又称为流程式生产,如化工、炼油、食品、造纸等产品的生产属于流程式生产。显然,绝大多数的家具生产不属于连续性生产。
离散性生产是指物料离散地按一定工艺顺序运动,在运动中不断改变形态和性能,最后形成产品的生产。家具生产是由多种零件最后组装成产品,如家具制造这样的离散性生产又称为加工装配式生产,产品是由离散的零部件装配而成的,这是家具生产工艺流程的主要形式,另外像汽车、电子设备、服装等产品的制造,都属于加工装配式生产。这里要说明的是由于家具生产情况较为复杂,家具生产流程中油漆涂饰生产工艺过程,如台车式涂饰生产线与吊挂式涂饰生产线属于连续性生产。如表2.1所示,为以家具生产为代表的加工装配式与流程式生产的比较。
表2.1 以家具生产为代表的加工装配式与流程式生产的比较
由表2.1可知,家具生产存在着零件种类繁多、加工工艺多样化、自动化程度低、市场依存度大、在制品库存高等特征,这些将导致生产过程中协作关系复杂,计划、组织、协调任务繁重,增加了生产控制的难度。
对于加工装配式生产,产品由许多零件构成,每个零件要经过多道工序加工。要组织这样的生产,从理论上可以采用两种不同的方式。
所谓推进式(Push)生产系统,简称“推式生产”,是指根据某时期的需求预测和现有库存水平,按零部件展开,计算出每种零部件的需要量和各生产阶段的生产提前期,确定每个零部件的投入产出计划,按计划发出生产和订货的指令,然后向最前面的工序发出生产指令,由前一道工序把生产出来的零部件依次“推”到下一道工序,不管后一道工序和下游生产车间当时是否需要,直至成品形成。它通过把生产计划与控制的源头放在链条的起始端,制定详细的生产计划来保证任务的完成,是一种集中式的生产管理模式。显然,在这种方式下,物流和信息流是分离的。推进式生产系统结构示意图如图2.1所示。
图2.1 推进式生产系统结构示意图
作为以MRP Ⅱ、ERP生产控制方法为代表的推进式生产系统,于20世纪60年代中期在美国大批量生产背景下产生发展起来,其优势在于中长期计划能力,注重前期规划,用尽可能周密的计划集中安排各环节的人、财、物等资源以及生产加工,以应对生产的波动。但在实际上,任何计划都不可能把未来的情况考虑得十分周全,因此计划难以做到十分精确,而且不可避免的会有一些随机因素干扰计划的执行。比如说运用ERP系统的家具企业在生产方面会存在一些问题:
① 家具产品结构复杂、种类繁多,产品更新换代的周期短,给数据资料收集工作带来了较大难度;
② 家具产品所用的材料特性差异较大,规则材料、不规则材料都被大量使用,特别是实木材料,本身是家具生产所必需的材料,但是受树木种类和生长差异性的制约,无法统一材料规格,给材料编号、单位换算、用量分析、材料采购及库存管制都带来许多困扰;
③ 家具订单中经常遇到产品编号与实物匹配的问题,同一款产品可能会随时更换材料、配件和产品组合方式,如某一款式的沙发订单,一部分要求用红色皮,一部分用灰色皮,但是根据厂家和客户的习惯,对于形状、规格相同的产品通常使用相同的产品编号,这样一来,如何建立BOM资料、如何控制采购数量、如何确定领料的材料和数量等问题就成为令人头疼的事;
④ 家具生产各阶段之间的控制重点不相同,如备料阶段为了提高材料的利用率,需要尽量加大生产批量,生产过程中为了缩短生产周期,降低在制品库存而减少运输批量,涂装阶段要考虑产品涂装效果和颜色统一,需要把相同系列的产品安排集中生产……这些控制特点是通用ERP软件无法顾及的,经常出现生产去迁就软件的情况,这也就是为何ERP软件对家具行业的生产控制模块无法很好实现的主要原因;
⑤ 轮班作业家具企业一般都采取两班作业制,这一特点给家具企业的日常生产管理带来了一系列的问题,轮班管理夜班生产和交接班等生产数据多,并且数据的收集维护和检索工作量大。
总结起来,推进式生产系统的不足主要有以下几点:
① 由于编排生产计划时,需要提前设定安全库存量、生产提前期等,因此在制品库存和成品库存量都比较大;
② 当需求发生波动时,主生产计划就要进行修改,后序的各个计划也都要跟着进行修改,计划工作量很大;
③ 在进行生产控制时,没有考虑前馈控制,而是通过事后反馈进行生产控制,相对生产实际,存在着不可避免的滞后;
④ 由于对生产采取完全集中的控制,每道工序都要按照制定的生产计划来进行生产,工序间又无协调机制,无法保证每道工序间产量的动态平衡,极易导致工序间在制品库存过多以及生产与实际需求不一致等问题。
所谓牵引式(Pull)生产系统,简称“拉式生产”,根据市场需求信息确定生产指令,生产指令由最后一道工序根据订单发出,每道工序、每个车间和每个生产阶段都按照当时的需要向前一道工序、上游车间和生产阶段提出要求、发出工作指令,前道工序由后道工序触发,由后道工序在必要时刻向前道工序领取必要的零部件或物料,然后前道工序只需要生产由后道工序领取走的那部分物料即可。牵引式生产系统的物流和信息流是结合在一起的。日本丰田汽车公司的生产系统就是牵引式生产系统。牵引式生产系统结构示意图如图2.2所示。
图2.2 牵引式生产系统结构示意图
以JIT理念为代表的牵引式生产系统实质上是一种文化理念的传承,是一种以根植于日本民族土壤的精神力量作为支撑的,因此在特定产品生产类型的日本企业获得了巨大成功。牵引式生产系统在计划执行与降低成本,特别是在降低在制品数量、减少浪费和现场改善等方面具有明显的优势,目前在医药、化工原料、计算机等大批量重复性生产企业应用比较成功。但是牵引式生产系统所要求的生产环境,如生产能力平衡、需求供应稳定等,对中国现阶段家具生产企业来讲是一道无法逾越的门槛。因此,在众多家具企业生产系统中推行的所谓“精益生产”、“JIT”等理念,稍加留意便会发现,这些理念推行的主要定位在诸如“5S”、零浪费、全面质量管理(TQM)、全面产能维护(TPM)等生产现场改善的肤浅层面,主要负责作业计划的执行、生产的控制和现场的反馈工作,至于一个流生产、多面手工人、制造单元等核心层面方案由于过于理想化,对于现阶段家具生产来说难以贯彻,真正获得成功的家具企业生产案例还没有。究其原因,主要在于从汽车生产等行业发展出来的精益生产技术在多品种小批量的家具生产环境中具有一定的局限性。
① 计划性弱,面向短期计划,生产系统稳定性低。牵引式生产系统整体计划性弱,由于缺少安全库存,对生产波动敏感,对需求变化的响应能力要远低于推进式生产系统,一旦某生产环节停工,那么此前的所有工序都将处于待工状态,在生产中不确定因素时有发生,过少的库存会导致生产的波动,使整个环节加工情况时好时坏。
② 应对需求变化能力不足。牵引式生产系统比较适用于少品种、大批量、重复性生产类型,需要非常稳定的生产周期,难以适应较大的需求变化。过大的需求变化将导致生产能力严重过剩或严重不足,造成生产资源闲置浪费或失去订单。
③ 应用和实施受很多实际条件的限制。如要求系统中的人员具有多种能力,工人必须熟悉生产流程中多个工站的操作,可以应对产品类型发生变化时的生产要求。要求一体化的供应系统,强调人、机、企业间的相互协作来保证生产的稳定和能力的平衡,且需要非常稳定的生产周期,产品品种有限且具有一定的相似性,这就使得JIT的大规模应用显得非常困难。
我国当前家具生产普遍采用推进式生产系统是基于以下几方面原因。
① 不论是实木还是板式家具生产,从古至今都必须依照一定的程式即工序,一步一步方能制造出来,缺一道工序或是交换一下工序的位置都会出问题,因而从源头开始的这种生产控制形式符合常理。例如,对于在不同方向上既有榫头又有榫眼的实木零件,一般先加工榫头然后再加工榫眼,以榫肩作为定位基准确保装配精度,就是这个道理。
② 随着信息技术的发展,美国率先将推进式生产系统发展成为MRP、MRP Ⅱ、ERP等企业信息化平台,以制定周全计划引领生产的形式迎合了中国家具企业生产的需要,也对近十年来中国家具大批量跨越式生产的发展起到了有力的推动作用。
③ 我国家具企业多数为家族企业,从小手工业、作坊式的简陋工场发展而来,属于劳动密集型行业,员工学识水平与业务素养普遍不高,难以达到诸如执行力、学习力、凝聚力、多面手等牵引式生产系统的高素质员工要求。
④ 牵引式生产系统主要面向的生产控制对象是医药、汽车、计算机等大批量、少品种、重复性生产企业的生产系统,由于追求零库存可能导致对需求变化的响应能力远低于推进式生产系统,因此其核心理念不适合我国家具生产方式的要求。
在这里有必要强调的是,2008年金融危机之后,中国家具市场已由卖方市场转变为买方市场。家具生产大多以多品种小批量的方式进行,需求波动较大,致使整体粗放型的推进式生产系统存在的问题日益显露出来,主要表现在生产灵活程度较低、在制品库存较高、订单准交率偏低。这些缺陷也许在高速发展、品种单一且生产批量较大的时期看不见,但在经济结构转型升级的买方主导的市场环境里却马上浮出水面:生产灵活程度低将造成浪费;在制品库存高将造成生产成本居高不下和资金链的断裂;订单准交率偏低将造成客户流失和企业的倒闭。
然而回过头来看,集约型的牵引式生产系统追求的消灭一切浪费等理想,在我国目前的家具生产环境中是难以实现的,主要原因是:多数企业面临的市场需求都具有较大的波动与不确定性,难以直接面对客户组织生产;供应商对于原材料供应难以做到真正准时、有效;整个系统实施看板管理非常困难。那么在今天市场趋于饱和、买方主导市场的大背景下,家具产业能否保持快速、健康和持续的发展态势,实现更高层次的发展目标完全取决于我们能否站在结构调整与产业转型升级的高度,创造性地提出解决问题的新思路和主张,这已经成为当前我国家具行业亟待解决的关键性问题。
我国家具产业主营业务收入已突破9000亿元,其中出口额约510亿美元,仅占总收入的1/3左右,剩下的部分面向国内市场销售。举一个例子,就家具出口大省广东而言,全省规模以上家具企业约8000家,2017年家具销售总额4230亿元,其中出口1370亿元,内销2860亿元。目前我国出口家具企业的生产方式主要是以OEM为主,即根据国外客户指定的需求进行加工,由客户提供设计图纸或照片,厂家在经过客户许可的前提下进行局部的深化设计与调整,因此出口家具企业生产方式大多采用大批量、重复性生产。
我国的家具市场作为房地产市场的衍生市场,对宏观经济走势、区域家具市场、季节变化、地域文化、促销手段等具有高度的敏感性与依赖性,其内销市场以多品种小批量的订货方式为主。如表2.2所示为两种生产方式的比较。
表2.2 两种生产方式的比较
由于家具市场竞争日益激烈、消费者对于产品个性化与多样化的需求日益增加,造成了家具产品更新的速度不断加快,家具产品的生命周期不断缩短,如图2.3、图2.4所示,分别为以华日家具股份有限公司为例的家具产品品种数变化示意图和家具产品的市场寿命周期。这些新的市场特征使得家具生产制造商承受着前所未有的压力,企业仅仅依靠传统的降低成本和提高产品质量的手段已无法确保其在市场竞争中立于不败之地。成功的家具企业必须既能快速生产满足消费者当前需求的产品,又不会因生产过剩而造成积压库存的浪费;既能保证产品的质量和较低的生产成本,又能迅速响应市场多样化和不确定的需求。因此,能够准确无误地生产客户所需并迅速交付产品的能力成为企业竞争力的新定义。家具制造领域的这些新特点和生产企业由此而面临的新挑战,正迫使家具生产模式从传统的大批量生产转向客户化定制时代的小批量多品种的生产方式。
图2.3 家具产品品种数变化示意图
图2.4 家具产品的市场寿命周期
采用面向订单的多品种小批量的生产方式的家具生产系统大多按照工艺原则(Job-Shop)进行布置,属于典型的离散事件动态系统(DEDS,Discrete Event Dynamic Systems)。在多品种小批量家具生产方式中主要有以下几个明显的特点:
① 需求不稳定。同一种家具产品在不同的时期和不同区域的家具市场以及不同的家具产品在同一个时期的市场需求变化很大;
② 生产切换频繁。由于需求的不稳定造成生产品种的变换,这使得机器设备和生产线需要根据品种进行必要调整的次数明显增加;
③ 设备的利用率较高。同一台设备生产不同的零件,同一条生产线的瓶颈位置在生产不同产品时可能发生漂移;
④ 产品品种虽多,但是产品的工艺相似性较高。在一定时期内要生产的家具产品间的工艺跨度不大,也就是不会在短时间内生产完全不同的产品;
⑤ 生产品种的混合度比较高。车间内一般有多种产品在同时生产,提升了在制品库存的控制难度。
混流生产(Flow Manufacturing)是指企业在一定时期内在一条流水线上生产多种产品的生产方式。由于产品种类较多,加工工艺路线将依照不同产品而发生显著变化。这种生产形式可能会在车间出现在制品库存较高、设备生产难以平衡、生产周期不易控制等问题。家具生产就是非常复杂的混流生产形式。下面将从家具生产工艺特征、家具生产物流形式、家具生产车间布局、家具生产流程特征等方面深入分析,力求透过现象揭示其复杂性背后的规律性,找到家具生产优化的最佳思路与方法。
家具生产工艺是家具产品的生产加工流程,是指用各种木工机械设备、工具等改变原材料的尺寸、形状、色彩等物理性质,使其成为符合设计要求的家具产品。家具的材料、产品、艺术风格、加工方式等种类繁多,造成了家具生产工艺流程的多变性、工序组合方式的复杂性以及制造设备选配的灵活性等特征。
实木家具生产工艺过程包括木材干燥、配料、毛料加工、胶合、净料加工、部件装配、总装配、涂饰等工艺过程(图2.5)。木材干燥,是要求木材达到一定的含水率,以保证产品的质量。用于制造家具的木材必须先进行干燥。木材干燥一般在配料以前完成,也可以在配料之后进行,但在配料时要预留木材干缩的余量。木材机械加工,从配料开始,将木材锯切成一定尺寸的毛料。其中一些较长、较宽的毛料零件,往往需要采用较短、较窄的毛料胶合而成。毛料经过四个表面刨削加工和截端,而成为具有准确尺寸和几何形状的净料。净料经过榫头加工、榫眼和圆孔加工、槽榫和榫槽加工、型面与曲面加工、表面修整等一系列的切削加工,而成为符合设计图纸要求的零件。然后,将零件装配成部件,进而对部件进行必要的修整加工,再进行总装配,最后涂饰为成品。对于板式家具而言,多数是先涂饰,最后才装配为成品。如图2.6所示为以实木沙发为例的生产工艺流程图,从图中不难看出家具生产具有突出的复杂混流生产形式的特征。
图2.5 实木家具生产典型工艺过程
图2.6 以实木沙发为例的生产工艺流程图
随着木材综合利用事业的不断发展,家具生产的主要原材料正在由单一的天然木材向各种人造板和复合材料发展。板式结构的家具,可以充分利用木材,减少天然实木翘曲变形缺陷,改善产品质量,便于家具的拆卸、运输和销售。因此,在现代家具和木制品生产中,由覆面板式部件构成的产品获得了广泛应用。覆面板式部件种类较多,根据其结构特征不同,可分为覆面实心板式部件和覆面空心板式部件两大类,这两类都是由芯层材料和覆面材料两部分组成。覆面实心板式部件是在实心芯层材料表面胶贴覆面材料制作而成,其芯层材料一般由刨花板、纤维板、细木工板等人造板制作而成,分别称为覆面刨花板、覆面纤维板、覆面细木工板。覆面空心板式部件是指芯层材料具有一定缝隙,在具有空隙的芯层材料的一面或两面胶贴覆面材料的板式部件,其芯料一般为纯木框结构,或在木框内部有各种填料(方格状填料、波状单板和蜂窝纸等)。
当前实际生产情况是,家具制造企业制造覆面纤维板和覆面刨花板家具时,覆面纤维板和覆面刨花板一般会向上游的材料供应商采购;制造覆面细木工板或覆面空心板家具时一般会由家具企业自己组织生产加工。家具生产企业生产覆面细木工板和覆面空心板的工艺过程,通常包括以下两个步骤:一是覆面板的制造,系指覆面材料制备、芯料制备、涂胶、组坯、胶压、堆放等工序;二是覆面板的加工,系指裁边、封边、加工成型边、加工装配孔、铣槽、表面修整等工序。如图2.7所示为覆面板家具零件生产典型工艺过程,如图2.8所示为以覆面空心板柜类家具为例的生产工艺流程图。
图2.7 覆面板家具零件生产典型工艺过程
图2.8 以覆面空心板柜类家具为例的生产工艺流程图
32mm板式拆装结构家具是以标准化的板式部件为基本单元,以五金件连接为基本接合方式,通过模数为32mm的标准“接口”,在结构装配上能实现快装、拆装或待装,在结构形式上能自由组合,在功能上能进行适度调节或扩展,在资源消耗上能节省材料或少用优质木材,在物流上能降低运输成本,在制造上能运用简捷与高效的家具的结构与制造系统。这种家具制造使用的板材一般为成品形式的覆面中纤板和覆面刨花板,一般不需要家具生产企业制造板材,因此工艺过程较为简单。开料、封边、钻孔是这类板式家具零件生产的三个主要工序,在板式家具企业,这三个机加工工序的规模决定了企业车间的规模,这三个机加工工序的加工质量决定了企业产品的质量,这三个机加工工序的生产控制决定了企业的生产绩效。如表2.3所示为32mm板式拆装结构家具零件生产典型工艺过程。
表2.3 32mm板式拆装结构家具零件生产典型工艺过程
板木结合结构家具在近几年发展很快,作为出口家具的主要结构形式,这类产品在内销市场上也表现不俗,由于其价格低于实木家具,观赏性与价值感又高于板式家具,因此得到了一部分消费者的青睐。这类家具从外观上看是实木家具,木材的纹理、手感及色泽与实木家具基本一致,其结构框架部分为实木材质,面板、侧板、底板、顶板、搁板等板件部分是由刨花板、中纤板表面压贴薄木制成,家具生产工艺分板件加工与实木零部件加工两条线展开,在组装工段汇合后经修整和涂饰工段完成加工。如图2.9所示为板木结合结构家具生产典型工艺流程。
图2.9 板木结合结构家具生产典型工艺流程
通过上述分析,不难看出家具生产工艺的复杂程度是相当高的,就算是同类产品,在造型、结构、材料、价格、订货要求等要素中的某一方面发生非常微小的变化,其生产工艺也会做出较大调整以适应这种变化,这样复杂的生产系统给生产控制带来了诸多难题。
家具生产物料流程形式的考虑重点在于将物流成本降到最低。根据家具生产自身存在的特点,在家具生产中流程形式可以分为水平和垂直两种。当所有的设备、设施都在同一个车间里时,就按水平方式考虑;当生产作业是在多个楼层周转时,就按垂直方式考虑。例如,某生产企业将一楼作为白身机加工车间,二楼作为修补砂光和涂饰车间,三楼作为包装车间,产品包装后通过传送装置输送至一楼成品库房或直接出货。
按水平方式考虑家具生产物料流程形式时,应根据企业规模,结合产品的结构和工艺特点,着重满足生产过程工序间移动的要求,尽量避免迂回运输或相互交叉,使生产相关联的单位相互靠近布置,以减少移动距离,缩短生产周期。如图2.10所示为常见家具生产物料流程形式,如图2.11所示为一字型物料流程形式生产示意图,如图2.12所示为U型物料流程形式生产车间平面规划图。
图2.10 常见家具生产物料流程形式
图2.11 一字型物料流程形式生产示意图
图2.12 U型物料流程形式生产车间平面规划图
由于家具生产类型较多,家具生产车间布局也没有统一的形式,甚至在一个车间里并存着多种布局形式,这样就要求家具生产控制既具有较强的个体的针对性,又具有整体调节层面的灵活性,以最大限度提升系统的经济效益。就家具生产而言,家具生产车间布局可分为工艺原则布置、产品原则布置、成组原则布置,目前家具生产主要以工艺原则布置为主。
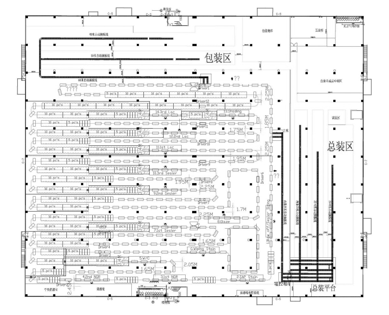
又称工艺专业化布置,就是按照工艺专业化原则将同类机器和人员集中布置在一起,完成相同工艺加工任务。这是当前我国家具企业进行家具生产车间布局以及工厂生产组织机构划分的主要依据。很明显,这种布局方式下的生产任务分配可以任意选择设备,当采用推进式生产方式实施小批量多品种生产时将会出现多个混流工艺路径,直接导致零件运输交叉、生产现场混乱、在制品库存升高的弊端。如图2.13所示为按照工艺原则布置的家具生产车间布局,如图2.14所示为按照工艺原则划分的生产组织机构图。
图2.13 按照工艺原则布置的家具生产车间布局
图2.14 按照工艺原则划分的生产组织机构图
就是按对象专业化原则,根据产品的制造步骤安排各组成部分,布置有关机器和设施。固定制造某种部件或某种产品的封闭车间,其设备、人员按加工或生产的工艺过程顺序布置,形成一定的生产线,适合品种少、批量大的生产方式。在家具生产中这种布置方式最常见于产品装配包装线、台车式涂饰生产线、吊挂式涂饰生产线。这种车间布局方式在家具生产中可能产生的问题是,当单纯采用牵引式生产控制方式实施生产时,可能会经常因为生产线上某点出现质量问题或某工序材料暂时供应不到位而出现整个车间生产的停顿,造成较大的损失。如图2.15所示为按产品原则布置示意图,如图2.16所示为台车式涂饰生产线布置图,该涂饰生产线全长2900m,将产品放置在台车上沿生产线运行,依次通过底色、底漆、修色、面漆等固定工作位置,台车运行速度可以调节,经过4~8h产品到达生产线尾端,即完成整个涂饰生产过程。
图2.15 按产品原则布置示意图
图2.16 台车式涂饰生产线布置图
其基本原理是,首先根据一定的标准将结构和工艺相似的零件组成一个零件组,确定零件组的典型工艺流程,再根据典型工艺流程的加工内容选择设备和工人,由这些设备和工人组成一个生产单元。成组原则布置介于产品原则布置和工艺原则布置之间,是一种适合多品种小批量生产的理想生产方式。每件家具产品都由若干个零部件组装而成,尤其在板式家具生产中,每加工新的零件就需要重新调整设备参数,并且设备调配时间较长,但其实很多零部件规格或加工工艺都很相似,加工时机器用的参数是一样的,为了减少调机次数、缩短调机花费的时间、提高生产效率,通常将相似零件归为一组进行加工,因此,成组技术在板式家具企业和实木家具样品组得到了应用。在板式家具生产中应用成组技术是为了有效地进行多品种小批量生产,将具有相似性的零件汇集成组,如形状相似、尺寸相似、加工过程相似等,使技术和工艺设计合理化,以便对各零件组提供适当的生产设备和工艺装备,扩大批量、减少调机时间,使工序间的搬运和等待时间接近大量生产的效果,从而大幅度地提高生产效率。如图2.17所示为按成组原则布置生产车间示意图,如图2.18所示为板式家具生产设备按成组单元布局图。
图2.17 按成组原则布置生产车间示意图
图2.18 板式家具生产设备按成组单元布局图
由于板式家具生产工艺较简单、使用设备数量较少,可采用成组原则进行生产车间工艺布局,有利于提高订单交期绩效,提升有效产出。但对于实木家具、板木结合家具的生产企业来说,成组原则虽然是一种针对小批量多品种产品生产的理想布局形式,但是由于其介入门槛较高、设备投资较大、家具市场变化快、产品品种受限等客观原因而使其目前较难完全融入这一领域。
根据生产工艺流程与产品物流的特征,制造企业可以分为V型、A型和T型3种流程形式或它们的混合型。V型流程是水库式的,由一种原材料经过基本相同的加工过程转换成种类繁多的最终产品,例如钢材的轧制,是由钢锭轧制成板材、型材和管材等不同产品。相反,A型流程是河流式的,多条支流汇聚成一条大河,由许多原材料和零部件转换成少数几种产品,例如飞机制造、汽车制造等企业。T型企业的最终产品是由相似零部件以不同方式组装成不同产品,加工零部件大体是平行进行的,装配时不同产品将用到很多相同或相似的零部件,例如家用电器的生产。如图2.19所示为V、A、T三种流程类型的生产企业。
图2.19 V、A、T三种流程类型的生产企业
那么家具生产流程属于上面介绍的哪一种形式呢?从家具行业的实际来看,家具生产不完全属于其中任何一种流程形式。家具生产的主要原材料品种较为单一,一般为木材或人造板,将板材开料之后,就分成了众多规格与加工要求的毛料,接下来将这些毛料按照不同的工艺路线分别进行加工,从净料直至加工成零件,讲到这里就判断家具生产属于V型生产流程还为时过早,因为零件在之后的加工工艺过程中必须装配成部件,部件必须最终总装配成家具产品,这里需要指出的是固定框架型结构家具在生产中总装配好之后直接出厂,拆装板件型结构家具要等到客户家方能进行总装配,从这里是否能判断家具生产属于A型生产流程呢?回答仍然是否定的。家具生产流程融合了V、A两种流程类型的特点,在生产的初始阶段以V型流程形式为主,在生产的后半阶段以A型流程形式为主,因产品特征的关系,生产系统整体特性与A型企业较为接近,即通用性较强,生产系统有柔性,加工过程复杂多样,生产控制十分复杂。如图2.20所示为家具生产流程形式。
图2.20 家具生产流程形式
综上所述,通过对家具生产方式进行深入剖析,可以得出定性的分析结果,即家具生产是以离散性生产为主的工艺过程形式,家具生产普遍采用推进式系统,多品种小批量是家具企业的主要生产方式,家具生产属于复杂的混流生产形式,这些客观状况揭示了当前家具生产存在着市场依存度大、零件种类繁多、加工工艺多样化、在制品库存高、订单交货期延长、家具企业利润空间正在加速萎缩等阻碍家具产业持续健康发展的严重问题。