



摘要: 西宫门原是颐和园的主要园门之一,因历史变迁而逐步变得湮没无闻,面貌也随之改观。本文根据对现有文献、图档资料的分析,大体梳理出西宫门的营建时间和设计过程,并对主要单体建筑原貌进行初步解读,借之廓清整组院落的历史格局。尤其通过对两群房原貌与功能的追溯,以期重新发掘西宫门的历史价值与地位。
关键词: 颐和园;西宫门;德兴殿;他坦。
西宫门位于颐和园西北部,门外邻河,原有一座小小的码头,走水路可通玉泉山(图1)。论建筑规模,西宫门自然不能与东宫门相提并论,甚至比北宫门还略显逊色。然而究其原有格局,宫门外设有朝房、牌楼,门内也设有更衣殿、游廊、群房,规制可谓完备(图2)。清代以后,水路出入颐和园的需求不复存在,西宫门也因位置偏僻丧失了园门的功能而被常年关闭。相反,离它不远的北如意门反成了公园的对外出入口之一,以致当今宁知北如意门者有之,而知西宫门者甚少。
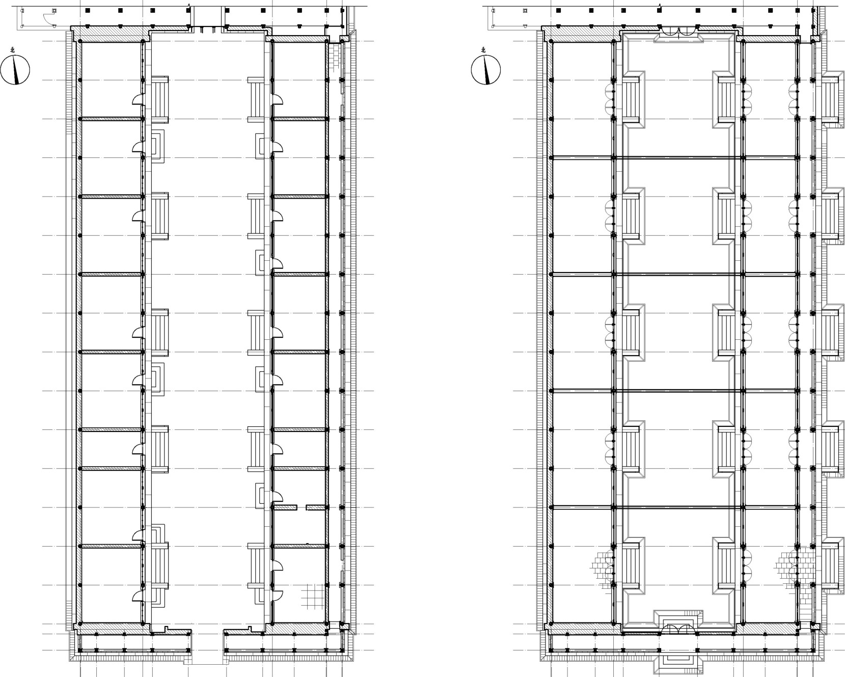
虽经过百年以上的历史变迁,西宫门一组建筑仍大体保留着原有的院落格局,主体建筑也基本完整。以现在的游园路线看,进北如意门向南不远,即可见路西一座东向殿宇,即德兴殿,面阔五间硬山布瓦屋顶。大殿南北各有垂花门一座,门内即为德兴殿院落,大殿正西便是西宫门了。西宫门殿座不大,仅有三间,面西,悬山布瓦屋顶,现已封闭成房屋。如上描述路线乃是从东向西,按原有格局乃是从内向外的顺序。如通过西宫门出园,则原有一处不大的广场,建有南北朝房,再西则是三座冲天牌楼,最西面的一座便已临近河道码头了。只是宫门外的这一格局已然淹没在后建的民房之中,南北朝房尚在,而三座牌楼均已不存,连河道驳岸也已改变,正西面的牌楼基址应已没入河中了。宫门内德兴殿以南另建有东西向群房两座,连楹通脊各十五间,现在两座建筑均向内部窄院开门,格局与历史原貌多有不同(图3~图5)。
图1 西宫门区位图
图2 西宫门总平面
图3 西宫门老照片,东南向西北摄,瓦德马尔·蒂格森(Valdemar Thygesen)约摄于1900年
图4 东群房东立面
图5 德兴殿东北立面
众所周知,光绪时期重建的颐和园基本延续了原清漪园的园林布局,其西宫门的设置也非首创。在《日下旧闻考卷八十四国朝苑囿清漪园》篇中即写道“循城关(宿云岩)以北,折而西,是为园之西门矣”。虽然原文中缺乏对建筑的具体描述,但仅从位置关系看,可知此西门即是后来的颐和园西宫门前身无疑。咸丰十年(1860年),西郊诸园罹难,清漪园也遭焚毁,今天所见西宫门当是光绪时期重修之后的样子。
颐和园《工程清单》记录了光绪时期重修颐和园的主要工程进度,每五天一记,内容较为翔实,基本涉及了建筑工程的主要工序。其间涉及西宫门的记载自光绪二十年(1894年甲午)二月始出现,光绪二十年二月二十一日至二十五日颐和园工程清单,首见“西宫门内添建殿座地脚刨槽”等语
。而后的清单中便连续出现了“西宫门内添建殿座地脚筑打柏木桩”“西宫门安砌柱顶等石,添建殿座筑打灰土”“西宫门竖立大木随签钉椽木望板,补建殿座筑打填厢灰土”等内容。六月初十记“西宫门内大殿头停瓦瓦已齐”,九月三十日记“西宫门内大殿安钉外檐装修已齐”,凡此等等。如将每五日一记录的清单罗列开来,可以看出,西宫门似乎是在原址上重建,添建的殿座(德兴殿)则是从刨槽开始新建,另外,游廊、罩门、群房、朝房、牌楼也都在这一年陆续开始兴建。在光绪二十年年底,西宫门各相关建筑的土木瓦石等主体结构工程便基本完成了。
1.格局调整
光绪时期重修颐和园的西宫门也经过了不同版本的设计方案比选,通过国家图书馆藏样式雷图档
大体可以了解这一设计过程,仅选择具有代表性的部分图档说明如下。
在诸多西宫门地区地盘样中,有一张“西宫门添修殿座房间等图样(349-1265)”,整个区域殿座均用红笔,并逐一贴签标注平面丈尺(图6)。可以看出,这版设计图所反映的规制最为完备,不仅宫门以外建有朝房和牌楼,宫门内还有仪门一道,值房两座,仪门之内是面阔五间周围廊的大殿(推测为歇山屋顶),两边还各有五间配殿,其格局已接近东宫门的样式。然而这张设计图显然没有付诸实践,且不说仪门、配殿等建筑并未建造,即便是现存德兴殿也只是五间前后廊的硬山建筑,其他实物平面尺寸也均较图样有所缩减。虽然方案没有实施,但至少说明对西宫门的定位曾经有过一版高规制的设想。
另一张“西宫门外添修码头等图样(343-0699)”可以认为反映了实施版本的格局,其主要建筑的平面丈尺也与实物遗存基本一致(图7)。宫门外建有朝房、牌楼,宫门内正对大殿,格局简约,但是大殿两侧的游廊与南侧的群房并没有表达,图中是一片空地。
图6 西宫门添修殿座房间等图样(349-1265)局部
图7 西宫门外添修码头等图样(343-0699)局部
图8 光绪二十年三月谕旨
2.增建群房
回看工程档案,在光绪二十年有一条上谕,即“光绪二十年三月二十四日传修建颐和园内各工程谕旨
”(图8),载“西宫门内更衣殿南山留空地四丈六尺五寸,往南丈量得空地南北长十五丈九尺六寸,东西宽八丈二尺八寸,着建盖东西房各十五间,每所六间,分为五所,分中向东开门,东西露明廊子,南北两山安钻山门桶,顺山建盖游廊十九间,更衣殿两山建盖门罩二座,门口尺寸加大,游廊各四间,北面建盖向南游廊九间,钦此”。此后,在光绪二十年六月以后的工程清单中即出现了增建游廊和东西群房的记录,如“游廊地脚筑打灰土”“西宫门内迤南他坦东西房游廊成作大木”等。相应的图样有“西宫门内添修房间游廊图样(392-0227)”,其中游廊和东西群房均系用红笔勾画,当是与“上谕”增建方案互为对应(图9)。从格局和主要建筑尺度看,该版方案与建成的西宫门建筑群已经十分接近了,所不同的是群房进深尺寸比实物略大,游廊间数比实物略少,然相较之下,“上谕”的游廊间数倒是与实物吻合。说明该图样还只是一版设计过程稿,但毕竟与实物相去不远,其反映的历史信息仍十分重要,其中部分细节后文还将详述。
图9 西宫门内添修房间游廊图样(392-0227)局部
图10 西宫门外老照片,自西北向东南摄
图11 西宫门外北朝房、南朝房现状
西宫门建筑群的主要建筑大体保存至今,只是门外的三座牌楼彻底消失了。根据历史照片、资料和现场实物勘察,大体还可以勾勒出原有的建筑风貌(图10、图11)。
就西宫门而言,现存大木架和墙体均为原物,窥之规模与间架结构,与颐和园东堤的新建宫门大体相仿。门外两朝房淹没于民房之中,幸而木结构和山墙还为原物。牌楼虽不存,但在老照片中可见全貌。三座牌楼均为三间冲天牌楼,体量较小,无戗柱。值得一提的是,通过老照片的细节可以看到,西面一座临水的牌楼与南北牌楼木结构并不完全相同,目前可以明确指出的是其明、次间额枋的相对位置存在差异,至于其他细节还有待资料的进一步发掘。宫门内的建筑主要为正殿德兴殿、两罩门、游廊和群房。其中两座罩门基本还保持着原貌,梁架上还有部分彩画原迹,而德兴殿和群房均改作他用,外檐装修和室内分隔均经历了较大变化,分述如下:
1.德兴殿
现存德兴殿为面阔五间的硬山建筑,颐和园工程清单未见德兴殿之名,仅有“更衣殿”的叫法。样式雷图档中查得“北如意门内以西添修坐落房图样(392-0013)”和“北如意门以西添修坐落房图样(392-0015)”(图12、图13)。两图对德兴殿也只以“坐落房”代称,可见德兴殿之名应是其建成之后才确定的。这两份样式雷图档均为五间周围廊平面,与最终实施方案不同。两张图样内容类似,均只简单地表达了内檐装修的位置和名称,所不同的只是一张图在两稍间设后檐炕,一张图在两稍间设顺山炕。由于建筑平面已与实物不同,装修做法就没有比对现场的必要了。现存德兴殿内仍保留了部分几腿罩,结合部分室内格局痕迹,大体可以确定德兴殿原物为前后出廊,现存前后檐装修均是后来改造而成。如对照“西宫门外添修码头等图样(343-0699)”中黄签所示平面尺寸,“大殿一座五间内明间宽一丈二尺,二次间各面宽一丈五寸,二稍间各面宽一丈,进深二丈,外前后廊各深五尺”均与实测尺寸基本吻合。另外,德兴殿前(西面)建有月台,似乎使这座仅有五间的硬山建筑提高了规制和地位,算是对舍弃周围廊方案的一种折中和补偿吧。
图12 北如意门内以西添修坐落房图样(392-0013)
图13 北如意门以西添修坐落房图样(392-0015)
图14 德兴殿室内现状
图15 德兴殿东立面现状
光绪二十年三月二十五日清单中有提及“补建殿座成作地炕炉坑,筑打填厢灰土均齐”等语,据此可知原大殿设有暖炕。颐和园中带有居住性质的殿宇设有地热暖炕并不稀奇,联系到所谓“更衣殿”之名,其火炕设置也当在情理之中。只是现存室内地面被现代装修遮盖,具体炕口位置暂不可见,其排烟出口也不知隐于何处(图14)。
2.所谓“五所”
德兴殿以南增建的群房共两座,各十五间,硬山卷棚屋顶。因后期功能上的改变,现外立面装修已非原状,两座房屋呈东西门窗相对的内院格局,西群房西立面和东群房东立面现为后檐墙,且东群房东面出廊,檐墙砌在金步(图15)。整体格局显然不是原状,还需再次从文献、图档中寻找线索。
按前文引述光绪二十年三月二十四日上谕中有说“建盖东西房各十五间,每所六间,分为五所,分中向东开门”等语,初看略有费解,但如果结合“西宫门内添修房间游廊图样(392-0227)”红笔所示群房地盘就十分明了了(图16)。所谓五所,即将东、西群房整体横向切分成五个独立的院子,每个院子即为一所。每所即由三间东群房和三间西群房组成一个单进的内院,形成所谓“每所六间”,每所的东房明间为穿堂,形成各所的独立出入口,即所谓“分中向东开门”。所与所之间的分隔,按样式雷图档所示为“木板壁”。将图档与文献相对照即可勾勒出东西群房原有的格局关系了。
图16 西宫门内添修房间游廊图样(392-0227)局部
这种在通长的房子上横向切分院落的模式,目前实物较为罕见,但在部分纪实性画作里还是有所反映。如乾隆朝《崇庆皇太后万寿庆典图》中所示的东宫门处的一组值房院落,就与西宫门图档所示的这种“五所”格局十分接近,图画中每个院子之间是院墙分隔,虽看不出每组院子出入口设在何处,但这种并列的单元式院落关系还是表达得很明确的(图17)。
图17 崇庆皇太后万寿庆典图局部(来源网络)
图18 “群房”现状平面示意图及复原平面示意图
如将样式雷图与实物遗存对照,会发现群房进深丈尺还是存在出入,东群房实物为东出廊,也不是图上画的前后廊形式。这说明最终的工程落实还是与这版方案有所区别,但是否就完全否定了划分五所的格局形式呢?笔者以为这只是细节尺寸上的出入,其整体设计意图并无抵牾之处。就西宫门群房现场勘察,所谓木板壁隔墙或砖砌隔墙已经没有痕迹可考,但每3个开间作为一个单元这一特征还是很明显的。比如踏跺的分布规律:如将15间房划分五所,每所3间再划分明、次间,那么通长立面中的第二、五、八、十一、十四间即为每所的明间,其余便是次间。对照实物情况,西群房的东立面和东群房的西立面均在如上5个明间设垂带踏跺。其他原为次间的后开门口均为如意踏跺。如仔细观察,可以看到这些如意踏跺多为旧石料改制,甚至还出现了个别将垂带石改做踏步的情况。东群房东立面原为五所的各个入口,前出廊,但金步现为墙体,改造成了类似后檐墙的样子,其对应的踏跺也全部无存。对照院落内增补的如意踏跺,或可推想其石料来源很可能即是东群房东立面的垂带踏跺。另外,从外檐残存的彩画也能看到上述明、次间的关系。如凡当是明间的外檐包袱彩画均绘线法山水,而次间包袱则绘翎毛花卉,或可也是明、次间的一种区别。凡此等等,虽尚不能确切找到五所的隔墙痕迹,但3间一所的格局还是宁信其确实存在的(图18)。
关于“五所”的职能属性,工程档案中起初称“东、西房”,后又称“他坦房”。“他坦”应源于满语,关于其具体功能,在清末太监回忆录中有这么一段介绍:“他坦是太后宫的外回事处,设有他坦达一名。因是太后的他坦,皆称大他坦。每月初二、二十六两日,各近支王公和诞辰家、各蒙古王之戚近者,无私见太后之礼,因此这两天可到他坦之正厅,向太后的御笔大寿字跪安。跪安后,恳求他坦达代奏
。”此处所指“他坦”应为紫禁城宁寿宫的大他坦,显然是带有回事处的功能。除此之外,在紫禁城中自太后至皇后妃嫔都有各自的他坦,除了回事,主要还应承饭食和太监休息之用:“宫内后妃自太后至皇后妃嫔等,各有一个他坦,有太监他坦达一名,由本宫之老成旧人充当之,专管主子以下,本宫太监、女子之饭食。后妃之母家有来往赠送、问安等事,到他坦请他坦达传达,不得与主子随便见面……”“大内之太监,吃饭剃头,皆须出内右门到西河沿之他坦办理……各妃之他坦,由河沿至神武门内,比比皆是。他坦犹言坐落,预备每日饭菜为正差。如太监有病,可到本处他坦休养。妃嫔无膳房,有他坦,除预备饭盒外,各母家有事,也到他坦令太监传递
。”另外,在朱家溍先生《故宫退食录》中,也通过与清宫老太监的问答,提到了有关他坦的一些功能,与上文可相印证
。如果西宫门的所谓“五所”确系他坦房,则其功能当与紫禁城中之他坦类似,即为勤杂服务类用房。
“但凡承担过重大政务功能的御苑,其门区必然设有各种附属功能用房,如他坦房、堂档房、升平署等。圆明园在被毁后,园居、问政的综合功能丧失,颐和园则承接了圆明园的历史功能。通过对比颐和园与清漪园的格局,不难发现,园内建筑格局基本未变,最显著的变化就在东宫门外,新建了以大他坦为代表的大量附属机构用房,这正是颐和园承接圆明园历史功能的内在要求
。”西宫门的格局地位自然不能与东宫门相比,但其他坦房的设置也是在重修颐和园时才出现的,不能不说也是颐和园历史功能提升的一种反映,只是职能有限,规模较小而已。
通过对已有文献、图档的翻阅,大体可以勾勒出颐和园西宫门的建造年代与原有的历史格局。虽然西宫门建筑规模较小,但建制完备,设计过程也是几经易稿。通过对各种未实现地盘图样的比对,可以看到西宫门曾有过较高规制的格局设想,后来东、西群房的设置,也在一定程度上拓展了西宫门的功能属性。
当然,文献资料与实物遗存的勘察还需进一步深入,关于东、西群房的具体职能还有待进一步确认,各建筑的具体格局、做法还未及展开研究。但就已有资料也可看出,西宫门至少不应以普通的园门等闲视之,其在颐和园中的地位和价值应予以重视。
[1]于敏中.日下旧闻考[M].北京:北京古籍出版社,1981.
[2]北京市颐和园管理处,中国第一历史档案馆.清宫颐和园档案·营造制作卷[M].北京:中华书局,2015.
[3]国家图书馆.国家图书馆藏样式雷图档·颐和园卷·第七函[M].北京:国家图书馆出版社,2018.
[4]信修明等.太监谈往录[M].北京:故宫出版社,2010.
[5]朱家溍.故宫退食录[M].北京:紫禁城出版社,2009.
[6]王其亨,张龙,张凤梧. 从颐和园大他坦说起——浅论圆明园和颐和园历史功能的转变[J]. 圆明园学刊,2008(8):5.