购买
下载掌阅APP,畅读海量书库
立即打开
畅读海量书库
扫码下载掌阅APP

第四节
服装制图工具与制图规则

一、服装制图工具

服装制图工具多种多样,这里只介绍3个主要的服装制图工具。

1.尺(图1-1)

图1-1 尺

(1)直尺:长度应与制图台板相同,以1 500mm的长度为宜,可安装在制图台板上使用。

(2)三角尺:规格以40cm为宜,内角都有一个90°,其余内角是45°、45°、30°和60°。

(3)曲线尺(蛇尺):如果有几个迹点不在一条直线上,又不在一个圆周上,要用一曲线把各点连接起来,这就需使用曲线尺。目前,市场上有一种“蛇尺”,由韧性塑胶材料制成,用其描绘曲线很便捷。

(4)弧形刀尺:弧形刀尺上有刻度,可画弧线,也可测量弧线长度。

2.笔

(1)笔:在制板时应选用H~4H型的硬性铅笔,规格以0.3~0.5 mm铅芯为宜。

(2)彩色水笔:在制版时使用3种颜色的水笔作标记及纱向符号。

(3)槌针笔:在制版时,使用槌针笔定位,可槌透所需层数的制版纸。

3.纸

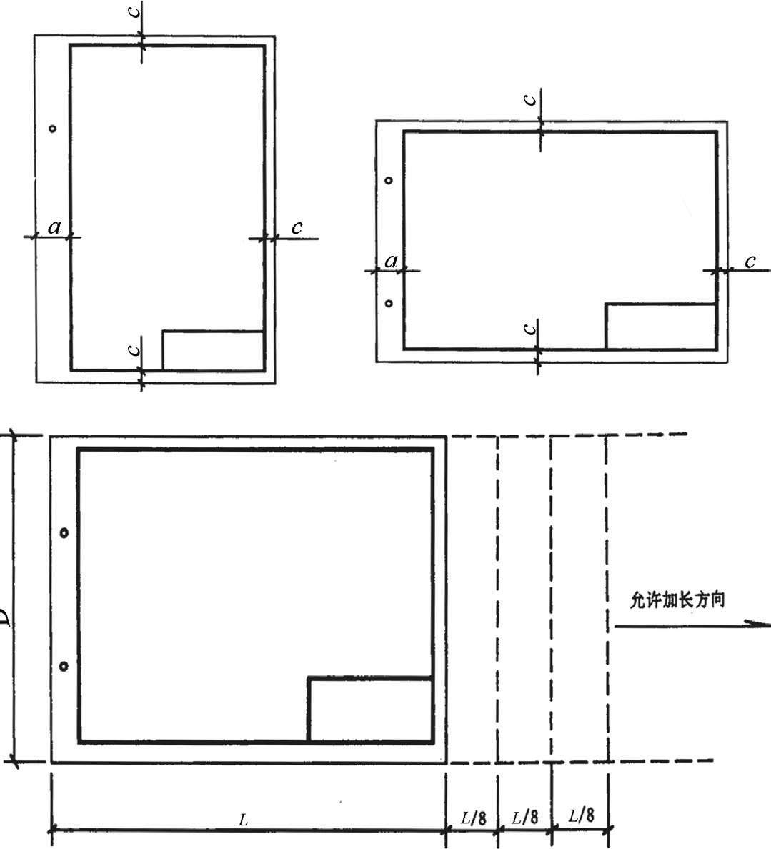
(1)图纸格式。

幅面规格:所有制图图纸的幅面,应符合“制图图纸尺码规格”表中的规定,见表1-3。

表1-3 制图图纸尺码规格 mm

图纸格式:图纸不论是否装订,均要画出图框线,用细实线画出外边框线(0.3 mm墨线),用粗实线画出内边框线(1 mm墨线)。

图纸左侧留足装订位置,内、外边框之间的距离是 a =5, c =1,比例关系是5∶1。例如3,4,5号图纸内、外边框之间的距离是 a =25 mm, c =5 mm;或比例关系5∶2。例如0,1,2号图纸内、外边框之间的距离是 a =25 mm, c =10 mm。必要时,允许加长0~3号图纸的长边,加长部分的尺寸应为长边的1/8及其倍数(图1-2)。

图1-2制图图纸格式

(2)标题栏内容。

标题栏又称图标,大图标用于0,1,2号图纸,位置在图纸的右下角;小图标用于3,4,5号图纸,位置在图纸的右下角。

标题栏内容可按国际服装制图的标题栏格式填写,也可按图样内容的需要来填制(表1-4、表1-5)。

表1-4 图纸标题栏——大图标的格式 (幅宽:125 mm/84 mm)

表1-5 图纸标题栏——小图标的格式 (幅宽:65 mm/44 mm)

(3)图样排列布局。

图纸标题栏的位置应在图纸的右下角;服装款式图的位置应在标题栏的上面或标题栏的左面;服装部件的制图位置,应在服装款式图的左边或上面(图1-3)。

图1-3 图样排列布局

服装结构制图的图样应严格按照服装的使用方位进行排列,不允许倒置(图1-4)。

图1-4 服装结构制图的图样排列布局

服装部件排料图的图样应严格按照服装部件的使用方向进行排列,不允许出现偏差(图1-5)。

图1-5 服装部件排料图的图样排列布局

二、服装制图规范

我国的服装文化是随着我国文明和世界文明的发展而发展的。特别是我国加入世界贸易组织(WTO)之后,与世界各国在文化、科技等方面的交流日趋广泛与频繁,科学技术的发展与深入必然要求服装产业在设计、裁制技术上进一步加强其科学化、标准化、高档化、品牌化等方面的管理,以开创服装产业的新局面、新时代,使我国的服装文化重放光彩。

在服装产品的工业生产和结构设计中,服装制图是绘制服装工业产品初样、标准样和全套样的基础和根本,是服装设计与生产的初始环节,也是最重要的环节。服装制图是结构设计系统中不可缺少的初始环节,需要按准确的制图操作规程进行,才能达到服装结构设计所要求的科学化与标准化。

下面简单介绍服装制图的规范操作方式。

1.由主要部件至零部件的绘制

由主要部件至零部件的绘制就是先画大面积裁片后画小面积裁片。

(1)上装中的主要部件是指前、后衣片,大、小袖片。

(2)下装中的主要部件是指前、后裤片,前、后裙片。

(3)上装中的零部件是指领面、领里、挂面、口袋嵌线条、袋盖面、袋盖里、垫袋布、袋布等。

(4)下装中的零部件是指腰面、腰里、门襟、串带、垫袋布、袋布等。

2.由表至内里的绘制

由表至内里的绘制就是先绘制面料样板的制图,然后结合服装产品的工艺要求绘制里料和衬料图。为了达到样板或裁片之间整体的可操作性,在绘制时要注意与面料样板一起进行综合分析。

3.先画净样后画毛样

在服装制图中,净样板是指服装产品的样板中不含缝份量值和折边量值。毛样板是指包含了缝制时的工艺缝份量和折边量在内的样板。

制图时一般先画出产品的净样板,再按工艺缝制的具体要求,加放所需缝份及折边用量,完成毛样板之后还要在绘制好的毛样板上注明纱向、裁片数量等样板属性。 nBw4+4vp6kZDOs/XbrBHexIywG0qhZZjiOcJ5QNxUXusEq1jCajx8ZI4x6EYlOoP

点击中间区域
呼出菜单
上一章
目录
下一章
×