



AutoCAD 2022提供了以下几种方法选择对象。
(1)先选择一个编辑命令,然后选择对象,按<Enter>键结束操作。
(2)使用SELECT命令。在命令行中输入“SELECT”命令,按<Enter>键,按提示选择对象,按<Enter>键结束。
(3)利用定点设备选择对象,然后调用编辑命令。
(4)定义对象组。无论使用哪种方法,AutoCAD 2022都将提示用户选择对象,并且光标的形状由十字光标变为拾取框。下面结合SELECT命令说明选择对象的方法。
SELECT命令可以单独使用,也可以在执行其他编辑命令时被自动调用。在命令行中输入“SELECT”命令,按<Enter>键,命令行提示如下。
等待用户以某种方式选择对象作为回答。AutoCAD 2022提供多种选择方式,可以输入“?”,查看这些选择方式。选择选项后,出现如下提示。
其中,部分选项含义如下。
(1)点:表示直接通过点取的方式选择对象。利用鼠标或键盘移动拾取框,使其框住要选择的对象,然后单击,被选中的对象就会高亮显示。
(2)窗口(W):用由两个对角顶点确定的矩形窗口选择位于其范围内部的所有图形,与边界相交的对象不会被选中。指定对角顶点时应该按照从左向右的顺序,执行结果如图4-1所示。
(3)上一个(L):在“选择对象”提示下输入“L”,按<Enter>键,系统自动选择最后绘出的一个对象。
图4-1 “窗口”对象选择方式
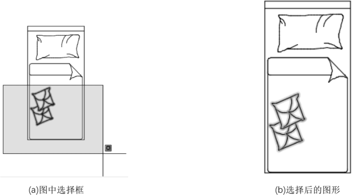
(4)窗交(C):该方式与“窗口”方式类似,其区别在于它不但选中矩形窗口内部的对象,也选中与矩形窗口边界相交的对象,执行结果如图4-2所示。
(5)框(BOX):使用框时,系统根据用户在绘图区指定的两个对角点的位置而自动引用“窗口”或“窗交”选择方式。若从左向右指定对角点,则为“窗口”方式;反之,则为“窗交”方式。
(6)全部(ALL):选择绘图区所有对象。
图4-2 “窗交”对象选择方式
(7)栏选(F):用户临时绘制一些直线,这些直线不必构成封闭图形,凡是与这些直线相交的对象均被选中,执行结果如图4-3所示。
(8)圈围(WP):使用一个不规则的多边形来选择对象。根据提示,用户依次输入构成多边形所有顶点的坐标,直到最后按<Enter>键结束操作,系统将自动连接第一个顶点与最后一个顶点,形成封闭的多边形。凡是被多边形围住的对象均被选中(不包括边界),执行结果如图4-4所示。
图4-3 “栏选”对象选择方式
图4-4 “圈围”对象选择方式
(9)圈交(CP):类似于“圈围”方式,在提示后输入“CP”,按<Enter>键,后续操作与“圈围”方式相同。区别在于,执行此命令后与多边形边界相交的对象也被选中。
其他几个选项的含义与上面选项含义类似,这里不再赘述。
注意:若矩形框从左向右定义,即第一个选择的对角点为左侧的对角点,矩形框内部的对象被选中,框外部及与矩形框边界相交的对象不会被选中;若矩形框从右向左定义,矩形框内部及与矩形框边界相交的对象都会被选中。