



本节简要介绍建筑设计的一些基本理论和建筑设计的一般特点。
建筑设计是为人类建立生活环境的综合艺术和科学,是一门涵盖极广的专业。建筑设计一般来说由三大阶段构成,即方案设计、初步设计和施工图设计。方案设计主要是构思建筑的总体布局,包括各个功能空间的设计、高度、层高、外观造型等内容;初步设计是对方案设计的进一步细化,确定建筑的具体尺度和大小,包括建筑平面图、建筑剖面图和建筑立面图等;施工图设计则是将建筑构思变成图纸的重要阶段,是建造建筑的主要依据,除包括建筑平面图、建筑剖面图和建筑立面图等外,还包括各个建筑大样图、建筑构造节点图,以及其他专业设计图纸,如结构施工图、电气设备施工图、暖通空调设备施工图等。总的来说,建筑施工图越详细越好,要准确无误。
在建筑设计中,需按照国家规范及标准进行设计,确保建筑的安全、经济、适用等,需遵守的国家建筑设计规范主要有以下几方面(如有新的标准规范,需采用新的标准规范)。
(1)房屋建筑制图统一标准GB/T50001-2017。
(2)建筑制图标准GB/T50104-2010。
(3)建筑内部装修设计防火规范GB50222-2017。
(4)建筑工程建筑面积计算规范GB/T50353-2013。
(5)民用建筑设计统一标准GB50352-2019。
(6)建筑设计防火规范GB 50016-2014(2018年版)。
(7)建筑采光设计标准GB50033-2013。
(9)建筑照明设计标准GB50034-2013。
(10)汽车库、修车库、停车场设计防火规范GB50067-2014。
(11)自动喷水灭火系统设计规范GB50084-2017。
(12)公共建筑节能设计标准GB50189-2015。
注意: 建筑设计规范中GB是国家标准,此外还有行业规范、地方标准等。
建筑设计是为人们工作、生活与休闲提供环境空间的综合艺术和科学。建筑设计与人们的日常生活息息相关,从住宅到商场大楼,从写字楼到酒店,从教学楼到体育馆,无处不与建筑设计紧密相关。如图1-1和图1-2所示是两种不同风格的建筑。
图1-1 高层商业建筑
图1-2 别墅建筑
建筑设计是根据建筑物的使用性质、所处环境和相应标准,运用物质技术手段和建筑美学原理,创造功能合理、舒适优美、满足人们物质和精神生活需要的室内外空间环境。在设计构思时,需要运用物质技术手段,如各类装饰材料和设施设备等;还需要遵循建筑美学原理,综合考虑使用功能、结构施工、材料设备、造价标准等多种因素。
从设计者的角度来分析建筑设计的方法,主要有以下几点。
(1)总体与细部深入推敲
总体推敲是建筑设计应考虑的几个基本观点之一,是指有设计的全局观念。细处着手是指具体进行设计时,必须根据建筑的使用性质,深入调查、收集信息,掌握必要的资料和数据,从最基本的人体尺度、人流量、活动范围和特点、家具与设备的尺寸,以及使用它们必须的空间等着手。
(2)里外、局部与整体协调统一
建筑的室内空间环境需要与建筑整体的性质、标准、风格,以及室外环境协调统一,它们之间有着相互依存的密切关系,设计时需要从里到外,从外到里多次反复协调,从而使设计更趋于完善合理。
(3)立意与表达
设计的构思、立意至关重要。可以说,一项设计,没有立意就等于没有“灵魂”,设计的难度也往往在于要有一个好的构思。一个较为成熟的构思,往往需要足够的信息量,有商讨和思考的时间,在设计前期和出方案过程中使立意、构思逐步明确,形成一个好的构思。
注意: 对于建筑设计来说,正确、完整,又有表现力地表达出建筑室内外空间环境设计的构思和意图,使建设者和评审人员能够通过图纸、模型、说明等,全面地了解设计意图,也是非常重要的。
建筑设计根据设计的进程,通常可以分为四个阶段,即准备阶段、方案阶段、施工图阶段和实施阶段。
(1)准备阶段
准备阶段主要是接受委托任务书、签订合同,或者根据标书要求参加投标,明确设计任务和要求。如建筑设计任务的使用性质、功能特点、设计规模、等级标准、总造价,以及根据使用性质所需创造的建筑室内外空间环境氛围、文化内涵或艺术风格等。
(2)方案阶段
方案阶段是在设计准备阶段的基础上,进一步收集、分析、运用与设计任务有关的资料与信息,构思立意,进行初步方案设计,进而深入设计,进行方案的分析与比较。确定初步设计方案,提供设计文件,如平面图、立面图、透视效果图等。如图1-3所示是某个项目建筑设计方案效果图。
图1-3 建筑设计方案
(3)施工图阶段
施工图阶段是提供有关平面、立面、构造节点大样,以及设备管线图等施工图纸,满足施工的需要。如图1-4所示是某个项目建筑平面施工图。
(4)实施阶段
实施阶段也就是工程的施工阶段。建筑工程在施工前,设计人员应向施工单位进行设计意图说明及图纸的技术交底;工程施工期间需按图纸要求核对施工实况,有时还需根据现场实况提出对图纸的局部修改或补充;施工结束时,会同质检部门和建设单位进行工程验收。如图1-5所示是正在施工中的建筑(局部)。
注意: 为了使设计取得预期效果,建筑设计人员必须抓好设计各阶段的环节,充分重视设计、施工、材料、设备等各个方面,协调好与建设单位和施工单位之间的相互关系,在设计意图和构思方面取得沟通与共识,以期取得理想的设计工程成果。
图1-4 建筑平面施工图(局部)
图1-5 施工中的建筑
一套建筑的建筑施工图通常包括的图纸主要有如下几大类。
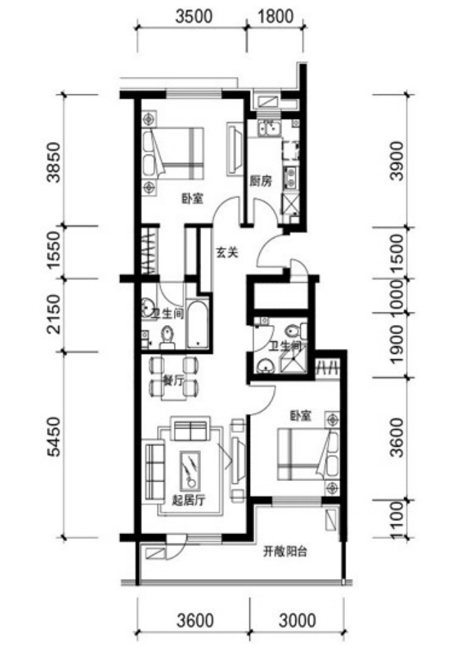
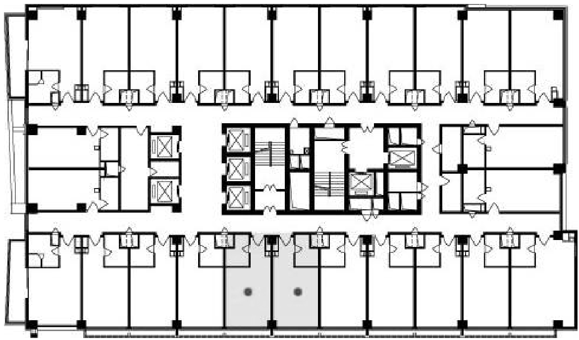
(1)建筑平面图(简称平面图):是按一定比例绘制的建筑的水平剖切图。通俗地讲,就是将一幢建筑窗台以上部分切掉,再将切面以下部分用直线和各种图例、符号直接绘制在纸上,以直观地表示建筑在设计和使用上的基本要求和特点。建筑平面图一般比较详细,通常采用较大的比例,如1:200、1:100和1:50,并标出实际的详细尺寸,如图1-6所示为某建筑标准层平面图。
(2)建筑立面图(简称立面图):主要用来表达建筑物各个立面的形状和外墙面的装修等,是按照一定比例绘制建筑物的正面、背面和侧面的形状图,它表示的是建筑物的外部形式,说明建筑物长、宽、高的尺寸,表现楼地面标高、屋顶的形式、阳台位置和形式、门窗洞口的位置和形式、外墙装饰的设计形式、材料及施工方法等,如图1-7所示为某建筑的立面图。
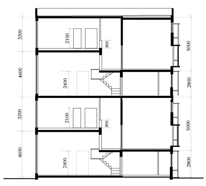
(3)建筑剖面图(简称剖面图):是按一定比例绘制的建筑竖直方向剖切前视图,它表示建筑内部的空间高度、室内立面布置、结构和构造等情况。在绘制剖面图时,应包括各层楼面的标高、窗台、窗口、室内净尺寸等,剖切楼梯应表明楼梯分段与分级数量;建筑主要承重构件的相互关系,画出房屋从屋面到地面的内部构造特征,如楼板构造、隔墙构造、内门高度、各层梁和板位置、屋顶的结构形式与用料等;注明装修方法、楼、地面做法,所用材料加以说明,标明屋面做法及构造;各层的层高与标高,标明各部位高度尺寸等,如图1-8所示为某建筑的剖面图。
图1-6 建筑平面图
图1-7 建筑立面图
图1-8 建筑剖面图
(4)建筑大样图(简称详图):主要用以表达建筑物的细部构造、节点连接形式,以及构件、配件的形状大小、材料、做法等。详图要用较大比例绘制(如1:20、1:5等),尺寸标注要准确齐全,文字说明要详细。如图1-9所示为墙身(局部)详图。
(5)建筑透视效果图:除上述类型图形外,在实际工程实践中还经常要绘制建筑透视图,尽管其不是施工图所要求的。但由于建筑透视图表示建筑物内部空间或外部形体与实际所能看到的建筑本身相类似的主体图像,它具有强烈的三度空间透视感,非常直观地表现了建筑的造型、空间布置、色彩和外部环境等多方面内容。可见,建筑透视图常在建筑设计和销售时作为辅助使用。从高处俯视的透视图又称作“鸟瞰图”或“俯视图”。建筑透视图一般要严格地按比例绘制,并进行绘制上的艺术加工,这种图通常被称为建筑表现图或建筑效果图。一幅绘制精美的建筑表现图就是一件艺术作品,具有很强的艺术感染力。如图1-10所示为某高层建筑三维外观透视效果图。
图1-9 建筑大样图
图1-10 建筑透视效果图
注意: 目前普遍采用计算机绘制效果图,其特点是透视效果逼真,可以拷贝多份。