购买
下载掌阅APP,畅读海量书库
立即打开
畅读海量书库
扫码下载掌阅APP

2.2 形态学的K线系统

形态学分析是股市分析中的重要方法,掌握K线形态学能够帮助你更精准地了解股市的走向,预测股市未来的走势、趋势的量度,还能使你从中了解主力资金的操作思维、方法、目的等。

K线系统是缠论的重要组成部分,通过它,你可以得知个股的价格转折点及价格走势。但要掌握K线系统,就要先掌握K线的包含关系、对其包含关系的处理、K线组合、K线形态等,这是掌握分型、线段、笔等的基础。

2.2.1 K线的包含关系

K线的包含关系,是指一条K线的高低点完全在另一条K线高低点范围之内,那么这两条K线之间的关系就是包含关系。在确认包含关系时,无须考虑阳线和阴线,只考虑K线的最高点和最低点。相邻的两条K线无论是前者包含后者,还是后者包含前者,皆为包含关系。

在图2-2中,K线B的高低点完全在K线A的高低点范围内,则K线B和K线A之间为包含关系;而K线D的高低点并不完全在K线C的高低点范围内,则K线D和K线C不属于包含关系。

图2-2 K线的包含与不包含关系

在判断行情时,有时会将这些存在包含关系的K线进行合并,形成没有包含关系的K线图,以帮助我们更好地判断趋势。

在K线形态中,有7种包含关系排列,如图2-3所示。

图2-3 包含关系K线形态

在图2-4中,实线框内相邻的两条K线属于包含关系,虚线框内相邻的两条K线不属于包含关系。仔细查看K线的包含关系和非包含关系之间的差别,并将之运用于实战中。

图2-4 同仁堂日K线图中的包含与非包含关系

对于不属于包含关系的3条相邻的K线,可将其分为4种,即上升K线、顶分型、下降K线、底分型,如图2-5所示。这是实战中较为常见的非包含关系的3条相邻K线组合,它们所代表的意义不同,在实战中应特别注意,这些将在后续章节中讲到。

图2-5 非包含关系的3条相邻K线的分类

在图2-6中,我们可以找出下降K线、底分型两种非包含关系的3条相邻K线组合,在实战中,这些K线组合对股市分析具有重要的指导意义,是我们在分析股市时应注意的。

图2-6 同仁堂日K线图中的下降K线和底分型

2.2.2 K线的包含关系处理

在K线图中,存在包含关系的相邻K线随处可见,为了避免这些K线给分析增加任务量和难度,我们先要对这些K线进行包含关系处理。

包含关系处理是指将具有包含关系的两条相邻K线按照某种规则合并为一条K线,从而使日K线图中的K线数量有所减少,减少分析的任务量并减轻难度。

K线的包含关系处理可分为两种:“向上”和“向下”。

(1)“向上”,假设K线1和K线2无包含关系,K线2和K线3存在包含关系,K线2比K线1高,则进行向上包含关系处理(简称向上处理)。

处理规则为:将存在包含关系的两条K线的最高点视为新K线的高点,将两条K线的最低点中的较高者视为新K线的低点,这样就把两条K线合并为一条新的K线。

当然,实际图形里,有些复杂的关系会出现,就是相邻两K线可以出现包含关系,也就是一K线的高低点全在另一K线的范围里,这种情况下,可以这样处理,在向上时,把两K线的最高点当高点,两K线低点中的较高者当成低点,这样就把两K线合并成一新的K线;反之,当向下时,把两K线的最低点当低点,两K线高点中的较低者当成高点,这样就把两K线合并成一新的K线。经过这样的处理,所有K线图都可以处理成没有包含关系的图形。

——缠中说禅“教你炒股票”62课

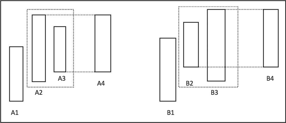
在图2-7中的左侧图中,K线A1和K线A2不属于包含关系,K线A2和K线A3属于包含关系,K线A2比K线A1高,进行向上处理。在处理中,取K线A2和K线A3的最高点为高点,取低点中的较高者为低点,然后将两条K线合并为新的K线A4。

图2-7 向上处理

在图2-7中的右侧图中,K线B2比K线B1高,进行向上处理,即对K线B2和K线B3进行向上处理,两者合并为新的K线B4。

在图2-8中,K线B的高点比K线A的高点要高,且K线B与K线C为包含关系,应进行向上处理;K线E的高点比K线D的高点要高,且K线E与K线F为包含关系,应进行向上处理。

图2-8 同仁堂日K线图中应进行向上处理的K线组合

(2)“向下”,假设K线1和K线2无包含关系,K线2和K线3存在包含关系,K线2比K线1低,进行向下包含关系处理(简称向下处理)。

处理规则为:将存在包含关系的两条K线的最低点视为新K线的低点,将两条K线的高点中的较低者为新K线的高点,这样就把两条K线合并为一条新的K线。

图2-9 向下处理

在图2-9中的左侧图中,K线A1和K线A2不属于包含关系,K线A2和K线A3属于包含关系,K线A2比K线A1低,进行向下处理。在处理中,取K线A2和K线A3的最低点为低点,取K线A2和K线A3的高点中的较低者为高点,然后将两条K线合并为新的K线A4。

在图2-9中的右侧图中,K线B2比K线B1低,进行向下处理,即对K线B2和K线B3进行向下处理,两者合并为新的K线B4。

在图2-10中,K线B的高点比K线A的高点低,且K线B与K线C为包含关系,应进行向下处理;K线E的高点比K线D的高点低,且K线E与K线F为包含关系,应进行向下处理。

图2-10 同仁堂日K线图中应进行向下处理的K线组合

由上文可知,K线包含关系的处理是向上还是向下,取决于形成包含关系的前面那条K线与在其之前的那条K线的对比情况,如果其高点较高,则进行向上处理;如果其低点较低,则进行向下处理。在缠论中关于K线合并方向是这么描述的:“假设,第n条K线满足第n条与第n+1条的包含关系,而第n条与第n-1条不是包含关系,那么,如果第n条K线的高点大于第n-1条K线的高点,则称第n-1、n、n+1条K线是向上的;如果第n条K线的低点小于第n-1条K线的低点,则称第n-1、n、n+1条K线是向下的。”

2.2.3 K线包含关系处理的顺序

K线的包含关系虽然是严格遵守结合律的,但也存在一个问题,在K线图中,有时会存在多种包含关系,如A与B为包含关系,B与C为包含关系,但A与C是否存在包含关系,则有待检验。也就是说,K线的包含关系不遵守传递律。

因此,在K线包含关系中,一定要遵守处理的顺序,即在处理包含关系时,要按照时间顺序来处理,先处理前面的包含关系,再处理后面的包含关系,否则,容易导致紊乱和无效。

结合律是有关本ID理论中最基础的,在K线的包含关系中,当然也需要遵守,而包含关系,不符合传递律,也就是说,第1、2条K线是包含关系,第2、3条也是包含关系,但并不意味着第1、3条就有包含关系。因此在K线包含关系的分析中,还要遵守顺序原则,就是先用第1、2条K线的包含关系确认新的K线,然后用新的K线去和第3条比,如果有包含关系,继续用包含关系的法则结合成新的K线,如果没有,就按正常K线去处理。

——缠中说禅“教你炒股票”65课

图2-11中,K线B与K线C、K线C与K线D都为包含关系,但是在处理包含关系时,要按照时间顺序来处理,即先处理K线B与K线C间的包含关系,将两条K线合并为新的K线E,然后判断K线D与K线E之间是否存在包含关系,如果存在,则继续处理;如果不存在,则无须处理。

在图2-11中的K线包含关系,正确的处理顺序如下。

图2-11 K线包含关系处理

(1)确定合并方向。在图中,K线A与K线B之间不存在包含关系,K线B与K线C之间存在包含关系,判断K线B与K线C的合并方向:如果K线B的最高点高于K线A的最高点,进行向上处理;如果K线B的最高点低于K线A的最高点,则进行向下处理。在该图中,明显要进行向上处理。

(2)处理K线B与K线C之间的包含关系,形成新的K线E,如图2-12所示。判断K线E和K线D之间是否存在包含关系。

(3)K线E的高低点都处于K线D的高低点范围之内,两者之间存在包含关系,应进一步处理。新K线E的高点比K线A高,应进行向上处理,两条K线合并后形成新K线F,如图2-13所示。

图2-12 向上处理

(4)如图2-14所示,在经过K线包含关系处理后,图中只剩下K线A与K线F。

在处理过程中,如果前面两条K线合并后产生的新K线和第三条K线存在包含关系,则可将此现象称为“多条顺次包含K线的合并”。

图2-13 合并成新K线

在经过K线包含关系处理后,K线图中不能再存在包含关系,如果存在,则说明处理得不够彻底,应继续用包含关系处理规则来处理,直至K线图中不再存在包含关系;如果不存在,则按照正常K线图来分析。

在实战中,并不是K线图中所有的包含关系都要进行处理,而是要根据分析目的和位置的重要性来决定,否则,若全部都处理,分析的工作量无疑会大幅增加。

图2-14 包含关系处理后

操作提示1: 在图2-15中,K线A与K线B之间存在包含关系,K线A的高点明显比前一条K线M的高点低,则K线A与K线B应向下处理;取A、B两条K线高点中的较低者为高点,取两条K线低点的最低者为低点,按照包含关系处理规则,将其合并为一条新K线C。

操作提示2: 判断新K线C与K线D的关系,K线C的高低点在K线D的高低点范围内,两者为包含关系。由于K线C的高点比K线M的高点低,则K线C与K线D取向下处理,以两条K线高点中的较低者为高点,以两条K线低点的最低者为低点,按照包含关系处理规则,将其合并为一条新K线F。

图2-15 宇通客车日K线图包含关系处理

操作总结: 在实战中,处理K线的包含关系时,一定以顺序为原则,一步步进行处理,直到K线图中无包含关系。当然,为了减少工作量,可只处理K线图中处于重要位置的K线的包含关系。多条K线间存在顺次包含关系时,也要严格遵守顺序原则。 EOCFzJtDxQ6DFmrwAzGmyu5t4WkuMQW9YctvxbYBop72ZxKfZS4/jre3TkNuUL8l

点击中间区域
呼出菜单
上一章
目录
下一章
×