



旋转特征是由特征截面绕中心线旋转而生成的一类特征,它适于构造回转体零件。如图3-72所示是一个由旋转特征形成的零件实例。
实体旋转特征的草图可以包含一个或多个闭环的非相交轮廓。对于包含多个轮廓的基体旋转特征,其中一个轮廓必须包含所有其他轮廓。薄壁或曲面旋转特征的草图只能包含一个开环或闭环的非相交轮廓。轮廓不能与中心线交叉。如果草图包含一条以上的中心线,则选择一条中心线作为旋转轴。
图3-72 由旋转特征形成的零件实例
旋转特征应用比较广泛,是比较常用的特征建模工具,主要应用在以下零件的建模中。
● 环形零件,如图3-73所示。
● 球形零件,如图3-74所示。
● 轴类零件,如图3-75所示。
● 形状规则的轮毂类零件,如图3-76所示。
图3-73 环形零件
图3-74 球形零件
图3-75 轴类零件
图3-76 轮毂类零件
下面结合实例介绍创建旋转的凸台/基体特征的操作步骤。
【案例3-16】旋转凸台/基体
(1)打开源文件“\ch3\3.16.SLDPRT”,打开的文件实体如图3-77所示。
(2)选择菜单栏中的“插入”→“凸台/基体”→“旋转”命令,或者单击“特征”选项卡上的“旋转凸台/基体”按钮
。
(3)弹出“旋转”属性管理器,同时在右侧的图形区中显示生成的旋转特征,如图 3-78所示。
图3-77 打开的文件实体
图3-78 “旋转”属性管理器
(4)在“方向1”选项组的下拉列表框中选择旋转类型。
● 给定深度:草图向一个方向旋转指定的角度。如果想要向相反的方向旋转特征,单击“反向”按钮
,如图3-79(a)所示。如果向两个方向旋转的角度不同,勾选“方向2”复选框,草图以所在平面为中面分别向两个方向旋转指定的角度,这两个角度可以分别指定,如3-79(b)所示。
● 成形到一顶点:从草图基准面生成旋转到所指定的顶点。
● 成形到一面:从草图基准面生成旋转到在面/基准面中所指定的曲面。
● 到离指定面指定的距离:从草图基准面生成旋转到在面/基准面中所指定曲面的指定等距。
● 两侧对称:草图以所在平面为中面分别向两个方向旋转相同的角度,如图 3-79(c)所示。
图3-79 旋转特征
(5)在“角度”
文本框中输入旋转角度。
(6)如果准备生成薄壁旋转,则勾选“薄壁特征”复选框,然后在“薄壁特征”选项组的下拉列表框中选择拉伸薄壁类型。这里类型的含义与旋转类型中的含义不同,这里的方向是指薄壁截面上的方向。
● 单向:使用指定的壁厚向一个方向拉伸草图,默认情况下,壁厚加在草图轮廓的外侧。
● 两侧对称:在草图的两侧各以指定壁厚的一半向两个方向拉伸草图。
● 双向:在草图的两侧各使用不同的壁厚向两个方向拉伸草图。
(7)在“厚度”
文本框中指定薄壁的厚度。单击“反向”按钮
,可以将壁厚加在草图轮廓的内侧。
(8)单击“确定”按钮
,完成旋转凸台/基体特征的创建。
与旋转凸台/基体特征不同的是,旋转切除特征用来产生切除特征,也就是用来去除材料。如图3-80所示展示了旋转切除的几种效果。
下面结合实例介绍创建旋转切除特征的操作步骤。
【案例3-17】旋转切除
(1)打开源文件“\ch3\3.17.SLDPRT”,打开的文件实体如图3-81所示。
(2)选择模型面上的一个草图轮廓和一条中心线。
图3-80 旋转切除的几种效果
(3)选择菜单栏中的“插入”→“切除”→“旋转”命令,或者单击“特征”选项卡上的“旋转切除”按钮
。
(4)弹出“切除-旋转”属性管理器,同时在右侧的图形区中显示生成的旋转切除特征,如图3-82所示。
图3-81 打开的文件实体
图3-82 “切除-旋转”属性管理器
(5)在“方向1”选项组的下拉列表框中选择旋转类型(单向、两侧对称、双向)。其含义同“旋转凸台/基体”属性管理器中的旋转类型。
(6)在“角度”
文本框中输入旋转角度。
(7)如果准备生成薄壁旋转,则勾选“薄壁特征”复选框,设定薄壁旋转参数。
(8)单击“确定”按钮
,完成旋转切除特征的创建。
本例绘制油标尺,如图3-83所示。
【思路分析】
绘制草图,通过旋转创建油标尺。绘制油标尺的流程图如图3-84所示。
【绘制步骤】
(1)新建文件。启动SolidWorks,单击“标准”选项卡上的“新建”按钮
,在打开的“新建SOLIDWORKS文件”对话框中,单击“零件”按钮
,单击“确定”按钮
,创建一个新的零件文件。
图3-83 油标尺
图3-84 绘制油标尺的流程图
(2)新建草图。在左侧的FeatureManager设计树中选择“上视基准面”作为绘图基准面。单击“草图”选项卡上的“草图绘制”按钮
,新建一张草图。
(3)绘制草图。单击“草图”选项卡上的“中心线”按钮
、“直线”按钮
和“三点圆弧”按钮
,绘制草图。
(4)标注尺寸。单击“草图”选项卡上的“智能尺寸”按钮
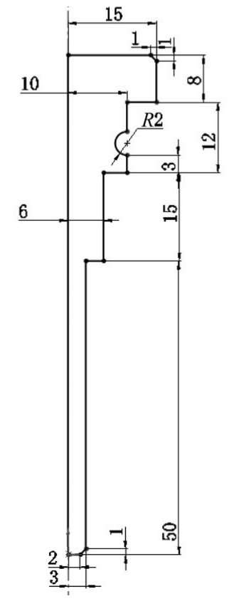
,为草图标注尺寸,如图3-85所示。
(5)旋转实体。单击“特征”选项卡上的“旋转凸台/基体”按钮
,弹出如图 3-86 所示的“旋转”属性管理器。设定旋转的终止条件为“给定深度”,输入旋转角度为360°,保持其他选项的系统默认值不变。单击属性管理器中的“确定”按钮
。结果如图3-87所示。
图3-85 绘制草图
图3-86 “旋转”属性管理器
图3-87 旋转实体