



在进行装饰设计时,常常要绘制家具、洁具和橱具等各种设施,以便更能真实和形象地表示装修的效果。本章将论述室内装饰及其装饰图设计中一些常见的家具和电器设施的绘制方法,所讲解的实例涵盖了在室内设计中经常使用的家具和电器等图形,如沙发、双人床、办公桌、洗脸盆和燃气灶等。
制作思路
家具图形各式各样,类型繁多。所有的家具绘制,要根据其造型特点,如对称性等,逐步完成。例如,对沙发造型,先绘制其中单个沙发造型,再按相同方法绘制多座的沙发;而在单个沙发绘制中,先绘制沙发面造型,接着绘制两侧扶手造型,然后绘制沙发背部扶手轮廓直至完成。其他的家具按类似方法进行绘制。
(1)本小节实例将详细介绍如图 3-1 所示沙发的绘制方法与操作技巧,从中学习使用AutoCAD相关功能命令绘制室内装饰家具的使用方法。
图3-1 沙发
(2)选择菜单栏中的“绘图”→“直线”命令,或者单击“绘图”工具栏中的“直线”
按钮,绘制其中单个沙发造型,如图3-2所示。
图3-2 创建沙发面的4边
使用直线命令绘制沙发面的4边,注意其相对位置和长度的关系。
(3)选择菜单栏中的“绘图”→“圆弧”→“起点、圆心、端点”命令,或者单击“绘图”工具栏中的“圆弧”
按钮,将沙发面的4边连接起来,得到完整的沙发面,如图3-3所示。
(4)单击“绘图”工具栏中的“直线”
按钮,绘制侧面扶手,如图3-4所示。
图3-3 连接边角
图3-4 绘制扶手
(5)单击“绘图”工具栏中的“圆弧”
按钮,绘制侧面扶手弧边线,如图3-5所示。
(6)选择菜单栏中的“修改”→“镜像”命令,或者单击“修改”工具栏中的“镜像”
按钮,镜像绘制另外一个方向的扶手轮廓,如图3-6所示。
图3-5 绘制扶手弧边线
图3-6 创建另外一侧扶手
(7)单击“绘图”工具栏中的“圆弧”
按钮,绘制沙发背部扶手轮廓。调用“镜像”命令镜像扶手轮廓,如图3-7所示。
(8)单击“绘图”工具栏中的“圆弧”
按钮,继续完善沙发背部扶手轮廓。调用“镜像”命令镜像背部扶手轮廓,如图3-8所示。
图3-7 创建背部扶手
图3-8 完善背部扶手
(9)偏移直线。选择菜单栏中的“修改”→“偏移”
命令,对沙发面造型进行修改,使其更为形象,如图3-9所示。
(10)选择菜单栏中的“绘图”→“点”→“单点”命令,或者单击“绘图”工具栏中的“点”
按钮,细化沙发面造型,如图3-10所示。
图3-9 修改沙发面
图3-10 细化沙发面
(11)单击“绘图”工具栏中的“点”
按钮,进一步细化沙发面造型,使其更为形象,如图3-11所示。
(12)采用相同的方法,绘制3人座的沙发造型,如图3-12所示。
图3-11 完善沙发面
图3-12 绘制3人座沙发
(13)单击“绘图”工具栏中的“直线”
按钮和“修改”工具栏中的“镜像”
按钮,绘制扶手造型,如图3-13所示。
(14)单击“绘图”工具栏中的“圆弧”
按钮,绘制3人座沙发背部造型,如图3-14所示。
图3-13 绘制3人座沙发扶手
图3-14 绘制3人座沙发背部造型
(15)单击“绘图”工具栏中的“点”
按钮,对3人座沙发面造型进行细化,如图3-15所示。
(16)选择菜单栏中的“修改”→“移动”命令,或者单击“修改”工具栏中的“移动”
按钮,调整两个沙发造型的位置,如图3-16所示。
图3-15 细化3人座沙发面
图3-16 调整沙发位置
(17)单击“修改”工具栏中的“镜像”
按钮,对单个沙发进行镜像,得到沙发组造型,如图3-17所示。
(18)选择菜单栏中的“绘图”→“椭圆”命令,或者单击“绘图”工具栏中的“椭圆”
按钮,绘制1个椭圆形建立椭圆形的茶几造型,如图3-18所示。
图3-17 沙发组
图3-18 建立椭圆型茶几
(19)选择菜单栏中的“绘图”→“图案填充”命令,或者单击“绘图”工具栏中的“图案填充”
按钮,对茶几进行图案填充,如图3-19所示。
(20)选择菜单栏中的“绘图”→“正多边形”命令,或者单击“绘图”工具栏中的“正多边形”
按钮,绘制沙发之间的桌面灯造型,如图3-20所示。
图3-19 填充茶几图案
图3-20 绘制一个正多边形
(21)选择菜单栏中的“绘图”→“圆”→“圆心、半径”命令,或者单击“绘图”工具栏中的“圆”
按钮,绘制2个大小和圆心位置不同的圆形,如图3-21所示。
(22)单击“绘图”工具栏中的“直线”
按钮,绘制随机斜线形成灯罩效果,如图3-22所示。
图3-21 绘制2个圆形
图3-22 创建灯罩
(23)单击“修改”工具栏中的“镜像”
按钮,进行镜像得到2个沙发桌面灯造型,如图3-23所示。
(24)选择菜单栏中的“视图”→“缩放”→“实时”命令,或者单击“标准”工具栏中的“实时缩放”
按钮,完成整个沙发的绘制,得到如图3-24所示的图形。
图3-23 创建另外一侧造型
图3-24 沙发的CAD图形
(1)本小节实例将详细介绍如图3-25所示室内居室装饰设计中常见的餐桌及其椅子的绘制方法与技巧。
(2)选择菜单栏中的“绘图”→“多段线”命令,或者单击“绘图”工具栏中的“多段线”
按钮,绘制长方形桌面,如图3-26所示。
图3-25 餐桌与椅子
图3-26 绘制桌面
(3)单击“绘图”工具栏中的“圆弧”
按钮,绘制椅子造型前端弧线的一半,如图3-27所示。
(4)单击“绘图”工具栏中的“矩形”
和“直线”
按钮,绘制椅子扶手部分造型,即弧线上的矩形,如图3-28所示。
图3-27 绘制前端弧线
图3-28 绘制椅子扶手部分
(5)单击“绘图”工具栏中的“多段线”
按钮,根据扶手的大体位置绘制稍大的近似矩形,如图3-29所示。
(6)单击“绘图”工具栏中的“圆弧”
按钮和“修改”工具栏中的“偏移”
按钮,绘制椅子弧线靠背造型,如图3-30所示。
图3-29 绘制矩形
图3-30 绘制椅子弧线靠背
(7)单击“绘图”工具栏中的“直线”
按钮和“修改”工具栏中的“偏移”
按钮,绘制椅子背部造型,如图3-31所示。
(8)为使绘制更为准确,单击“绘图”工具栏中的“圆弧”
按钮,在靠背造型内侧绘制弧线造型,如图3-32所示。
图3-31 绘制椅子背部造型
图3-32 绘制内侧弧线
(9)按椅子环形扶手及其靠背造型绘制另外一段图形,构成椅子背部造型。单击“修改”工具栏中的“镜像”
按钮,通过镜像得到整个椅子造型,如图3-33所示。
(10)单击“修改”工具栏中的“移动”
按钮,调整椅子与餐桌的位置,如图3-34所示。
图3-33 得到椅子造型
图3-34 调整椅子与餐桌的位置
(11)调用“镜像”命令可以得到餐桌另外一端对称的椅子,如图3-35所示。
(12)选择菜单栏中的“修改”→“复制”命令,或者单击“修改”工具栏中的“复制”
按钮,复制一个椅子造型,如图3-36所示。
图3-35 得到对称椅子
图3-36 复制椅子
(13)选择菜单栏中的“修改”→“旋转”命令,或者单击“修改”工具栏中的“旋转”
按钮,将该复制的椅子旋转90°,如图3-37所示。
(14)单击“修改”工具栏中的“复制”
按钮,通过复制得到餐桌一侧的椅子造型,如图3-38所示。
图3-37 旋转椅子
图3-38 复制得到侧面椅子
(15)单击“修改”工具栏中的“镜像”
按钮,餐桌另外一侧的椅子造型通过镜像轻松得到,整个餐桌与椅子造型绘制完成,如图3-39所示。
图3-39 完整餐桌与椅子的造型
(1)本小节实例将详细介绍如图3-40所示室内装饰设计中常用的双人床及其床头柜的绘制方法与相关技巧。
(2)单击“绘图”工具栏中的“矩形”
按钮,绘制双人床的外部轮廓线,如图3-41所示。
图3-40 双人床及其床头柜平面图
图3-41 绘制轮廓
双人床的大小一般为2000×1800,单人床的大小一般为2000×1000。
(3)单击“绘图”工具栏中的“直线”
按钮,绘制床单造型,如图3-42所示。
(4)单击“绘图”工具栏中的“直线”
按钮,再单击“修改”工具栏中的“圆角”
按钮,进一步勾画床单造型,如图3-43所示。
图3-42 绘制床单
图3-43 进一步勾画床单造型
(5)单击“修改”工具栏中的“倒角”
按钮和“绘图”工具栏中的“圆弧”
按钮,对床单细部进行加工,使其显得自然、形象一些,如图3-44所示。
(6)选择菜单栏中的“绘图”→“样条曲线”命令,或者单击“绘图”工具栏中的“样条曲线”
按钮,建立枕头外轮廓造型,如图3-45所示。
图3-44 加工床单细部造型
图3-45 绘制枕头外轮廓造型
(7)单击“绘图”工具栏中的“圆弧”
按钮,绘制枕头其他位置线段,如图3-46所示。
(8)单击“修改”工具栏中的“复制”
按钮,复制得到另外一个枕头造型,如图3-47所示。
图3-46 勾画枕头折线
图3-47 复制枕头造型
可以使用 ARC 功能命令来绘制枕头造型,使用弧线功能命令 ARC、直线等勾画枕头折线,其效果更为逼真。
(9)单击“绘图”工具栏中的“圆弧”
按钮,在床尾部建立床单局部的造型,如图3-48所示。
(10)选择菜单栏中的“修改”→“偏移”
命令,通过偏移得到一组平行线造型,如图3-49所示。
图3-48 建立床单尾部造型
图3-49 偏移得到平行线
(11)单击“绘图”工具栏中的“圆弧”
按钮和“直线”
按钮,绘制一个靠垫造型,如图3-50所示。
(12)单击“绘图”工具栏中的“直线”
按钮,勾画靠垫内部线条造型,如图3-51所示。
图3-50 勾画靠垫造型
图3-51 勾画靠垫内部线条
(13)单击“绘图”工具栏中的“正多边形”
按钮,绘制床头灯造型。先绘制一个正方形,如图3-52所示。
(14)单击“绘图”工具栏中的“圆”
按钮,在正方形上绘制两个大小和圆心位置不同的圆形,如图3-53所示。
图3-52 绘制正方形
图3-53 绘制2个圆形
(15)单击“绘图”工具栏中的“直线”
按钮,绘制随机斜线形成灯罩效果,如图3-54所示。
(16)单击“修改”工具栏中的“镜像”
按钮,进行镜像得到2个床头灯造型,如图3-55所示。
图3-54 绘制灯罩
图3-55 镜像得到2个床头灯造型
(17)缩放视图,完成双人床及其床头灯平面造型设计,执行SAVE命令保存图形,如图3-56所示。
图3-56 双人床平面造型
(1)本小节实例将详细介绍如图3-57所示办公桌及其隔断的绘制方法与相关技巧。
(2)根据办公桌及其隔断的图形整体情况,先绘制办公桌。单击“绘图”工具栏中的“矩形”
按钮,绘制矩形办公桌桌面,如图3-58所示。
图3-57 办公桌及其隔断
图3-58 绘制办公桌
(3)单击“绘图”工具栏中的“多段线”
按钮,绘制侧面桌面,如图3-59所示。
(4)单击“绘图”工具栏中的“直线”
按钮,绘制办公椅的四面轮廓,如图3-60所示。
图3-59 绘制侧面桌面
图3-60 绘制办公椅
(5)单击“修改”工具栏中的“圆角”
按钮,对办公椅进行倒圆角,如图3-61所示。
(6)单击“绘图”工具栏中的“圆弧”
按钮和“修改”工具栏中的“偏移”
按钮,在椅子后侧绘制轮廓局部造型,如图3-62所示。
图3-61 倒圆角
图3-62 绘制局部造型
(7)单击“绘图”工具栏中的“圆弧”
按钮,对靠背两端进行圆滑处理,如图3-63所示。
(8)单击“绘图”工具栏中的“直线”
按钮和“圆弧”
按钮,绘制办公椅侧面扶手,如图3-64所示。
图3-63 对靠背两端进行圆滑
图3-64 绘制办公椅侧面扶手
(9)单击“修改”工具栏中的“镜像”
按钮,得到另外一侧的扶手,完成办公椅绘制。如图3-65所示。
(10)单击“绘图”工具栏中的“多段线”
按钮和“直线”
按钮,绘制侧面桌面的柜子造型,如图3-66所示。
图3-65 完成办公椅绘制
图3-66 绘制柜子造型
(11)单击“绘图”工具栏中的“多段线”
按钮,绘制办公桌上的设备,如计算机等,如图3-67所示。
(12)单击“绘图”工具栏中的“矩形”
按钮,勾画键盘轮廓造型,办公桌上的设备仅作轮廓近似勾画,如图3-68所示。
图3-67 勾画计算机轮廓
图3-68 勾画键盘轮廓
(13)单击“绘图”工具栏中的“正多边形”
按钮,建立办公电话造型轮廓,如图3-69所示。
(14)单击“绘图”工具栏中的“多段线”
按钮,绘制电话局部大体轮廓造型,如图3-70所示。
图3-69 绘制电话轮廓
图3-70 绘制局部轮廓
(15)单击“绘图”工具栏中的“圆”
按钮,绘制两个相同大小的圆形,如图3-71所示。
(16)单击“绘图”工具栏中的“直线”
按钮和“修改”工具栏中的“偏移”
与“修剪”
按钮,在2个圆形之间绘制平行线,进行剪切后形成话筒形状,如图3-72所示。
图3-71 绘制2个圆形
图3-72 绘制话筒
(17)单击“绘图”工具栏中的“直线”
按钮和“修改”工具栏中的“复制”
按钮,绘制话筒与电话机连接线,如图3-73所示。
(18)办公桌部分图形绘制完成,如图3-74所示。
图3-73 绘制话筒与电话机的连接线
图3-74 完成办公桌绘制
(19)单击“绘图”工具栏中的“直线”
按钮和“修改”工具栏中的“偏移”
按钮,绘制办公桌的隔断轮廓线,如图3-75所示。继续绘制隔断,形成一个标准办公桌单元,如图3-76所示。
图3-75 绘制隔断
图3-76 一个办公桌单元
左右相同的办公桌单元造型可以通过镜像得到,而前后相同的办公桌单元造型可以通过复制得到。
(20)单击“修改”工具栏中的“镜像”
按钮,得到对称的2个办公桌单元图形,如图3-77所示。
(21)单击“修改”工具栏中的“复制”
按钮,得到相同方向排列的办公桌单元图形,如图3-78所示。
图3-77 镜像办公桌单元
图3-78 复制图形
制作思路
所绘制的电器家具,是日常生活中常见的电冰箱和洗衣机造型。根据电冰箱造型的特点,先勾画冰箱下部轮廓造型;接着按照与下部轮廓一致的比例,绘制上部轮廓;然后绘制冰箱的细部造型,如电子智能按钮显示板造型等。以此类推,根据洗衣机造型的特点,先建立其外观轮廓造型;接着绘制顶部操作面板轮廓;然后在洗衣机下部绘制底部轮廓造型。
(1)本小节将详细介绍如图3-79所示的电冰箱的绘制方法,电冰箱为立面造型。
(2)单击“绘图”工具栏中的“矩形”
按钮,勾画电冰箱下部轮廓造型,如图3-80所示。
图3-79 电冰箱
图3-80 勾画冰箱下部轮廓
(3)单击“绘图”工具栏中的“多段线”
按钮,以与下部轮廓一致的比例,绘制上部轮廓,如图3-81所示。
(4)单击“绘图”工具栏中的“直线”
按钮,在顶部绘制电冰箱显示板区域轮廓,如图3-82所示。
图3-81 绘制上部轮廓
图3-82 绘制显示板区域
(5)单击“绘图”工具栏中的“多段线”
按钮、“圆”
按钮和“修改”工具栏中的“复制”
按钮,绘制电冰箱的电子智能按钮轮廓,如图3-83所示。
(6)单击“绘图”工具栏中的“直线”
按钮,在中部位置绘制下部电冰箱门的凹槽拉手轮廓,如图3-84所示。
图3-83 绘制电子智能按钮
图3-84 绘制下部凹槽拉手轮廓
(7)单击“修改”工具栏中的“镜像”
和“移动”
按钮,上部电冰箱门的轮廓绘制,通过镜像并移动其位置得到,如图3-85所示。
(8)移动视图至电冰箱底部,单击“绘图”工具栏中的“直线”
按钮,绘制底部轮廓造型,如图3-86所示。
图3-85 绘制上部拉手轮廓
图3-86 绘制底部造型
(9)单击“绘图”工具栏中的“多段线”
按钮和“直线”
按钮,绘制电冰箱底部滑动轮,如图3-87所示。
(10)单击“修改”工具栏中的“复制”
按钮,复制得到另外对称的滑动轮,如图3-88所示。
图3-87 绘制底部滑动轮
图3-88 复制滑动轮
(11)完成电冰箱图形的绘制,如图3-89所示。
图3-89 电冰箱绘制完成
(1)本小节将详细介绍如图3-90所示的滚筒洗衣机的绘制方法。
(2)单击“绘图”工具栏中的“多段线”
按钮,绘制洗衣机的外观轮廓,如图3-91所示。
图3-90 洗衣机
图3-91 绘制外观轮廓
因该洗衣机的外观轮廓为矩形,所以还可以使用直线、RECTANG功能命令来绘制。
(3)单击“绘图”工具栏中的“直线”
按钮和“修改”工具栏中的“偏移”
按钮,绘制顶部操作面板轮廓,如图3-92所示。
(4)单击“绘图”工具栏中的“直线”
按钮,绘制放洗衣粉的盒子轮廓,如图3-93所示。
图3-92 绘制顶部操作面板轮廓
图3-93 绘制洗衣粉盒子
(5)单击“绘图”工具栏中的“矩形”
按钮,在另外一侧绘制洗衣机操作按钮区域轮廓,如图3-94所示。
(6)单击“绘图”工具栏中的“多段线”
按钮,在按钮区域轮廓内绘制显示区域,如图3-95所示。
图3-94 绘制洗衣机操作按钮区域轮廓
图3-95 绘制显示区域
(7)单击“绘图”工具栏中的“圆”
按钮和“修改”工具栏中的“复制”
按钮,绘制洗衣机的功能命令圆形按钮造型,如图3-96所示。
(8)单击“绘图”工具栏中的“直线”
按钮,在洗衣机下部绘制底部轮廓造型,如图3-97所示。
图3-96 绘制圆形按钮
图3-97 绘制底部轮廊造型
(9)单击“绘图”工具栏中的“多段线”
按钮,绘制洗衣机的滑动轮轮廓,如图3-98所示。
(10)单击“修改”工具栏中的“复制”
按钮,得到洗衣机的另外一个滑动轮造型,如图3-99所示。
图3-98 绘制滑动轮轮廓
图3-99 复制滑动轮
因为两侧的造型左右对称,所以还可以使用镜像MIRROR功能命令来完成相同的功能效果。
(11)单击“绘图”工具栏中的“圆”
按钮和“修改”工具栏中的“偏移”
按钮,在洗衣机中部位置绘制两个同心圆,形成洗衣机的滚筒图形,如图3-100所示。
(12)缩放视图得到整个洗衣机的图形,洗衣机造型绘制完成,如图3-101所示。
图3-100 绘制滚筒
图3-101 完成洗衣机绘制
(1)本小节实例将讲解如图3-102所示常见的17寸液晶显示器的绘制方法与技巧。
(2)单击“绘图”工具栏中的“矩形”
按钮,绘制显示器屏幕外轮廓,如图3-103所示。
图3-102 液晶显示器
图3-103 绘制显示器屏幕外轮廓
(3)单击“修改”工具栏中的“偏移”
按钮,创建屏幕内侧显示屏区域的轮廓线,如图3-104所示。
(4)单击“绘图”工具栏中的“直线”
按钮,将内侧显示屏区域的轮廓线的交角处连接起来,如图3-105所示。
图3-104 绘制屏幕内侧矩形
图3-105 连接交角处
(5)单击“绘图”工具栏中的“多段线”
按钮,绘制显示器矩形底座,如图3-106所示。
(6)单击“绘图”工具栏中的“圆弧”
按钮,绘制底座的弧线造型,如图3-107所示。
图3-106 绘制显示器矩形底座
图3-107 绘制底座弧线
(7)单击“绘图”工具栏中的“直线”
按钮和“修改”工具栏中的“镜像”
按钮,绘制底座与显示屏之间的连接线造型,如图3-108所示。
(8)单击“绘图”工具栏中的“圆”
按钮和“修改”工具栏中的“复制”
按钮,创建显示屏由多个大小不同的圆形构成的调节按钮,显示器的调节按钮仅为示意造型,如图3-109所示。
图3-108 绘制底座与显示屏的连接线
图3-109 创建调节按钮
(9)单击“绘图”工具栏中的“圆”
按钮和“修改”工具栏中的“偏移”
按钮,在显示屏的右下角绘制电源开关按钮,先绘制2个同心圆,如图3-110所示。
(10)单击“绘图”工具栏中的“多段线”
按钮,绘制开关按钮的矩形造型,如图3-111所示。
图3-110 绘制圆形开关
图3-111 绘制矩形造型按钮
(11)完成整个液晶显示器的绘制,如图3-112所示。
图3-112 完成显示器绘制
制作思路
根据洗脸盆造型特点,先绘制洗脸盆侧边轮廓线造型,再绘制内侧底部轮廓线,接着建立洗脸盆的水龙头外轮廓造型,然后勾画一些细部造型,如按钮、开关。而对于燃气灶造型,先创建燃气灶外侧矩形轮廓线,然后绘制内部支架造型轮廓线。其他一些类似家具设施,按照相同方法绘制。
(1)本小节介绍如图3-113所示的洗脸盆绘制方法与技巧。
(2)单击“绘图”工具栏中的“直线”
按钮,绘制3条长短不等的洗脸盆轮廓线,如图3-114所示。
图3-113 洗脸盆
图3-114 创建轮廓线
各个轮廓线相对位置和长度的关系。
(3)单击“修改”工具栏中的“圆角”
按钮,对侧边轮廓线与底边线进行倒圆角,构成洗脸盆的侧边轮廓线,如图3-115所示。
(4)单击“绘图”工具栏中的“圆弧”
按钮和“修改”工具栏中的“镜像”
按钮,绘制洗脸盆前端轮廓线,如图3-116所示。
图3-115 倒圆角
图3-116 绘制前端轮廓线
(5)单击“修改”工具栏中的“偏移”
按钮,对前端轮廓线进行偏移,得到内侧的侧边轮廓线,如图3-117所示。
(6)单击“修改”工具栏中的“偏移”
按钮,其他位置的内侧底部轮廓线同样可以采用偏移方法得到,如图3-118所示。
图3-117 偏移前端轮廓线
图3-118 偏移内侧轮廓线
(7)单击“绘图”工具栏中的“圆弧”
按钮和“修改”工具栏中的“镜像”
按钮,在上角内侧两边绘制2条不同方向的弧线,如图3-119所示。
(8)单击“绘图”工具栏中的“圆弧”
按钮,连接绘制的2条弧线形成洗脸盆大轮廓,如图3-120所示。
图3-119 绘制上侧弧线
图3-120 连接弧线
(9)单击“绘图”工具栏中的“圆”
按钮,在内轮廓线绘制一个小圆形,作为水龙头外轮廓造型,如图3-121所示。
(10)单击“绘图”工具栏中的“多段线”
按钮和“直线”
按钮,绘制洗脸盆的水龙头开关旋钮外轮廓造型,如图3-122所示。
图3-121 绘制小圆形
图3-122 绘制水龙头开关旋钮外轮廓
(11)单击“修改”工具栏中的“镜像”
按钮,得到另外一侧的旋钮开关轮廓,如图3-123所示。
(12)单击“绘图”工具栏中的“圆”
按钮和“圆弧”
按钮,在洗脸盆的水龙头外轮廓造型上侧,勾画细化的按钮开关造型,如图3-124所示。
图3-123 镜像旋钮轮廓
图3-124 细化的按钮造型
洗脸盆的水龙头旋钮左右两个开关分别为冷、热水开关。勾画细化的按钮开关造型,根据形状可以通过CIRCLE和ARC等命令完成。
(13)单击“绘图”工具栏中的“圆弧”
按钮和“直线”
按钮,绘制水龙头出水嘴造型,如图3-125所示。
(14)单击“修改”工具栏中的“镜像”
按钮,对出水嘴轮廓线进行镜像得到对称图形,如图3-126所示。
图3-125 绘制出水嘴
图3-126 镜像轮廓线
(15)单击“修改”工具栏中的“修剪”
按钮,对出水嘴内侧的图形进行修剪,如图3-127所示。
(16)在出水嘴前面绘制弧线,构成出水嘴前端造型轮廓,如图3-128所示。
图3-127 修剪出水嘴内侧图形线
图3-128 绘制前端弧线
(17)缩放视图,单击“绘图”工具栏中的“圆弧”
按钮和“修改”工具栏中的“镜像”
按钮,在出水嘴前侧面绘制2条弧线,如图3-129所示。
(18)单击“绘图”工具栏中的“圆”
按钮和“修改”工具栏中的“偏移”
按钮,在出水嘴前面绘制2个同心圆,作为洗脸盆的排水口造型轮廓,如图3-130所示。
图3-129 绘制侧面端弧线
图3-130 绘制排水口
(19)选择菜单栏中的“视图”→“平移”→“实时”命令,或者单击“标准”工具栏中的“实时平移”
按钮,在洗脸盆上部两侧绘制其细部造型,如图3-131所示。
(20)单击“修改”工具栏中的“镜像”
按钮,另外一侧相同造型通过镜像得到,如图3-132所示。
图3-131 绘制细部造型
图3-132 得到另外一侧图形
(21)完成洗脸盆的平面图绘制,缩放视图观察其效果,如图3-133所示。
图3-133 完成洗脸盆的平面图绘制
(1)本小节将介绍如图3-134所示的燃气灶的绘制方法与技巧。
(2)单击“绘图”工具栏中的“矩形”
按钮,创建燃气灶外侧矩形轮廓线,如图3-135所示。
图3-134 燃气灶
图3-135 创建燃气灶外轮廓
(3)单击“绘图”工具栏中的“多段线”
按钮,根据燃气灶的布局,在外侧矩形轮廓线内部绘制一个稍小的矩形,如图3-136所示。
(4)单击“绘图”工具栏中的“直线”
按钮和“修改”工具栏中的“镜像”
按钮,在中部位置绘制两条直线,如图3-137所示。
图3-136 绘制内侧矩形
图3-137 绘制两条直线
内部稍小矩形的前面边与外轮廓边的距离预留稍大些。
(5)单击“绘图”工具栏中的“圆”
按钮,建立1个圆形作为圆形支架造型轮廓线,如图3-138所示。
(6)单击“修改”工具栏中的“偏移”
按钮,得到多个大小不同的同心圆,如图3-139所示。
图3-138 建立1个圆形
图3-139 偏移得到多个同心圆
(7)单击“绘图”工具栏中的“多段线”
按钮,在同心圆上部绘制1个矩形作为支架支撑骨架,如图3-140所示。
(8)选择菜单栏中的“修改”→“阵列”→“圆周阵列”命令,或者单击“修改”工具栏中的“圆周阵列”
按钮,进行圆周阵列,得到整个支架中的支撑骨架,如图3-141所示。命令行提示与操作如下:
(9)单击“修改”工具栏中的“镜像”
按钮,通过镜像支架,得到另外一侧相同的图形,如图3-142所示。
(10)单击“绘图”工具栏中的“圆”
按钮,建立燃气灶点火开关按钮部分图形,如图3-143所示。
图3-140 绘制支架骨架
图3-141 阵列支撑骨架
图3-142 镜像支架
图3-143 创建点火开关按钮部分图形
(11)单击“绘图”工具栏中的“多段线”
按钮,创建燃气灶点火开关按钮中间矩形轮廓线,如图3-144所示。
(12)单击“修改”工具栏中的“复制”
按钮和“镜像”
按钮,得到另外一侧的按钮开关,如图3-145所示。
图3-144 创建点火开关按钮中间矩形轮廓线
图3-145 复制开关
(13)完成燃气灶造型绘制,缩放视图进行观察,如图3-146所示。
图3-146 完成燃气灶造型绘制
绘制思路
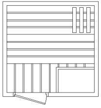
在当前城市商用建筑室内设计过程中,有大量的室内休闲娱乐设施需要设计和布置。本节将简要讲述这些休闲娱乐设施的绘制过程。设计过程中,主要用到各种基本的绘图和编辑命令。
“SAUNA”(桑拿)在芬兰语中是指“一个没有窗子的小木屋”,如今这个词已随着那种蒸汽腾腾的浴法走向世界,成为唯一进入世界语汇的芬兰语词组。芬兰是“芬兰浴”的故乡,据说两千年前,有一户人家正烧火做饭时,突然下起了大雨,雨水从屋顶漏下来,滴在锅边被火烧得发烫的石块上,雨水不断化为缕缕蒸汽,使房屋里形成了一个“热气坑”,让人觉得很舒服、惬意,受此启发,人们就发明了桑拿浴法。
“桑拿浴”的房间可以设计成各种形状:方形、菱形、八角形等。下面以方形房间为例进行说明。
(1)首先绘制一个边长为“1500×1500”的矩形,如图3-147所示。单击“修改”工具栏中的“偏移”
按钮,将矩形向内偏移“60”,如图3-148所示。
图3-147 绘制矩形
图3-148 偏移矩形
(2)选择菜单栏中的“插入”→“块”命令,或者单击“绘图”工具栏中的“插入块”
按钮,在矩形下侧边缘插入门图块,并设置好插入的比例和插入点,门图块如图3-149所示,插入后如图3-150所示。
图3-149 门图块
图3-150 插入门图块
(3)在矩形内部三等分点的位置,绘制水平直线,将矩形内部等分为三部分,如图3-151所示。在最上部分绘制 3 个边长为“60×400”的矩形,作为桑拿房中的小座椅,如图 3-152所示。
图3-151 绘制等分直线
图3-152 绘制小座椅
(4)选择菜单栏中的“格式”→“多线样式”命令,新建多线样式“样式一”,将多线按如图3-153所示进行设置。单击新建的多线样式,在图中绘制地板的分割线,如图3-154所示。
图3-153 设置多线样式
图3-154 绘制地板线
(5)由于小座椅在地板的上部,单击“修改”工具栏中的“修剪”
按钮,将座椅所覆盖的地板线删除,如图3-155所示。用同样的方法,绘制其他区域的地板线,如图3-156所示。
图3-155 删除多余直线
图3-156 绘制其他地板线
(6)芬兰浴中重要的设施是炭炉,首先,在图的右下角,选择矩形命令绘制边长为“600×400”的矩形,如图3-157所示。单击“修改”工具栏中的“修剪”
按钮,将矩形内部的线段删除,如图3-158所示。
图3-157 绘制矩形
图3-158 删除多余线段
(7)再次单击“修改”工具栏中的“偏移”
按钮,将矩形向内侧偏移“30”,如图3-159所示。单击“修改”工具栏中的“分解”
按钮,将内部矩形分解,并修改直线,如图3-160所示。
图3-159 偏移矩形
图3-160 修改直线
(8)单击“绘图”工具栏中的“直线”
按钮,绘制矩形内部的炭炉,具体细节与前面绘制过程类似,不再赘述,如图3-161所示。插入到图中,如图3-162所示,“芬兰浴”图块绘制完成。
图3-161 炭炉
图3-162 绘制完成的“芬兰浴”图块
更衣柜是洗浴房中不可缺少的设施,可以有木制衣柜和铁制衣柜等。
(1)单击“绘图”工具栏中的“矩形”
按钮,在图中绘制边长为“2000×2200”的矩形,如图3-163所示。单击“绘图”工具栏中的“直线”
按钮,在距离底边80的位置绘制水平直线,如图3-164所示。
图3-163 绘制矩形
图3-164 绘制水平直线
(2)单击“修改”工具栏中的“复制”
按钮,将直线向上复制2次,间隔分别为“708”和“706”,如图3-165所示。在命令行中输入“divide”命令,将最下部的水平直线等分为4份,再单击“绘图”工具栏中的“直线”
按钮,绘制垂直直线,如图3-166所示。
图3-165 复制直线
图3-166 绘制等分线
(3)单击“绘图”工具栏中的“矩形”
按钮,在左上角的方格中,绘制边长为“380× 586”的矩形,如图3-167所示。单击“修改”工具栏中的“偏移”
按钮,将矩形向内侧偏移“10”,如图3-168所示。
图3-167 绘制矩形
图3-168 偏移矩形
(4)单击“绘图”工具栏中的“图案填充”
按钮,按如图3-169所示设置填充图案。单击“添加:拾取点”
按钮,在内部矩形单击鼠标,单击“确定”按钮,进行填充,如图3-170所示。
图3-169 填充图案设置
图3-170 填充矩形
(5)单击“修改”工具栏中的“矩形阵列”
按钮,进行阵列,命令行提示与操作如下:
得到如图3-171所示的阵列图形。
图3-171 阵列图形
(6)单击“修改”工具栏中的“复制”
按钮,复制图形,如图3-172所示。
(7)单击“绘图”工具栏中的“圆”
按钮,在柜门的角部绘制直径为“30”的圆,作为开门和关门的按钮,如图3-173所示。在图中绘制柜门编号和尺寸标注,如图3-174所示。最后将图形保存为更衣柜图块,以便调用。
图3-172 复制图形
图3-173 绘制开关
图3-174 更衣柜图块
(1)首先单击“绘图”工具栏中的“矩形”
按钮,在图中绘制边长为“1250×160”的矩形,如图3-175所示。
图3-175 绘制矩形
(2)单击“绘图”工具栏中的“矩形”
按钮,在图中绘制边长为“30×480”的矩形,并单击“修改”工具栏中的“移动”
按钮、“复制”
按钮,打开“捕捉到中点”按钮
,将其复制到图3-175所示矩形的两端,如图3-176所示。
图3-176 绘制并复制矩形
(3)单击“绘图”工具栏中的“矩形”
按钮,在矩形中段,等距离绘制4个边长为“40× 480”的矩形,如图3-177所示。
图3-177 复制矩形
(4)单击“绘图”工具栏中的“矩形”
按钮,在中部矩形的两端分别绘制边长为“250×30”、“200×30”、“150×20”的矩形,如图3-178所示。
图3-178 绘制杠铃盘
(5)单击“修改”工具栏中的“镜像”
按钮,将杠铃盘镜像到另外一侧,再单击“修改”工具栏中的“复制”
按钮,将其复制到其他杠铃杆上,如图3-179所示。
图3-179 复制杠铃盘
(6)最后删除多余覆盖的直线,如图3-180所示,将图形保存为健身器图块,以便调用。
图3-180 健身器图块
(1)单击“绘图”工具栏中的“矩形”
按钮,在图中绘制边长为“2210×1040”的矩形,如图3-181所示。
图3-181 绘制矩形
(2)单击“修改”工具栏中的“偏移”
按钮,将矩形向内侧偏移“100”,如图3-182所示。单击“绘图”工具栏中的“矩形”
按钮,以内部矩形左下角为起点,绘制边长为“1910× 840”的矩形,并删除内部的矩形,如图3-183所示。
图3-182 偏移矩形
图3-183 绘制新矩形
(3)单击“修改”工具栏中的“偏移”
按钮,将内部的矩形向内偏移“20”,如图3-184所示。单击“修改”工具栏中的“圆角”
按钮,将所有矩形的角进行倒圆角,半径为“60”,如图3-185所示。
图3-184 偏移内部矩形
图3-185 修改倒圆角
(4)单击“绘图”工具栏中的“圆”
按钮,在内部矩形的左上角,绘制半径为“30”的圆,作为排气孔,并在外部矩形的上侧边缘绘制椭圆,如图 3-186 所示。单击“绘图”工具栏中的“图案填充”
按钮,按如图3-187所示进行设置。
图3-186 绘制圆形
图3-187 设置填充图案
(5)单击“添加:拾取点”
按钮,在内部矩形内部单击鼠标左键,按回车键确认,单击“确定”按钮,填充如图3-188所示。将图形保存为按摩床图块,以便调用。
图3-188 按摩床图块