



本章将简要论述室内装饰及其装饰图设计的一些基本知识,包括室内设计的内容、室内设计的特点及室内设计的创意与思路等,同时还介绍了室内设计的不同绘图方法。此外,对国内外室内设计的方法与发展进行了相关的论述。
室内装饰是现代工作生活空间环境中比较重要的内容,也是与建筑设计密不可分的组成部分。了解室内装饰的特点和要求,对学习使用AutoCAD进行装饰设计是十分必要的。
室内(Interior)是指建筑物的内部,即建筑物的内部空间。室内设计(Interior Design)就是对建筑物的内部空间进行设计。所谓“装饰”意为“装点、美化、打扮”。关于室内设计的特点与专业范围,各种提法很多,但把室内设计简单地称为“装饰设计”是较为普通的。诚然,在室内设计工作中含有装饰设计的内容,但它又不完全是单纯的装饰问题。要深刻地理解室内设计的含义,需对历史文化、技术水平、城市文脉、环境状况、经济条件、生活习俗和审美要求等因素做出综合的分析,才能掌握室内设计的内涵及其应有的特色。在具体的创作过程中,室内设计不同于雕塑、绘画等其他的造型艺术形式能再现生活,只能运用自身的特殊手段,如空间、体型、细部、色彩、质感等形成的综合整体效果,表达出各种抽象的意味:宏伟、壮观、粗放、秀丽、庄严、活泼、典雅等气氛。因为室内设计的创作,其构思过程是受各种制约条件限定的,只能沿着一定的轨迹,运用形象的思维逻辑,创造出美的艺术形式。
从含义上说,室内设计是建筑创作不可割裂的组成部分,其焦点是如何为人们创造出良好的物质与精神上的生活环境。所以室内设计不是一项孤立的工作,确切地说,它是建筑构思中的深化、延伸和升华。因而既不能人为地将它从完整的建筑总体构思中划分出去,也不能抹杀室内设计的相对独立性,更不能把室内外空间界定得那么准确。因为室内空间的创意,是相对于室外环境和总体设计架构而存在的,只能是相互依存、相互制约、相互渗透和相互协调的有机关系。忽视或有意割断这种内在的联系,将使创作落入空中楼阁的境地,犹如无源之水、无本之木一样,失掉了构思的依据,必然导致创作思路的枯竭,使其作品苍白、落套而缺乏新意。显然,当今室内设计发展的特征,更多的是强调尊重人们自身的价值观、深层的文化背景、民族的形式特色及宏观的时代新潮。通过装饰设计,可以使得室内环境更加优美,更加适宜人们工作生活。如图2-1和图2-2所示是常见住宅居室中的客厅装饰前后的效果对比。
图2-1 客厅装饰前效果
图2-2 客厅装饰后效果
现代室内设计作为一门新兴的学科,尽管还只是近数十年的事,但是人们有意识地对自己生活、生产活动的室内进行安排布置,甚至美化装饰,赋予室内环境以所期望的气氛,却早已从人类文明伊始的时期就存在了。我国各类民居,如北京的四合院、四川的山地住宅以及上海的里弄建筑等,在体现地域文化的建筑形体和室内空间组织、在建筑装饰的设计与制作等许多方面,都有极为宝贵的可供借鉴的成果。随着经济的发展,从公共建筑、商业建筑开始,乃至涉及千家万户的居住建筑,在室内设计和建筑装饰方面都有了蓬勃的发展。现在社会是一个经济、信息、科技、文化等各方面都高速发展的社会,人们对社会的物质生活和精神生活不断提出新的要求,相应地人们对自身所处的生产、生活活动环境的质量,也必将提出更高的要求,这就需要设计师从实践到理论认真学习、钻研和探索,才能创造出安全、健康、适用、美观、能满足现代室内综合要求、具有文化内涵的室内环境。
从风格上划分,室内设计有中式风格、西式风格和现代风格,再进一步细分,可分为地中海风格、北美风格等。
室内设计是根据建筑物的使用性质、所处环境和相应标准,运用物质技术手段和建筑美学原理,创造功能合理、舒适优美、满足人们物质和精神生活需要的室内环境。设计构思时,需要运用物质技术手段,即各类装饰材料和设施设备等,这是容易理解的;还需要遵循建筑美学原理,这是因为室内设计的艺术性,除了有与绘画、雕塑等艺术之间共同的美学法则之外,作为“建筑美学”,更需要综合考虑使用功能、结构施工、材料设备、造价标准等多种因素。
如从设计者的角度来分析室内设计的方法,主要有以下几点。
1.总体与细部深入推敲
总体推敲,即是室内设计应考虑的几个基本观点,有一个设计的全局观念。细处着手是指具体进行设计时,必须根据室内的使用性质,深入调查、收集信息,掌握必要的资料和数据,从最基本的人体尺度、人流动线、活动范围和特点、家具与设备等的尺寸和使用它们必需的空间等着手。
2.里外、局部与整体协调统一
室内环境需要与建筑整体的性质、标准、风格,与室外环境相协调统一,它们之间有着相互依存的密切关系,设计时需要从里到外、从外到里多次反复协调,务必使其更趋完善合理。
3.立意与表达
设计的构思、立意至关重要。可以说,一项设计,没有立意就等于没有“灵魂”,设计的难度也往往在于要有一个好的构思。一个较为成熟的构思,往往需要足够的信息量,有商讨和思考的时间,在设计前期和设计出方案的过程中使立意、构思逐步明确,形成一个好的构思。
对于室内设计来说,正确、完整、有表现力地表达出室内环境设计的构思和意图,使建设者和评审人员能够通过图纸、模型、说明等,全面地了解设计意图,也是非常重要的。室内设计根据设计的进程,通常可以分为 4 个阶段,即设计准备阶段、方案设计阶段、施工图设计阶段和设计实施阶段。
1.设计准备阶段
设计准备阶段主要是接受委托任务书,签订合同,或者根据标书要求参加投标;明确设计任务和要求,如室内设计任务的使用性质、功能特点、设计规模、等级标准、总造价,根据任务的使用性质所需创造的室内环境氛围、文化内涵或艺术风格等。
2.方案设计阶段
方案设计阶段是在设计准备阶段的基础上,进一步收集、分析、运用与设计任务有关的资料与信息,构思立意,进行初步方案设计、深入设计,进行方案的分析与比较。确定初步设计方案,提供设计文件,如平面图、立面图、透视图、室内装饰材料实样版面等。初步设计方案需经审定后,方可进行施工图设计。如图2-3所示是某个住宅项目装饰方案效果图。
3.施工图设计阶段
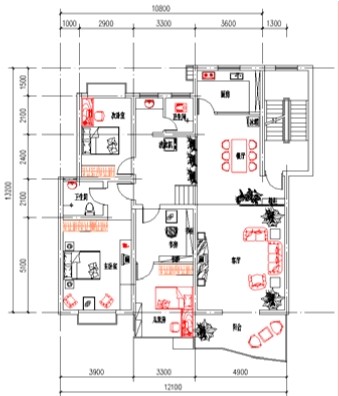
施工图设计阶段是提供有关平面、立面、构造节点大样及设备管线图等施工图纸,满足施工的需要。如图 2-4 所示是某个住宅项目装饰平面施工图。施工图设计是室内装饰从图纸文字效果转为实物效果的关键环节。
图2-3 住宅装饰方案效果图
图2-4 住宅装饰平面施工图
4.设计实施阶段
设计实施阶段亦即工程的施工阶段。室内工程在施工前,设计人员应向施工单位进行设计意图说明及图纸的技术交底;工程施工期间需按图纸要求核对施工实况,有时还需根据现场实况提出对图纸的局部修改或补充;施工结束时,会同质检部门和建设单位进行工程验收。为了使设计取得预期效果,室内设计人员必须抓好设计各阶段的环节,充分重视设计、施工、材料、设备等各个方面,并熟悉、重视与原建筑物的建筑设计、设施设计的衔接,同时还须协调好与建设单位和施工单位之间的相互关系,在设计意图和构思方面取得沟通与共识,以期取得理想的设计工程成果。
制作思路
室内设计图样是交流设计思想、传达设计意图的技术文件,是室内装饰施工的依据,所以,应该遵循统一的制图规范,在正确的制图理论及方法的指导下完成,否则就会失去图样的意义。因此,即使是在当今大量采用计算机绘图的形势下,仍然有必要掌握基本绘图知识。考虑到部分读者未经过常规的制图训练,因此在本节中将必备的制图知识作一个简单介绍。已掌握该部分内容的读者可略过本节。
1.室内设计制图的概念
室内设计图是室内设计人员用来表达设计思想、传达设计意图的技术文件,是室内装饰施工的依据。室内设计制图就是根据正确的制图理论及方法,按照国家统一的室内制图规范将室内空间 6 个面上的设计情况在二维图面上表现出来,它包括室内平面图、室内顶棚平面图、室内立面图、室内细部节点详图等。国家建设部出台的《房屋建筑制图统一标准》(GB/T 50002—2001)和《建筑制图标准》(GB/T 50102—2001)是室内设计中手工制图和计算机制图的依据。
2.室内设计制图的方式
室内设计制图有手工制图和计算机制图两种方式。手工制图又分为徒手绘制和工具绘制两种。
手工制图应该是设计师必须掌握的技能,也是学习AutoCAD 2012软件或其他计算机绘图软件的基础。尤其是徒手绘画,往往是体现设计师素养和职场上的闪光点。采用手工绘图的方式可以绘制全部的图样文件,但是需要花费大量的精力和时间。计算机制图是指操作绘图软件在计算机上画出所需图形,并形成相应的图形文件,通过绘图仪或打印机将图形文件输出,形成具体的图样。一般情况下,手绘方式多用于方案构思设计阶段,计算机制图多用于施工图设计阶段。这两种方式同等重要,不可偏废。本书重点讲解应用AutoCAD 2012绘制室内设计图,对手绘不做具体介绍,读者若需要加强这项技能,可以参看其他相关书籍。
3.室内设计制图的程序
室内设计制图的程序是跟室内设计的程序相对应的。室内设计一般分为方案设计阶段和施工图设计阶段。方案设计阶段形成方案图(有的书籍将该阶段细分为构思分析阶段和方案图阶段),施工图设计阶段形成施工图。方案图包括平面图、顶棚图、立面图、剖面图及透视图等,一般要进行色彩表现,它主要用于向业主或招标单位进行方案展示和汇报,所以其重点在于形象地表现设计构思。施工图包括平面图、顶棚图、立面图、剖面图、节点构造详图及透视图,它是施工的主要依据,因此它需要详细、准确地表示出室内布置、各部分的形状、大小、材料、构造做法及相互关系等各项内容。
1.图幅、图标及会签栏
图幅即图面的大小。根据国家规范的规定,按图面的长和宽的大小确定图幅的等级。室内设计常用的图幅有A0(也称0号图幅,其余类推)、A1、A2、A3及A4,每种图幅的长宽尺寸如表2-1所示,表中的尺寸代号意义如图2-5和图2-6所示。
表2-1 图幅标准(单位:mm)
图2-5 A0~A3图幅格式
图标即图纸的图标栏,它包括设计单位名称、工程名称、签字区、图名区及图号区等内容。一般图标格式如图 2-7 所示,如今不少设计单位采用自己个性化的图标格式,但是仍必须包括这几项内容。
图2-6 A4图幅格式
图2-7 图标格式
会签栏是为各工种负责人审核后签名用的表格,它包括专业、姓名、日期等内容,具体内容根据需要设置,如图2-8所示为其中一种格式。对于不需要会签的图样,可以不设此栏。
图2-8 会签栏格式
2.线型要求
室内设计图主要由各种线条构成,不同的线型表示不同的对象和不同的部位,代表着不同的含义。为了图面能够清晰、准确、美观地表达设计思想,工程实践中采用了一套常用的线型,并规定了它们的使用范围,常用线型如表2-2所示。在AutoCAD 2012中,可以通过“图层”中“线型”、“线宽”的设置来选定所需线型。
表2-2 常用线型
续表
标准实线宽度b=0.4~0.8mm。
3.尺寸标注
第1章已经介绍过AutoCAD的尺寸标注的设置问题,然而,具体在对室内设计图进行标注时,还要注意下面一些标注原则。
(1)尺寸标注应力求准确、清晰、美观大方。同一张图样中,标注风格应保持一致。
(2)尺寸线应尽量标注在图样轮廓线以外,从内到外依次标注从小到大的尺寸,不能将大尺寸标在内,而小尺寸标在外,如图2-9所示。
图2-9 尺寸标注正误对比
(3)最内一道尺寸线与图样轮廓线之间的距离不应小于 10mm,两道尺寸线之间的距离一般为7~10mm。
(4)尺寸界线朝向图样的端头与图样轮廓的距离应大于等于2mm,不宜直接与之相连。
(5)在图线拥挤的地方,应合理安排尺寸线的位置,但不宜与图线、文字及符号相交;可以考虑将轮廓线用做尺寸界线,但不能作为尺寸线。
(6)对于连续相同的尺寸,可以采用“均分”或“(EQ)”字样代替,如图2-10所示。
图2-10 相同尺寸的省略
4.文字说明
在一幅完整的图样中用图线方式表现得不充分和无法用图线表示的地方,就需要进行文字说明,如材料名称、构配件名称、构造做法、统计表及图名等。文字说明是图样内容的重要组成部分,制图规范对文字标注中的字体、字的大小、字体字号搭配等方面做了一些具体规定。
(1)一般原则:字体端正,排列整齐,清晰准确,美观大方,避免过于个性化的文字标注。
(2)字体:一般标注推荐采用仿宋字,标题可用楷体、隶书、黑体字等。例如:
仿宋:室内设计(小四)室内设计(四号)室内设计(二号)
黑体:室内设计(四号)室内设计(小二)
楷体:室内设计(四号)室内设计(二号)
隶书:室内设计(三号)室内设计(一号)
字母、数字及符号:0123456789abcdefghijk% @或
(3)字的大小:标注的文字高度要适中。同一类型的文字采用同一大小的字。较大的字用于较概括性的说明内容,较小的字用于较细致的说明内容。
(4)字体及大小的搭配注意体现层次感。
5.常用图示标志
(1)详图索引符号及详图符号。室内平、立、剖面图中,在需要另设详图表示的部位,标注一个索引符号,以表明该详图的位置,这个索引符号就是详图索引符号。详图索引符号采用细实线绘制,圆圈直径为10mm。如图2-11所示,图2-11(d)、(e)、(f)、(g)用于索引剖面详图,当详图就在本张图样时,采用图2-11(a)所示的形式,详图不在本张图样时,采用图2-11(b)、(c)、(d)、(e)、(f)、(g)所示的形式。
详图符号即详图的编号,用粗实线绘制,圆圈直径为14mm,如图2-12所示。
图2-11 详图索引符号
图2-12 详图符号
(2)引出线。由图样引出一条或多条线段指向文字说明,该线段就是引出线。引出线与水平方向的夹角一般采用0°、30°、45°、60°、90°,常见的引出线形式如图2-13所示。如图 2-13(a)、(b)、(c)、(d)所示为普通引出线,如图 2-13(e)、(f)、(g)、(h)所示为多层构造引出线。使用多层构造引出线时,应注意构造分层的顺序要与文字说明的分层顺序一致。文字说明可以放在引出线的端头(如图2-13(a)~(h)所示),也可放在引出线水平段之上(如图2-13(i)所示)。
图2-13 引出线形式
(3)内视符号。在房屋建筑中,一个特定的室内空间领域总存在竖向分隔(隔断或墙体)来界定。因此,根据具体情况,就有可能绘制 1 个或多个立面图来表达隔断、墙体及家具、构配件的设计情况。内视符号标注在平面图中,包含视点位置、方向和编号 3 个信息,建立平面图和室内立面图之间的联系。内视符号的形式如图2-14所示。图中立面图编号可用英文字母或阿拉伯数字表示,黑色的箭头指向表示立面的方向。如图2-14(a)所示为单向内视符号,如图2-14(b)所示为双向内视符号,如图2-14(c)所示为四向内视符号,A、B、C、D顺时针标注。
图2-14 内视符号
为了方便读者查阅,其他常用符号及其意义如表2-3所示。
`表2-3 室内设计图常用符号图例
续表
6.常用材料符号
室内设计图中经常应用材料图例来表示材料,在无法用图例表示的地方,也采用文字说明。为了方便读者,常用材料图例如表2-4所示。
表2-4 常用材料图例
7.常用绘图比例
下面列出常用绘图比例,读者根据实际情况灵活使用。
(1)平面图:1∶50,1∶100等。
(2)立面图:1∶20,1∶30,1∶50,1∶100等。
(3)顶棚图:1∶50,1∶100等。
(4)构造详图:1∶1,1∶2,1∶5,1∶10,1∶20等。
如前所述,一套完整的室内设计图一般包括平面图、顶棚图、立面图、构造详图和透视图。下面简述各种图样的概念及内容。
1.室内平面图
室内平面图是以平行于地面的切面在距地面1.5mm左右的位置将上部切去而形成的正投影图。室内平面图中应表达的内容如下:
(1)墙体、隔断及门窗,各空间大小及布局、家具陈设、人流交通路线、室内绿化等。若不单独绘制地面材料平面图,则应该在平面图中表示地面材料。
(2)标注各房间尺寸、家具陈设尺寸及布局尺寸,对于复杂的公共建筑,则应标注轴线编号。
(3)注明地面材料名称及规格。
(4)注明房间名称、家具名称。
(5)注明室内地坪标高。
(6)注明详图索引符号、图例及立面内视符号。
(7)注明图名和比例。
(8)若需要辅助文字说明的平面图,还要注明文字说明、统计表格等。
2.室内顶棚图
室内设计顶棚图是根据顶棚在其下方假想的水平镜面上的正投影绘制而成的镜像投影图。顶棚图中应表达的内容如下:
(1)顶棚的造型及材料说明。
(2)顶棚灯具和电器的图例、名称规格等说明。
(3)顶棚造型尺寸标注、灯具、电器的安装位置标注。
(4)顶棚标高标注。
(5)顶棚细部做法的说明。
(6)详图索引符号、图名、比例等。
3.室内立面图
以平行于室内墙面的切面将前面部分切去后,剩余部分的正投影图即室内立面图。立面图的主要内容如下:
(1)墙面造型、材质及家具陈设在立面上的正投影图。
(2)门窗立面及其他装饰元素立面。
(3)立面各组成部分尺寸、地坪吊顶标高。
(4)材料名称及细部做法说明。
(5)详图索引符号、图名、比例等。
4.构造详图
为了放大个别设计内容和细部做法,多以剖面图的方式表达局部剖开后的情况,这就是构造详图。构造详图表达的内容如下:
(1)以剖面图的绘制方法绘制出各材料断面、构配件断面及其相互关系。
(2)用细线表示出剖视方向上看到的部位轮廓及相互关系。
(3)标出材料断面图例。
(4)用指引线标出构造层次的材料名称及做法。
(5)标出其他构造做法。
(6)标注各部分尺寸。
(7)标注详图编号和比例。
5.透视图
透视图是根据透视原理在平面上绘制出能够反映三维空间效果的图形,它与人的视觉空间感受相似。室内设计常用的绘制方法有一点透视、两点透视(成角透视)、鸟瞰图3种。
透视图可以通过人工绘制,也可以应用计算机绘制,它能直观表达设计思想和效果,故也称做效果图或表现图,是一个完整的设计方案不可缺少的部分。鉴于本书重点是介绍应用AutoCAD 2012绘制二维图形,因此本书中不包含这部分内容。
1.二维图形的制作
这里的二维图形是指绘制室内设计平面图、立面图、剖面图、顶棚图、详图的矢量图形。在工程实践中应用最多的软件是美国Autodesk公司开发的AutoCAD软件,它的最新版本也就是本书介绍的AutoCAD 2012。AutoCAD是一个功能强大的矢量图形制作软件,它适应于建筑、机械、汽车、服装等诸多行业,并且它为二次开发提供了良好的平台和接口。为了方便建筑设计及室内设计绘图,国内有关公司出版了一些基于AutoCAD的二次开发软件,如天正、圆方等。
2.三维图形的制作
三维图形的制作实际上分为两个步骤:一是建模,二是渲染。这里的建模指的是通过计算机建立建筑、室内空间的虚拟三维模型和灯光模型,渲染指的是应用渲染软件对模型进行渲染。
(1)建模软件。常见的建模软件有美国的Autodesk公司开发的AutoCAD、3ds Max、3ds VIZ等。应用AutoCAD可以进行准确建模,但是它的渲染效果较差,一般需要导入3ds Max或3ds VIZ中附材质、设置灯光,而后渲染,而且还要处理好导入前后的接口问题。3ds Max和3ds VIZ都是功能强大的三维建模软件,二者的界面基本相同。不同的是,3ds Max面向普遍的三维动画制作,而3ds VIZ是Autodesk公司专门为建筑、机械等行业定制的三维建模及渲染软件,取消了建筑、机械行业不必要的功能,增加了门窗、楼梯、栏杆、树木等造型模块和环境生成器,3ds VIZ 4.2以上的版本还集成了Lightscape的灯光技术,弥补了3ds Max对灯光技术的欠缺。
(2)渲染软件。常用的渲染软件有3ds Max、3ds VIZ和Lightscape等。Lightscape出色的是它的灯光技术,它不但能计算直射光产生的光照效果,而且能计算光线在界面上发生反射以后形成的环境光照效果。尤其用在室内效果图制作中,与真实情况更接近,从而渲染效果比较好。随着3ds Max、3ds VIZ不断推出新版本,它们的灯光技术越来越完善。
3.后期制作
模型渲染以后一般都需要进行后期处理,Adobe公司开发的Photoshop是一个首选的、功能强大的平面图像后期处理软件。若需将设计方案做成演示文稿进行方案汇报,则可以根据具体情况选择Powerpoint、Flash及其他影音制作软件。