购买
下载掌阅APP,畅读海量书库
立即打开
畅读海量书库
扫码下载掌阅APP

1.4 室内设计制图的要求及规范

1.4.1 图幅、图标及会签栏

1.图幅即图面的大小

根据国家规范的规定,按图面的长和宽的大小确定图幅的等级。室内设计常用的图幅有A0(也称0号图幅,其余类推)、A1、A2、A3及A4,每种图幅的长宽尺寸如表1-1所示,表中的尺寸代号意义如图1-10和图1-11所示。

表1-1 图幅标准(单位:mm)

图1-10 A0~A3图幅格式

图1-11 A4立式图幅格式

2.图标

图标即图纸的图标栏,它包括设计单位名称、工程名称、签字区、图名区及图号区等内容。一般图标格式如图1-12所示,如今不少设计单位采用自己个性化的图标格式,但是仍必须包括这几项内容。

图1-12 图标格式

3.会签栏

会签栏是为各工种负责人审核后签名用的表格,它包括专业、姓名、日期等内容,具体内容根据需要设置,如图1-13所示为其中一种格式。对于不需要会签的图样,可以不设此栏。

图1-13 会签栏格式

1.4.2 线型要求

室内设计图主要由各种线条构成,不同的线型表示不同的对象和不同的部位,代表着不同的含义。为了使图面能够清晰、准确、美观地表达设计思想,工程实践中采用了一套常用的线型,并规定了它们的使用范围,常用线型如表1-2所示。在AutoCAD 2013中,可以通过“图层”中“线型”、“线宽”的设置来选定所需线型。

表1-2 常用线型

注意

标准实线宽度b=0.4~0.8mm。

1.4.3 尺寸标注

对室内设计图进行具体标注时,要注意下面一些标注原则。

● 尺寸标注应力求准确、清晰、美观大方。同一张图样中,标注风格应保持一致。

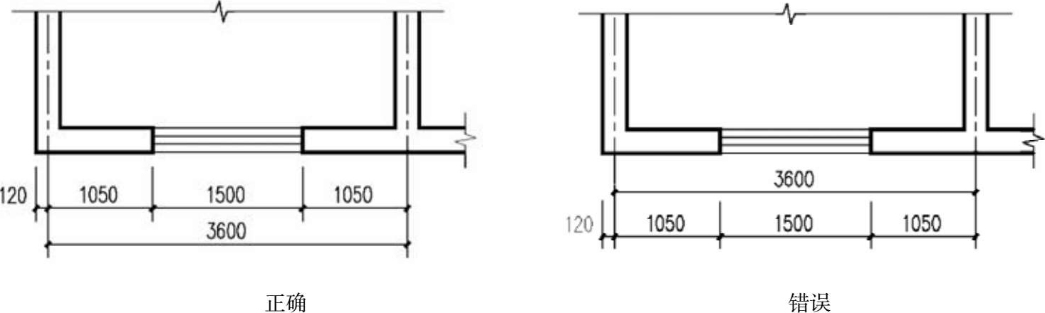
● 尺寸线应尽量标注在图样轮廓线以外,从内到外依次标注从小到大的尺寸,不能将大尺寸标在内,而小尺寸标在外,如图1-14所示。

图1-14 尺寸标注正误对比

● 最内一道尺寸线与图样轮廓线之间的距离不应小于10mm,两道尺寸线之间的距离一般为7~10mm。

● 尺寸界线朝向图样的端头距图样轮廓的距离应大于或等于2mm,不宜直接与之相连。

● 在图线拥挤的地方,应合理安排尺寸线的位置,但不宜与图线、文字及符号相交,可以考虑将轮廓线作为尺寸界线,但不能作为尺寸线。

● 对于连续相同的尺寸,可以采用“均分”或“(EQ)”字样代替,如图1-15所示。

图1-15 相同尺寸的省略

1.4.4 文字说明

在一幅完整的图样中用图线方式表现得不充分和无法用图线表示的地方,就需要进行文字说明,例如,材料名称、构配件名称、构造做法、统计表及图名等。文字说明是图样内容的重要组成部分,制图规范对文字标注中的字体、字的大小、字体字号搭配等方面做了一些具体规定。

● 一般原则:字体端正、排列整齐、清晰准确、美观大方,避免过于个性化的文字标注。

● 字体:一般标注推荐采用仿宋字,标题可用楷体、隶书、黑体字等。例如:

● 字的大小:标注的文字高度要适中。同一类型的文字采用同一大小的字。较大的字用于较概括性的说明内容,较小的字用于较细致的说明内容。

● 字体及大小的搭配注意体现层次感。

1.4.5 常用图示标志

1.详图索引符号及详图符号

室内平、立、剖面图中,在需要另设详图表示的部位标注一个索引符号,以表明该详图的位置,这个索引符号就是详图索引符号。详图索引符号采用细实线绘制,圆圈直径为10mm。如图1-16所示,图中(d)、(e)、(f)、(g)用于索引剖面详图,当详图就位于本张图样中时,采用图1-16(a)的形式,详图不在本张图样中时,采用如图1-16(b)~图1-16(g)所示的形式。

图1-16 详图索引符号

详图符号即详图的编号,用粗实线绘制,圆圈直径为14mm,如图1-17所示。

图1-17 详图符号

2.引出线

由图样引出一条或多条线段指向文字说明,该线段就是引出线。引出线与水平方向的夹角一般采用0°、30°、45°、60°、90°,常见的引出线形式如图1-18所示。图1-18(a)~图1-18(d)为普通引出线,图1-18(e)~图1-18(h)为多层构造引出线。使用多层构造引出线时,应注意构造分层的顺序要与文字说明的分层顺序一致。文字说明可以放在引出线的端头,如图1-18(a)~图1-18(h)所示,也可放在引出线水平段之上,如图1-18(i)所示。

图1-18 引出线形式

3.内视符号

在房屋建筑中,一个特定的室内空间领域总存在竖向分隔(隔断或墙体)来界定。因此,根据具体情况,就有可能绘制1个或多个立面图来表达隔断、墙体及家具、构配件的设计情况。内视符号标注在平面图中,包含视点位置、方向和编号三个信息,建立平面图和室内立面图之间的联系。内视符号的形式如图1-19所示。图中立面图编号可用英文字母或阿拉伯数字表示,黑色的箭头指向表示立面的方向;图1-19(a)为单向内视符号,图1-19(b)为双向内视符号,图1-19(c)为四向内视符号,其中的A、B、C、D为顺时针标注。

图1-19 内视符号

为了方便读者查阅,将其他常用符号及其意义列入表1-3中。

表1-3 室内设计图常用符号图例

1.4.6 常用材料符号

室内设计图中经常应用材料图例来表示材料,在无法用图例表示的地方,也采用文字说明。为了方便读者,将常用的图例汇集如表1-4所示。

表1-4 常用材料图例

1.4.7 常用绘图比例

下面列出常用绘图比例,读者根据实际情况灵活使用。

● 平面图:1∶50、1∶100等。

● 立面图:1∶20、1∶30、1∶50、1∶100等。

● 顶棚图:1∶50、1∶100等。

● 构造详图:1∶1、1∶2、1∶5、1∶10、1∶20等。 Vam/UV7yZAKvFZCaYU/R27K7tfipvKyCgAACTEt39zcdSKYqxKppfkdBlLfR1nPS

点击中间区域
呼出菜单
上一章
目录
下一章
×