



1.目的要求
任何一个图形文件都有一个特定的绘图环境,包括图形边界、绘图单位、角度等。设置绘图环境通常有两种方法:设置向导与单独的命令设置方法。通过学习设置绘图环境,可以促进读者对图形总体环境的认识。
2.操作提示
❶单击“标准”工具栏中的“新建”按钮
,系统打开“选择样板”对话框,单击“打开”按钮,进入绘图界面。
❷选择菜单栏中的“格式”→“图形界限”命令,设置界限为“(0, 0),(297, 210)”,在命令行可以重新设置模型空间界限。
❸选择菜单栏中的“格式”→“单位”命令,系统打开“图形单位”对话框,设置长度类型为“小数”,精度为“0.00”;角度类型为“十进制度数”,精度为“0”;用于缩放插入内容的单位为“毫米”,用于指定光源强度的单位为“国际”;角度方向为“顺时针”。
❹选择菜单栏中的“工具”→“工作空间”→AutoCAD经典命令,进入工作空间。
1.目的要求
操作界面是用户绘制图形的平台,操作界面的各个部分都有其独特的功能,熟悉操作界面有助于用户方便快速地进行绘图。本例要求了解操作界面的各部分功能,掌握改变绘图区颜色和光标大小的方法,能够熟练地打开、移动、关闭工具栏。
2.操作提示
启动AutoCAD 2013,进入操作界面。
调整操作界面大小。
设置绘图区颜色与光标大小。
打开、移动、关闭工具栏。
尝试同时利用命令行、菜单命令和工具栏绘制一条线段。
1.目的要求
图形文件管理包括文件的新建、打开、保存、加密、退出等。本例要求读者熟练掌握DWG文件的赋名保存、自动保存、加密及打开的方法。
2.操作提示
❶启动AutoCAD 2013,进入操作界面。
❷打开一个已经保存过的图形。
❸进行自动保存设置。
❹尝试在图形上绘制任意图线。
❺将图形以新的名称保存。
❻退出该图形。
1.目的要求
AutoCAD 2013人机交互的最基本内容就是数据输入。本例要求用户熟练地掌握各种数据的输入方法。
2.操作提示
❶在命令行输入“LINE”命令。
❷输入起点在直角坐标方式下的绝对坐标值。
❸输入下一点在直角坐标方式下的相对坐标值。
❹输入下一点在极坐标方式下的绝对坐标值。
❺输入下一点在极坐标方式下的相对坐标值。
❻单击直接指定下一点的位置。
❼按下状态栏中的“正交模式”按钮
,用光标指定下一点的方向,在命令行输入一
个数值。
按下状态栏中的“动态输入”按钮
,拖动光标,系统会动态显示角度,拖动到选定角度后,在长度文本框中输入长度值。
按<Enter>键,结束绘制线段的操作。
1.目的要求
本例要求用户熟练地掌握各种图形显示工具的使用方法。
2.操作提示
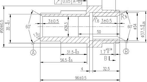
如图1-73所示,利用平移工具和缩放工具移动、缩放图形。
图1-73 零件图
1.目的要求
本例要求用户熟练地掌握设置图层的方法。
2.操作提示
如图1-73所示,根据需要设置不同的图层。注意设置不同的线型、线宽和颜色。