



本节扼要介绍国家标准GB/T1835—2008《电气工程CAD制图规则》中常用的有关规定,同时对其引用的有关标准中的规定加以解释。
预习重点
◎ 查找电气工程CAD制图图纸格式规范。
◎ 观察电气工程图中文字、图线与比例。
1.幅面
电气工程图纸采用的基本幅面有5种:A0、A1、A2、A3和A4,各幅面的相应尺寸如表1-1所示。
表1-1 幅面尺寸的规定 (单位:mm)
2.图框
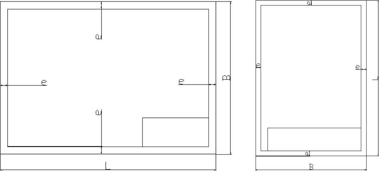
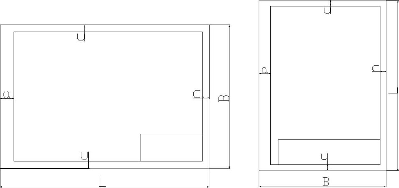
(1)图框尺寸如表1-2所示。在电气图中,确定图框线的尺寸有两个依据:一是图纸是否需要装订;二是图纸幅面的大小。需要装订时,装订的一边就要留出装订边。图1-6、图1-7分别为不留装订边的图框、留装订边的图框。右下角矩形区域为标题栏位置。
表1-2 图纸图框尺寸(单位:mm)
图1-6 不留装订边的图框
图1-7 留装订边的图框
(2)图框线宽。图框的内框线,根据不同幅面、不同输出设备宜采用不同的线宽,如表1-3所示。各种图框的外框线均为0.25mm的实线。
表1-3 图框内框线宽(单位:mm)
1.字体
电气工程图样和简图中的字体,所选汉字应为长仿宋体。在AutoCAD环境中,汉字字体可采用Windows系统所带的TrueType“仿宋_GB2312”。
2.文本尺寸高度
(1)常用的文本尺寸宜在下列尺寸中选择:2.5,3.5,5,7,10,14,20。(单位:mm)
(2)字符的宽高比约为0.7。
(3)各行文字间的行距不应小于1.5倍的字高。
(4)图样中采用的各种文本尺寸如表1-4所示。
表1-4 图样中各种文本尺寸
续表
3.表格中的文字和数字
(1)数字书写:带小数的数值,按小数点对齐;不带小数点的数值,按各位对齐。
(2)文本书写:正文按左对齐。
1.线宽
根据用途,图线宽度宜从下列线宽中选用:0.18,0.25,0.35,0.5,0.7,1.0,1.4,1.0。(单位:mm)
图形对象的线宽尽量不多于2种,每种线宽间的比值应不小于2。
2.图线间距
平行线(包括画阴影线)之间的最小距离不小于粗线宽度的两倍,建议不小于0.7mm。
3.图线线型
根据不同的结构含义,采用不同的线型,具体要求如表1-5所示。
4.线型比例
线型比例 k 与印制比例宜保持适当关系,当印制比例为1∶ n 时,在确定线宽库文件后,线型比例可取 k × n 。
表1-5 图线线型
推荐采用比例规定如表1-6所示。
表1-6 比 例